Form: S-1

General form for registration of securities under the Securities Act of 1933

March 1, 2019

Exhibit 10.17

CHINA BASIN

OFFICE LEASE

This Office Lease (the “Lease”), dated as of the date set forth in Section 1 of the Summary of Basic Lease Information (the “Summary”), below, is made by and between SPF CHINA BASIN HOLDINGS, LLC, a Delaware limited liability company (“Landlord”), and LYFT, INC., a Delaware corporation (“Tenant”).

SUMMARY OF BASIC LEASE INFORMATION

 

TERMS OF LEASE

  

DESCRIPTION

1. Date:

  

April 8, 2016

2. Premises (Article 1).

  

2.1 Building:

  

Wharfside Building and/or the Berry Street Building, as applicable, commonly known as China Basin, located at 185 Berry Street, San Francisco, California 94107

2.2 Premises:

  

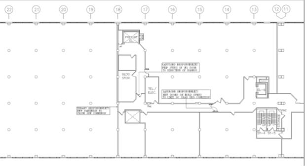
Approximately 52,297 rentable square feet of space comprised of (i) approximately 25,783 rentable square feet located in Suite 3000 on the third (3rd) floor of the Wharfside Building, and (ii) approximately 26,514 rentable square feet located in Suite 500 on the fifth (5th) floor of the Berry Street Building, all as further set forth in Exhibit A to the Lease.

2.3 Must-Take Premises:

  

Approximately 41,430 rentable square feet of space located in Suite 590 on the fifth (5th) floor of the Berry Street Building, as further set forth in Exhibit A-1 to the Lease.

3. Lease Term

(Article 2).

  

3.1 Length of Term:

  

Nine (9) years.

3.2 Lease Commencement Date:

  

One hundred twenty (120) days after the Delivery Date. As used herein, the “Delivery Date” shall mean the date on which Landlord delivers the Premises to Tenant in the condition required hereunder, which Delivery Date is anticipated to occur on the first business day following the full execution of this Lease by Landlord and Tenant (the “Anticipated Initial Premises Delivery Date”).

3.3 Must-Take Premises Lease Commencement Date:

  

One hundred twenty (120) days after Landlord’s delivery of the Must-Take Premises to Tenant (the date of such delivery, the “Must-Take Delivery Date ”), which anticipated Must-Take Premises Delivery Date is expected to occur on August 1, 2017 (the “Anticipated Must-Take Premises Delivery Date ”).

3.4 Lease Expiration Date:

  

If the Lease Commencement Date shall be the first day of a calendar month, then the day immediately preceding the ninth (9th) anniversary of the Lease Commencement Date; or, if the Lease Commencement Date shall be other than the first day of a calendar month, then the last day of the month in which the ninth (9th) anniversary of the Lease Commencement Date occurs.


4. Base Rent (Article 3):

 

  

Lease Year

   Annual
Base Rent
     Monthly
Installment
of Base Rent
    Annual
Rental Rate per
Rentable Square Foot
 

Lease Commencement Date – end of Lease Year 1

   $ 4,183,760.04      $ 348,646.67   $ 80.00  

Year 2 – day before Must-Take Lease Commencement Date

     N/A      $ 359,106.07     $ 82.40  

Must-Take Lease Commencement Date – end of Lease Year 2

   $ 4,505,144.49      $ 643,592.07     $ 82.40  

Lease Year 3

   $ 7,954,797.96      $ 662,899.83     $ 84.87  

Lease Year 4

   $ 8,193,441.84      $ 682,786.82     $ 87.42  

Lease Year 5

   $ 8,439,245.16      $ 703,270.43     $ 90.04  

Lease Year 6

   $ 8,692,422.48      $ 724,368.54     $ 92.74  

Lease Year 7

   $ 8,953,195.20      $ 746,099.60     $ 95.52  

Lease Year 8

   $ 9,221,791.08      $ 768,482.59     $ 98.39  

Lease Year 9 - Last

   $ 9,498,444.72      $ 791,537.06     $ 101.34  

 

*

Subject to the terms more particularly set forth in Section 3.2 of this Lease, portions of the Base Rent applicable to these periods shall be abated.

 

5. Base Year

(Article 4):

  

Calendar year 2016; provided, however, (i) electricity is separately submetered and the cost thereof shall be directly paid by Tenant to Landlord (not as part of Operating Expenses), and (ii) the cost of janitorial service shall be paid by Tenant directly to the applicable janitorial provider.

6. Tenant’s Share

(Article 4):

  

Initially, approximately 5.7029%.

  

Commencing on the Must-Take Premises Lease Commencement Date, approximately 10.2209%.

 

2


7. Permitted Use

(Article 5):

  


General office use consistent with a first-class office building, including the operation of a Commercial Kitchen in accordance with the terms of Section 5.4 below.

8. Letter of Credit

(Article 21):

  


$8,900,000.00, subject to reduction pursuant to the express terms of Article 30 of this Lease.

9. Parking Passes

(Article 28):

  


One (1) unreserved parking pass for each 5,000 rentable square feet of the Premises.

10. Address of Tenant

(Section 29.18):

  

Prior to Lease Commencement Date:

 

Lyft, Inc.

2300 Harrison Street

San Francisco, CA 94110

Attention: CEO

 

With a copy to:

 

Lyft, Inc.

2300 Harrison Street

San Francisco, CA 94110

Attention: General Counsel

 

and

 

(After Lease Commencement Date)

 

Lyft, Inc.

185 Berry Street, Suite 500

San Francisco, CA 94107

Attention: CEO

 

At all times, with a copy to:

 

Lyft, Inc.

185 Berry Street, Suite 500

San Francisco, CA 94107

Attention: General Counsel

11. Address of Landlord:

For Payment of Rent

(Article 3):

  

 

SPF China Basin Holdings, LLC

c/o McCarthy Cook & Co.

185 Berry Street, Suite 140

San Francisco, California 94107

For Notices:

(Section 29.18):

  

 

SPF China Basin Holdings, LLC

c/o J.P. Morgan Asset Management

2029 Century Park East, Suite 4150

Los Angeles, California 90067

Attention: Karen M. Wilbrecht, Vice President

 

With a copy to:

 

J.P. Morgan Investment Management Inc.

P.O. Box 5005

New York, New York 10163-5005

 

and

 

3


  

McCarthy Cook & Co.

185 Berry Street, Suite 140

San Francisco, California 94107

Attention: General Manager

 

and

 

Allen Matkins Leck Gamble Mallory & Natsis LLP

1901 Avenue of the Stars, Suite 1800

Los Angeles, California 90067

Attention: Anton N. Natsis, Esq.

12. Broker(s)

(Section 29.24):

  

Jones Lang LaSalle and McCarthy Cook

 

4


ARTICLE 1

PREMISES, BUILDING, PROJECT, AND COMMON AREAS

1.1 Premises, Building, Project and Common Areas.

1.1.1 The Premises; Must-Take Premises. Landlord hereby leases to Tenant and Tenant hereby leases from Landlord the initial premises set forth in Section 2.2 of the Summary (the “Premises”). Subject to the terms of this Section 1.1.1, effective as of the Must-Take Delivery Date, Landlord shall lease to Tenant and Tenant shall lease from Landlord the Must-Take Premises set forth in Section 2.3 of the Summary (the “Must-Take Premises”). All references in this Lease to the “Premises” shall be deemed to refer to the initial Premises prior to the Must-Take Premises Delivery Date and, following the Must-Take Premises Delivery Date, both the initial Premises and the Must-Take Premises, unless specifically stated to the contrary. The outline of the Premises is set forth in Exhibit A attached hereto, and the outline of the Must-Take Premises is set forth in Exhibit A-1 attached hereto. The initial Premises and the Must-Take Premises have the number of rentable square feet as set forth in Section 2.2 and Section 2.3 of the Summary. The parties hereto agree that the lease of the Premises is upon and subject to the terms, covenants and conditions herein set forth, and Tenant covenants as a material part of the consideration for this Lease to keep and perform each and all of such terms, covenants and conditions by it to be kept and performed and that this Lease is made upon the condition of such performance. The parties hereto hereby acknowledge that the purpose of Exhibit A and Exhibit A-1 is to show the approximate location of the initial Premises and the Must-Take Premises, respectively, in the applicable “Building,” as that term is defined in Section 1.1.2, below, only, and such Exhibits are not meant to constitute an agreement, representation or warranty as to the construction of the initial Premises or the Must-Take Premises, the precise area thereof or the specific location of the “Common Areas,” as that term is defined in Section 1.1.3, below, or the elements thereof or of the accessways to the initial Premises, the Must-Take Premises or the “Project,” as that term is defined in Section 1.1.2, below. Except as specifically set forth in this Lease and in the Tenant Work Letter attached hereto as Exhibit B (the “Tenant Work Letter”), Landlord shall not be obligated to provide or pay for any improvement work or services related to the improvement of the initial Premises or the Must-Take Premises, and Tenant shall accept the initial Premises and the Must-Take Premises, each in its existing, “as-is” condition. Tenant also acknowledges that neither Landlord nor any agent of Landlord has made any representation or warranty regarding the condition of the initial Premises, the Must-Take Premises, either Building or the Project or with respect to the suitability of any of the foregoing for the conduct of Tenant’s business, except as specifically set forth in this Lease and the Tenant Work Letter. Landlord shall deliver the Premises to Tenant in good, vacant, broom clean condition, with the plumbing, electrical systems, fire sprinkler system, lighting, air conditioning and heating systems and all other building systems serving the Premises in good operating condition and repair. Any failure of the Premises to be in such condition on delivery shall be promptly remedied by Landlord at Landlord’s sole cost and expense. Subject to the foregoing, the taking of possession of the initial Premises by Tenant shall establish that the initial Premises and the applicable Building were at such time in good and sanitary order, condition and repair and the taking of possession of the Must-Take Premises by Tenant shall conclusively establish that the Must-Take Premises and the applicable Building were at such time in good and sanitary order, condition and repair. Effective as of the Must-Take Premises Lease Commencement Date, the initial Premises shall be expanded to include the Must-Take Premises, and the “Premises” shall thereafter consist of a total of approximately 93,727 rentable square feet of space. Except as specifically set forth in this Lease, effective as of the Must-Take Premises Delivery Date all other terms of this Lease shall apply to the Must-Take Premises as though the Must-Take Premises was originally part of the initial Premises.

1.1.2 The Building and The Project. The Premises are a part of the buildings set forth in Section 2.1 of the Summary (each, as applicable, the “Building”). The Wharfside Building and the Berry Street Building are part of an office project known as “China Basin.” The term “Project,” as used in this Lease, shall mean (i) the Wharfside Building and the Berry Street Building and the Common Areas, (ii) the land (which is improved with landscaping, subterranean parking facilities and other improvements) upon which the Wharfside Building and the Berry Street Building and the Common Areas are located, and (iii) at Landlord’s discretion, any additional real property, areas, land, buildings or other improvements added thereto outside of the Project.

 

5


1.1.3 Common Areas. Tenant shall have the non-exclusive right to use in common with other tenants in the Project, and subject to the rules and regulations referred to in Article 5 of this Lease, those portions of the Project which are provided, from time to time, for use in common by Landlord, Tenant and any other tenants of the Project (such areas, together with such other portions of the Project designated by Landlord, in its discretion, including certain areas designated for the exclusive use of certain tenants, or to be shared by Landlord and certain tenants, are collectively referred to herein as the “Common Areas”). The Common Areas shall consist of the “Project Common Areas” and the “Building Common Areas.” The term “Project Common Areas,” as used in this Lease, shall mean the portion of the Project designated as such by Landlord. The term “Building Common Areas,” as used in this Lease, shall mean the portions of the Common Areas located within the Building designated as such by Landlord. The manner in which the Common Areas are maintained and operated shall be at the reasonable discretion of Landlord; provided that Landlord shall maintain and operate the same in a manner consistent with the maintenance and operation of common areas in Comparable Buildings as defined in Exhibit F attached hereto and the use thereof shall be subject to such rules, regulations and restrictions as Landlord may make from time to time. Landlord reserves the right to close temporarily, make alterations or additions to, or change the location of elements of the Project and the Common Areas; provided that the same does not materially impair Tenant’s ability to use the Premises for the Permitted Use or materially interfere with Tenant’s access to the Premises.

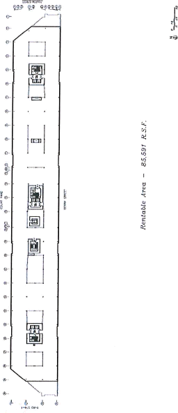
1.2 Right of First Offer. Landlord hereby grants to the original Tenant set forth in this Lease (the “Original Tenant”) and any Permitted Transferee Assignee (as that term is defined in Section 14.8 below), a one-time right of first offer (the “Right of First Offer”) with respect to approximately 85,591 rentable square feet of space located on the fourth (4th) floor of the Berry Street Building (the “Fourth Floor First Offer Space”) and approximately 16,801 rentable square feet of space on the fifth (5th) floor of the Berry Street Building (the “Fifth Floor First Offer Space”), that has not previously been leased by Tenant (collectively, the “First Offer Space”), which First Offer Space is depicted on Exhibit A-2 attached hereto, on the terms and conditions set forth in this Section 1.2. Notwithstanding the foregoing, such first offer right of Tenant shall commence only following the expiration or earlier termination of the existing leases of the First Offer Space (including renewals of any such lease, which are currently set forth in such lease, but regardless of whether such renewal is consummated pursuant to a lease amendment or a new lease or exercised strictly in accordance with the terms set forth in such lease). Such right of first offer shall be subordinate to all rights of other tenants of the Project, which rights relate to the First Offer Space and are set forth in leases of space in the Project existing as of the date hereof, including, without limitation, any expansion, first offer, first refusal, first negotiation and other rights, regardless of whether such rights are executed strictly in accordance with their respective terms or pursuant to a lease amendment or a new lease (the “Superior Rights”). Notwithstanding any contrary provision in the lease of any Superior Right Holder, such rights of any Superior Right Holder shall continue to be Superior Rights in the event that such Superior Right Holder’s lease is renewed or otherwise modified (and irrespective of whether any such renewal is currently set forth in such lease or is subsequently granted or agreed upon, and regardless of whether such renewal is consummated pursuant to a lease amendment or a new lease). All such tenants of the First Offer Space, and all such third party tenants in the Project holding Superior Rights, are collectively referred to as the “Superior Right Holders”. As of the date of this Lease, the only Superior Right Holder is Dropbox, Inc. Tenant’s right of first offer shall be on the terms and conditions set forth in this Section 1.2.

1.2.1 Procedure for Offer. Subject to the terms of this Section 1.2, Landlord shall notify Tenant (the “First Offer Notice”) from time to time when the First Offer Space or any portion thereof becomes available for lease to third parties, provided that the Superior Right Holder does not wish to lease such space pursuant to Superior Rights and provided, further that such First Offer Notice shall not be delivered before May 1, 2017. Pursuant to such First Offer Notice, Landlord shall offer to lease to Tenant the then available First Offer Space. The First Offer Notice shall describe the space so offered to Tenant and shall set forth the “First Offer Rent,” as that term is defined in Section 1.2.3 below, and the other Economic Terms (as that term is defined herein below) upon which Landlord is willing to lease such space to Tenant; provided, however, if Landlord wishes to offer both the Fourth Floor First Offer Space and the Fifth Floor First Offer Space to Tenant, then the parties acknowledge that Landlord may include First Offer Rent and Economic Terms applicable if Tenant elects to lease both the Fourth Floor First Offer Space, and separate First Offer Rent and Economic Terms applicable if Tenant elects to lease

 

6


only the Fifth Floor First Offer Space, pursuant to the terms of Section 1.2.2 below. In no event shall Landlord have the obligation to deliver a First Offer Notice (and Tenant shall have no right to exercise its Right of First Offer) to the extent that the “First Offer Commencement Date,” as that term is defined in Section 1.2.5 below, is anticipated by Landlord to occur when there are less than thirty-six (36) full calendar months then remaining in the initial Lease Term. As used in this Section 1.2, “Economic Terms” shall refer to the net, aggregated cost to Tenant or another party, on a present value basis, of the effect of the following terms for any particular First Offer Space: (i) the rental rate (including additional rent and considering any “base year” or “expense stop” applicable thereto); (ii) the amount of any improvement allowance or the value of any work to be performed by Landlord in connection with the lease of such First Offer Space (which amount is a deduction from the cost to Tenant or such other party); and (iii) the amount of free rent (which amount is a deduction from the cost to Tenant or such other party).

1.2.2 Procedure for Acceptance. If Tenant wishes to exercise Tenant’s Right of First Offer with respect to the space described in the First Offer Notice, then within ten (10) business days of delivery of the First Offer Notice to Tenant, Tenant shall deliver notice to Landlord (“Tenant’s First Offer Exercise Notice”) of Tenant’s election to (i) exercise its right of first offer with respect to (A) the entire space described in the First Offer Notice on the terms contained in such notice, or (B) if the First Offer Space described in the First Offer Notice includes both the Fourth Floor First Offer Space and the Fifth Floor First Offer Space, then Tenant may exercise its right of first offer with respect to only the Fifth Floor First Offer Space, on the terms contained in such notice applicable to only the Fifth Floor First Offer Space, or (ii) exercise its right of first offer with respect to the entire space described in the First Offer Notice (or with respect to only the Fifth Floor First Offer Space, as set forth above), but dispute the applicable First Offer Rent set forth in the First Offer Notice. Concurrently with Tenant’s exercise of its Right of First Offer, Tenant shall provide Tenant’s most recent Audited Financial Statement (as that term is defined in Section 17.2 below) and any previous Audited Financial Statements (prepared by Tenant and not already in Landlord’s possession or otherwise reviewed by Landlord) pertaining to the period starting with the Lease Commencement Date and continuing through the date of Landlord’s delivery of the First Offer Notice. Tenant may provide such Audited Financial Statements via an on-line diligence site, and shall not be required to provide hardcopies of the same. If Tenant does not deliver Tenant’s First Offer Exercise Notice and all required accompanying documentation within the ten (10) business day period, then Landlord shall be free to enter into a lease (“Third Party Lease”) for the space described in the First Offer Notice to anyone to whom Landlord desires on any terms Landlord desires; provided, however, if during the 270-day period following the initial delivery of the First Offer Notice to Tenant, either (x) the rentable square footage of the First Offer Space to be leased changes by greater than ten percent (10%) or (y) the Economic Terms that Landlord is prepared to accept under a Third Party Lease are greater than six percent (6%) more favorable to the tenant than the Economic Terms offered by Landlord to Tenant (as such Economic Terms are adjusted to account for the difference, if any, in the lease term offered to Tenant and the lease term offered to such third party), then Landlord shall first make an offer of such more favorable Economic Terms (as such Economic Terms are adjusted to account for the difference, if any, in the lease term offered to Tenant and the lease term offered to such third party) (the “New Offer Terms”) to Tenant by written notice (the “Additional Notice”) setting forth the New Offer Terms, and Tenant shall have five (5) business days from Tenant’s receipt of the Additional Notice to accept the New Offer Terms set forth in the Additional Notice (which procedure shall be repeated until Landlord enters into a lease or lease amendment with respect to such First Offer Space which does not require Landlord to deliver another First Offer Notice to Tenant pursuant to the terms of this paragraph or Tenant exercises such right of first offer, as applicable). After the expiration of the 270-day period Landlord shall have no further liability to Tenant with respect to the subject First Offer Space.

1.2.3 Tenant’s Financial Condition. Following receipt of Tenant’s First Offer Exercise Notice, Landlord shall determine within five (5) business days thereafter whether, based on the financial condition of Tenant as evidenced in the provided Audited Financial Statements (“Tenant’s Financial Condition”), Landlord is willing to lease the First Offer Space to Tenant. If Landlord reasonably disapproves of Tenant’s Financial Condition, then Landlord shall be free to lease the space described in the First Offer Notice to anyone to whom Landlord desires on any terms Landlord desires; provided, however, that if Tenant can demonstrate that Tenant (i) has Net Cash of at least $250,000,000.00 and (ii) Tenant has achieved seventy percent (70%) of its projected 2017 revenue target of $954,737,000.00 (i.e., at least $668,315,900.00 in actual revenues), then Landlord shall be obligated to lease the First Offer Space to Tenant subject to the terms and conditions of this Section 1.2. As used herein, “Net Cash” shall mean total cash, cash equivalents and short-term investment securities less all indebtedness.

 

7


1.2.4 First Offer Space Rent. The annual “Rent,” as that term is defined in Section 4.1 of this Lease, payable by Tenant for the First Offer Space (the “First Offer Rent”) shall be equal to the “Market Rent,” as that term is defined in Exhibit F attached hereto, for the First Offer Space. In the event Tenant timely and appropriately exercises its option to extend the Lease but rejects the First Offer Rent set forth in the First Offer Notice pursuant to Section 1.2.2, above, then Landlord and Tenant shall attempt to agree upon the First Offer Rent using their best good-faith efforts. If Landlord and Tenant fail to reach agreement upon the First Offer Rent applicable to the First Offer Term on or before the date that is thirty (30) days after Tenant’s delivery of Tenant’s First Offer Exercise Notice (the “First Offer Rent Outside Agreement Date”), then the First Offer Rent shall be determined by arbitration pursuant to the terms of Section 2.2.4 below. Each party shall make a separate determination of the First Offer Rent, within five (5) business days following the First Offer Rent Outside Agreement Date, and such determinations shall be submitted to arbitration in accordance with Sections 2.2.4.1 through 2.2.4.4, below.

1.2.5 Construction in First Offer Space. Tenant shall take the First Offer Space in its “as is” condition, and Tenant’s construction of improvements in the First Offer Space shall comply with the terms of Article 8 of this Lease; provided, however, Landlord shall deliver the First Offer Space with the plumbing, electrical systems, fire sprinkler system, lighting, air conditioning and heating systems and all other Building systems serving the First Offer Space in good operating condition and repair and any failure of such systems to be in such condition on delivery shall not be a default under this Lease, but shall be promptly remedied by Landlord at Landlord’s sole cost and expense. Any improvement allowance to which Tenant may be entitled shall be as set forth in the First Offer Notice.

1.2.6 Amendment to Lease. If Tenant timely exercises Tenant’s right to lease the First Offer Space as set forth herein, then Landlord and Tenant shall within thirty (30) days thereafter execute an amendment to this Lease for such First Offer Space upon the terms and conditions as set forth in the First Offer Notice and this Section 1.2. Such amendment shall include Tenant’s obligation to rent additional parking passes at the ratio of one (1) unreserved parking pass for each 5,000 rentable square feet of the First Offer Space in accordance with the terms of Section 9 of the Summary and Article 28 below. Notwithstanding the foregoing, the failure of Landlord and Tenant to execute and deliver such First Offer Space amendment shall not affect an otherwise valid exercise of Tenant’s first offer rights or the parties’ rights and responsibilities in respect thereof. The rentable square footage of any First Offer Space leased by Tenant shall be reasonably determined by Landlord in accordance with the BOMA (as that term is defined in Section 1.4 below). Tenant shall commence payment of Rent for the First Offer Space, and the term of the First Offer Space (the “First Offer Term”) shall commence upon the earlier of (i) the date Tenant commences to conduct business from the First Offer Space and (ii) one hundred twenty (120) days after the date of Landlord’s delivery of the First Offer Space to Tenant in the condition required herein (the “First Offer Commencement Date”) and shall terminate coterminously with the end of the Lease Term.

1.2.7 Termination of Right of First Offer. The Right of First Offer shall be personal to the Original Tenant and any Permitted Transferee Assignee, and may only be exercised by the Original Tenant or such Permitted Transferee Assignee (and not any other assignee, sublessee or other transferee of Tenant’s interest in this Lease) if the Original Tenant or such Permitted Transferee Assignee is then in occupancy of at least sixty-six and 67/100ths percent (66.67%) of the rentable square footage of the initial Premises, Must-Take Premises, the Sublease Premises (as that term is defined in Section 23.4.3 below) and any previously leased First Offer Space, in the aggregate. The Right of First Offer granted herein shall terminate as to particular First Offer Space upon Tenant’s failure to timely exercise its Right of First Offer with respect to such particular First Offer Space or Tenant’s failure to provide Audited Financial Statements as required herein. Tenant shall not have the right to lease First Offer Space, as provided in this Section 1.2, if, as of the date of the attempted exercise of any right of first offer by Tenant, or, at Landlord’s option, as of the scheduled date of delivery of such First Offer Space to Tenant, Tenant is in Default under this Lease.

 

8


1.3 Temporary Premises. Subject to the terms hereof, prior to the Lease Commencement Date, Landlord shall, in consideration for Tenant’s entering into this Lease, grant Tenant the right to temporarily lease that certain portion of the Premises containing approximately 26,514 rentable square feet of space (the “Temporary Premises”), commonly known as Suite 500, located on the fifth floor of the Berry Street Building, as set forth more particularly on Exhibit A-2 attached hereto, for the conduct of Tenant’s business for the Permitted Use in accordance with the terms of the Lease only. The term of Tenant’s lease of the Temporary Premises (the “Temporary Premises Term”) shall commence upon the date upon which Landlord delivers the Temporary Premises to Tenant (the “Temporary Premises Commencement Date”), and shall terminate on May 31, 2016 (the “Temporary Premises Expiration Date”). Tenant’s possession of the Temporary Premises shall be subject to the terms and conditions of this Lease as though such Temporary Premises was the Premises, provided that (A) Tenant shall not be obligated to pay Base Rent with respect to the Temporary Premises (provided, that if Tenant holds over in the Temporary Premises beyond the Temporary Premises Expiration Date, then Base Rent shall be deemed to be an amount equal to $176,760.00 per month (i.e., $80.00 per rentable square foot annually), (B) Tenant shall not be required to pay Tenant’s Share of Operating Expenses with respect to the Temporary Premises (provided that Tenant shall be obligated to pay any other amounts of Additional Rent applicable to the Temporary Premises, including, without limitation, after-hours HVAC charges), (C) Tenant shall have no right to assign, sublease or otherwise transfer its interest with respect to the Temporary Premises other than a Permitted Transferee Assignee, (D) Tenant shall accept the Temporary Premises in its existing “as is” condition and Landlord shall have no obligation to provide or pay for improvements of any kind with respect to the Temporary Premises, (E) Tenant shall not make any alterations or improvements to the Temporary Premises or any portion thereof, without Landlord’s prior written approval, which approval shall not be unreasonably withheld, conditioned or delayed, and (F) the terms of the Tenant Work Letter shall be inapplicable to the Temporary Premises. Landlord shall deliver the Temporary Premises with the plumbing, electrical systems, fire sprinkler system, lighting, air conditioning and heating systems and all other Building systems serving the Temporary Premises in good operating condition and repair and any failure of such systems to be in such condition on delivery shall not be a default under this Lease, but shall be promptly remedied by Landlord at Landlord’s sole cost and expense. In addition, the Temporary Premises shall be delivered with the existing cabling in place, provided Landlord shall have no liability whatsoever for the condition of the existing cabling and Landlord makes no warranties as to the suitability of the existing cabling to serve Tenant’s requirements. On or before the Temporary Premises Expiration Date, Tenant shall quit and surrender possession of the Temporary Premises to Landlord in as good order and condition as when Tenant took possession and as thereafter improved by Landlord, except to the extent of (x) reasonable wear and tear, (y) damage by fire or other casualty that is not Tenant’s obligation to repair hereunder, or (z) repairs which are specifically made the responsibility of Landlord hereunder. Upon such expiration or termination, Tenant shall, without expense to Landlord, remove or cause to be removed from the Temporary Premises all debris, rubbish, phone systems, Lines (as that term is defined in Section 29.32 below) installed by Tenant, and such items of furniture, equipment, business and trade fixtures, free-standing cabinet work, movable partitions and other articles of personal property owned by Tenant or installed or placed by Tenant at its expense in the Temporary Premises, and such similar articles of any other persons claiming under Tenant, as Landlord may, in its reasonable discretion, require to be removed, and Tenant shall repair at its own expense all damage to the Temporary Premises and Building resulting from such removal. If Tenant fails to vacate and surrender the Temporary Premises to Landlord on or before the Temporary Premises Expiration Date, Tenant shall be deemed to be holding over in such Temporary Premises and shall be subject to the terms of Article 16 of this Lease; provided, however, nothing contained herein shall be construed as consent by Landlord to any holding over by Tenant in the Temporary Premises, and Landlord expressly reserves the right to require Tenant to surrender possession of the Temporary Premises to Landlord as provided in this Lease upon the terms and conditions set forth in this Lease.

1.4 Stipulation of Rentable Square Feet of Premises and Building. For purposes of this Lease, “rentable square feet” of the initial Premises, the Must-Take Premises, the Temporary Premises and the Building shall be deemed as set forth in this Lease above, which shall be final and binding, and Landlord and Tenant hereby acknowledge that the foregoing was calculated pursuant to Standard Method of Measuring Floor Area in Office Buildings, ANSI Z65.1 – 1996 and its accompanying guidelines (“BOMA”), as promulgated by the Building Owners and Managers Association. The rentable square footage of the initial Premises, the Must-Take Premises and the Building shall not be adjusted during the Lease Term unless the size of the Project is increased or decreased.

 

9


ARTICLE 2

LEASE TERM

2.1 In General. The terms and provisions of this Lease shall be effective as of the date of this Lease. The term of this Lease (the “Lease Term”) shall be as set forth in Section 3.1 of the Summary, shall commence separately for each of the initial Premises and the Must-Take Premises on the dates set forth in Section 3.2 and 3.3 of the Summary (the “Lease Commencement Date” and the “Must-Take Premises Lease Commencement Date”, respectively), and shall terminate on the date set forth in Section 3.3 of the Summary (the “Lease Expiration Date”) unless this Lease is sooner terminated as hereinafter provided. Tenant hereby acknowledges that the Must-Take Premises is currently occupied by another tenant of the Building. If Landlord is unable for any reason to deliver possession of the Must-Take Premises to Tenant on any specific date, then Landlord shall not be subject to any liability for its failure to do so, and such failure shall not affect the validity of this Lease or the obligations of Tenant hereunder. For purposes of this Lease, the term “Lease Year” shall mean each consecutive twelve (12) month period during the Lease Term; provided, however, that the first Lease Year shall commence on the Lease Commencement Date and end on the last day of the twelfth (12th) month thereafter and the second and each succeeding Lease Year shall commence on the first day of the next calendar month; and further provided that the last Lease Year shall end on the Lease Expiration Date. At any time during the Lease Term, Landlord may deliver to Tenant a notice in the form as set forth in Exhibit C, attached hereto, as a confirmation only of the information set forth therein, which Tenant shall execute and return to Landlord within five (5) business days of receipt thereof.

2.2 Option Term.

2.2.1 Option Right. Landlord hereby grants to the originally named Tenant herein (the “Original Tenant”) and any Permitted Transferee Assignee, one (1) option to extend the Lease Term for a period of five (5) years (the “Option Term”). The option to extend shall be exercisable only by notice delivered by Tenant to Landlord as provided in Section 2.2.3, below, provided that, as of the date of delivery of such notice, Tenant is not in Default under this Lease. Upon the proper exercise of the option to extend, and provided that, at Landlord’s option, as of the end of the initial Lease Term, Tenant is not in Default under this Lease, the Lease Term shall be extended for a period of five (5) years. The rights contained in this Section 2.2 shall be personal to the Original Tenant and any Permitted Transferee Assignee and may only be exercised by the Original Tenant or a Permitted Transferee Assignee (and not any other assignee or sublessee or transferee of Tenant’s interest in this Lease) if the Original Tenant or a Permitted Transferee Assignee, as applicable, occupies at least sixty-six and 67/100ths percent (66.67%) of the rentable square footage of the Premises. In the event that Tenant fails to timely and appropriately exercise its option to extend in accordance with the terms of this Section 2.2, then the option to extend granted to Tenant pursuant to the terms of this Section 2.2 shall automatically terminate and shall be of no further force or effect.

2.2.2 Option Rent. The Rent payable by Tenant during the Option Term (the “Option Rent”) shall be equal to the Market Rent, as that term is defined in Exhibit F, attached hereto, as such Market Rent is determined pursuant to Exhibit F, attached hereto. The calculation of the Market Rent shall be derived from a review of, and comparison to, the “Net Equivalent Lease Rates” of the “Comparable Transactions,” as provided for in Exhibit F, and, thereafter, the Market Rent shall be stated as a Net Equivalent Lease Rate for the Option Term.

2.2.3 Exercise of Option. The option contained in this Section 2.2 shall be exercised by Tenant, if at all, and only in the following manner: (i) Tenant shall deliver written notice (the “Option Interest Notice”) to Landlord not more than fifteen (15) months nor less than fourteen (14) months prior to the expiration of the initial Lease Term, stating that Tenant is interested in exercising its option; (ii) Landlord shall, within thirty (30) days following Landlord’s receipt of the Option Interest Notice, deliver notice (the “Option Rent Notice”) to Tenant setting forth Landlord’s determination of the Option Rent; and (iii) not less than twelve (12) months prior to the expiration of the initial Lease Term (assuming Landlord timely delivered the Option Rent Notice to Tenant) Tenant shall either (a) deliver written notice thereof

 

10


to Landlord electing to exercise such option (the “Option Exercise Notice”), and upon, and concurrent with, such delivery of the Option Exercise Notice, Tenant may, at its option, accept or reject the Option Rent set forth in the Option Rent Notice or (b) deliver written notice thereof to Landlord electing to rescind delivery of the Option Interest Notice; provided, however, that if Tenant fails to rescind delivery of the Option Interest Notice, such failure shall be deemed Tenant’s election not to exercise the option to renew. If Tenant delivers the Option Exercise Notice, but fails to accept or reject the Option Rent set forth in the Option Rent Notice, then Tenant shall be deemed to have accepted the Option Rent set forth in the Option Rent Notice.

2.2.4 Determination of Option Rent. In the event Tenant timely and appropriately exercises its option to extend the Lease but rejects the Option Rent set forth in the Option Rent Notice pursuant to Section 2.2.3, above, then Landlord and Tenant shall attempt to agree upon the Option Rent using their best good-faith efforts. If Landlord and Tenant fail to reach agreement upon the Option Rent applicable to the Option Term on or before the date that is ninety (90) days prior to the expiration of the initial Lease Term (the “Option Rent Outside Agreement Date”), then the Option Rent shall be determined by arbitration pursuant to the terms of this Section 2.2.4. Each party shall make a separate determination of the Option Rent within five (5) business days following the Option Rent Outside Agreement Date, and such determinations shall be submitted to arbitration in accordance with Sections 2.2.4.1 through 2.2.4.4, below.

2.2.4.1 Landlord and Tenant shall each appoint one arbitrator who shall by profession be a MAI appraiser or real estate broker who shall have been active over the five (5) year period ending on the date of such appointment in the appraising and/or leasing of first class office properties in the vicinity of the Building. The determination of the arbitrators shall be limited solely to the issue area of whether Landlord’s or Tenant’s submitted Option Rent is the closest to the actual Option Rent as determined by the arbitrators, taking into account the requirements of Section 2.2.2 of this Lease. Each such arbitrator shall be appointed within fifteen (15) days after the Option Rent Outside Agreement Date or First Offer Rent Outside Agreement Date, as applicable. Landlord and Tenant may consult with their selected arbitrators prior to appointment and may select an arbitrator who is favorable to their respective positions (including an arbitrator who has previously represented Landlord and/or Tenant, as applicable). The arbitrators so selected by Landlord and Tenant shall be deemed “Advocate Arbitrators.”

2.2.4.2 The two Advocate Arbitrators so appointed shall be specifically required pursuant to an engagement letter within ten (10) days of the date of the appointment of the last appointed Advocate Arbitrator to agree upon and appoint a third arbitrator (“Neutral Arbitrator”) who shall be qualified under the same criteria set forth hereinabove for qualification of the two Advocate Arbitrators except that (i) neither the Landlord or Tenant or either parties’ Advocate Arbitrator may, directly or indirectly, consult with the Neutral Arbitrator prior or subsequent to his or her appearance, and (ii) the Neutral Arbitrator cannot be someone who has represented Landlord and/or Tenant during the five (5) year period prior to such appointment. The Neutral Arbitrator shall be retained via an engagement letter jointly prepared by Landlord’s counsel and Tenant’s counsel.

2.2.4.3 Within seven (7) business days following the appointment of the Arbitrator, Landlord and Tenant shall enter into an arbitration agreement (the “Arbitration Agreement”) which shall set forth the following:

(i) Each of Landlord’s and Tenant’s best and final and binding determination of the Option Rent exchanged by the parties pursuant to Section 2.2.4, above;

(ii) An agreement to be signed by the Neutral Arbitrator, the form of which agreement shall be attached as an exhibit to the Arbitration Agreement, whereby the Neutral Arbitrator shall agree to undertake the arbitration and render a decision in accordance with the terms of this Lease, as modified by the Arbitration Agreement, and shall require the Neutral Arbitrator to demonstrate to the reasonable satisfaction of the parties that the Neutral Arbitrator has no conflicts of interest with either Landlord or Tenant;

(iii) Instructions to be followed by the Neutral Arbitrator when conducting such arbitration;

 

11


(iv) That Landlord and Tenant shall each have the right to submit to the Neutral Arbitrator (with a copy to the other party), on or before the date that occurs fifteen (15) days following the appointment of the Neutral Arbitrator, an advocate statement (and any other information such party deems relevant) prepared by or on behalf of Landlord or Tenant, as the case may be, in support of Landlord’s or Tenant’s respective determination of Option Rent (the “Briefs”);

(v) That within five (5) business days following the exchange of Briefs, Landlord and Tenant shall each have the right to provide the Neutral Arbitrator (with a copy to the other party) with a written rebuttal to the other party’s Brief (the “First Rebuttals”); provided, however, such First Rebuttals shall be limited to the facts and arguments raised in the other party’s Brief and shall identify clearly which argument or fact of the other party’s Brief is intended to be rebutted;

(vi) That within five (5) business days following the parties’ receipt of each other’s First Rebuttal, Landlord and Tenant, as applicable, shall each have the right to provide the Neutral Arbitrator (with a copy to the other party) with a written rebuttal to the other party’s First Rebuttal (the “Second Rebuttals”); provided, however, such Second Rebuttals shall be limited to the facts and arguments raised in the other party’s First Rebuttal and shall identify clearly which argument or fact of the other party’s First Rebuttal is intended to be rebutted;

(vii) The date, time and location of the arbitration (which location shall be in the City of San Francisco), which shall be mutually and reasonably agreed upon by Landlord and Tenant, taking into consideration the schedules of the Neutral Arbitrator, the Advocate Arbitrators, Landlord and Tenant, and each party’s applicable consultants, which date shall in any event be within forty-five (45) days following the appointment of the Neutral Arbitrator;

(viii) That no discovery shall take place in connection with the arbitration, other than to verify the factual information that is presented by Landlord or Tenant;

(ix) That the Neutral Arbitrator shall not be allowed to undertake an independent investigation or consider any factual information other than presented by Landlord or Tenant, except that the Neutral Arbitrator shall be permitted to visit the Project and the Comparable Buildings (as defined in Exhibit F);

(x) The specific persons that shall be allowed to attend the arbitration;

(xi) Tenant shall have the right to present oral arguments to the Neutral Arbitrator at the arbitration for a period of time not to exceed three (3) hours (“Tenant’s Initial Statement”);

(xii) Following Tenant’s Initial Statement, Landlord shall have the right to present oral arguments to the Neutral Arbitrator at the arbitration for a period of time not to exceed three (3) hours (“Landlord’s Initial Statement”);

(xiii) Following Landlord’s Initial Statement, Tenant shall have up to two (2) additional hours to present additional arguments and/or to rebut the arguments of Landlord (“Tenant’s Rebuttal Statement”);

(xiv) Following Tenant’s Rebuttal Statement, Landlord shall have up to two (2) additional hours to present additional arguments and/or to rebut the arguments of Tenant;

(xv) That, not later than ten (10) days after the date of the arbitration, the Neutral Arbitrator shall render a decision (the “Ruling”) indicating whether Landlord’s or Tenant’s submitted Option Rent is closer to the Market Rent;

(xvi) That following notification of the Ruling, Landlord’s or Tenant’s submitted Option Rent determination, whichever is selected by the Neutral Arbitrator as being closer to the Option Rent shall become the then applicable Market Rent; and

 

12


(xvii) That the decision of the Neutral Arbitrator shall be binding on Landlord and Tenant.

If a date by which an event described in Section 2.2.4.3, above, is to occur falls on a weekend or a holiday, the date shall be deemed to be the next business day.

2.2.4.4 In the event that the Option Rent (or First Offer Rent, as applicable) shall not have been determined pursuant to the terms hereof prior to the commencement of the Option Term (or First Offer Term, as applicable), Tenant shall be required to pay, as applicable (i) Option Rent in an amount equal to the amount due with respect to the Premises immediately prior to the commencement of the Option Term, with Base Rent increased by three percent (3%) or (ii) First Offer Rent in an amount equal to the Rent (on a per rentable square foot basis) then applicable to the lease of the original Premises, and upon the final determination of the Option Rent (or First Offer Rent, as applicable), the payments made by Tenant shall be reconciled with the actual amounts due, and the appropriate party shall make any corresponding payment to the other party.

ARTICLE 3

BASE RENT

3.1 In General. Tenant shall pay, without prior notice or demand, to Landlord or Landlord’s agent at the Rent payment address set forth in Section 11 of the Summary, or, at Landlord’s option, at such other place as Landlord may from time to time designate in writing, by a check for currency which, at the time of payment, is legal tender for private or public debts in the United States of America, base rent (“Base Rent”) as set forth in Section 4 of the Summary, payable in equal monthly installments as set forth in Section 4 of the Summary in advance on or before the first day of each and every calendar month during the Lease Term, without any setoff or deduction whatsoever. Tenant shall be permitted to pay all amounts due hereunder by electronic funds transfer, and Landlord shall cooperate with Tenant, if necessary to establish that manner of payment by Tenant. The Base Rent for the first full month of the Lease Term which occurs after the expiration of the Base Rent abatement set forth in Section 3.2 below shall be paid at the time of Tenant’s execution of this Lease. If any Rent payment date (including the Lease Commencement Date) falls on a day of the month other than the first day of such month or if any payment of Rent is for a period which is shorter than one month, the Rent for any fractional month shall accrue on a daily basis for the period from the date such payment is due to the end of such calendar month or to the end of the Lease Term at a rate per day which is equal to 1/365 of the applicable annual Rent. All other payments or adjustments required to be made under the terms of this Lease that require proration on a time basis shall be prorated on the same basis.

3.2 Base Rent Abatement. Provided that Tenant is not then in Default of this Lease, then Tenant shall have no obligation to pay the Base Rent otherwise attributable to (i) the portion of the initial Premises commonly known as Suite 500, containing approximately 26,514 rentable square feet of space during the first two (2) full calendar months of the initial Lease Term, (ii) the entire initial Premises during the third (3rd) through seventh (7th) full calendar months of the initial Lease Term, (iii) the Must-Take Premises during the first (1st) through fourth (4th) full calendar months of the initial Lease Term following the Must-Take Premises Lease Commencement Date, and (iv) the initial Premises and the Must-Take Premises during the twenty-fifth (25th) full calendar month of the initial Lease Term. Landlord and Tenant acknowledge that the total amount of the abatement of Base Rent under subsection (i) above equals $353,520.00 (i.e., $176,760.00 per month), the total amount of the abatement of Base Rent under subsection (ii) above equals $1,743,233.35 (i.e., $348,646.67 per month), the total amount of the abatement of Base Rent under subsection (iii) above equals $1,137,944.00 (i.e., $284,486.00 per month), and the total amount of the abatement of Base Rent under subsection (iv) above equals $662,899.83.

 

13


ARTICLE 4

ADDITIONAL RENT

4.1 General Terms. In addition to paying the Base Rent specified in Article 3 of this Lease, Tenant shall pay “Tenant’s Share” of the annual “Direct Expenses,” as those terms are defined in Sections 4.2.6 and 4.2.2 of this Lease, respectively, which are in excess of the amount of Direct Expenses applicable to the “Base Year,” as that term is defined in Section 4.2.1, below; provided, however, that in no event shall any decrease in Direct Expenses for any “Expense Year,” as that term is defined in Section 4.2.3 below, below Direct Expenses for the Base Year entitle Tenant to any decrease in Base Rent or any credit against sums due under this Lease. Such payments by Tenant, together with any and all other amounts payable by Tenant to Landlord pursuant to the terms of this Lease, are hereinafter collectively referred to as the “Additional Rent”, and the Base Rent and the Additional Rent are herein collectively referred to as “Rent.” All amounts due under this Article 4 as Additional Rent shall be payable for the same periods and in the same manner as the Base Rent. Without limitation on other obligations of Tenant which survive the expiration of the Lease Term, the obligations of Tenant to pay the Additional Rent and of Landlord to reconcile and reimburse Tenant for over payments of Additional Rent provided for in this Article 4 shall survive the expiration of the Lease Term.

4.2 Definitions of Key Terms Relating to Additional Rent. As used in this Article 4, the following terms shall have the meanings hereinafter set forth:

4.2.1 “Base Year” shall mean the period set forth in Section 5 of the Summary.

4.2.2 “Direct Expenses” shall mean “Operating Expenses” and “Tax Expenses.”

4.2.3 “Expense Year” shall mean each calendar year in which any portion of the Lease Term falls, through and including the calendar year in which the Lease Term expires, provided that Landlord, upon notice to Tenant, may change the Expense Year from time to time to any other twelve (12) consecutive month period, and, in the event of any such change, Tenant’s Share of Direct Expenses shall be equitably adjusted for any Expense Year involved in any such change.

4.2.1 “Operating Expenses” shall mean all expenses, costs and amounts of every kind and nature which Landlord pays or accrues during any Expense Year because of or in connection with the ownership, management, maintenance, security, repair, replacement, restoration or operation of the Project, or any portion thereof. Without limiting the generality of the foregoing, Operating Expenses shall specifically include any and all of the following: (i) the cost of supplying all utilities (but excluding the cost of electricity consumed in the Premises and the premises of other tenants of the Project (as opposed to the Common Areas) since Tenant is separately paying for the cost of electricity services pursuant to Section 6.1.2 of the Lease), the cost of operating, repairing, maintaining, and renovating the utility, telephone, mechanical, sanitary, storm drainage, and elevator systems, and the cost of maintenance and service contracts in connection therewith; (ii) the cost of licenses, certificates, permits and inspections and the cost of contesting any governmental enactments which may affect Operating Expenses, and the costs incurred in connection with a transportation system management program or similar program; (iii) subject to exclusion (u) below, the cost of all insurance carried by Landlord in connection with the Project; (iv) the cost of landscaping, relamping, and all supplies, tools, equipment and materials used in the operation, repair and maintenance of the Project, or any portion thereof; (v) costs incurred in connection with the parking areas servicing the Project; (vi) subject to the Management Fee Cap, fees and other costs, including management fees, consulting fees, legal fees and accounting fees, of all contractors and consultants in connection with the management, operation, maintenance and repair of the Project; (vii) payments under any equipment rental agreements and the fair rental value of any management office space (provided, that if the personnel in such management office perform management duties for properties other than the Project, such fair rental value shall be allocated equitably between the Project and such other properties); (viii) wages, salaries and other compensation and benefits but not fringe benefits, including taxes levied thereon, of all persons engaged in the operation, management, maintenance and security of the Project; (ix) costs under any instrument pertaining to the sharing of costs by the Project; (x) operation, repair, maintenance and replacement of all systems and equipment and components thereof of the Building; (xi) the cost of janitorial (but excluding the cost of providing janitorial service to the Premises and the premises of other tenants of the Project (as opposed to the Common Areas) since Tenant is separately paying for the cost of providing janitorial services to the Premises pursuant to Section 6.1.4 of this Lease), alarm, security and other services, replacement of wall and floor coverings, ceiling tiles and fixtures in common areas, maintenance and replacement of curbs and walkways, exterior windows and

 

14


walls, repair to roofs and re-roofing, waterproofing and sealing of garage, foundation and basement areas; (xii) amortization (including interest on the unamortized cost) of the cost of acquiring or the rental expense of personal property used in the maintenance, operation and repair of the Project, or any portion thereof; (xiii) the cost of capital improvements or other costs incurred in connection with the Project (A) which are reasonably anticipated to reduce Operating Expenses, (B) that are required to comply with present or anticipated conservation programs, (C) which are replacements or modifications of nonstructural items located in the Common Areas required to keep the Common Areas in good order or condition, (D) that are required under any governmental law or regulation first enacted or enforced against the Project following the Effective Date or (E) that relate to the safety or security of the Project, its occupant and visitors, and are deemed advisable in the reasonable judgment of Landlord (the items described in clauses (A) through (E) being referred to herein as “Permitted Capital Expenditures”); provided, however, that any Permitted Capital Expenditure shall be amortized with reasonable interest over its useful life as Landlord shall reasonably determine; (xiv) costs, fees, charges or assessments imposed by, or resulting from any mandate imposed on Landlord by, any federal, state or local government for fire and police protection, trash removal, community services, or other services which do not constitute “Tax Expenses” as that term is defined in Section 4.2.5, below; and (xv) payments under any easement, license, operating agreement, declaration, restrictive covenant, or instrument pertaining to the sharing of costs by the Project. Notwithstanding the foregoing, for purposes of this Lease, Operating Expenses shall not, however, include:

(a) costs, including marketing costs, legal fees, space planners’ fees, advertising and promotional expenses, and brokerage fees incurred in connection with the original construction or development, or original or future leasing of the Project, and costs, including permit, license and inspection costs, incurred with respect to the installation of tenant improvements made for new tenants initially occupying space in the Project after the Lease Commencement Date or incurred in renovating or otherwise improving, decorating, painting or redecorating vacant space for tenants or other occupants of the Project (excluding, however, such costs relating to any common areas of the Project or parking facilities);

(b) except as set forth in items (xii), (xiii), and (xiv) above, depreciation, interest and principal payments on mortgages and other debt costs, if any, penalties and interest, costs of capital repairs and capital alterations (including, without limitation, capital repairs and capital alterations in connection with damage caused by earthquake or other casualty), and costs of capital improvements and equipment;

(c) costs for which the Landlord is reimbursed by any tenant or occupant of the Project or by insurance by its carrier or any tenant’s carrier or is actually reimbursed by anyone else, and electric power costs for which any tenant directly contracts with the local public service company;

(d) any bad debt loss, rent loss, or reserves for bad debts or rent loss;

(e) costs associated with the operation of the business of the partnership or entity which constitutes the Landlord, as the same are distinguished from the costs of operation of the Project (which shall specifically include, but not be limited to, accounting costs associated with the operation of the Project). Costs associated with the operation of the business of the partnership or entity which constitutes the Landlord include costs of partnership accounting and legal matters, costs of defending any lawsuits with any mortgagee (except as the actions of the Tenant may be in issue), costs of selling, syndicating, financing, mortgaging or hypothecating any of the Landlord’s interest in the Project, and costs incurred in connection with any disputes between Landlord and its employees, between Landlord and Project management, or between Landlord and other tenants or occupants, and Landlord’s general corporate overhead and general and administrative expenses;

(f) the wages and benefits of any employee who does not devote substantially all of his or her employed time to the Project unless such wages and benefits are prorated to reflect time spent on operating and managing the Project vis-a-vis time spent on matters unrelated to operating and managing the Project; provided, that in no event shall Operating Expenses for purposes of this Lease include wages and/or benefits attributable to Building management personnel above the level of the on-site property manager or equivalent;

 

15


(g) amount paid as ground rental for the Project by the Landlord;

(h) except for a Project management fee to the extent allowed pursuant to item (l), below, overhead and profit increment paid to the Landlord or to subsidiaries or affiliates of the Landlord for services in the Project to the extent the same exceeds the costs of such services rendered by qualified, first-class unaffiliated third parties on a competitive basis;

(i) any compensation paid to clerks, attendants or other persons in commercial concessions operated by the Landlord, provided that any compensation paid to any concierge at the Project shall be includable as an Operating Expense;

(j) rentals and other related expenses incurred in leasing air conditioning systems, elevators or other equipment which if purchased the cost of which would be excluded from Operating Expenses as a capital cost, except equipment not affixed to the Project which is used in providing janitorial or similar services and, further excepting from this exclusion such equipment rented or leased to remedy or ameliorate an emergency condition in the Project;

(k) all items and services for which Tenant or any other tenant in the Project reimburses Landlord or which Landlord provides selectively to one or more tenants (other than Tenant) without reimbursement;

(l) any costs expressly excluded from Operating Expenses elsewhere in this Lease;

(m) rent for any office space occupied by Project management personnel to the extent the size or rental rate of such office space exceeds the size or fair market rental value of office space occupied by management personnel of the Comparable Buildings in the vicinity of the Building, with adjustment where appropriate for the size of the applicable project;

(n) costs incurred to comply with Applicable Laws relating to the removal of hazardous material (as defined under Applicable Laws) which was in existence in the Building or on the Project prior to the Lease Commencement Date, and was of such a nature that a federal, State or municipal governmental authority, if it had then had knowledge of the presence of such hazardous material, in the state, and under the conditions that it then existed in the Building or on the Project, would have then required the removal of such hazardous material or other remedial or containment action with respect thereto; and costs incurred to remove, remedy, contain, or treat hazardous material, which hazardous material is brought into the Building or onto the Project after the date hereof by Landlord or any other tenant of the Project and is of such a nature, at that time, that a federal, State or municipal governmental authority, if it had then had knowledge of the presence of such hazardous material, in the state, and under the conditions, that it then exists in the Building or on the Project, would have then required the removal of such hazardous material or other remedial or containment action with respect thereto;

(o) costs arising from Landlord’s charitable or political contributions;

(p) any gifts provided to any entity whatsoever, including, but not limited to, Tenant, other tenants, employees, vendors, contractors, prospective tenants and agents;

(q) the cost of any magazine, newspaper, trade or other subscriptions;

(r) fees payable by Landlord for management of the Project in excess of three percent (3%) (the “Management Fee Cap”) of Landlord’s Gross Rental Revenues, adjusted and grossed up to reflect a one hundred percent (100%) occupancy of the Project with all tenants paying rent, including base rent, pass-throughs, and parking fees (but excluding the cost of after-hours services or utilities not paid for directly by

 

16


Tenant or any other tenant (s) from the Project for any calendar year or portion thereof (“Gross Rental Revenues” shall mean the aggregate of (A) the annual base rentals for all tenants, and (B) other income from the use or occupancy of the Project; further, if Landlord agrees to permit any tenant to “buyout” its lease obligation in exchange for either a lump sum or some other accelerated payment to Landlord, for purposes of calculating Gross Rental Revenues, any such payment shall be spread proportionately over the number of years which the terminated lease would otherwise have continued);

(s) costs arising from the gross negligence or willful misconduct of Landlord or its agents, employees, vendors, contractors, or providers of materials or services;

(t) costs of acquisition (as opposed to repair and maintenance) of sculpture, paintings, and other objects of art;

(u) amounts incurred as a result of damage caused by earthquakes, to the extent (i) in excess of $1.25 per rentable square foot of the Project in any year, (ii) not includable in Operating Expenses as a permitted capital expenditure, and (iii) not required by applicable laws; and

(v) the entertainment expenses and travel expenses of Landlord, its employees, agents, partners and affiliates.

If Landlord is not furnishing any particular work or service (the cost of which, if performed by Landlord, would be included in Operating Expenses) to a tenant who has undertaken to perform such work or service in lieu of the performance thereof by Landlord, Operating Expenses shall be deemed to be increased by an amount equal to the additional Operating Expenses which would reasonably have been incurred during such period by Landlord if it had at its own expense furnished such work or service to such tenant. If the Project is not at least ninety-five percent (95%) occupied during all or a portion of the Base Year or any Expense Year, Landlord may elect to make an appropriate adjustment to the components of Operating Expenses for such year to determine the amount of Operating Expenses that would have been incurred had the Project been ninety-five percent (95%) occupied; and the amount so determined shall be deemed to have been the amount of Operating Expenses for such year. Operating Expenses for the Base Year shall include market-wide labor-rate increases due to extraordinary circumstances, including, but not limited to, boycotts and strikes, and utility rate increases due to extraordinary circumstances including, but not limited to, conservation surcharges, boycotts, embargoes or other shortages, or amortized costs relating to improvements; provided, however, that commencing with the first (1st) calendar year in which such particular increases or costs are no longer included in Operating Expenses, such particular increases or costs shall be excluded from the Base Year calculation of Operating Expenses. Except as set forth in the following sentence, in no event shall the components of Direct Expenses for any Expense Year related to utilities, security or insurance costs be less than the components of Direct Expenses related to utilities, security or insurance, costs, respectively, in the Base Year. Only as provided hereinafter, in the event Landlord incurs costs or expenses for any insurance premium resulting from any new forms or types of insurance, including earthquake insurance, which were not part of Operating Expenses during the entire Base Year, Operating Expenses for the Base Year shall be deemed increased by the amounts Landlord would have incurred during the Base Year with respect to such costs and expenses had such new form or type of insurance been included in Operating Expenses during the entire Base Year. In the event that the earthquake insurance premium (or any other insurance premium) applicable to the Building shall decrease in any Expense Year subsequent to the Base Year, Operating Expenses attributable to the Base Year shall, commencing in the year of such decrease, but only so long as and to the extent such decrease remains in effect, thereafter be reduced by the amount of such decrease in earthquake insurance premiums (or any other insurance premium).

4.2.2 Taxes.

4.2.2.1 “Tax Expenses” shall mean all federal, state, county, or local governmental or municipal taxes, fees, charges or other impositions of every kind and nature, whether general, special, ordinary or extraordinary, (including, without limitation, real estate taxes, general and special assessments, transit taxes, leasehold taxes or taxes based upon the receipt of rent, including gross receipts or sales taxes applicable to the receipt of rent, unless

 

17


required to be paid by Tenant, personal property taxes imposed upon the fixtures, machinery, equipment, apparatus, systems and equipment, appurtenances, furniture and other personal property used in connection with the Project, or any portion thereof), which shall be paid or accrued during any Expense Year (without regard to any different fiscal year used by such governmental or municipal authority) because of or in connection with the ownership, leasing and operation of the Project, or any portion thereof.

4.2.2.2 Tax Expenses shall include, without limitation: (i) Any tax on the rent, right to rent or other income from the Project, or any portion thereof, or as against the business of leasing the Project, or any portion thereof; (ii) Any assessment, tax, fee, levy or charge in addition to, or in substitution, partially or totally, of any assessment, tax, fee, levy or charge previously included within the definition of real property tax, it being acknowledged by Tenant and Landlord that Proposition 13 was adopted by the voters of the State of California in the June 1978 election (“Proposition 13”) and that assessments, taxes, fees, levies and charges may be imposed by governmental agencies for such services as fire protection, street, sidewalk and road maintenance, refuse removal and for other governmental services formerly provided without charge to property owners or occupants, and, in further recognition of the decrease in the level and quality of governmental services and amenities as a result of Proposition 13, Tax Expenses shall also include any governmental or private assessments or the Project’s contribution towards a governmental or private cost-sharing agreement for the purpose of augmenting or improving the quality of services and amenities normally provided by governmental agencies; (iii) Any assessment, tax, fee, levy, or charge allocable to or measured by the area of the Premises or the Rent payable hereunder, including, without limitation, any business or gross income tax or excise tax with respect to the receipt of such rent, or upon or with respect to the possession, leasing, operating, management, maintenance, alteration, repair, use or occupancy by Tenant of the Premises, or any portion thereof; and (iv) Any assessment, tax, fee, levy or charge, upon this transaction or any document to which Tenant is a party, creating or transferring an interest or an estate in the Premises.

4.2.2.3 Any costs and expenses (including, without limitation, reasonable attorneys’ fees) incurred in attempting to protest, reduce or minimize Tax Expenses shall be included in Tax Expenses in the Expense Year such expenses are paid. Tax refunds shall be credited against Tax Expenses and refunded to Tenant regardless of when received, based on the Expense Year to which the refund is applicable, provided that in no event shall the amount to be refunded to Tenant for any such Expense Year exceed the total amount paid by Tenant as Additional Rent under this Article 4 for such Expense Year. If Tax Expenses for any period during the Lease Term or any extension thereof are increased after payment thereof for any reason, including, without limitation, error or reassessment by applicable governmental or municipal authorities, Tenant shall pay Landlord upon demand Tenant’s Share of any such increased Tax Expenses included by Landlord as Tax Expenses pursuant to the terms of this Lease. Notwithstanding anything to the contrary contained in this Section 4.2.5.3 (except as set forth in Section 4.2.5.1, above), there shall be excluded from Tax Expenses (i) all excess profits taxes, franchise taxes, gift taxes, capital stock taxes, inheritance and succession taxes, estate taxes, federal and state income taxes, and other taxes to the extent applicable to Landlord’s general or net income (as opposed to rents, receipts or income attributable to operations at the Project), (ii) any items included as Operating Expenses, and (iii) any items paid by Tenant under Section 4.5 of this Lease, and any amounts payable by other Project occupants pursuant to provisions of their leases which are similar to Section 4.5 of this Lease.

4.2.2.4 The amount of Tax Expenses for the Base Year attributable to the valuation of the Project, inclusive of tenant improvements, shall be known as “Base Taxes”. If in any comparison year subsequent to the Base Year, the amount of Tax Expenses decreases below the amount of Base Taxes, then for purposes of all subsequent comparison years, including the comparison year in which such decrease in Tax Expenses occurred, the Base Taxes, and therefore the Base Year, shall be decreased by an amount equal to the decrease in Tax Expenses.

4.2.3 “Tenant’s Share” shall mean the percentage set forth in Section 6 of the Summary.

 

18


4.3 Allocation of Direct Expenses.

4.3.1 Method of Allocation. The parties acknowledge that each Building is a part of a multi-building project and that the costs and expenses incurred in connection with the Project (i.e., the Direct Expenses) are an aggregate of the Building and other buildings in the Project.

4.3.2 Cost Pools. Landlord shall have the right, from time to time, to equitably allocate some or all of the Direct Expenses for the Project among different portions or occupants of the Project (the “Cost Pools”), in Landlord’s reasonable discretion. Such Cost Pools may include, but shall not be limited to, (i) the office space tenants of the Project (or of a building of the Project),, and the retail space tenants of the Project (or of a building of the Project), and (ii) the tenants of the remainder of the Project (or of a building of the Project) and the tenants of the Berry Street building addition (consisting of the two level structure constructed on top of the original Berry Street building, and which addition comprises approximately 169,740 rentable square feet). The Direct Expenses within each such Cost Pool shall be allocated and charged to the tenants as determined by Landlord in accordance with sound real estate management principles.

4.4 Calculation and Payment of Additional Rent. If for any Expense Year ending or commencing within the Lease Term, Tenant’s Share of Direct Expenses for such Expense Year exceeds Tenant’s Share of Direct Expenses applicable to the Base Year, then Tenant shall pay to Landlord, in the manner set forth in Section 4.4.1, below, and as Additional Rent, an amount equal to the excess (the “Excess”).

4.4.1 Statement of Actual Direct Expenses and Payment by Tenant. Landlord shall endeavor to give to Tenant following the end of each Expense Year, a statement (the “Statement”) which shall state the Direct Expenses incurred or accrued for such preceding Expense Year, and which shall indicate the amount of the Excess; such Statement shall be set forth in reasonable detail, and shall include major categories and subcategories of costs, as reasonably determined by Landlord and consistent with the practices of landlords of Comparable Buildings and more specifically, shall contain a line-item breakdown showing at least the following major categories and subcategories of costs:

(i) maintenance and repairs (cleaning; security; elevators; supplies; waste removal; heating, ventilation and air conditioning);

(ii) landscaping;

(iii) utilities (electricity; gas; and water and sewer);

(iv) insurance;

(v) engineering;

(vi) general and administrative (administrative payroll; benefits; management fees; professional services; office supplies; and other); and

(vii) Taxes;

(viii) the method of calculation of any “gross-up” of Operating Expenses performed by Landlord;

(ix) the anticipated savings to be realized in the subject calendar year by any Permitted Capital Expenditure described in clause (xiii)(A) of Section 4.2.1 above; and

(x) the method of prorating the wages, salaries and payroll burden of employees engaged primarily, but not solely, in the management, operation or maintenance of the Project

Upon receipt of the Statement for each Expense Year commencing or ending during the Lease Term, if an Excess is present, Tenant shall pay, with its next installment of Base Rent that is due at least thirty (30) days following the date of delivery of the Statement, the full amount of the Excess for such Expense Year, less the amounts, if any, paid during such Expense Year as “Estimated Excess,” as that term is defined in Section 4.4.2, below. The failure of Landlord to

 

19


timely furnish the Statement for any Expense Year shall not prejudice Landlord or Tenant from enforcing its rights under this Article 4. Even though the Lease Term has expired and Tenant has vacated the Premises, when the final determination is made of Tenant’s Share of Direct Expenses for the Expense Year in which this Lease terminates, if: (a) an Excess is present, Tenant shall pay to Landlord such amount within thirty (30) days after delivery of the Statement; and (b) if Tenant’s payment of Direct Expenses exceeded actual Direct Expenses attributable to such Expense Year, Landlord shall reimburse Tenant any excess Direct Expenses payments concurrently with Landlord’s delivery of the Statement to Tenant. The provisions of this Section 4.4.1 shall survive the expiration or earlier termination of the Lease Term. Notwithstanding any contrary provision of this paragraph, Tenant shall not be responsible for Tenant’s Share of any Direct Expenses attributable to any Expense Year which are first billed to Tenant more than two (2) calendar years after the earlier of the expiration of the applicable Expense Year or the Lease Expiration Date, provided that in any event Tenant shall be responsible for Tenant’s Share of Direct Expenses levied by any governmental authority or by any public utility companies at any time following the applicable Expense Year or the Lease Expiration Date which are attributable to any Expense Year (provided that Landlord delivers Tenant a bill for such amounts within three (3) months following Landlord’s receipt of the bill therefor).

4.4.2 Statement of Estimated Direct Expenses. In addition, Landlord shall endeavor to give Tenant a yearly expense estimate statement (the “Estimate Statement”) which shall set forth Landlord’s reasonable estimate (the “Estimate”) of what the total amount of Direct Expenses for the then-current Expense Year shall be and the estimated excess (the “Estimated Excess”) as calculated by comparing the Direct Expenses for such Expense Year, which shall be based upon the Estimate, to the amount of Direct Expenses for the Base Year. The failure of Landlord to timely furnish the Estimate Statement for any Expense Year shall not preclude Landlord from enforcing its rights to collect any Estimated Excess under this Article 4, nor shall Landlord be prohibited from revising any Estimate Statement or Estimated Excess theretofore delivered to the extent necessary (provided that Landlord shall not revise such Estimate Statement more than twice in any single Expense Year). Thereafter, Tenant shall pay, with its next installment of Base Rent that is due at least thirty (30) days after delivery of the Estimate, a fraction of the Estimated Excess for the then current Expense Year (reduced by any amounts paid pursuant to the next to last sentence of this Section 4.4.2). Such fraction shall have as its numerator the number of months which have elapsed in such current Expense Year, including the month of such payment, and twelve (12) as its denominator. Until a new Estimate Statement is furnished (which Landlord shall have the right to deliver to Tenant at any time), Tenant shall pay monthly, with the monthly Base Rent installments, an amount equal to one-twelfth (1/12) of the total Estimated Excess set forth in the previous Estimate Statement delivered by Landlord to Tenant.

4.5 Taxes and Other Charges for Which Tenant Is Directly Responsible.

4.5.1 Tenant shall be liable for and shall pay ten (10) days before delinquency, taxes levied against Tenant’s equipment, furniture, fixtures and any other personal property located in or about the Premises. If any such taxes on Tenant’s equipment, furniture, fixtures and any other personal property are levied against Landlord or Landlord’s property or if the assessed value of Landlord’s property is increased by the inclusion therein of a value placed upon such equipment, furniture, fixtures or any other personal property and if Landlord pays the taxes based upon such increased assessment, which Landlord shall have the right to do regardless of the validity thereof but only under proper protest if requested by Tenant, Tenant shall upon demand repay to Landlord the taxes so levied against Landlord or the proportion of such taxes resulting from such increase in the assessment, as the case may be.

4.5.2 If the tenant improvements in the Premises, whether installed and/or paid for by Landlord or Tenant and whether or not affixed to the real property so as to become a part thereof, are assessed for real property tax purposes at a valuation higher than the valuation at which tenant improvements conforming to Landlord’s “building standard” in other space in the Building are assessed, then the Tax Expenses levied against Landlord or the property by reason of such excess assessed valuation shall be deemed to be taxes levied against personal property of Tenant and shall be governed by the provisions of Section 4.5.1, above.

 

20


4.5.3 Notwithstanding any contrary provision herein, Tenant shall pay prior to delinquency any (i) rent tax or sales tax, service tax, transfer tax or value added tax, or any other applicable tax on the rent or services herein or otherwise respecting this Lease, (ii) taxes assessed upon or with respect to the possession, leasing, operation, management, maintenance, alteration, repair, use or occupancy by Tenant of the Premises or any portion of the Project, including the Project parking facility; or (iii) taxes assessed upon this transaction or any document to which Tenant is a party creating or transferring an interest or an estate in the Premises.

4.6 Landlord’s Records. Within one hundred eighty (180) days after receipt of a Statement by Tenant (the “Audit Period”), if Tenant disputes the amount of the Excess set forth in the Statement, an independent certified public accountant (which accountant (A) is a member of a nationally or regionally recognized certified public accounting firm which has previous experience in auditing financial operating records of landlords of office buildings, (B) shall not already be providing primary accounting and/or lease administration services to Tenant and shall not have provided primary accounting and/or lease administration services to Tenant in the past three (3) years, (C) is not working on a contingency fee basis [i.e., Tenant must be billed based on the actual time and materials that are incurred by the certified public accounting firm in the performance of the audit], and (D) shall not currently be providing accounting and/or lease administration services to another tenant in the Building and/or the Project in connection with a review or audit by such other tenant of similar expense records), designated and paid for by Tenant, may, after reasonable notice to Landlord and at reasonable times, audit Landlord’s records with respect to the Excess set forth in the Statement at Landlord’s corporate offices, provided that (i) Tenant is not then in Default under this Lease, (ii) Tenant has paid all amounts required to be paid under the applicable Estimate Statement and Statement, and (iii) a copy of the audit agreement between Tenant and its particular certified public accounting firm has been delivered to Landlord prior to the commencement of the audit. In connection with such audit, Tenant and Tenant’s certified public accounting firm must agree in advance to follow Landlord’s reasonable rules and procedures regarding an audit of the aforementioned Landlord records, and shall execute a commercially reasonable confidentiality agreement regarding such audit. Any audit report prepared by Tenant’s certified public accounting firm shall be delivered concurrently to Landlord and Tenant within the Audit Period. Tenant’s failure to audit the amount of the Excess set forth in any Statement within the Audit Period shall be deemed to be Tenant’s approval of such Statement and Tenant, thereafter, waives the right or ability to audit the amounts set forth in such Statement. If after such audit, Tenant still disputes such Excess and Landlord disputes the results of Tenant’s audit, an audit to determine the proper amount shall be made, at Tenant’s reasonable expense, by an independent certified public accountant (the “Accountant”) selected by Landlord and subject to Tenant’s reasonable approval; provided that if such audit by the Accountant proves that the Direct Expenses in the subject Expense Year were overstated by more than five percent (5%), then the cost of the Accountant and the cost of such audit shall be paid for by Landlord. Tenant hereby acknowledges that Tenant’s sole right to audit Landlord’s records and to contest the amount of Direct Expenses payable by Tenant shall be as set forth in this Section 4.6, and Tenant hereby waives any and all other rights pursuant to Applicable Laws to audit such records and/or to contest the amount of Direct Expenses payable by Tenant.

ARTICLE 5

USE OF PREMISES

5.1 Permitted Use. Tenant shall use the Premises solely for the Permitted Use set forth in Section 7 of the Summary and Tenant shall not use or permit the Premises or the Project to be used for any other purpose or purposes whatsoever without the prior written consent of Landlord, which may be withheld in Landlord’s sole discretion.

5.2 Prohibited Uses. The uses prohibited under this Lease shall include, without limitation, use of the Premises or a portion thereof for (i) offices of any agency or bureau of the United States or any state or political subdivision thereof; (ii) offices or agencies of any foreign governmental or political subdivision thereof; (iii) offices of any health care professionals or service organization; (iv) schools or other training facilities which are not ancillary to corporate, executive or professional office use; (v) retail or restaurant uses; or (vi) communications firms such as radio and/or television stations. Tenant shall not allow occupancy density of use of the Premises which is greater than one (1) person for each 125 rentable square feet of the Premises; provided, however, that such density ratio shall be applicable to the entirety of the space then leased by Tenant in the Project (and shall not apply on a floor by floor basis). Tenant further covenants and agrees that Tenant shall not use, or suffer or permit any person or persons to use,

 

21


the Premises or any part thereof for any use or purpose contrary to the provisions of the Rules and Regulations set forth in Exhibit D, attached hereto, or in violation of the laws of the United States of America, the State of California, or the ordinances, regulations or requirements of the local municipal or county governing body or other lawful authorities having jurisdiction over the Project, including, without limitation, any such laws, ordinances, regulations or requirements relating to hazardous materials or substances, as those terms are defined by Applicable Laws now or hereafter in effect. Tenant shall not do or permit anything to be done in or about the Premises which will in any way damage the reputation of the Project or obstruct or interfere with the rights of other tenants or occupants of the Project, or injure or annoy them or use or allow the Premises to be used for any improper, unlawful or objectionable purpose, nor shall Tenant cause, maintain or permit any nuisance in, on or about the Premises. Tenant shall comply with all recorded covenants, conditions, and restrictions now or hereafter affecting the Project (collectively, the “Underlying Documents”).

5.3 Stairwells.

5.3.1 Tenant’s Use of Base Building Stairwell. Subject to Applicable Laws and Tenant’s receipt of all necessary governmental or quasi-governmental approvals (collectively, “Governmental Approvals”), Tenant shall have right during the Lease Term to use the base building stairwells between the floors of the Premises (each, a “Stairwell”) solely for purposes of ingress and egress from and between different floors of the Premises. Subject to Landlord’s approval (which shall not be unreasonably withheld) and receipt by Tenant of applicable Governmental Approvals, Tenant, at its sole cost and expense, shall procure, install, and maintain a separate security access system compatible with the Building security access system (the “Stairwell Security System”) on the interior of the Stairwell which will limit Stairwell access to the Premises to Landlord’s and Tenant’s authorized users, but which permits access to the Stairwell by all tenants and occupants of the Building. The Stairwell Security System shall be installed prior to the use by Tenant of the Stairwell. Tenant shall keep and maintain the Stairwell Security System in good working order, condition and repair throughout the Lease Term. In its use of the Stairwell and in connection with the installation, maintenance and operation of the Stairwell Security System, Tenant shall comply with all Applicable Laws, Governmental Approvals and the rules and regulations for the Project. Except as expressly set forth herein, Tenant shall have no right to alter or change the Stairwell in any manner whatsoever. Tenant acknowledges and agrees that Tenant’s use of the Stairwell and the installation, operation and maintenance of the Stairwell Security System shall be at Tenant’s sole risk and Landlord shall have no liability whatsoever in connection therewith. Except for any property damage or personal injury to the extent arising from Landlord’s gross negligence or willful misconduct, Tenant hereby waives any and all claims against Landlord for any damages arising from Tenant’s exercise of its rights under this Section 5.3.1. Furthermore, as a material inducement to Landlord to grant the rights set forth in this Section 5.3.1, except for any property damage or personal injury to the extent arising from Landlord’s gross negligence or willful misconduct, Tenant hereby agrees to defend, indemnify and hold Landlord harmless, from and against any and all damages, losses, claims, liability, costs or expenses (including reasonable attorneys’ and other professional fees), actions or causes of action, or judgments arising in any manner from Tenant’s use of the Stairwell and/or the installation, operation and maintenance of the Stairwell Security System.

5.3.2 Internal Stairwells. Subject to Landlord’s prior written approval of plans and specifications therefor and compliance with all Applicable Laws, Tenant shall have the right to construct one or more internal stairwells in the Premises connecting contiguous full floors of the Premises, and include in the Tenant Improvements (or subsequent Alterations) the construction of such internal stairwells, on and subject to the following terms and conditions: (i) Tenant shall be responsible, at its sole cost and expense (subject to the application of the Tenant Improvement Allowance), for obtaining all applicable permits, licenses and governmental approvals necessary for the use and construction of such internal stairwells in the Premises, copies of which shall be delivered to Landlord prior to Tenant’s installation of any internal stairwells in the Premises; (ii) in the event such use requires any alterations or improvements to the Base Building, Tenant shall be solely responsible for all costs incurred in connection therewith (subject to the application of the Tenant Improvement Allowance); and (iii) notwithstanding any provision of this Lease to the contrary and regardless of whether Landlord notified Tenant of such requirement at the time of Landlord’s approval of construction of any internal stairwell, upon the expiration or earlier termination of the Lease Term with respect to either or both of the floors connected by such internal stairwell, such internal stairwell shall be removed and restored to the same condition existing prior to such installation, unless Landlord revokes such requirement to restore by notice delivered to Tenant on or before the date that is nine (9) months prior to the applicable Lease Expiration Date.

 

22


5.4 Commercial Kitchen. Tenant may use a portion of the Premises for the operation of a commercial kitchen (the “Commercial Kitchen”), for the exclusive use of Tenant’s employees. Tenant shall not sell any food or beverages in or from the Premises at any time and/or serve any food and beverages in or from the Premises at any time to other tenants or occupants of the Project (or their employees) or to members of the general public; provided, however, Tenant shall be permitted to have vending machines in the Premises available for use by Tenant’s employees and guests. No cooking odors shall be emitted from the Premises other than through ventilation equipment and systems installed therein to service the Commercial Kitchen in accordance with the provisions of this Section 5.4. Tenant’s obligations under this Section 5.4 are cumulative and in addition to all other obligations of Tenant under this Lease. Tenant shall be permitted to serve (but not sell) alcohol in the Premises, subject to compliance with Applicable Laws, and Section 10.3 below.

5.4.1 Licensing; Permits and Operation. If Tenant elects to exercise its right to operate the Commercial Kitchen, Tenant shall give Landlord prior notice thereof and shall submit to Landlord (i) construction ready plans and specifications for the Commercial Kitchen (including, any cooking, ventilation, air conditioning, grease traps, kitchen and other equipment in or for the Premises with respect to the Commercial Kitchen) for Landlord’s review and approval (such submission, review and approval shall be governed by Article 8 of this Lease, the Tenant Work Letter (if the Commercial Kitchen is being constructed as part of the Tenant Improvements) and this Section 5.4; provided that it shall be deemed reasonable for Landlord to withhold its consent to the extent the Commercial Kitchen is not consistent with commercial kitchens located in Comparable Buildings), and (ii) all necessary consents, approvals, permits or registrations, required for the construction and operation of the Commercial Kitchen in accordance with Applicable Laws. If approved by Landlord, all such Alterations shall be installed and constructed in accordance with Article 8 of this Lease, the Tenant Work Letter (if the Commercial Kitchen is being constructed as part of the Tenant Improvements) and this Section 5.4. Landlord shall use commercially reasonable efforts, at no cost to Landlord, to cooperate with Tenant to obtain all consents, approvals, permits or registrations required for operation of the Commercial Kitchen, to the extent Landlord’s cooperation is required as owner of the Project. The Commercial Kitchen and the Commercial Kitchen facilities therein shall be maintained and operated by Tenant, at Tenant’s expense: (a) in first-class order, condition and repair; (b) consistent with the character of the Project as a first-class office project; and (c) in compliance with all Applicable Laws, such reasonable rules and regulations as may be adopted by Landlord from time to time, and the other provisions of this Lease. Tenant shall have the sole responsibility, at its expense, for providing all above-standard janitorial service (including composting, recycling, wet and dry trash appropriate sorting and removal from the Premises daily) for and cleaning of the Commercial Kitchen (and the Commercial Kitchen facilities therein), as well as all exhaust vents therefor, and shall pay for all cleaning costs incurred by Landlord in cleaning any affected portions of the applicable Building or Project (outside of the Premises) resulting from Tenant’s operation of the Commercial Kitchen. If Tenant fails to perform such above-standard janitorial service then following delivery of notice to Tenant and Tenant’s failure to cure such failure within two (2) business days following Tenant’s receipt of such notice, Landlord may do so, at Tenant’s sole cost and expense, including a five percent (5%) administrative fee. In addition, Tenant shall pay for all actual and reasonable out-of-pocket increased costs incurred by Landlord with respect to the management, operation, maintenance and repair of the applicable Building resulting from Tenant’s operation of the Commercial Kitchen, within thirty (30) days of receiving an invoice therefor.

5.4.2 Personal Rights and Termination. If Tenant fails to comply with the requirements set forth in this Section 5.4, without limitation of Landlord’s other remedies, Landlord shall have the right to terminate Tenant’s rights under this Section 5.4. The rights contained in this Section 5.4 shall be personal to Original Tenant and its Permitted Transferee Assignee, may only be exercised by Original Tenant or its Permitted Transferee Assignee (and not any other assignee, sublessee or other Transferee of original Tenant’s interest in this Lease).

 

23


5.5 Third Party Operator. The use and occupancy of the Premises by a third party to operate the Commercial Kitchen (a “Third Party Operator”) is expressly subject to, and the Third Party Operator must comply with, all of the terms, covenants, conditions and obligations on Tenant’s part to be observed, including the maintenance of labor harmony and performed under this Lease relating to the use and occupancy of the Premises by such Third Party Operator (other than Tenant’s obligation to pay Base Rent or Direct Expenses under this Lease), including the requirement to obtain insurance in the requisite amounts and to indemnify, defend and hold Landlord harmless for any loss or other liabilities resulting from the use and operations contemplated by this Section 5.5. Any violation of any provision of this Lease by the Third Party Operator shall be deemed to be a default by Tenant under such provision. Third Party Operator shall have no recourse against Landlord whatsoever on account of any failure by Landlord to perform any of its obligations under this Lease or on account of any other matter. All notices required of Landlord under this Lease shall be forwarded only to Tenant in accordance with the terms of this Lease and in no event shall Landlord be required to send any notices to any Third Party Operator. In no event shall any use or occupancy of any portion of the Premises by the Third Party Operator release or relieve Tenant from any of its obligations under this Lease. The Third Party Operator shall be a Tenant Party, and Tenant shall be fully and primarily liable for all acts and omissions of such Third Party Operator as fully and completely as if such Third Party Operator was an employee of Tenant. In no event shall the occupancy of any portion of the Premises by any Third Party Operator be deemed to create a landlord/tenant relationship between Landlord and such Third Party Operator or be deemed to vest in Third Party Operator any right or interest in the Premises or this Lease, and, in all instances, Tenant shall be considered the sole tenant under the Lease notwithstanding the occupancy of any portion of the Premises by any Third Party Operator. Upon request from Landlord, Tenant shall provide to Landlord a copy of any agreement between Tenant and the Third Party Operator and the insurance required to be maintained by Third Party Operator prior to the Third Party Operator being allowed access to the Premises by Tenant. Any equipment or other property of the Third Party Operator in the Project shall be subject to Section 8.5 and Article 15 of this Lease. However, nothing in this Section 5.5 shall diminish Landlord’s rights elsewhere in this Lease or imply that Landlord has any duties to the Third Party Operator. No disputes between Tenant and the Third Party Operator shall in any way affect the obligations of Tenant hereunder.

ARTICLE 6

SERVICES AND UTILITIES

6.1 Standard Tenant Services. Landlord shall provide the following services on all days (unless otherwise stated below) during the Lease Term.

6.1.1 HVAC. Subject to limitations imposed by all governmental rules, regulations and guidelines applicable thereto, Landlord shall provide heating and air conditioning (“HVAC”) when necessary for normal office use in the Premises from 8:00 A.M. to 6:00 P.M. Monday through Friday (collectively, the “Building Hours”), except for the date of observation of New Year’s Day, Martin Luther King Jr. Day, Presidents’ Day, Memorial Day, Independence Day, Labor Day, Thanksgiving Day, Christmas Day and, at Landlord’s discretion, other locally or nationally recognized holidays (collectively, the “Holidays”). The HVAC provided to the Premises shall result in an average temperature range between 68 and 75 degrees Fahrenheit (based on an occupancy of 1 person per 150 rentable square feet and assuming a combined lighting and equipment load not exceeding 2.4 watts/hour per usable square foot of the Premises, and assuming outside temperatures of between 42 degrees and 90 degrees).

6.1.2 Electricity. Landlord shall provide adequate electrical wiring and facilities for connection to Building standard ceiling mounted lighting fixtures and incidental use equipment, i.e., 5 watts of connected load per usable square foot, provided that Tenant’s consumption of electricity does not exceed 2.4 watts/hour per usable square foot of the Premises per month, which electrical usage shall be subject to Applicable Laws and regulations, including Title 24. Tenant will design Tenant’s electrical system serving any equipment producing nonlinear electrical loads to accommodate such nonlinear electrical loads, including, but not limited to, oversizing neutral conductors, derating transformers and/or providing power-line filters. Engineering plans shall include a calculation of Tenant’s fully connected electrical design load with and without demand factors and shall indicate the number of watts of unmetered and submetered loads. Notwithstanding any provision to the contrary contained in this Lease, Tenant shall pay to Landlord the actual cost (without mark-up) of all electricity services provided to and/or consumed in the Premises (including normal and excess consumption and including the cost of electricity to operate the HVAC air handlers), pursuant to submeters. Tenant shall pay the cost of such electricity within thirty (30) days after demand accompanied by a documented

 

24


invoice therefor and as Additional Rent under this Lease (and not as part of the Operating Expenses). Tenant shall be solely responsible for the installation of all such submeters as part of the Tenant Improvements. Tenant shall bear the cost of replacement of lamps, starters and ballasts for non-Building standard lighting fixtures within the Premises.

6.1.3 Water. Landlord shall provide city water from the regular Building outlets for drinking, lavatory and toilet purposes in the Building Common Areas.

6.1.4 Janitorial. Tenant shall be required to contract directly with Landlord’s designated janitorial services provider to perform janitorial services and other cleaning to the Premises, including interior window washing, in a manner and on a cleaning schedule consistent with Landlord’s janitorial specifications for the Building, and Tenant shall pay the cost of such contract directly to such janitorial services provider. Landlord shall have the right upon no less than thirty (30) days prior written notice to Tenant, from time to time, to change its designated janitorial services provider for the Building, in which event Tenant shall terminate its contract with Landlord’s previously designated janitorial services provider (so long as such termination will not require Tenant to incur any additional cost in excess of three percent (3%) of Tenant’s previous cost) and enter into a contract with Landlord’s newly designated janitorial services provider on terms which are reasonably acceptable to Tenant. Landlord shall have the right upon no less than five (5) business days’ prior written notice to Tenant to inspect the Premises (subject to the Landlord entry requirements set forth in Article 27, below) for purposes of confirming that Tenant is cleaning the Premises as required by this Section 6.1.4, and to require Tenant to provide additional cleaning, if reasonably necessary. In the event Tenant shall fail to provide any of the services described in this Section 6.1.4 within five (5) business days after notice from Landlord, which notice shall not be required in the event of an emergency, Landlord shall have the right to provide such services and any charge or cost reasonably incurred by Landlord in connection therewith shall be deemed Additional Rent due and payable by Tenant within thirty (30) days following receipt by Tenant of a written statement of cost from Landlord. Failure of Tenant to comply with any one or more of the foregoing provisions shall be deemed to be a default under this Lease. Landlord shall provide janitorial services to the Common Areas, which services shall include exterior window washing services in a manner consistent with other Comparable Buildings, the costs of which shall be included in Operating Expenses.

6.1.5 Passenger Elevators. Landlord shall provide nonexclusive, non-attended automatic passenger elevator service during the Building Hours, shall have one elevator available at all other times, except on the Holidays, and shall provide nonexclusive, non-attended automatic passenger escalator service during Building Hours only.

6.1.6 Freight Elevators. Landlord shall provide nonexclusive freight elevator service subject to reasonable scheduling by Landlord without charge except as set forth below. Landlord may charge Tenant for costs of providing security or elevator operations personnel, if any, in connection with any such use of freight elevator service after Building Hours or in connection with large freight requiring elevator operations personnel.

6.1.7 Access Control; Tenant’s Security System. Landlord shall provide reasonable access control services for the Building and in the Building parking facility seven (7) days per week, twenty-four (24) hours per day, in a manner materially consistent with the practices of landlords of Comparable Buildings (“Landlord’s Security”). Notwithstanding the foregoing except to the extent caused by Landlord’s gross negligence or willful misconduct, Landlord shall in no case be liable for personal injury or property damage for any error with regard to the admission to or exclusion from the Building or Project of any person. Tenant shall have the right, at its own expense, to install its own key-card or RFID scantag, or similar entry system (“Tenant’s Security System”) in the Premises, provided such entry system and installation do not interfere or disrupt Landlord’s security system and is subject to the terms of Article 8 of this Lease. Tenant shall coordinate the installation and operation of Tenant’s Security System with Landlord to assure that Tenant’s Security System is compatible with the Building systems and equipment. Tenant shall be solely responsible for monitoring and operating Tenant’s Security System. Tenant shall cooperate and comply with, and cause its employees, representatives and visitors to cooperate and comply with, the Building’s access control measures, if any. Except for the willful misconduct of Landlord or the “Landlord Parties,” as the term is defined in Section 10.1.1 of this Lease, neither Landlord nor the Landlord Parties shall be liable for, and Landlord and the Landlord Parties are hereby released from any responsibility for any damage either to person or property sustained or incurred by Tenant in connection with the operation and/or failure such Tenant’s Security System.

 

25


6.1.8 Access. Subject to Applicable Laws and the other provisions of this Lease, and except in the event of an emergency, Tenant shall have access to the Premises twenty-four (24) hours per day, seven (7) days per week, every day of the year.

Tenant shall cooperate fully with Landlord at all times and abide by all regulations and requirements that Landlord may reasonably prescribe for the proper functioning and protection of the HVAC, electrical, mechanical and plumbing systems.

6.2 Overstandard Tenant Use. Tenant shall not, without Landlord’s prior written consent, use heat-generating machines, machines other than normal fractional horsepower office machines, or equipment or lighting other than Building standard lights in the Premises, which may affect the temperature otherwise maintained by the air conditioning system or increase the water normally furnished for the Premises by Landlord pursuant to the terms of Section 6.1 of this Lease. If such consent is given, Landlord shall have the right to install supplementary air conditioning units or other facilities in the Premises, including supplementary or additional metering devices, and the cost thereof, including the cost of installation, operation and maintenance, increased wear and tear on existing equipment and other similar charges, shall be paid by Tenant to Landlord upon billing by Landlord. If Tenant uses water, electricity, heat or air conditioning in excess of that supplied by Landlord pursuant to Section 6.1 of this Lease, Tenant shall pay to Landlord, within thirty (30) days of following billing (which shall be accompanied by a documented invoice therefor), the actual cost of such excess consumption without mark-up; additionally, if, in connection with such excess consumption, Landlord determines that additional equipment is necessary to supply such excess consumption, Landlord shall notify Tenant and the parties shall mutually confer, in good faith, in an effort to determine the most cost-effective method of mitigating Tenant’s utility consumption and/or serving Tenant’s utility needs. If it is determined following such joint consultation that additional equipment is necessary, Tenant shall bear the cost of the installation, operation, and maintenance of any such equipment which is installed in order to supply such excess consumption, and the cost of the increased wear and tear on existing equipment caused by such excess consumption; and Landlord may install devices to separately meter any increased use and in such event Tenant shall pay the increased cost directly to Landlord, within thirty (30) days of written demand accompanied by a documented invoice therefor, at the rates charged by the public utility company furnishing the same, including the cost of such additional metering devices. Tenant’s use of electricity shall never exceed the capacity of the feeders to the Project or the risers or wiring installation. If Tenant desires to use HVAC during hours other than those for which Landlord is obligated to supply such HVAC pursuant to the terms of Section 6.1 of this Lease (i.e., “after hours” usage), Tenant shall give Landlord’s Building management office not less than twenty-four (24) hours prior notice or such prior notice, as Landlord shall from time to time establish as appropriate, and to the extent such additional HVAC can be made available, Landlord shall supply such HVAC to Tenant at such hourly cost to Tenant (which shall be treated as Additional Rent and which may include an administrative fee) as Landlord shall from time to time establish (and subject to a four (4) hour minimum). As of the date of this Lease, the current rate for after hours HVAC is $195.00 per hour, and the current rate for the after-hours use of air circulation fans only is $45.00 per hour; said rate shall be increased only to the extent that Landlord determines Landlord’s cost of providing such after-hours has increased.

6.3 Interruption of Use. Except as expressly set forth in Section 6.4 below, Tenant agrees that Landlord shall not be liable for damages, by abatement of Rent or otherwise, for failure to furnish or delay in furnishing any service (including telephone and telecommunication services), or for any diminution in the quality or quantity thereof, when such failure or delay or diminution is occasioned, in whole or in part, by breakage, repairs, replacements, or improvements, by any strike, lockout or other labor trouble, by inability to secure electricity, gas, water, or other fuel at the Building or Project after reasonable effort to do so, by any riot or other dangerous condition, emergency, accident or casualty whatsoever, by act or default of Tenant or other parties, or by any other cause; and such failures or delays or diminution shall never be deemed to constitute an eviction or disturbance of Tenant’s use and possession of the Premises or relieve Tenant from paying Rent or performing any of its obligations under this Lease. Furthermore, Landlord shall not be liable under any circumstances for a loss of, or injury to, property or for injury to, or interference with, Tenant’s business, including, without limitation, loss of profits, however occurring, through or in connection with or incidental to a failure to

 

26


furnish any of the services or utilities as set forth in this Article 6. Landlord may comply with voluntary controls or guidelines promulgated by any governmental entity relating to the use or conservation of energy, water, gas, light or electricity or the reduction of automobile or other emissions without creating any liability of Landlord to Tenant under this Lease, provided that the Premises are not thereby rendered untenantable.

6.4 Rent Abatement. If Landlord fails to perform the obligations required of Landlord under the terms of this Lease and such failure causes all or a portion of the Premises to be unusable by, or inaccessible to, Tenant and such failure relates to (x) the nonfunctioning of the Building HVAC system in the Premises, the interruption of electricity to the Premises, the nonfunctioning of the elevator service to the Premises, or (y) a failure to provide access to all or a portion of the Premises (including as a result of any work performed by Landlord in or about the Premises or the Building unless in response to Tenant’s request or as a result of Tenant’s breach of this Lease), Tenant shall give Landlord notice to the Building management office (the “Initial Failure Notice”), specifying such failure to perform by Landlord (the “Abatement Event”). If Landlord has not cured such Abatement Event within three (3) business days after the receipt of the Initial Failure Notice (the “Eligibility Period”), Tenant may deliver an additional notice to Landlord (the “Additional Notice”), specifying such Abatement Event and Tenant’s intention to abate the payment of Rent under this Lease. If Landlord does not cure such Abatement Event within three (3) business days of receipt of the Additional Notice, Tenant may, upon written notice to Landlord, immediately abate Rent payable under this Lease for that portion of the Premises rendered unusable or inaccessible and not used by Tenant, for the period beginning on the expiration of the Eligibility Period to the earlier of the date Landlord cures such Abatement Event or the date Tenant recommences the use of such portion of the Premises. Such right to abate Rent shall be Tenant’s sole and exclusive remedy at law or in equity for an Abatement Event. Except as provided in this Section 6.4, nothing contained herein shall be interpreted to mean that Tenant is excused from paying Rent due hereunder.

6.5 Supplemental HVAC. Tenant, at its sole expense, may install supplemental HVAC systems in the Premises (the “Tenant HVAC System”). In the event that the Tenant HVAC System is not installed as a “Tenant Improvement,” as that term is defined in the Tenant Work Letter, in accordance with the terms of the Tenant Work Letter, the Tenant HVAC System shall be installed, if at all, by Tenant as an Alteration in accordance with the terms of Article 8, below. Tenant shall have the right to utilize the roof or the interstitial space for the Tenant HVAC System. Any portion of the Tenant HVAC system placed on the roof shall be subject to Section 29.37, “Rooftop Rights”, including the payment of Rent. Tenant shall coordinate the installation and operation of the Tenant HVAC System with Landlord to ensure that the Tenant HVAC System is compatible with the systems and equipment of the Building, and to the extent that the Tenant HVAC System is not compatible with the systems and equipment of the Building, Tenant shall not be entitled to install or operate the same. Tenant shall be solely responsible, at Tenant’s sole cost and expense, for the monitoring, operation, replacement and repair of the Tenant HVAC System. In connection with the Tenant HVAC System, (a) Tenant shall install, at Tenant’s cost, a submeter to measure the electricity utilized by the Tenant HVAC System, as well as submeters to measure the use of any other utilities utilized by the Tenant HVAC System, and (b) Tenant shall be responsible for the payment of all costs relating to the use of electricity and other utilities, as well as the maintenance and repair of the Tenant HVAC System. At Landlord’s sole option, upon written notice to Tenant no less than one hundred and twenty (120) days prior to the scheduled expiration date of this Lease, Tenant shall remove any Tenant HVAC System prior to the expiration or earlier termination of this Lease, and repair any damage to the Building caused by such removal and restore the portion of the Building and Premises affected by such removal to the condition existing prior to the installation of such Tenant HVAC System, or leave same in the Premises, in which event the same shall become a part of the realty and belong to Landlord and shall be surrendered with the Premises upon the expiration or earlier termination of this Lease.

ARTICLE 7

REPAIRS

7.1 Tenant Repair Obligations. Tenant shall, at Tenant’s own expense, pursuant to the terms of this Lease, including without limitation Article 8 hereof, keep the non-structural elements of the Premises, including all improvements, fixtures and furnishings therein, and the floor or floors of the Building on which the Premises are located, in good order, repair and

 

27


condition at all times during the Lease Term. In addition, Tenant shall, at Tenant’s own expense, but under the supervision and subject to the prior approval of Landlord, and within any reasonable period of time specified by Landlord, pursuant to the terms of this Lease, including without limitation Article 8 hereof, promptly and adequately repair all damage to the Premises and replace or repair all damaged, broken, or worn fixtures and appurtenances, except for damage caused by ordinary wear and tear or beyond the reasonable control of Tenant; provided however, that, at Landlord’s option, or if Tenant fails to commence such repairs within ten (10) business days following notice from Landlord (or thereafter fails to diligently pursue the same to completion), Landlord may, but need not, make such repairs and replacements, and Tenant shall pay Landlord the actual cost thereof, including a percentage of the cost thereof (to be uniformly established for the Building and/or the Project) sufficient to reimburse Landlord for all overhead, general conditions, fees and other costs or expenses arising from Landlord’s involvement with such repairs and replacements within thirty (30) days after written demand (together with copies of the paid invoices evidencing the costs incurred by Landlord). Landlord may, but shall not be required to, enter the Premises at all reasonable times to make such repairs, alterations, improvements or additions to the Premises or to the Project or to any equipment located in the Project as Landlord shall reasonably deem necessary or as Landlord may be required to do by governmental or quasi-governmental authority or court order or decree. Except in the event of an emergency, Landlord will provide Tenant with at least five (5) business days’ prior notice of any of the actions set forth in this Section 7.1, to be taken by Landlord if such action will substantially interfere with Tenant’s ability to (i) conduct business in the Premises, (ii) gain access to and from the Premises, or (iii) use or have access to and egress from the parking area and will perform such work as quickly as reasonably possible. Landlord shall use diligent efforts to ensure that the performance of any such work of repairs or alterations shall not interfere with Tenant’s use of the Premises (or any portion thereof) for Tenant’s business purposes (such efforts to include limiting the performance of any such work which might be disruptive to weekends or the evening and the cleaning of any work area prior to the commencement of the next business day). To the extent that Landlord installs, maintains, uses, repairs or replaces pipes, cables, ductwork, conduits, utility lines, and/or wires through hung ceiling space, exterior perimeter walls and column space, adjacent to and in demising partitions and columns, in or beneath the floor slab or above, below, or through the Premises, then in the course of making any such installation or repair: (w) Landlord shall not interfere unreasonably with or interrupt the business operations of Tenant within the Premises; (x) Landlord shall not reduce Tenant’s usable space, except to a de minimus extent, if the same are not installed behind existing walls or ceilings; (y) Landlord shall box in any of the same installed adjacent to existing walls with construction materials substantially similar to those existing in the affected area(s) of the Premises; and (z) Landlord shall repair all damage caused by the same and restore such area(s) of the Premises to the condition existing immediately prior to such work. Tenant hereby waives any and all rights under and benefits of subsection 1 of Section 1932 and Sections 1941 and 1942 of the California Civil Code or under any similar law, statute, or ordinance now or hereafter in effect.

7.2 Landlord Repair Obligations. Notwithstanding the foregoing, Landlord shall maintain or cause to be maintained in first-class condition and repair, and commensurate with the levels and standards of maintenance at Comparable Buildings, the structural portions of the Building, the roof, roof membrane, foundations, floors and exterior walls and exterior windows of the Building, the electrical, mechanical, plumbing, life safety, telephone cable, heating, ventilation and air conditioning systems, excluding systems, such as supplemental HVAC units, which were constructed by or on behalf of Tenant and exclusively service the Premises (the “Building Systems”), all Building hardware, light fixtures and ballasts located in the Common Areas, all exterior landscaping and parking areas, except to the extent that such repairs are required due to the gross negligence or willful misconduct of Tenant, or to the extent that repairs to the electrical, mechanical, plumbing, life safety, telephone cable, heating, ventilation and air conditioning components of the Building Systems are reasonably determined to be required due to inadequate design of the corresponding systems in the Premises designed by or on behalf of Tenant. As part of Landlord’s maintenance of the Building Systems, Landlord shall implement and carry out throughout the Term an ongoing program of regular and preventative maintenance of all Building Systems (such program to include the periodic replacement of HVAC filters in accordance with manufacturers’ specifications and the monitoring of HVAC system settings). Provided, however, that if any repairs described above are due to the gross negligence or willful misconduct of Tenant, Landlord shall nevertheless make such repairs at Tenant’s reasonable expense, or, if covered by Landlord’s insurance, Tenant shall only be obligated to pay any deductible in connection therewith. Subject to the terms set forth in Section 6.3 and Section 7.1

 

28


above regarding Landlord’s entry and more particularly set forth in Article 27, below, Landlord may, but shall not be required to, enter the Premises at all reasonable times to make such repairs, alterations, improvements or additions to the Project or to any equipment located in the Project as Landlord shall reasonably deem necessary or as Landlord may be required to do by governmental or quasi-governmental authority or court order or decree. If any such maintenance or repairs to the Premises and/or the Building and/or the Project are required as a result of the negligence or willful misconduct of Tenant or its employees, contractors or agents, or breach of this Lease by Tenant or its employees, contractors or agents, and if Tenant does not perform such required maintenance or repair reasonably promptly after notice from Landlord, then Tenant shall, within thirty (30) days after written demand (together with copies of the paid invoices evidencing the costs incurred by Landlord), reimburse Landlord for the reasonable, out-of-pocket cost paid by Landlord for any such maintenance or repairs; provided, however, that if the cost of such work is reimbursed by Landlord’s insurance, Tenant shall only be obligated to pay any deductible in connection therewith. Landlord shall use commercially reasonable efforts to make any repairs, additions or alterations in, about or affecting the Premises during non-business hours and agrees to promptly restore access to the Premises following any such work or activity.

ARTICLE 8

ADDITIONS AND ALTERATIONS

8.1 Landlord’s Consent to Alterations. Tenant may not make any improvements, alterations, additions or changes to the Premises or any mechanical, plumbing or HVAC facilities or systems pertaining to the Premises (collectively, the “Alterations”) without first procuring the prior written consent of Landlord to such Alterations, which consent shall be requested by Tenant not less than thirty (30) days prior to the commencement thereof, and which consent shall not be unreasonably withheld, conditioned or delayed. The construction of the initial improvements to the initial Premises and the Must-Take Premises shall be governed by the terms of the Tenant Work Letter and not the terms of this Article 8. Tenant may, without Landlord’s consent, make any Alteration to the Premises that meets all of the following criteria (a “Cosmetic Alteration”): (a) the Alteration is decorative in nature (such as paint, carpet or other wall or floor finishes, movable partitions or other such work) or otherwise consists of de minimus work such as the installation of light fixtures or additional circuits, (b) Tenant provides Landlord advance written notice of the commencement of such Cosmetic Alteration, (c) such Alteration does not affect the Building Systems in any material way or any structural portion of the Building or any part of the Building other than the Premises, (d) the work does not require a building permit or other governmental permit, and (e) the work does not involve opening the ceiling. At the time Tenant notifies Landlord of any Cosmetic Alteration, Tenant shall give Landlord a copy of Tenant’s plans for the work. If the Cosmetic Alteration is of such a nature that formal plans will not be prepared for the work, Tenant shall provide Landlord with a reasonably specific description of the work. Landlord agrees to respond to any request by Tenant for approval of Alterations which approval is required hereunder within ten (10) business days after delivery of Tenant’s written request; Landlord’s response shall be in writing and, if Landlord withholds its consent to any Alterations described in any such Plans, Landlord shall specify in reasonable detail in Landlord’s notice of disapproval, the basis for such disapproval, and the changes to Tenant’s plans which would be required in order to obtain Landlord’s approval. If Landlord fails to notify Tenant of Landlord’s approval or disapproval of any such Plans within such ten (10) business day period, Tenant shall have the right to provide Landlord with a second written request for approval (a “Second Request”) that specifically identifies the applicable Plans and contains the following statement in bold and capital letters: “THIS IS A SECOND REQUEST FOR APPROVAL PURSUANT TO THE PROVISIONS OF SECTION 8.1 OF THE LEASE. IF LANDLORD FAILS TO RESPOND WITHIN FIVE (5) BUSINESS DAYS AFTER RECEIPT OF THIS NOTICE, THEN LANDLORD SHALL BE DEEMED TO HAVE APPROVED THE WORK DESCRIBED HEREIN.” If Landlord fails to respond to such Second Request within five (5) business days after receipt by Landlord, the plans in question shall be deemed approved by Landlord. The construction of the initial improvements to the Premises shall be governed by the terms of the Tenant Work Letter and not the terms of this Article 8.

8.2 Manner of Construction. Landlord may impose, in connection with any and all Alterations or repairs of the Premises or about the Premises, such requirements as Landlord in its reasonable discretion may deem desirable, including, but not limited to, the requirement that Tenant utilize for such purposes only contractors, subcontractors, materials, mechanics and

 

29


materialmen selected by Tenant from a list provided and approved by Landlord, the requirement that upon Landlord’s request, Tenant shall, at Tenant’s expense, remove such Alterations if required pursuant to the terms of Section 8.5 below. Upon Landlord’s request, Tenant shall provide copies of all contracts, list with complete contact information (including contact names, phone numbers, address, email addresses, etc.) of all contractors and subcontractors, certificates of insurance, electrical one-line drawings, engineered drawings, and such other information Landlord may reasonably request relating to the Alterations and Tenant’s performance thereof. If such Alterations will involve the use of or disturb hazardous materials or substances existing in the Premises, Tenant shall comply with Landlord’s rules and regulations concerning such hazardous materials or substances. Tenant shall construct such Alterations and perform such repairs in a good and workmanlike manner, in conformance with any and all applicable federal, state, county or municipal laws, rules and regulations and pursuant to a valid building permit, issued by the City and County of San Francisco, all in conformance with Landlord’s construction rules and regulations. In the event Tenant performs any Alterations in the Premises which require or give rise to governmentally required changes to the “Base Building,” as that term is defined below, then Landlord shall, at Tenant’s expense, make such changes to the Base Building. The “Base Building” shall include the structural portions of the Building, and the public restrooms and the systems and equipment located in the internal core of the Building on the floor or floors on which the Premises are located. In performing the work of any such Alterations, Tenant shall have the work performed in such manner so as not to obstruct access to the Project or any portion thereof, by any other tenant of the Project, and so as not to obstruct the business of Landlord or other tenants in the Project. Tenant shall not use (and upon notice from Landlord shall cease using) contractors, services, workmen, labor, materials or equipment that, in Landlord’s reasonable judgment, would disturb labor harmony with the workforce or trades engaged in performing other work, labor or services in or about the Building or the Common Areas. In addition to Tenant’s obligations under Article 9 of this Lease, upon completion of any Alterations, Tenant agrees to cause a Notice of Completion to be recorded in the office of the Recorder of the County of San Francisco in accordance with Section 8182 of the Civil Code of the State of California or any successor statute, and Tenant shall deliver to the Project management office all CAD drawings in electronic form and a reproducible copy of the “as built” drawings of the Alterations as well as all permits, approvals and other documents issued by any governmental agency in connection with the Alterations.

8.3 Payment for Improvements. If payment is made directly to contractors, Tenant shall comply with Landlord’s requirements for final lien releases and waivers in connection with Tenant’s payment for work to contractors. Whether or not Tenant orders any work directly from Landlord, Tenant shall pay to Landlord a percentage of the cost of such work sufficient to compensate Landlord for all overhead, general conditions, fees and other costs and expenses arising from Landlord’s involvement with such work not to exceed 2% of the hard cost of such Alterations.

8.4 Construction Insurance. In addition to the requirements of Article 10 of this Lease, in the event that Tenant makes any Alterations, prior to the commencement of such Alterations, Tenant shall provide Landlord with evidence that Tenant has caused its general contractor to carry “Builder’s All Risk” insurance in an amount reasonably approved by Landlord covering the construction of such Alterations, and such other insurance as Landlord may reasonably require, it being understood and agreed that all of such Alterations shall be insured by Tenant pursuant to Article 10 of this Lease immediately upon completion thereof. In addition, in connection with any Alterations costing in excess of $200,000.00, Landlord may, in its discretion, require Tenant to obtain a lien and completion bond or some alternate form of security satisfactory to Landlord in an amount sufficient to ensure the lien-free completion of such Alterations and naming Landlord as a co-obligee.

8.5 Landlord’s Property. All Alterations, improvements, fixtures, equipment and/or appurtenances which may be installed or placed in or about the Premises, from time to time, shall be at the sole cost of Tenant and shall be and become the property of Landlord, except that Tenant may remove any Alterations, improvements, fixtures and/or equipment which Tenant can substantiate to Landlord have not been paid for with any Tenant improvement allowance funds provided to Tenant by Landlord, provided Tenant repairs any damage to the Premises and Building caused by such removal and returns the affected portion of the Premises to the condition originally received except for (x) reasonable wear and tear, (y) damage by fire or other casualty, or (z) repairs which are specifically made the responsibility of Landlord hereunder. Upon the expiration or earlier termination of this Lease, Tenant shall not be required to remove

 

30


any Alterations or improvements (other than Specialty Improvements, as that term is defined below). Notwithstanding the above, in the event that, at the time Tenant requests Landlord’s consent to any Alterations, if Tenant also requests in writing a determination of whether Landlord will require restoration and/or removal of the particular Alterations or portions thereof for which consent is being requested upon expiration or any earlier termination of this Lease, Landlord shall so notify Tenant along with Landlord’s consent (if such consent is given). If Tenant fails to complete any required removal and/or to repair any damage caused by the removal of any Alterations, and return the affected portion of the Premises to the condition existing on the Commencement Date (except for (x) reasonable wear and tear, (y) damage by fire or other casualty, or (z) repairs which are specifically made the responsibility of Landlord hereunder), Landlord may do so and may charge the cost thereof to Tenant. Tenant hereby protects, defends, indemnifies and holds Landlord harmless from any liability, cost, obligation, expense or claim of lien in any manner relating to the installation, placement, removal or financing of any such Alterations, Tenant Improvements, fixtures and/or equipment in, on or about the Premises, which obligations of Tenant shall survive the expiration or earlier termination of this Lease. “Specialty Improvements” shall mean any of the following Alterations or Tenant Improvements: (a) safes and vaults, (b) decorative water features; (c) specialized flooring (including raised flooring); (d) conveyors and dumbwaiters; (e) any “Lines”, as that term is defined in Section 29.32 below, (f) the Commercial Kitchen, (g) any Alterations or Tenant Improvements which (i) perforate a floor slab in the Premises or a wall that encloses/encapsulates the Building structure, (ii) involve material plumbing connections (such as kitchens and executive bathrooms outside of the Building core), or (iii) require changes to the Base Building; and (h) any other unusual installations not typically found in general use office space or requiring over-standard demolition costs for the removal thereof, or which Tenant is expressly required to remove pursuant to the terms of this Lease.

ARTICLE 9

COVENANT AGAINST LIENS

Tenant shall keep the Project and Premises free from any liens or encumbrances arising out of the work performed, materials furnished or obligations incurred by or on behalf of Tenant, and shall protect, defend, indemnify and hold Landlord harmless from and against any claims, liabilities, judgments or costs (including, without limitation, reasonable attorneys’ fees and costs) arising out of same or in connection therewith. Tenant shall give Landlord notice at least twenty (20) days prior to the commencement of any such work on the Premises (or such additional time as may be necessary under Applicable Laws) to afford Landlord the opportunity of posting and recording appropriate notices of non-responsibility. Tenant shall remove any such lien or encumbrance by bond or otherwise within seven (7) business days after notice by Landlord, and if Tenant shall fail to do so, Landlord may pay the amount necessary to remove such lien or encumbrance, without being responsible for investigating the validity thereof. The amount so paid shall be deemed Additional Rent under this Lease payable upon demand, without limitation as to other remedies available to Landlord under this Lease. Nothing contained in this Lease shall authorize Tenant to do any act which shall subject Landlord’s title to the Building or Premises to any liens or encumbrances whether claimed by operation of law or express or implied contract. Any claim to a lien or encumbrance upon the Building or Premises arising in connection with any such work or respecting the Premises not performed by or at the request of Landlord shall be null and void, or at Landlord’s option shall attach only against Tenant’s interest in the Premises and shall in all respects be subordinate to Landlord’s title to the Project, Building and Premises.

ARTICLE 10

INSURANCE

10.1 Indemnification and Waiver. Except to the extent resulting from the negligence or willful misconduct of Landlord (or any Landlord Parties, as that term is defined hereinbelow), Tenant hereby assumes all risk of damage to property (subject to the waiver of subrogation in Section 10.5, below) or injury to persons in, upon or about the Premises from any cause whatsoever and agrees that Landlord, its partners, subpartners and their respective officers, agents, servants, employees, and independent contractors (collectively, “Landlord Parties”) shall not be liable for, and are hereby released from any responsibility for, any damage either to person or property or resulting from the loss of use thereof, which damage is sustained by Tenant

 

31


or by other persons claiming through Tenant. Tenant shall indemnify, defend, protect, and hold harmless the Landlord Parties from any and all loss, cost, damage, expense and liability (including without limitation court costs and reasonable attorneys’ fees) (collectively “Claims’) incurred in connection with or arising from (i) any cause in, on or about the Premises, (ii) any acts, omissions or negligence of Tenant or of any person claiming by, through or under Tenant, or of the contractors, agents, servants, employees, invitees, guests or licensees of Tenant or any such person (collectively, “Tenant Parties”), in, on or about the Project or (iii) any breach of the terms of this Lease by Tenant, either prior to, during, or after the expiration of the Lease Term, provided that the terms of the foregoing indemnity shall not apply to the negligence or willful misconduct of Landlord or any of the Landlord Parties. Should Landlord be named as a defendant in any suit brought against Tenant in connection with or arising out of Tenant’s occupancy of the Premises, Tenant shall pay to Landlord its reasonable costs and expenses incurred in such suit, including without limitation, its actual professional fees such as appraisers’, accountants’ and attorneys’ fees. Further, Tenant’s agreement to indemnify Landlord pursuant to this Section 10.1 is not intended and shall not relieve any insurance carrier of its obligations under policies required to be carried by Tenant pursuant to the provisions of this Lease, to the extent such policies cover the matters subject to Tenant’s indemnification obligations; nor shall they supersede any inconsistent agreement of the parties set forth in any other provision of this Lease. Landlord hereby indemnifies the Tenant Parties and holds the Tenant Parties harmless from any Claims to the extent resulting from the negligence or willful misconduct of Landlord or the Landlord Parties and not covered by insurance required to be carried under this Lease by Tenant or actually carried by Tenant; provided, however, that (A) Landlord hereby indemnifies and holds Tenant harmless from any Claims to any property outside of the Premises to the extent such Claim is covered by Landlord’s insurance, even if resulting from the negligent acts or omissions of Tenant or those of its agents, contractors, or employees, and (B) because Tenant must carry insurance pursuant to Section 10.3.2 to cover its personal property within the Premises and the Tenant Improvements, Tenant hereby indemnifies and holds Landlord harmless from any Claim to any property within the Premises, to the extent such Claim is covered by such insurance, even if resulting from the negligent acts or omissions of Landlord or those of its agents, contractors, or employees. Further, Landlord’s and Tenant’s agreement to indemnify the Tenant Parties and the Landlord Parties, respectively, pursuant to this Section 10.1 is not intended and shall not relieve any insurance carrier of its obligations under policies required to be carried by Landlord or Tenant, respectively, pursuant to the provisions of this Lease, to the extent such policies cover the matters subject to Landlord’s or Tenant’s indemnification obligations, as the case may be; nor shall they supersede any inconsistent agreement of the parties set forth in any other provision of this Lease. The provisions of this Section 10.1 shall survive the expiration or sooner termination of this Lease with respect to any claims or liability arising in connection with any event occurring prior to such expiration or termination.

10.2 Landlord’s Fire, Casualty and Liability Insurance. Landlord shall carry commercial general liability insurance with respect to the Building during the Lease Term, and shall further insure the Building during the Lease Term against loss or damage due to fire and other casualties covered within the classification of fire and extended coverage, vandalism coverage and malicious mischief, sprinkler leakage, water damage and special extended coverage. Such coverage shall be in such amounts, from such companies, and on such other terms and conditions, as Landlord may from time to time reasonably determine. Additionally, at the option of Landlord, such insurance coverage may include the risks of earthquakes and/or flood damage and additional hazards, a rental loss endorsement and one or more loss payee endorsements in favor of the holders of any mortgages or deeds of trust encumbering the interest of Landlord in the Building or the ground or underlying lessors of the Building, or any portion thereof. Notwithstanding the foregoing provisions of this Section 10.2, the coverage and amounts of insurance carried by Landlord in connection with the Building shall, at a minimum, be comparable to the coverage and amounts of insurance which are carried by reasonably prudent landlords of Comparable Buildings. Tenant shall, at Tenant’s expense, comply with all insurance company requirements pertaining to the use of the Premises. Tenant, at Tenant’s expense, shall comply with all rules, orders, regulations or requirements of the American Insurance Association (formerly the National Board of Fire Underwriters) and with any similar body.

 

32


10.3 Tenant’s Insurance. Tenant shall maintain the following coverages in the following amounts.

10.3.1 Commercial General Liability Insurance covering the insured against claims of bodily injury, personal injury (including death of a person or persons) and property damage (including loss of use thereof) on a per locations basis arising out of Tenant’s operations, Tenant’s use or occupancy of the Premises for limits of liability not less than:

 

Bodily Injury and

Property Damage Liability and

Personal Injury Liability

  

$5,000,000 each occurrence

$5,000,000 general aggregate

The policy(ies) will include coverage for host liquor liability.

10.3.2 Physical Damage Insurance covering (i) all office furniture, business and trade fixtures, office equipment, free-standing cabinet work, movable partitions, merchandise and all other items of personal property (including the property of Tenant or others) in the Premises or otherwise placed or installed in the Project by, for, or at the expense of Tenant or any of the Tenant Parties (including Tenant’s off-Premises equipment), (ii) the Tenant Improvements, and any other improvements which exist in the Premises as of the Lease Commencement Date (excluding the Base Building) (the “Original Improvements”), and (iii) all other improvements, alterations, betterments and additions to the Premises. Such insurance shall be written on a causes of loss-special risk form (formerly “all-risk”) or its equivalent, for the full replacement cost value new without deduction for depreciation of the covered items and shall include coverage for damage or other loss caused by fire or other peril including, but not limited to, ordinance and law, vandalism and malicious mischief, theft, windstorm, collapse, explosion, and water damage of any type, including sprinkler leakage, bursting or stoppage of pipes and sewer back-up; provided, however, that Landlord acknowledges that Tenant will be self-insuring for flood insurance through April 30, 2016.

10.3.3 Worker’s Compensation Insurance with statutory limits required by the state in which the Premises are located (or such larger amount if required by local statute) and Employer’s Liability Insurance of $1,000,000. Tenant shall be permitted to self-insure for workers’ compensation coverage in accordance with the program of workers’ compensation self-insurance in compliance with the guidelines issued by the Office of Self-Insured Plans as evidenced by its Certificate of Consent to Self-Insure issued by the California Department of Industrial Relations, Office of Self Insurance Plans.

10.3.4 Contractual Liability Insurance, but only if such contractual liability insurance is not already included in Tenant’s commercial general liability insurance policy and umbrella/excess liability insurance policy.

10.3.5 Commercial Auto Liability Insurance (if applicable) covering automobiles owned, hired or used by Tenant in carrying on its business with limits not less than $1,000,000 combined single limit for each accident.

10.3.6 Business Interruption Insurance in an amount reasonably sufficient to provide at least twelve (12) months of coverage. Extended reporting periods are acceptable if needed to meet this requirement.

10.4 Form of Policies. The minimum limits of policies of insurance required of Tenant under this Lease shall in no event limit the liability of Tenant under this Lease. Such insurance shall (i) for the general liability, auto liability, and contractual liability (if not included under the general liability policy), name Landlord, and any other parties the Landlord so specifies (including Landlord’s subsidiaries, Landlord’s property management company, Landlord’s asset management company, J.P. Morgan Investment Management Inc. (“JPMIMI”), and, if requested by Landlord in writing, Landlord’s mortgagee), as additional insureds (or, in the case of Tenant’s physical damage insurance, as additional loss-payees as their interests may appear); (ii) be issued by an insurance company having a rating of not less than A-VIII or better in Best’s Insurance Guide or which is otherwise acceptable to Landlord and licensed to do business in the State of California, aside from worker’s compensation; and (iii) be primary and non-contributory when any policy issued to Landlord and Landlord’s property management company provides duplicate or similar coverage, and in such circumstance Landlord’s or Landlord’s property management company’s policies will be excess over Tenant’s policy(ies). Tenant shall provide Landlord (and any other parties Landlord has specified as additional insureds or additional loss-payees) with not less than thirty (30) days’ prior written notice of any

 

33


cancellation of, termination of or material change to any insurance required to be carried by Tenant hereunder, in the event Tenant receives such written notice. Tenant shall deliver certificates (including endorsements) thereof (and such other evidence satisfactory to Landlord of the maintenance of such insurance) to Landlord prior to the Lease Commencement Date and within ten (10) days after each renewal of said insurance. In the event Tenant shall fail to procure such insurance, or to deliver such certificates (and such other evidence satisfactory to Landlord of the maintenance of such insurance), Landlord, in addition to any other remedy available pursuant to this Lease or otherwise, may following delivery of written notice to Tenant of such failure and Tenant’s failure to cure the same within five (5) business days following Tenant’s receipt of such notice, at its option, procure such policies for the account of Tenant, and the cost thereof shall be paid to Landlord within five (5) days after delivery to Tenant of bills therefor, plus an administrative fee of five percent (5%) of such cost. Tenant shall require any vendors or contractors that it shall hire to perform work and/or services on the Premises to procure similar insurance, as required by Landlord of Tenant in this Lease, including naming as additional insureds or additional loss payees, as applicable, Landlord and its subsidiaries, Landlord’s property management company, Landlord’s asset management company, JPMIMI, and, if requested in writing by Landlord, Landlord’s mortgagee.

10.5 Subrogation. Landlord and Tenant intend that their respective property loss risks shall be borne by reasonable insurance carriers to the extent above provided, and Landlord and Tenant hereby agree to look solely to, and seek recovery only from, their respective insurance carriers in the event of a property loss to the extent that such coverage is agreed to be provided hereunder. The parties each hereby waive all rights and claims against each other for such losses, and waive all rights of subrogation of their respective insurers, provided such waiver of subrogation shall not affect the right of the insured to recover thereunder. The parties agree that their respective property insurance policies are now, or shall be, endorsed such that the waiver of subrogation shall not affect the right of the insured to recover thereunder, so long as no material additional premium is charged therefor.

10.6 Additional Insurance Obligations. If it is determined that market conditions warrant higher limits or additional coverages for Tenant’s occupancy class, then Landlord may, in its reasonable judgment, impose on Tenant the obligation to meet the new/additional requirements so long as Landlord imposes such higher limits or additional coverages on the substantial majority of other similarly situated tenants located in the Project. In no event will Landlord impose any new/additional insurance requirement on Tenant more often than once per calendar year.

ARTICLE 11

DAMAGE AND DESTRUCTION

11.1 Repair of Damage to Premises by Landlord. Tenant shall promptly notify Landlord of any damage to the Premises resulting from fire or any other casualty. If the Premises or any Common Areas serving or providing access to the Premises shall be damaged by fire or other casualty, Landlord will, as soon as is reasonably possible following the date of the damage, deliver to Tenant a written notice (“Landlord’s Completion Notice”) containing an estimate of the time necessary to repair the damage in question such that the Premises may be used by and accessible to Tenant and the Building and Common Areas operable as a first-class office building. The Landlord’s Completion Notice will be based upon the review and opinions of Landlord’s architect and contractor taking into account that Landlord will perform the work promptly and diligently, subject to reasonable delays for insurance adjustment or other matters beyond Landlord’s reasonable control, and subject to all other terms of this Article 11, in order to restore the Premises, the Base Building and such Common Areas. Such restoration shall be to substantially the same condition of the Base Building and the Common Areas prior to the casualty, except for modifications required by zoning and building codes and other laws or by the holder of a mortgage on the Building or Project or any other modifications to the Common Areas reasonably deemed desirable by Landlord, provided that access to the Premises and any common restrooms serving the Premises shall not be materially impaired. Upon the occurrence of any damage to the Premises, Landlord shall provide notice (the “Landlord Repair Notice”) to Tenant from Landlord, stating whether Landlord has elected to make repairs to the Premises, and if Landlord has elected to make such repairs, Tenant shall assign to Landlord (or to any party designated by Landlord) all insurance proceeds payable to Tenant under Tenant’s insurance required under Section 10.3.2 (ii) and (iii) of this Lease, and Landlord shall repair any injury or

 

34


damage to the Tenant Improvements and the Original Improvements installed in the Premises and shall return such Tenant Improvements and Original Improvements to their original condition; provided that if the reasonable cost of such repair by Landlord exceeds the amount of insurance proceeds received by Landlord from Tenant’s insurance carrier, as assigned by Tenant, the cost of such repairs shall be paid by Tenant to Landlord prior to Landlord’s commencement of repair of the damage, or as soon as such additional costs are known. Prior to the commencement of any construction in the Premises by Tenant, Tenant shall submit to Landlord, for Landlord’s review and approval, all plans, specifications and working drawings relating thereto, and Landlord shall select the contractors to perform such improvement work. Landlord shall not be liable for any inconvenience or annoyance to Tenant or its visitors, or injury to Tenant’s business resulting in any way from such damage or the repair thereof; provided however, that if such fire or other casualty shall have damaged the Premises or Common Areas necessary to Tenant’s occupancy, Landlord shall allow Tenant a proportionate abatement of Rent to the extent Tenant is not reimbursed from the proceeds of business income interruption insurance (or would have been reimbursed had Tenant carried the insurance required pursuant to Section 10.3 above), during the time and to the extent the Premises are unfit for occupancy for the purposes permitted under this Lease, and not occupied by Tenant as a result thereof; provided, further, however, that if the damage or destruction is due to the gross negligence or willful misconduct of Tenant or any of its agents, employees, contractors, invitees or guests, Tenant shall be responsible for any reasonable, applicable insurance deductible (which shall be payable to Landlord upon demand) and there shall be no rent abatement. In the event that Landlord shall not deliver the Landlord Repair Notice and the Lease is not terminated pursuant to this Article 11, Tenant’s right to rent abatement pursuant to the preceding sentence shall terminate as of the date which is reasonably determined by Landlord to be the date Tenant should have completed repairs to the Premises assuming Tenant used reasonable due diligence in connection therewith and assuming that Landlord has completed the repairs Landlord is required to make pursuant to this Article 11.

11.2 Landlord’s Option to Repair. Notwithstanding the terms of Section 11.1 of this Lease, Landlord may elect not to rebuild and/or restore the Premises, Building and/or Project, and instead terminate this Lease, by notifying Tenant in writing of such termination within sixty (60) days after the date of damage, such notice to include a termination date giving Tenant sixty (60) days to vacate the Premises, but Landlord may so elect only if the Building or Project shall be damaged by fire or other casualty or cause, whether or not the Premises are affected, and one or more of the following conditions is present: (i) in Landlord’s reasonable judgment, repairs cannot reasonably be completed within one hundred eighty (180) days after the date of discovery of the damage (when such repairs are made without the payment of overtime or other premiums); (ii) the holder of any mortgage on the Building or Project or ground lessor with respect to the Building or Project shall require that the insurance proceeds or any portion thereof be used to retire the mortgage debt, or shall terminate the ground lease, as the case may be; (iii) the damage is not fully covered by the sum of (A) Landlord’s insurance policies plus (B) the amount of any applicable deductibles; or (iv) the damage occurs during the last twelve (12) months of the Lease Term; provided, however, that as a condition to such termination, all other leases in the Building for premises which are similarly affected by such damage must be concurrently terminated; provided, further, that if Landlord does not elect to terminate this Lease pursuant to Landlord’s termination right as provided above, and if, pursuant to Landlord’s Completion Notice, the restoration shall not be substantially completed on or before the date which shall be nine (9) months following the date of such damage or destruction, Tenant shall have the right to terminate this Lease by giving written notice (the “Termination Notice”) to Landlord not later than thirty (30) days following receipt of Landlord’s Completion Notice. If Tenant gives a Termination Notice, this Lease shall be deemed cancelled and terminated as of the date of the damage as if such date were the Expiration Date, and Rent shall be apportioned and shall be paid or refunded, as the case may be up to and including the date of such damage or destruction. Furthermore, if neither Landlord nor Tenant has terminated this Lease, and the repairs are not actually completed within two (2) months after the expiration of the estimated period of time set forth in Landlord’s Completion Notice, which period shall be extended to the extent of any delays (x) caused by Tenant or (y) caused by Force Majeure (up to a maximum of forty-five (45) days of additional delay due to Force Majeure), then Tenant may terminate this Lease by written notice (the “Damage Termination Notice”) to Landlord within thirty (30) days after the expiration of such period, as the same may be so extended. Notwithstanding the provisions of this Section 11.2, Tenant shall have the right to terminate this Lease under this Section 11.2 only if each of the following conditions is satisfied: (a) the damage to the Project by fire or other casualty was not caused by the gross negligence or intentional act of Tenant or its partners or subpartners and their respective officers, agents, servants, employees, and independent contractors; and (b) as a result of the damage, Tenant cannot reasonably conduct business from the Premises (or a material portion thereof)

 

35


11.3 Waiver of Statutory Provisions. The provisions of this Lease, including this Article 11, constitute an express agreement between Landlord and Tenant with respect to any and all damage to, or destruction of, all or any part of the Premises, the Building or the Project, and any statute or regulation of the State of California, including, without limitation, Sections 1932(2) and 1933(4) of the California Civil Code, with respect to any rights or obligations concerning damage or destruction in the absence of an express agreement between the parties, and any other statute or regulation, now or hereafter in effect, shall have no application to this Lease or any damage or destruction to all or any part of the Premises, the Building or the Project.

ARTICLE 12

NONWAIVER

No provision of this Lease shall be deemed waived by either party hereto unless expressly waived in a writing signed thereby. The waiver by either party hereto of any breach of any term, covenant or condition herein contained shall not be deemed to be a waiver of any subsequent breach of same or any other term, covenant or condition herein contained. The subsequent acceptance of Rent hereunder by Landlord shall not be deemed to be a waiver of any preceding breach by Tenant of any term, covenant or condition of this Lease, other than the failure of Tenant to pay the particular Rent so accepted, regardless of Landlord’s knowledge of such preceding breach at the time of acceptance of such Rent. No acceptance of a lesser amount than the Rent herein stipulated shall be deemed a waiver of Landlord’s right to receive the full amount due, nor shall any endorsement or statement on any check or payment or any letter accompanying such check or payment be deemed an accord and satisfaction, and Landlord may accept such check or payment without prejudice to Landlord’s right to recover the full amount due. No receipt of monies by Landlord from Tenant after the termination of this Lease shall in any way alter the length of the Lease Term or of Tenant’s right of possession hereunder, or after the giving of any notice shall reinstate, continue or extend the Lease Term or affect any notice given Tenant prior to the receipt of such monies, it being agreed that after the service of notice or the commencement of a suit, or after final judgment for possession of the Premises, Landlord may receive and collect any Rent due, and the payment of said Rent shall not waive or affect said notice, suit or judgment.

ARTICLE 13

CONDEMNATION

If the whole or any part of the Premises, Building or Project shall be taken by power of eminent domain or condemned by any competent authority for any public or quasi-public use or purpose, or if any adjacent property or street shall be so taken or condemned, or reconfigured or vacated by such authority in such manner as to require the use, reconstruction or remodeling of any part of the Premises, Building or Project, or if Landlord shall grant a deed or other instrument in lieu of such taking by eminent domain or condemnation, Landlord shall have the option to terminate this Lease effective as of the date possession is required to be surrendered to the authority. If more than twenty-five percent (25%) of the rentable square feet of the Premises is taken, or if access to the Premises is substantially impaired, in each case for a period in excess of one hundred eighty (180) days, Tenant shall have the option to terminate this Lease effective as of the date possession is required to be surrendered to the authority. Tenant shall not because of such taking assert any claim against Landlord or the authority for any compensation because of such taking and Landlord shall be entitled to the entire award or payment in connection therewith, except that Tenant shall have the right to file any separate claim available to Tenant for any taking of Tenant’s personal property and fixtures belonging to Tenant and removable by Tenant upon expiration of the Lease Term pursuant to the terms of this Lease, and for moving expenses, so long as such claims do not diminish the award available to Landlord, its ground lessor with respect to the Building or Project or its mortgagee, and such claim is payable separately to Tenant. All Rent shall be apportioned as of the date of such termination. If any part of the Premises shall be taken, and this Lease shall not be so terminated, the Rent shall be proportionately abated. Tenant hereby waives any and all rights it might otherwise have

 

36


pursuant to Section 1265.130 of The California Code of Civil Procedure. Notwithstanding anything to the contrary contained in this Article 13, in the event of a temporary taking of all or any portion of the Premises for a period of one hundred and eighty (180) days or less, then this Lease shall not terminate but the Base Rent and the Additional Rent shall be abated for the period of such taking in proportion to the ratio that the amount of rentable square feet of the Premises taken bears to the total rentable square feet of the Premises. Landlord shall be entitled to receive the entire award made in connection with any such temporary taking.

ARTICLE 14

ASSIGNMENT AND SUBLETTING

14.1 Transfers. Tenant shall not, without the prior written consent of Landlord, assign, mortgage, pledge, hypothecate, encumber, or permit any lien to attach to, or otherwise transfer, this Lease or any interest hereunder, permit any assignment, or other transfer of this Lease or any interest hereunder by operation of law, sublet the Premises or any part thereof, or enter into any license or concession agreements or otherwise permit the occupancy or use of the Premises or any part thereof by any persons other than Tenant and its employees and contractors (all of the foregoing are hereinafter sometimes referred to collectively as “Transfers” and any person to whom any Transfer is made or sought to be made is hereinafter sometimes referred to as a “Transferee”). If Tenant desires Landlord’s consent to any Transfer, Tenant shall notify Landlord in writing, which notice (the “Transfer Notice”) shall include (i) the proposed effective date of the Transfer, which shall not be less than thirty (30) days nor more than one hundred eighty (180) days after the date of delivery of the Transfer Notice, (ii) a description of the portion of the Premises to be transferred (the “Subject Space”), (iii) all of the terms of the proposed Transfer and the consideration therefor, including calculation of the “Transfer Premium”, as that term is defined in Section 14.3 below, in connection with such Transfer, the name and address of the proposed Transferee, and a copy of all existing executed and/or proposed documentation pertaining to the proposed Transfer, including all existing operative documents to be executed to evidence such Transfer or the agreements incidental or related to such Transfer, provided that Landlord shall have the right to require Tenant to utilize Landlord’s standard Transfer documents in connection with the documentation of such Transfer, (iv) current financial statements of the proposed Transferee certified by an officer, partner or owner thereof, business credit and personal references and history of the proposed Transferee and any other information reasonably required by Landlord which will enable Landlord to determine the financial responsibility, character, and reputation of the proposed Transferee, nature of such Transferee’s business and proposed use of the Subject Space, and (v) an executed estoppel certificate from Tenant in the form attached hereto as Exhibit E, which is requested within five (5) business days following Tenant’s submission to Landlord of the items described in clauses (i), (ii), (iii) and (iv) of this Section 14.1. Any Transfer made without Landlord’s prior written consent shall, at Landlord’s option, be null, void and of no effect, and shall, at Landlord’s option, constitute a default by Tenant under this Lease. Whether or not Landlord consents to any proposed Transfer, Tenant shall pay Landlord’s review and processing fees, as well as any reasonable professional fees (including, without limitation, attorneys’, accountants’, architects’, engineers’ and consultants’ fees) incurred by Landlord, within thirty (30) days after written request by Landlord, not to exceed $3,500 for a Transfer in the ordinary course of business. For purposes hereof, “in the ordinary course of business” shall include the review of Transfer documentation on no more than two (2) occasions.

14.2 Landlord’s Consent. Landlord shall not unreasonably withhold its consent to any proposed Transfer of the Subject Space to the Transferee on the terms specified in the Transfer Notice and will respond to Tenant’s Transfer Notice within fifteen (15) business days following delivery by Tenant of the Transfer Notice and all of the items described in Section 14.1 above. If Landlord fails to timely deliver to Tenant notice of Landlord’s consent, or the withholding of consent, to a proposed Transfer, Tenant may send a second (2nd) notice to Landlord, which notice must contain the following inscription, in bold faced lettering: “SECOND NOTICE DELIVERED PURSUANT TO ARTICLE 14 OF LEASE — FAILURE TO TIMELY RESPOND WITHIN FIVE (5) BUSINESS DAYS SHALL RESULT IN DEEMED APPROVAL OF ASSIGNMENT OR SUBLEASE.” If Landlord fails to deliver notice of Landlord’s consent to, or the withholding of Landlord’s consent, to the proposed assignment or sublease within five (5) business days following receipt of such second notice, Landlord shall be deemed to have approved the assignment or sublease in question. If Landlord at any time timely delivers notice to Tenant or Landlord’s withholding of consent to a

 

37


proposed assignment or sublease, Landlord shall specify in reasonable detail in such notice, the basis for such withholding of consent. Without limitation as to other reasonable grounds for withholding consent, the parties hereby agree that it shall be reasonable under this Lease and under any applicable law for Landlord to withhold consent to any proposed Transfer where one or more of the following apply:

14.2.1 The Transferee is of a character or reputation or engaged in a business which is not consistent with the quality of the Building or the Project;

14.2.2 The Transferee intends to use the Subject Space for purposes which are not permitted under this Lease;

14.2.3 The Transferee is either a governmental agency or instrumentality thereof;

14.2.4 The Transferee is not a party of reasonable financial worth and/or financial stability in light of the responsibilities to be undertaken in connection with the Transfer on the date consent is requested;

14.2.5 The proposed Transfer would cause a violation of another lease for space in the Project, or would give an occupant of the Project a right to cancel its lease;

14.2.6 The terms of the proposed Transfer will allow the Transferee to exercise a right of renewal, right of expansion, right of first offer, or other similar right held by Tenant (or will allow the Transferee to occupy space leased by Tenant pursuant to any such right); or

14.2.7 Either the proposed Transferee, or any person or entity which directly or indirectly, controls, is controlled by, or is under common control with, the proposed Transferee, (i) is negotiating or, within the immediately preceding four (4) month period, has negotiated with Landlord to lease space in the Project and Landlord has comparable vacant space in the Project.

14.2.8 The sublease documentation does not require the subtenant occupy at least seventy-five percent (75%) or more of the sublease space during the first twelve (12) months of the sublease term.

If Landlord consents to any Transfer pursuant to the terms of this Section 14.2 (and does not exercise any recapture rights Landlord may have under Section 14.4 of this Lease), Tenant may within six (6) months after Landlord’s consent, but not later than the expiration of said six-month period, enter into such Transfer of the Premises or portion thereof, upon substantially the same terms and conditions as are set forth in the Transfer Notice (or the binding letter of intent described in Section 14.4 below) furnished by Tenant to Landlord pursuant to Section 14.1 of this Lease, provided that if there are any changes in the terms and conditions from those specified in the Transfer Notice (or the binding letter of intent described in Section 14.4 below) (i) such that Landlord would initially have been entitled to refuse its consent to such Transfer under this Section 14.2, or (ii) which would cause the proposed Transfer to be more favorable to the Transferee than the terms set forth in Tenant’s original Transfer Notice, Tenant shall again submit the Transfer to Landlord for its approval and other action under this Article 14 (including Landlord’s right of recapture, if any, under Section 14.4 of this Lease). Notwithstanding anything to the contrary in this Lease, if Tenant or any proposed Transferee claims that Landlord has unreasonably withheld or delayed its consent under Section 14.2 or otherwise has breached or acted unreasonably under this Article 14, their sole remedies shall be a declaratory judgment and an injunction for the relief sought without any monetary damages, and Tenant hereby waives all other remedies, including, without limitation, any right at law or equity to terminate this Lease, on its own behalf and, to the extent permitted under all Applicable Laws, on behalf of the proposed Transferee. Tenant shall indemnify, defend and hold harmless Landlord from any and all liability, losses, claims, damages, costs, expenses, causes of action and proceedings involving any third party or parties (including without limitation Tenant’s proposed subtenant or assignee) who claim they were damaged by Landlord’s wrongful withholding or conditioning of Landlord’s consent.

 

38


14.3 Transfer Premium. If Landlord consents to a Transfer, as a condition thereto which the parties hereby agree is reasonable, Tenant shall pay to Landlord fifty percent (50%) of any “Transfer Premium,” as that term is defined in this Section 14.3, received by Tenant from such Transferee. “Transfer Premium” shall mean all rent, additional rent or other consideration payable by such Transferee in connection with the Transfer in excess of the Rent and Additional Rent payable by Tenant under this Lease during the term of the Transfer on a per rentable square foot basis if less than all of the Premises is transferred. “Transfer Premium” shall also include, but not be limited to, key money, bonus money or other cash consideration paid by Transferee to Tenant in connection with such Transfer, and any payment in excess of fair market value for services rendered by Tenant to Transferee or for assets, fixtures, inventory, equipment, or furniture transferred by Tenant to Transferee in connection with such Transfer. In the calculations of the Rent (as it relates to the Transfer Premium calculated under this Section 14.3), and the Transferee’s Rent under Section 14.2 of this Lease, the Rent paid during each annual period for the Subject Space, and the Transferee’s Rent, shall be computed after adjusting such rent to the actual effective rent to be paid, taking into consideration any and all leasehold concessions granted in connection therewith, including, but not limited to, any rent credit, brokerage commissions paid, and tenant improvement allowance. For purposes of calculating any such effective rent all such concessions shall be amortized on a straight-line basis over the relevant term.

14.4 Landlord’s Option as to Subject Space. Notwithstanding anything to the contrary contained in this Article 14, Landlord shall have the option, by giving written notice to Tenant within thirty (30) days after receipt of either (i) a Transfer Notice or (ii) a fully executed and binding letter of intent pertaining to a particular Transfer, to recapture the Subject Space or the entirety of the Premises in the event Tenant contemplates a Transfer which, together with all prior Transfers then remaining in effect, would cause fifty percent (50%) or more of the Premises to be Transferred for fifty percent (50%) or more of the then-remaining Lease Term. Such recapture notice shall cancel and terminate this Lease with respect to the Subject Space as of the date stated in the Transfer Notice as the effective date of the proposed Transfer until the last day of the term of the Transfer as set forth in the Transfer Notice (or at Landlord’s option, shall cause the Transfer to be made to Landlord or its agent, in which case the parties shall execute the Transfer documentation promptly thereafter). In the event of a recapture by Landlord, if this Lease shall be canceled with respect to less than the entire Premises, the Rent reserved herein shall be prorated on the basis of the number of rentable square feet retained by Tenant in proportion to the number of rentable square feet contained in the Premises, and this Lease as so amended shall continue thereafter in full force and effect, and upon request of either party, the parties shall execute written confirmation of the same. If Landlord declines, or fails to elect in a timely manner to recapture the Subject Space under this Section 14.4, then, provided Landlord has consented to the proposed Transfer, Tenant shall be entitled to proceed to transfer the Subject Space to the proposed Transferee, subject to provisions of this Article 14.

14.5 Effect of Transfer. If Landlord consents to a Transfer, (i) the terms and conditions of this Lease shall in no way be deemed to have been waived or modified, (ii) such consent shall not be deemed consent to any further Transfer by either Tenant or a Transferee, (iii) Tenant shall deliver to Landlord, promptly after execution, an original executed copy of all documentation pertaining to the Transfer in form reasonably acceptable to Landlord, (iv) Tenant shall furnish upon Landlord’s request a complete statement, certified by an independent certified public accountant, or Tenant’s chief financial officer, setting forth in detail the computation of any Transfer Premium Tenant has derived and shall derive from such Transfer, and (v) no Transfer relating to this Lease or agreement entered into with respect thereto, whether with or without Landlord’s consent, shall relieve Tenant or any guarantor of the Lease from any liability under this Lease, including, without limitation, in connection with the Subject Space. Landlord or its authorized representatives shall have the right at all reasonable times to audit the books, records and papers of Tenant relating to any Transfer, and shall have the right to make copies thereof, and upon request from Tenant, Landlord agrees to sign a commercially reasonable confidentiality agreement in connection with such audit. If the Transfer Premium respecting any Transfer shall be found understated, Tenant shall, within thirty (30) days after demand, pay the deficiency, and if understated by more than five percent (5%), Tenant shall pay Landlord’s costs of such audit, not to exceed $2,000 for a Transfer in the ordinary course of business.

14.6 Additional Transfers. For purposes of this Lease, the term “Transfer” shall also include (i) if Tenant is a partnership, the withdrawal or change, voluntary, involuntary or by operation of law, of fifty percent (50%) or more of the partners, or transfer of fifty percent (50%) or more of partnership interests, within a twelve (12)-month period, or the dissolution of the partnership without immediate reconstitution thereof, and (ii) if Tenant is a closely held corporation (i.e., whose stock is not publicly held and not traded through an exchange or over the

 

39


counter), (A) the dissolution, merger, consolidation or other reorganization of Tenant or (B) the sale or other transfer of an aggregate of fifty percent (50%) or more of the voting shares of Tenant (other than to immediate family members by reason of gift or death), within a twelve (12)-month period, or (C) the sale, mortgage, hypothecation or pledge of an aggregate of fifty percent (50%) or more of the value of the unencumbered assets of Tenant within a twelve (12)-month period.

14.7 Occurrence of Default. Any Transfer hereunder shall be subordinate and subject to the provisions of this Lease, and if this Lease shall be terminated during the term of any Transfer, Landlord shall have the right to: (i) treat such Transfer as cancelled and repossess the Subject Space by any lawful means, or (ii) require that such Transferee attorn to and recognize Landlord as its landlord under any such Transfer. If Tenant shall be in Default under this Lease, Landlord is hereby irrevocably authorized to direct any Transferee to make all payments under or in connection with the Transfer directly to Landlord (which Landlord shall apply towards Tenant’s obligations under this Lease) until such Default is cured. Such Transferee shall rely on any representation by Landlord that Tenant is in Default hereunder, without any need for confirmation thereof by Tenant. Upon any assignment, the assignee shall assume in writing all obligations and covenants of Tenant thereafter to be performed or observed under this Lease. No collection or acceptance of rent by Landlord from any Transferee shall be deemed a waiver of any provision of this Article 14 or the approval of any Transferee or a release of Tenant from any obligation under this Lease, whether theretofore or thereafter accruing. In no event shall Landlord’s enforcement of any provision of this Lease against any Transferee be deemed a waiver of Landlord’s right to enforce any term of this Lease against Tenant or any other person. If Tenant’s obligations hereunder have been guaranteed, Landlord’s consent to any Transfer shall not be effective unless the guarantor also consents to such Transfer.

14.8 Permitted Transfers. Notwithstanding anything to the contrary contained in this Article 14, (i) a Transfer by Tenant to a Transferee which is an affiliate of Tenant (an entity which is controlled by, controls, or is under common control with, Tenant, an “Affiliate”), (ii) an assignment by Tenant to a Transferee which is an entity which acquires all or substantially all of the assets or interests (partnership, stock or other) of Tenant, or (iii) an assignment by Tenant to a Transferee which is an entity which is the resulting entity of a merger or consolidation of Tenant, (iv) the sale, assignment, transfer or hypothecation of any stock or other ownership interest in Tenant in connection with any bona fide financing or capitalization for the benefit of Tenant or in connection with an initial public offering, (v) the sale, assignment, transfer or hypothecation of any stock or other ownership interest in Tenant to an existing shareholder of Tenant (i.e., an existing shareholder in Tenant as of the full execution and delivery of this Lease), (vi) an assignment of this Lease to an entity which acquires all or substantially all of the stock or assets of Tenant in one or a series of transactions, shall not require Landlord’s consent under Sections 14.1 and 14.2, above, and shall not be subject to Sections 14.3 or 14.4, above, provided that (A) Tenant provides not less than thirty (30) days’ prior notice to Landlord of any such Transfer (unless such advance notice is prohibited by applicable Law, in which case notice shall be provided to Landlord promptly following such Transfer) and promptly supplies Landlord with any documents or information reasonably requested by Landlord regarding such Transfer or Affiliate, (B) such Transfer is not a subterfuge by Tenant to avoid its obligations under this Lease, and (C) in the event of an assignment under this Section 14.8, the Transferee shall have a tangible net worth computed in accordance with generally accepted accounting principles consistently applied (and excluding goodwill, organization costs and other intangible assets) which is at least equal to Five Hundred Million Dollars ($500,000,000), (iv) proof satisfactory to Landlord of such net worth is delivered to Landlord at least ten (10) days prior to the effective date of any such transaction (unless such advance notice is prohibited by applicable Law, in which case notice shall be provided to Landlord promptly following such Transfer). The assignee under a transfer specified in items (i), (ii) or (iii) above shall be referred to as a “Permitted Transferee Assignee.” “Control,” as used in this Section 14.8, shall mean the ownership, directly or indirectly, of at least fifty-one percent (51%) of the voting securities of, or possession of the right to vote, in the ordinary direction of its affairs, of at least fifty-one percent (51%) of the voting interest in, any person or entity.

 

40


ARTICLE 15

SURRENDER OF PREMISES; OWNERSHIP AND

REMOVAL OF TRADE FIXTURES

15.1 Surrender of Premises. No act or thing done by Landlord or any agent or employee of Landlord during the Lease Term shall be deemed to constitute an acceptance by Landlord of a surrender of the Premises unless such intent is specifically acknowledged in writing by Landlord. The delivery of keys to the Premises to Landlord or any agent or employee of Landlord shall not constitute a surrender of the Premises or effect a termination of this Lease, whether or not the keys are thereafter retained by Landlord, and notwithstanding such delivery Tenant shall be entitled to the return of such keys at any reasonable time upon request until this Lease shall have been properly terminated. The voluntary or other surrender of this Lease by Tenant, whether accepted by Landlord or not, or a mutual termination hereof, shall not work a merger, and at the option of Landlord shall operate as an assignment to Landlord of all subleases or subtenancies affecting the Premises or terminate any or all such sublessees or subtenancies.

15.2 Removal of Tenant Property by Tenant. Upon the expiration of the Lease Term, or upon any earlier termination of this Lease, Tenant shall, subject to the provisions of this Article 15, quit and surrender possession of the Premises to Landlord in as good order and condition as when Tenant took possession and as thereafter improved by Landlord and/or Tenant, except for (x) reasonable wear and tear, (y) damage by fire or other casualty that is not Tenant’s obligation to repair hereunder, or (z) repairs which are specifically made the responsibility of Landlord hereunder. Upon such expiration or termination, in addition to Tenant’s removal and repair obligations with respect to Alterations pursuant to the terms of Article 8, above, and with respect to Lines pursuant to the terms of Section 29.32, below, Tenant shall be obligated, without expense to Landlord, to remove or cause to be removed from the Premises all debris and rubbish, and such items of furniture, equipment, business and trade fixtures, free-standing cabinet work, movable partitions and other articles of personal property owned by Tenant or installed or placed by Tenant at its expense in the Premises, and such similar articles of any other persons claiming under Tenant, as Landlord may, in its sole discretion, require to be removed (the “Tenant Personal Property”). Tenant shall repair, at its own expense, all damage to the Premises and Building resulting from such removal (specifically including, without limitation, any holes or other marks left in or on any walls, floors or ceilings) and shall return the affected portion of the Premises to building standard tenant improved condition as determined by Landlord. Landlord shall have the right, at Tenant’s sole cost and expense, to dispose of any Tenant Personal Property remaining in the Premises after Tenant’s vacation of the same in any manner Landlord sees fit.

ARTICLE 16

HOLDING OVER

If Tenant holds over after the expiration of the Lease Term or earlier termination thereof, with or without the express or implied consent of Landlord, such tenancy shall be from month-to-month only, and shall not constitute a renewal hereof or an extension for any further term, and in such case Rent shall be payable at a monthly rate equal to the product of (i) the Rent applicable during the last rental period of the Lease Term under this Lease, and (ii) 150%. Such month-to-month tenancy shall be subject to every other applicable term, covenant and agreement contained herein. Nothing contained in this Article 16 shall be construed as consent by Landlord to any holding over by Tenant, and Landlord expressly reserves the right to require Tenant to surrender possession of the Premises to Landlord as provided in this Lease upon the expiration or other termination of this Lease. The provisions of this Article 16 shall not be deemed to limit or constitute a waiver of any other rights or remedies of Landlord provided herein or at law. If Tenant fails to surrender the Premises upon the termination or expiration of this Lease, in addition to any other liabilities to Landlord accruing therefrom, Tenant shall protect, defend, indemnify and hold Landlord harmless from all loss, costs (including reasonable attorneys’ fees) and liability resulting from such failure, including, without limiting the generality of the foregoing, any claims made by any succeeding tenant founded upon such failure to surrender and any lost profits to Landlord resulting therefrom.

 

41


ARTICLE 17

ESTOPPEL CERTIFICATES; AUDITED FINANCIAL STATEMENTS

17.1 Estoppel Certificates. Within ten (10) business days following a request in writing by Landlord, Tenant shall execute, acknowledge and deliver to Landlord an estoppel certificate, which, as submitted by Landlord, shall be substantially in the form of Exhibit E, attached hereto (or such other form as may be required by any prospective mortgagee or purchaser of the Project, or any portion thereof), indicating therein any exceptions thereto that may exist at that time, and shall also contain any other information reasonably requested by Landlord or Landlord’s mortgagee or prospective mortgagee. Any such certificate may be relied upon by any prospective mortgagee or purchaser of all or any portion of the Project. Tenant shall execute and deliver whatever other instruments may be reasonably required for such purposes. Failure of Tenant to timely execute, acknowledge and deliver such estoppel certificate shall constitute an acceptance of the Premises and an acknowledgment by Tenant that statements included in the estoppel certificate are true and correct, without exception.

17.2 Audited Financial Statements. No more than once per calendar year (other than in connection with (i) any event wherein Tenant has exercised any rights hereunder to expand within the Project, (ii) a Transfer pursuant to Article 14 above, (iii) a reduction in the L-C pursuant to Article 30 below, or (iv) in the event Tenant is then in Default under this Lease), Landlord may require Tenant to provide Landlord with Tenant’s current annual or quarterly financial statement prepared in accordance with generally accepted accounting principles and audited by an independent certified public accountant (including a balance sheet, statement of income and statement of cash flow (“Audited Financial Statement”) and Audited Financial Statements of the two (2) prior years, which Audited Financial Statements Landlord shall receive and maintain in strictest confidence in accordance with the terms of Section 29.28 below. Tenant may provide such Audited Financial Statements via an on-line diligence site, and shall not be obligated to provide hardcopies of the same. The foregoing shall not limit Tenant’s obligation not provide Landlord with Audited Financial Statements as set forth elsewhere in this Lease.

ARTICLE 18

SUBORDINATION

This Lease shall be subject and subordinate to all present and future ground or underlying leases of the Building or Project and to the lien of any mortgage, trust deed or other encumbrances now or hereafter in force against the Building or Project or any part thereof, if any, and to all renewals, extensions, modifications, consolidations and replacements thereof, and to all advances made or hereafter to be made upon the security of such mortgages or trust deeds, unless the holders of such mortgages, trust deeds or other encumbrances, or the lessors under such ground lease or underlying leases, require in writing that this Lease be superior thereto (collectively, the “Superior Holders”); provided, however, that in consideration of and a condition precedent to Tenant’s agreement to subordinate this Lease to any future mortgage, trust deed or other encumbrances, shall be the receipt by Tenant of a subordination non-disturbance and attornment agreement in the standard form provided by such Superior Holders with such commercially reasonable modifications as Tenant may reasonably request and such Superior Holders consent to, which requires such Superior Holder to accept this Lease, and not to disturb Tenant’s possession, so long as an Event of Default has not occurred and be continuing (a “SNDA”) executed by Landlord and the appropriate Superior Holder. Tenant covenants and agrees in the event any proceedings are brought for the foreclosure of any such mortgage or deed in lieu thereof (or if any ground lease is terminated), to attorn, without any deductions or set-offs whatsoever, to the lienholder or purchaser or any successors thereto upon any such foreclosure sale or deed in lieu thereof (or to the ground lessor), if so requested to do so by such purchaser or lienholder or ground lessor, and to recognize such purchaser or lienholder or ground lessor as the lessor under this Lease, provided such lienholder or purchaser or ground lessor shall agree to accept this Lease and not disturb Tenant’s occupancy, so long as Tenant timely pays the rent and observes and performs the terms, covenants and conditions of this Lease to be observed and performed by Tenant. Landlord’s interest herein may be assigned as security at any time to any lienholder. Tenant shall, within ten (10) business days of request by Landlord, execute such further instruments or assurances as Landlord may reasonably deem necessary to evidence or confirm the subordination or superiority of this Lease to any such mortgages, trust deeds, ground

 

42


leases or underlying leases. Tenant waives the provisions of any current or future statute, rule or law which may give or purport to give Tenant any right or election to terminate or otherwise adversely affect this Lease and the obligations of the Tenant hereunder in the event of any foreclosure proceeding or sale. Tenant shall, within ten (10) business days of request by Landlord from time to time, (i) execute a Nondisturbance and Attornment Agreement reasonably approved by Tenant and Landlord’s mortgagee in favor of any mortgagee of the Building or Project, and (ii) execute any other form of nondisturbance and attornment agreement (or subordination, nondisturbance and attornment agreement, or subordination of the applicable mortgagee’s lien) reasonably required by any mortgagee of the Building or Project which provides comparable nondisturbance protection to Tenant in the event of a foreclosure. At no cost to Landlord, Landlord shall use commercially reasonable efforts to provide Tenant, within sixty (60) days following the full execution and delivery of this Lease, with a commercially reasonable SNDA from Landlord’s mortgagee holding a first deed of trust and existing as of the date of this Lease; provided, however, Landlord’s failure to obtain such SNDA shall not be a default under this Lease or affect the validity of this Lease.

ARTICLE 19

DEFAULTS; REMEDIES

19.1 Events of Default. The occurrence of any of the following shall constitute a default of this Lease by Tenant (each, a “Default”):

19.1.1 Any failure by Tenant to pay any Rent or any other charge required to be paid under this Lease, or any part thereof, when due unless such failure is cured within three (3) business days after notice; or

19.1.2 Except where a specific time period is otherwise set forth for Tenant’s performance in this Lease, in which event the failure to perform by Tenant within such time period shall be a default by Tenant under this Section 19.1.2, any failure by Tenant to observe or perform any other provision, covenant or condition of this Lease to be observed or performed by Tenant where such failure continues for ten (10) business days after written notice thereof from Landlord to Tenant; provided that if the nature of such default is such that the same cannot reasonably be cured within a ten (10) business day period, Tenant shall not be deemed to be in default if it diligently commences such cure within such period and thereafter diligently proceeds to rectify and cure such default, but in no event exceeding a period of time in excess of ninety (90) days after written notice thereof from Landlord to Tenant; or

19.1.3 To the extent permitted by law, a general assignment by Tenant or any guarantor of the Lease for the benefit of creditors, or the taking of any corporate action in furtherance of bankruptcy or dissolution whether or not there exists any proceeding under an insolvency or bankruptcy law, or the filing by or against Tenant or any guarantor of any proceeding under an insolvency or bankruptcy law, unless in the case of a proceeding filed against Tenant or any guarantor the same is dismissed within sixty (60) days, or the appointment of a trustee or receiver to take possession of all or substantially all of the assets of Tenant or any guarantor, unless possession is restored to Tenant or such guarantor within thirty (30) days, or any execution or other judicially authorized seizure of all or substantially all of Tenant’s assets located upon the Premises or of Tenant’s interest in this Lease, unless such seizure is discharged within thirty (30) days; or

19.1.4 Abandonment of all or a substantial portion of the Premises by Tenant; or

19.1.5 The failure by Tenant to observe or perform according to the provisions of Articles 5, 14, 17 or 18 of this Lease where such failure continues for more than three (3) business days after notice from Landlord.

The notice periods provided herein are in lieu of, and not in addition to, any notice periods provided by law.

19.2 Remedies Upon Default. Upon the occurrence of any Default by Tenant, Landlord shall have, in addition to any other remedies available to Landlord at law or in equity (all of which remedies shall be distinct, separate and cumulative), the option to pursue any one or more of the following remedies, each and all of which shall be cumulative and nonexclusive, without any notice or demand whatsoever.

 

43


19.2.1 Terminate this Lease, in which event Tenant shall immediately surrender the Premises to Landlord, and if Tenant fails to do so, Landlord may, without prejudice to any other remedy which it may have for possession or arrearages in rent, enter upon and take possession of the Premises and expel or remove Tenant and any other person who may be occupying the Premises or any part thereof, without being liable for prosecution or any claim or damages therefor; and Landlord may recover from Tenant the following:

(i) The worth at the time of award of any unpaid rent which has been earned at the time of such termination; plus

(ii) The worth at the time of award of the amount by which the unpaid rent which would have been earned after termination until the time of award exceeds the amount of such rental loss that Tenant proves could have been reasonably avoided; plus

(iii) The worth at the time of award of the amount by which the unpaid rent for the balance of the Lease Term after the time of award exceeds the amount of such rental loss that Tenant proves could have been reasonably avoided; plus

(iv) Any other amount necessary to compensate Landlord for all the detriment proximately caused by Tenant’s failure to perform its obligations under this Lease or which in the ordinary course of things would be likely to result therefrom, specifically including but not limited to, brokerage commissions and advertising expenses incurred, expenses of remodeling the Premises or any portion thereof for a new tenant, whether for the same or a different use, and any special concessions made to obtain a new tenant; and

(v) At Landlord’s election, such other amounts in addition to or in lieu of the foregoing as may be permitted from time to time by applicable law.

The term “rent” as used in this Section 19.2 shall be deemed to be and to mean all sums of every nature required to be paid by Tenant pursuant to the terms of this Lease, whether to Landlord or to others. As used in Paragraphs 19.2.1(i) and (ii), above, the “worth at the time of award” shall be computed by allowing interest at the rate set forth in Article 25 of this Lease, but in no case greater than the maximum amount of such interest permitted by law. As used in Paragraph 19.2.1(iii) above, the “worth at the time of award” shall be computed by discounting such amount at the discount rate of the Federal Reserve Bank of San Francisco at the time of award plus one percent (1%).

19.2.2 Landlord shall have the remedy described in California Civil Code Section 1951.4 (lessor may continue lease in effect after lessee’s breach and abandonment and recover rent as it becomes due, if lessee has the right to sublet or assign, subject only to reasonable limitations). Accordingly, if Landlord does not elect to terminate this Lease on account of any default by Tenant, Landlord may, from time to time, without terminating this Lease, enforce all of its rights and remedies under this Lease, including the right to recover all rent as it becomes due.

19.2.3 Landlord shall at all times have the rights and remedies (which shall be cumulative with each other and cumulative and in addition to those rights and remedies available under Sections 19.2.1 and 19.2.2, above, or any law or other provision of this Lease), without prior demand or notice except as required by applicable law, to seek any declaratory, injunctive or other equitable relief, and specifically enforce this Lease, or restrain or enjoin a violation or breach of any provision hereof.

19.3 Subleases of Tenant. Whether or not Landlord elects to terminate this Lease on account of any default by Tenant, as set forth in this Article 19, Landlord shall have the right to terminate any and all subleases, licenses, concessions or other consensual arrangements for possession entered into by Tenant and affecting the Premises within ten (10) days of notice from Landlord, or may, in Landlord’s sole discretion, succeed to Tenant’s interest in such subleases, licenses, concessions or arrangements. In the event of Landlord’s election to succeed to Tenant’s interest in any such subleases, licenses, concessions or arrangements, Tenant shall, as of the date of notice by Landlord of such election, have no further right to or interest in the rent or other consideration receivable thereunder.

 

44


19.4 Form of Payment After Default. Following the occurrence of an event of default by Tenant, Landlord shall have the right to require that any or all subsequent amounts paid by Tenant to Landlord hereunder, whether to cure the default in question or otherwise, be paid in the form of money order, cashier’s or certified check drawn on an institution acceptable to Landlord, or by other means reasonably approved by Landlord, notwithstanding any prior practice of accepting payments in any different form.

19.5 Efforts to Relet. No re-entry or repossession, repairs, maintenance, changes, alterations and additions, reletting, appointment of a receiver to protect Landlord’s interests hereunder, or any other action or omission by Landlord shall be construed as an election by Landlord to terminate this Lease or Tenant’s right to possession, or to accept a surrender of the Premises, nor shall same operate to release Tenant in whole or in part from any of Tenant’s obligations hereunder, unless express written notice of such intention is sent by Landlord to Tenant. Tenant hereby irrevocably waives any right otherwise available under any law to redeem or reinstate this Lease.

ARTICLE 20

COVENANT OF QUIET ENJOYMENT

Landlord covenants that Tenant, on paying the Rent, charges for services and other payments herein reserved and on keeping, observing and performing all the other terms, covenants, conditions, provisions and agreements herein contained on the part of Tenant to be kept, observed and performed, shall, during the Lease Term, peaceably and quietly have, hold and enjoy the Premises subject to the terms, covenants, conditions, provisions and agreements hereof without interference by any persons lawfully claiming by or through Landlord. The foregoing covenant is in lieu of any other covenant express or implied.

ARTICLE 21

INTENTIONALLY OMITTED

ARTICLE 22

INTENTIONALLY DELETED

ARTICLE 23

SIGNS

23.1 Full Floors. Subject to Landlord’s prior written approval, in its sole discretion, and provided all signs are in keeping with the quality, design and style of the Building and Project, Tenant, if the Premises comprise an entire floor of the Building, at its sole cost and expense, may install identification signage anywhere in the Premises including in the elevator lobby of the Premises, provided that such signs must not be visible from the exterior of the Building.

23.2 Multi-Tenant Floors. If other tenants occupy space on the floor on which the Premises is located, Tenant’s identifying signage shall be provided by Landlord, at Tenant’s cost, and such signage shall be comparable to that used by Landlord for other similar floors in the Building and shall comply with Landlord’s Building standard signage program.

23.3 Prohibited Signage and Other Items. Subject to Tenant’s rights set forth in Section 23.4, any signs, notices, logos, pictures, names or advertisements which are installed and that have not been separately approved by Landlord may be removed without notice by Landlord at the sole expense of Tenant. Tenant may not install any signs on the exterior or roof of the Project or the Common Areas. Subject to Tenant’s rights set forth in Section 23.5, any signs, window coverings, or blinds (even if the same are located behind the Landlord-approved window coverings for the Building), or other items visible from the exterior of the Premises or Building, shall be subject to the prior approval of Landlord, in its sole discretion.

 

45


23.4 Exterior Building Signage. In addition to the signage rights expressly set forth above in this Article 23, Tenant, at Tenant’s sole cost and expense, shall be entitled to install one (1) non-exclusive exterior building sign (on each of the east-facing side of the Wharfside Building, in the location more particularly identified on Exhibit H attached hereto, and the maximum size of each of which shall not exceed two feet (2’) in height and six feet (6’) in length) identifying Tenant’s name or logo (the “Exterior Building Signage”) in connection with Tenant’s lease of the Premises. Provided that no additional exterior building signage is located at the same height or higher on the side of the Wharfside Building than Tenant’s Exterior Building Signage, Landlord shall have the right to permit third parties to install one (1) additional exterior building sign on the east-facing side of the Wharfside Building, but in no event shall the size of any such signs exceed two feet (2’) in height and six feet (6’) in length.

23.4.1 Specifications and Permits. The Exterior Building Signage shall set forth Tenant’s name and/or logo as determined by Tenant in its sole discretion; provided, however, in no event shall the Exterior Building Signage include an “Objectionable Name,” as that term is defined in Section 23.4.2, below. The graphics, materials, color, design, lettering, lighting, size, illumination, specifications and exact location of the Exterior Building Signage shall be subject to the prior written approval of Landlord, which approval shall not be unreasonably withheld, conditioned or delayed, and shall be consistent and compatible with the quality and nature of the Project and Landlord’s Building standard signage specifications. In addition, the Exterior Building Signage shall be subject to Tenant’s receipt of all required Governmental Approvals and shall be subject to all Applicable Laws and to the Underlying Documents (as the same may be modified). Landlord shall use commercially reasonable efforts to assist Tenant in obtaining all necessary governmental permits and approvals for the Exterior Building Signage. Tenant hereby acknowledges that Landlord has made no representation or warranty to Tenant with respect to the probability of obtaining all necessary governmental approvals and permits for the Exterior Building Signage. In the event Tenant does not receive the necessary governmental approvals and permits for the Exterior Building Signage, Tenant’s and Landlord’s rights and obligations under the remaining terms and conditions of the Lease shall be unaffected.

23.4.2 Objectionable Name. To the extent the Original Tenant or a Permitted Transferee Assignee desires to change the name and/or logo set forth on the Exterior Building Signage, such name and/or logo shall not have a name which relates to an entity which is of a character or reputation, or is associated with a political faction or orientation, which is inconsistent with the quality of the Project, or which would otherwise reasonably offend a landlord of the Comparable Buildings (an “Objectionable Name”). The parties hereby agree that the name “Lyft” or any reasonable derivation thereof, shall not be deemed an Objectionable Name.

23.4.3 Termination of Right to Tenant’s Signage. Pursuant to the terms of that certain sublease by and between Dropbox, Inc. and Tenant (the “Sublease”), Tenant is subleasing approximately 86,047 rentable square feet of space located on the fifth (5th) floor of the Wharfside Building and approximately 24,607 rentable square feet located on the 3rd floor of the Wharfside Building (the “Sublease Premises”). The rights contained in this Section 23.4 shall be personal to the Original Tenant or a Permitted Transferee Assignee, and may only be exercised and maintained by the Original Tenant or such Permitted Transferee Assignee (and not any other assignee, sublessee or other transferee of either of the Original Tenant’s interest in the Lease) if (i) the Original Tenant or such Permitted Transferee Assignee has not subleased more than fifty percent (50%) of the aggregate rentable square footage of (a) the initial Premises, (b) the Must-Take Premises, (c) any First Offer Space leased by Tenant and (d) the Sublease Premises, and (ii) Tenant is not then in Default. In the event Tenant fails to comply with any of the requirements set forth hereinabove, the signage rights provided in this Section 23.4 shall automatically terminate.

23.4.4 Cost and Maintenance; Change and Replacement. The actual costs of the Exterior Building Signage and the installation, design, construction and any and all other costs associated with the Exterior Building Signage, including, without limitation, utility charges and hook-up fees, permits, and maintenance and repairs, shall be the sole responsibility of Tenant. Should the Exterior Building Signage require repairs and/or maintenance, as determined in Landlord’s reasonable judgment, Landlord shall have the right to provide notice thereof to Tenant and Tenant (except as set forth below) shall cause such repairs and/or maintenance to be performed within thirty (30) days after receipt of such notice from Landlord, at Tenant’s sole cost

 

46


and expense; provided, however, if such repairs and/or maintenance are reasonably expected to require longer than thirty (30) days to perform, Tenant shall commence such repairs and/or maintenance within such thirty (30) day period and shall diligently prosecute such repairs and maintenance to completion. Should Tenant fail to perform such repairs and/or maintenance within the periods described in the immediately preceding sentence, Landlord shall, upon the delivery of an additional five (5) business days’ prior written notice, have the right to cause such work to be performed and to charge Tenant as Additional Rent for the actual cost of such work. Subject to Tenant’s agreement to comply with the terms of this Section 23.4, Tenant shall be permitted to change and/or replace the Exterior Building Signage periodically in Tenant’s reasonable discretion. Upon the expiration or earlier termination of this Lease or upon any earlier termination of Tenant’s rights to the Exterior Building Signage as set forth herein, Tenant shall, at Tenant’s sole cost and expense, cause the Exterior Building Signage to be removed and shall cause the areas in which such Exterior Building Signage was located to be restored to the condition existing immediately prior to the placement of such Exterior Building Signage except for (x) reasonable wear and tear, (y) damage by fire or other casualty that is not Tenant’s obligation to repair hereunder, or (z) repairs which are specifically made the responsibility of Landlord hereunder. If Tenant fails to timely remove the Exterior Building Signage or to restore the areas in which such the Exterior Building Signage was located, as provided in the immediately preceding sentence, then Landlord may perform such work, and all actual costs incurred by Landlord in so performing shall be reimbursed by Tenant to Landlord within thirty (30) days after Tenant’s receipt of an invoice therefor. The terms and conditions of this Section 23.4.4 shall survive the expiration or earlier termination of the Lease.

23.5 Signage Visible from the Building Exterior. Subject to the terms of this Section 23.5, Tenant shall have the right, at Tenant’s sole cost, to install signage within the interior of the Premises depicting Tenant’s logo (the “Tenant’s Interior Signage”), which signage may be visible from the exterior of the Building. As applicable, Tenant’s Interior Signage shall be subject to the terms and conditions of Sections 23.4.1, 23.4.2, and 23.4.4 above, as though Tenant’s Interior Signage were Exterior Building Signage, including Landlord’s rights to approve the graphics, materials, color, design, lettering, lighting, size, illumination, specifications and exact location of the Tenant’s Interior Signage, and the requirement that Tenant’s Interior Signage be consistent and compatible with the quality and nature of the Project and Landlord’s Building standard signage specifications.

23.6 Building Directory. Landlord has provided an electronic directory in each of the six (6) lobbies for the Project. Landlord, at Landlord’s expense, shall furnish Tenant with one (1) line on each such directory to display Tenant’s name and location in the Building(s).

ARTICLE 24

COMPLIANCE WITH LAW

24.1 Tenant’s Obligations. Tenant shall not do anything or suffer anything to be done in or about the Premises or the Project which will in any way conflict with any law, statute, ordinance or other governmental rule, regulation or requirement now in force or which may hereafter be enacted or promulgated, including, without limitation, any such governmental regulations related to disabled access (collectively, “Applicable Laws”). At its sole cost and expense, except to the extent the same is Landlord’s obligation pursuant to the terms of the Tenant Work Letter, Tenant shall promptly comply with all Applicable Laws (including the making of any alterations to the Premises required by Applicable Laws) which relate to (i) Tenant’s use of the Premises, (ii) any Alterations or improvements (including the Tenant Improvements) in the Premises, or (iii) the Base Building, but, as to the Base Building, only to the extent such obligations are triggered by Tenant’s Alterations, the Tenant Improvements, or use of the Premises for non-general office use. Should any standard or regulation now or hereafter be imposed on Landlord or Tenant by a state, federal or local governmental body charged with the establishment, regulation and enforcement of occupational, health or safety standards for employers, employees, landlords or tenants, then Tenant agrees, at its sole cost and expense, to comply promptly with such standards or regulations. The judgment of any court of competent jurisdiction or the admission of Tenant in any judicial action, regardless of whether Landlord is a party thereto, that Tenant has violated any of said governmental measures, shall be conclusive of that fact as between Landlord and Tenant. For purposes of Section 1938 of the California Civil Code, Landlord hereby discloses to Tenant, and Tenant hereby acknowledges that the Common Areas and the Premises have not undergone inspection by a Certified Access Specialist (CASp).

 

47


24.2 Landlord’s Obligations. Landlord shall comply with all Applicable Laws relating to the Building structure, the Building systems and equipment, and the Common Areas, subject to Landlord’s right to contest the applicability of such Applicable Laws to the Building and/or the Project, provided that compliance with such Applicable Laws is not the responsibility of Tenant under this Lease, and provided further that Landlord’s failure to comply therewith would prohibit Tenant from obtaining or maintaining a certificate of occupancy for the Premises, or would unreasonably and materially affect the safety of Tenant’s employees or create a significant health hazard for Tenant’s employees. Landlord shall be permitted to include in Operating Expenses any costs or expenses incurred by Landlord to comply with Applicable Laws, but only to the extent consistent with the terms of Section 4.2.4 above.

ARTICLE 25

LATE CHARGES

If any installment of Rent or any other sum due from Tenant shall not be received by Landlord or Landlord’s designee within five (5) business days after said amount is due, then Tenant shall pay to Landlord a late charge equal to five percent (5%) of the overdue amount plus any attorneys’ fees incurred by Landlord by reason of Tenant’s failure to pay Rent and/or other charges when due hereunder. The late charge shall be deemed Additional Rent and the right to require it shall be in addition to all of Landlord’s other rights and remedies hereunder or at law and shall not be construed as liquidated damages or as limiting Landlord’s remedies in any manner. In addition to the late charge described above, any Rent or other amounts owing hereunder which are not paid within ten (10) days after the date they are due shall bear interest from the date when due until paid at a rate (the “Interest Rate”) per annum equal to the highest rate permitted by applicable law. Notwithstanding the foregoing, the late charge referenced above shall not be charged with respect to the first occurrence (but may be charged with respect to any subsequent occurrence) during any twelve (12) month period that Tenant fails to make payment when due, until five (5) business days after Landlord delivers written notice of such delinquency to Tenant.

ARTICLE 26

LANDLORD’S RIGHT TO CURE DEFAULT; PAYMENTS BY TENANT

26.1 Landlord’s Cure. All covenants and agreements to be kept or performed by Tenant under this Lease shall be performed by Tenant at Tenant’s sole cost and expense and without any reduction of Rent, except to the extent, if any, otherwise expressly provided herein. If Tenant shall fail to perform any obligation under this Lease, and such failure shall continue in excess of the time allowed under Section 19.1.2, above, unless a specific time period is otherwise stated in this Lease, Landlord may, but shall not be obligated to, make any such payment or perform any such act on Tenant’s part without waiving its rights based upon any default of Tenant and without releasing Tenant from any obligations hereunder.

26.2 Tenant’s Reimbursement. Except as may be specifically provided to the contrary in this Lease, Tenant shall pay to Landlord, within thirty (30) days following delivery by Landlord to Tenant of statements therefor: (i) sums equal to expenditures reasonably made and obligations incurred by Landlord in connection with the remedying by Landlord of Tenant’s defaults pursuant to the provisions of Section 26.1; (ii) sums equal to all losses, costs, liabilities, damages and expenses referred to in Article 10 of this Lease; and (iii) sums equal to all expenditures made and obligations incurred by Landlord in collecting or attempting to collect the Rent or in enforcing or attempting to enforce any rights of Landlord under this Lease or pursuant to law, including, without limitation, all legal fees and other amounts so expended. Tenant’s obligations under this Section 26.2 shall survive the expiration or sooner termination of the Lease Term.

 

48


ARTICLE 27

ENTRY BY LANDLORD

Landlord reserves the right at all reasonable times and upon reasonable notice (which shall be deemed to be no less than 24 hours’ advance written notice) to Tenant (except in the case of an emergency) to enter the Premises to (i) inspect them; (ii) show the Premises to prospective purchasers, to current or prospective mortgagees, ground or underlying lessors or insurers, or during the last eleven (11) months of the Lease Term, to prospective tenants; (iii) post notices of nonresponsibility; or (iv) alter, improve or repair the Premises, the premises of other tenants in the Building, or the Building, or for structural alterations, repairs, additions or improvements to the Building or the Building’s systems and equipment. Notwithstanding anything to the contrary contained in this Article 27, Landlord may enter the Premises at any time to (A) perform services required of Landlord or to confirm that Tenant is performing janitorial services in compliance with Section 6.1.4 above; (B) take possession due to any uncured Default of this Lease in the manner provided herein; and (C) perform any covenants of Tenant which Tenant fails to perform following delivery of written notice. Landlord may make any such entries without the abatement of Rent and may take such reasonable steps as required to accomplish the stated purposes; provided, however, in connection with exercising its rights hereunder, Landlord shall use commercially reasonable efforts to minimize interference with the operation of Tenant’s business in the Premises. Tenant hereby waives any claims for damages or for any injuries or inconvenience to or interference with Tenant’s business, lost profits, any loss of occupancy or quiet enjoyment of the Premises, and any other loss occasioned thereby. For each of the above purposes, Landlord shall at all times have a key with which to unlock all the doors in the Premises, excluding Tenant’s vaults, safes and special security areas designated in advance by Tenant. In an emergency, Landlord shall have the right to use any means that Landlord may deem proper to open the doors in and to the Premises. Notwithstanding anything to the contrary set forth in this Article 27, Tenant may designate in writing certain reasonable areas of the Premises as “Secured Areas” should Tenant require such areas for the purpose of securing certain valuable property or confidential information. In connection with the foregoing, Landlord shall not enter such Secured Areas except in the event of an emergency. Landlord need not clean any area designated by Tenant as a Secured Area and shall only maintain or repair such secured areas to the extent (i) such repair or maintenance is required in order to maintain and repair the Base Building; (ii) as required by Applicable Law, or (iii) in response to specific requests by Tenant and in accordance with a schedule reasonably designated by Tenant, subject to Landlord’s reasonable approval. Any entry into the Premises by Landlord in the manner hereinbefore described shall not be deemed to be a forcible or unlawful entry into, or a detainer of, the Premises, or an actual or constructive eviction of Tenant from any portion of the Premises. No provision of this Lease shall be construed as obligating Landlord to perform any repairs, alterations or decorations except as otherwise expressly agreed to be performed by Landlord herein.

ARTICLE 28

TENANT PARKING

Tenant shall rent from Landlord, commencing on the Lease Commencement Date, the amount of parking passes set forth in Section 9 of the Summary, on a monthly basis throughout the Lease Term, which parking passes shall pertain to the Project parking facility. Tenant shall pay to Landlord for automobile parking passes on a monthly basis the prevailing rate charged from time to time at the location of such parking passes. In addition, Tenant shall be responsible for the full amount of any taxes imposed by any governmental authority in connection with the renting of such parking passes by Tenant or the use of the parking facility by Tenant. Tenant’s continued right to use the parking passes is conditioned upon Tenant abiding by all rules and regulations which are reasonably prescribed from time to time for the orderly operation and use of the parking facility where the parking passes are located, including any sticker or other identification system established by Landlord, Tenant’s cooperation in seeing that Tenant’s employees and visitors also comply with such rules and regulations and Tenant not being in default under this Lease. Landlord specifically reserves the right to change the location, size, configuration, design, layout and all other aspects of the Project parking facility at any time and Tenant acknowledges and agrees that Landlord may, without incurring any liability to Tenant and without any abatement of Rent under this Lease, from time to time, close-off or restrict access to the Project parking facility for purposes of permitting or facilitating any such

 

49


construction, alteration or improvements or cease providing the parking passes if space is no longer available so long as Landlord provides alternative parking within reasonable walking distance of the Premises. Landlord may delegate its responsibilities hereunder to a parking operator in which case such parking operator shall have all the rights of control attributed hereby to the Landlord. Landlord may, at any time, institute valet assisted parking, tandem parking stalls, “stack” parking, or other parking program within the Project parking facility, and Tenant and its employees shall comply with any such measures. The parking passes rented by Tenant pursuant to this Article 28 are provided to Tenant solely for use by Tenant’s own personnel and such passes may not be transferred, assigned, subleased or otherwise alienated by Tenant without Landlord’s prior approval. Tenant may validate visitor parking by such method or methods as the Landlord may reasonably establish, at the validation rate from time to time generally applicable to visitor parking.

ARTICLE 29

MISCELLANEOUS PROVISIONS

29.1 Terms; Captions. The words “Landlord” and “Tenant” as used herein shall include the plural as well as the singular. The necessary grammatical changes required to make the provisions hereof apply either to corporations or partnerships or individuals, men or women, as the case may require, shall in all cases be assumed as though in each case fully expressed. The captions of Articles and Sections are for convenience only and shall not be deemed to limit, construe, affect or alter the meaning of such Articles and Sections.

29.2 Binding Effect. Subject to all other provisions of this Lease, each of the covenants, conditions and provisions of this Lease shall extend to and shall, as the case may require, bind or inure to the benefit not only of Landlord and of Tenant, but also of their respective heirs, personal representatives, successors or assigns, provided this clause shall not permit any assignment by Tenant contrary to the provisions of Article 14 of this Lease.

29.3 No Air Rights. No rights to any view or to light or air over any property, whether belonging to Landlord or any other person, are granted to Tenant by this Lease. If at any time any windows of the Premises are temporarily darkened or the light or view therefrom is obstructed by reason of any repairs, improvements, maintenance or cleaning in or about the Project, the same shall be without liability to Landlord and without any reduction or diminution of Tenant’s obligations under this Lease.

29.4 Modification of Lease. Should any current or prospective mortgagee or ground lessor for the Building or Project require a modification of this Lease, which modification will not cause an increased cost or expense to Tenant or in any other way materially and adversely change the rights and obligations of Tenant hereunder, then and in such event, Tenant agrees that this Lease may be so modified and agrees to execute whatever documents are reasonably required therefor and to deliver the same to Landlord within ten (10) business days following a request therefor. At the request of Landlord or any mortgagee or ground lessor, Tenant agrees to execute a short form of Lease and deliver the same to Landlord within ten (10) business days following the request therefor; provided, however, that Landlord agrees to reimburse Tenant for Tenant’s reasonable attorneys’ fees actually incurred in the review and negotiation of any such documentation.

29.5 Transfer of Landlord’s Interest. Tenant acknowledges that Landlord has the right to transfer all or any portion of its interest in the Project or Building and in this Lease, and Tenant agrees that in the event of any such transfer, Landlord shall automatically be released from all liability under this Lease arising on and after the date of such transfer, and Tenant agrees to look solely to such transferee for the performance of Landlord’s obligations hereunder after the date of transfer and such transferee shall be deemed to have fully assumed and be liable for all obligations of this Lease to be performed by Landlord, including the return of any Security Deposit, and Tenant shall attorn to such transferee. Tenant further acknowledges that Landlord may assign its interest in this Lease to a mortgage lender as additional security and agrees that such an assignment shall not release Landlord from its obligations hereunder and that Tenant shall continue to look to Landlord for the performance of its obligations hereunder.

 

50


29.6 Prohibition Against Recording. Except as provided in Section 29.4 of this Lease, neither this Lease, nor any memorandum, affidavit or other writing with respect thereto, shall be recorded by Tenant or by anyone acting through, under or on behalf of Tenant.

29.7 Landlord’s Title. Landlord’s title is and always shall be paramount to the title of Tenant. Nothing herein contained shall empower Tenant to do any act which can, shall or may encumber the title of Landlord.

29.8 Relationship of Parties. Nothing contained in this Lease shall be deemed or construed by the parties hereto or by any third party to create the relationship of principal and agent, partnership, joint venturer or any association between Landlord and Tenant.

29.9 Application of Payments. Landlord shall have the right to apply payments received from Tenant pursuant to this Lease, regardless of Tenant’s designation of such payments, to satisfy any obligations of Tenant hereunder, in such order and amounts as Landlord, in its sole discretion, may elect.

29.10 Time of Essence. Time is of the essence with respect to the performance of every provision of this Lease in which time of performance is a factor.

29.11 Partial Invalidity. If any term, provision or condition contained in this Lease shall, to any extent, be invalid or unenforceable, the remainder of this Lease, or the application of such term, provision or condition to persons or circumstances other than those with respect to which it is invalid or unenforceable, shall not be affected thereby, and each and every other term, provision and condition of this Lease shall be valid and enforceable to the fullest extent possible permitted by law.

29.12 No Warranty. In executing and delivering this Lease, Tenant has not relied on any representations, including, but not limited to, any representation as to the amount of any item comprising Additional Rent or the amount of the Additional Rent in the aggregate or that Landlord is furnishing the same services to other tenants, at all, on the same level or on the same basis, or any warranty or any statement of Landlord which is not set forth herein or in one or more of the exhibits attached hereto.

29.13 Exculpation. The liability of Landlord or the Landlord Parties to Tenant for any default by Landlord under this Lease or arising in connection herewith or with Landlord’s operation, management, leasing, repair, renovation, alteration or any other matter relating to the Project or the Premises shall be limited solely and exclusively to an amount which is equal to the lesser of (a) the interest of Landlord in the Building or (b) the equity interest Landlord would have in the Building if the Building were encumbered by third-party debt in an amount equal to eighty percent (80%) of the value of the Building (as such value is determined by Landlord), provided that in no event shall such liability extend to any sales or insurance proceeds received by Landlord or the Landlord Parties in connection with the Project, Building or Premises. Neither Landlord, nor any of the Landlord Parties shall have any personal liability therefor, and Tenant hereby expressly waives and releases such personal liability on behalf of itself and all persons claiming by, through or under Tenant. The limitations of liability contained in this Section 29.13 shall inure to the benefit of Landlord’s and the Landlord Parties’ present and future partners, beneficiaries, officers, directors, trustees, shareholders, agents and employees, and their respective partners, heirs, successors and assigns. Under no circumstances shall any present or future partner of Landlord (if Landlord is a partnership), or trustee or beneficiary (if Landlord or any partner of Landlord is a trust), have any liability for the performance of Landlord’s obligations under this Lease. Notwithstanding anything to the contrary contained in this Lease, nothing in this Lease shall impose any obligations on Tenant or Landlord to be responsible or liable for, and each hereby releases the other from all liability for any special or consequential damages, loss of profits, loss of business opportunity or loss of goodwill from the failure of such party to meet its obligations under the Lease, other than those consequential damages incurred by Landlord in connection with a holdover of the Premises by Tenant after the expiration or earlier termination of the Lease Term or incurred by Landlord in connection with any repair, physical construction or improvement work performed by or on behalf of Tenant in the Building.

 

51


29.14 Entire Agreement. It is understood and acknowledged that there are no oral agreements between the parties hereto affecting this Lease and this Lease constitutes the parties’ entire agreement with respect to the leasing of the Premises and supersedes and cancels any and all previous negotiations, arrangements, brochures, agreements and understandings, if any, between the parties hereto or displayed by Landlord to Tenant with respect to the subject matter thereof, and none thereof shall be used to interpret or construe this Lease. None of the terms, covenants, conditions or provisions of this Lease can be modified, deleted or added to except in writing signed by the parties hereto.

29.15 Competitors; Right to Lease. Except as otherwise set forth in this Section 29.15 below, Landlord reserves the absolute right to effect such other tenancies in the Project as Landlord in the exercise of its sole business judgment shall determine to best promote the interests of the Building or Project. Tenant does not rely on the fact, nor does Landlord represent, that any specific tenant or type or number of tenants shall, during the Lease Term, occupy any space in the Building or Project. Notwithstanding the foregoing, so long as Original Tenant or its Permitted Transferee Assignee is open and operating in at least 66.67% of the aggregate of the initial Premises, the Must-Take Premises and any First Offer Space subsequently leased by Tenant, Landlord, throughout the Lease Term, shall not enter into a new lease for space located in the in the Project with (A) (i) Uber Technologies, Inc., a Delaware corporation, (ii) RideCharge, Inc. (Curb) (iii) GT Forge, Inc. (Gett), (iv) Summon (formerly InstaCab) and (v) Flywheel Software, Inc. (Flywheel) (each a “Named Competitor”) or (B) any entity that is wholly owned and controlled by a Named Competitor (determined using the definition of “control” set forth in Section 14.8 above) and is primarily engaged in the ride-sharing business (each a “Competitor Affiliate”, and Named Competitors together with Competitor Affiliates are, collectively “Competitors”). Notwithstanding anything to the contrary contained herein, the foregoing restriction is not applicable to: (i) any leases entered into on or before the effective date of this Lease or their successors or assigns; (ii) any then-existing leases affecting the Project which leases permit the assignment thereof or the subletting of the premises demised thereby without the Landlord’s approval, or (iii) the transfer of a lease of any other tenant located in the Project as the result of an actual order by a court. Landlord shall have the right to lease space in the Project to any Competitor, and the terms of this Section 29.15 pertaining to such Competitors shall terminate, in the event that Tenant (i) Transfers more than fifty percent (50%) of the aggregate of the initial Premises, the Must-Take Premises and any First Offer Space subsequently leased by Tenant to any entity other than a Permitted Transferee Assignee, or (ii) Tenant is in Default under this Lease. In addition, Landlord hereby agrees not to grant exterior signage rights to any Competitor of Tenant so long as Tenant is occupying at least fifty percent (50%) of the aggregate of the initial Premises, the Must-Take Premises and any First Offer Space subsequently leased by Tenant.

29.16 Force Majeure. Any prevention, delay or stoppage due to strikes, lockouts, labor disputes, acts of God, inability to obtain services, labor, or materials or reasonable substitutes therefor, governmental actions, civil commotions, fire or other casualty, and other causes beyond the reasonable control of the party obligated to perform, except with respect to the obligations imposed with regard to Rent and other charges to be paid by Tenant pursuant to this Lease and except as to Tenant’s obligations under Articles 5 and 24 of this Lease (collectively, a “Force Majeure”), notwithstanding anything to the contrary contained in this Lease, shall excuse the performance of such party for a period equal to any such prevention, delay or stoppage and, therefore, if this Lease specifies a time period for performance of an obligation of either party, that time period shall be extended by the period of any delay in such party’s performance caused by a Force Majeure. Any party claiming a delay due to Force Majeure shall promptly notify the other party hereto regarding the nature of such Force Majeure event and the estimated length of such delay.

29.17 Waiver of Redemption by Tenant. Tenant hereby waives, for Tenant and for all those claiming under Tenant, any and all rights now or hereafter existing to redeem by order or judgment of any court or by any legal process or writ, Tenant’s right of occupancy of the Premises after any termination of this Lease.

29.18 Notices. All notices, demands, statements, designations, approvals or other communications (collectively, “Notices”) given or required to be given by either party to the other hereunder or by law shall be in writing, shall be (A) sent by United States certified or registered mail, postage prepaid, return receipt requested (“Mail”), (B) delivered by a nationally recognized overnight courier, or (C) delivered personally. Any Notice shall be sent, transmitted, or delivered, as the case may be, to Tenant or Landlord at the appropriate address set forth in Section 10 or 11 of the Summary, as appropriate, or to such other place as either party may from time to time designate in a Notice to the other. Any Notice will be deemed given (i) three (3)

 

52


days after the date it is posted if sent by Mail, (ii) the date the overnight courier delivery is made, or (iii) the date personal delivery is made or attempted to be made; provided, however, that in the case of delivery pursuant to the provisions of clause (ii), if the effective date of delivery is a weekend or Holiday, then delivery shall be deemed given on the next-succeeding business day. If Tenant is notified of the identity and address of Landlord’s mortgagee or ground or underlying lessor, Tenant shall give to such mortgagee or ground or underlying lessor written notice of any default by Landlord under the terms of this Lease by registered or certified mail, and such mortgagee or ground or underlying lessor shall be given a reasonable opportunity to cure such default prior to Tenant’s exercising any remedy available to Tenant.

29.19 Joint and Several. If there is more than one Tenant, the obligations imposed upon Tenant under this Lease shall be joint and several.

29.20 Authority. If Tenant is a corporation, trust or partnership, each individual executing this Lease on behalf of Tenant hereby represents and warrants that Tenant is a duly formed and existing entity qualified to do business in California and that Tenant has full right and authority to execute and deliver this Lease and that each person signing on behalf of Tenant is authorized to do so. Within ten (10) business days of written demand from Landlord (not more than once during the Lease Term, excluding when Tenant and Landlord are required to execute any documentation), Tenant shall deliver to Landlord satisfactory evidence of such authority.

29.21 Attorneys’ Fees. In the event that either Landlord or Tenant should bring suit for the possession of the Premises, for the recovery of any sum due under this Lease, or because of the breach of any provision of this Lease or for any other relief against the other, then all costs and expenses, including reasonable attorneys’ fees, incurred by the prevailing party therein shall be paid by the other party, which obligation on the part of the other party shall be deemed to have accrued on the date of the commencement of such action and shall be enforceable whether or not the action is prosecuted to judgment.

29.22 Governing Law; WAIVER OF TRIAL BY JURY. This Lease shall be construed and enforced in accordance with the laws of the State of California. IN ANY ACTION OR PROCEEDING ARISING HEREFROM, LANDLORD AND TENANT HEREBY CONSENT TO (I) THE JURISDICTION OF ANY COMPETENT COURT WITHIN THE STATE OF CALIFORNIA, (II) SERVICE OF PROCESS BY ANY MEANS AUTHORIZED BY CALIFORNIA LAW, AND (III) IN THE INTEREST OF SAVING TIME AND EXPENSE, TRIAL WITHOUT A JURY IN ANY ACTION, PROCEEDING OR COUNTERCLAIM BROUGHT BY EITHER OF THE PARTIES HERETO AGAINST THE OTHER OR THEIR SUCCESSORS IN RESPECT OF ANY MATTER ARISING OUT OF OR IN CONNECTION WITH THIS LEASE, THE RELATIONSHIP OF LANDLORD AND TENANT, TENANT’S USE OR OCCUPANCY OF THE PREMISES, AND/OR ANY CLAIM FOR INJURY OR DAMAGE, OR ANY EMERGENCY OR STATUTORY REMEDY, IN EACH CASE WITH RESPECT TO THE SUBJECT MATTER OF THIS LEASE. IN THE EVENT LANDLORD COMMENCES ANY SUMMARY PROCEEDINGS OR ACTION FOR NONPAYMENT OF BASE RENT OR ADDITIONAL RENT, TENANT SHALL NOT INTERPOSE ANY COUNTERCLAIM OF ANY NATURE OR DESCRIPTION (UNLESS SUCH COUNTERCLAIM SHALL BE MANDATORY) IN ANY SUCH PROCEEDING OR ACTION, BUT SHALL BE RELEGATED TO AN INDEPENDENT ACTION AT LAW.

29.23 Submission of Lease. Submission of this instrument for examination or signature by Tenant does not constitute a reservation of, option for or option to lease, and it is not effective as a lease or otherwise until execution and delivery by both Landlord and Tenant.

29.24 Brokers. Landlord and Tenant hereby warrant to each other that they have had no dealings with any real estate broker or agent in connection with the negotiation of this Lease, excepting only the real estate brokers or agents specified in Section 12 of the Summary (the “Brokers”), and that they know of no other real estate broker or agent who is entitled to a commission in connection with this Lease. Landlord shall pay all fees due such Brokers pursuant to separate written agreements between Landlord and each such Broker. Each party agrees to indemnify and defend the other party against and hold the other party harmless from any and all claims, demands, losses, liabilities, lawsuits, judgments, costs and expenses (including without limitation reasonable attorneys’ fees) with respect to any leasing commission or equivalent compensation alleged to be owing on account of any dealings with any real estate broker or agent, other than the Brokers, occurring by, through, or under the indemnifying party.

 

53


29.25 Independent Covenants. This Lease shall be construed as though the covenants herein between Landlord and Tenant are independent and not dependent and Tenant hereby expressly waives the benefit of any statute to the contrary and agrees that if Landlord fails to perform its obligations set forth herein, Tenant shall not be entitled to make any repairs or perform any acts hereunder at Landlord’s expense or to any setoff of the Rent or other amounts owing hereunder against Landlord.

29.26 Project or Building Name and Signage. Landlord shall have the right at any time to change the name of the Project or Building and to install, affix and maintain any and all signs on the exterior and on the interior of the Project or Building as Landlord may, in Landlord’s sole discretion, desire. Tenant shall not use the name of the Project or Building or use pictures or illustrations of the Project or Building in advertising or other publicity or for any purpose other than as the address of the business to be conducted by Tenant in the Premises, without the prior written consent of Landlord.

29.27 Counterparts. This Lease may be executed in counterparts with the same effect as if both parties hereto had executed the same document. Both counterparts shall be construed together and shall constitute a single lease.

29.28 Confidentiality. Tenant acknowledges that the content of this Lease and any related documents are confidential information. Tenant shall keep such confidential information strictly confidential and shall not disclose such confidential information to any person or entity other than Tenant’s financial, legal, and space planning consultants, prospective purchasers, prospective lenders, investors, or any independent auditors, third party’s designated to review Direct Expenses, its directors, officers, employees, attorneys, or proposed Transferees. Landlord acknowledges that the content of this Lease and any related documents are confidential information (including information provided to Landlord pursuant to Article 17 above or with respect to any financial statements required to be delivered to Landlord elsewhere in this Lease). Landlord shall keep such confidential information strictly confidential and shall not disclose such confidential information to any person or entity other than Landlord’s financial, legal and space planning consultants, or its directors, officers, employees, attorneys, accountants, prospective lenders, prospective purchasers, and current and potential partners. Moreover, Landlord has advised Tenant that Landlord may be obligated to regularly provide financial information concerning the Landlord and/or its affiliates to the shareholders of its affiliates, to the Federal Securities and Exchange Commission and other regulatory agencies, and to auditors and underwriters, which information may include summaries of financial information concerning leases, rents, costs and results of operations of its real estate business, including any rents or results of operations affected by this Lease. In addition, the foregoing obligations shall not apply to any information or document which: (a) was lawfully in a party’s possession prior to the time of disclosure by or on behalf of the other party; (b) is or becomes generally available to the public through no fault, omission, or other act of Landlord or Tenant, as the case may be; (c) is or was obtained from a third party lawfully entitled to possession of such confidential information and under no obligation of confidentiality to Landlord or Tenant, as the case may be; (d) was independently developed by or for Landlord or Tenant, as the case may be, without reference to, aid from or reliance upon the confidential information or (e) is disclosed by Landlord or Tenant, as the case may be in connection with enforcement of the terms of this Lease. This provision shall survive the expiration or earlier termination of this Lease for one (1) year.

29.29 Transportation Management. Landlord has entered into an agreement with the Department of City Planning to implement a Transportation Management Program (“TMP”) for tenants and their employees, and to participate in a program designed to coordinate commute alternatives, marketing, and brokerage for greater downtown employees. During the term of the TMP, Landlord agrees to provide transportation brokerage and commute assistance services to Tenant, and to assist Tenant in meeting the transportation needs of its employees. Tenant agrees to cooperate with and assist Landlord’s TMP Coordinator (“Coordinator”), through designation of a responsible employee, to distribute to Tenant’s employees written materials encouraging the use of public transit and ridesharing, and to distribute and return to the Coordinator transportation survey questionnaire forms.

 

54


29.30 Building Renovations. It is specifically understood and agreed that Landlord has made no representation or warranty to Tenant and has no obligation and has made no promises to alter, remodel, improve, renovate, repair or decorate the Premises, Building, or any part thereof and that no representations respecting the condition of the Project, Premises or the Building, or the areas in the vicinity of the Project have been made by Landlord to Tenant except as specifically set forth in this Lease or in the Tenant Work Letter. However, Tenant hereby acknowledges that Landlord is currently renovating or may during the Lease Term renovate, improve, alter, or modify (collectively, the “Renovations”) the Project, the Building and/or the Premises including without limitation the parking structure, common areas, systems and equipment, roof, and structural portions of the same, which Renovations may include, without limitation, (i) installing sprinklers in the Building common areas and tenant spaces, (ii) modifying the common areas and tenant spaces to comply with Applicable Laws and regulations, including regulations relating to the physically disabled, seismic conditions, and building safety and security, (iii) installing new floor covering, lighting, and wall coverings in the Building common areas, and (iv) creating additional parking areas or occupied space within the Project, and in connection with any Renovations, Landlord may, among other things, erect scaffolding or other necessary structures in the Building, limit or eliminate access to portions of the Project, including portions of the common areas, or perform work in the Building, which work may create noise, dust or leave debris in the Building. Similarly, other properties in the vicinity of the Project may undergo substantial construction or renovation during the Lease Term (the “Area Renovations”), which may cause substantial disturbance to traffic and parking, and may cause dust, noise and vibrations which may affect the Project. Tenant hereby agrees that such Renovations or Area Renovations and Landlord’s actions in connection with such Renovations or Area Renovations shall in no way constitute a constructive eviction of Tenant nor entitle Tenant to any abatement of Rent. Landlord shall have no responsibility or for any reason be liable to Tenant for any direct or indirect injury to or interference with Tenant’s business arising from the Renovations or Area Renovations, nor, except as set forth in Section 6.4 above to the extent applicable to any Renovations, entitled to any compensation or damages from Landlord for loss of the use of the whole or any part of the Premises or of Tenant’s personal property or improvements resulting from the Renovations or Area Renovations or Landlord’s actions in connection with such Renovations or Area Renovations, or for any inconvenience or annoyance occasioned by such Renovations or Area Renovations or Landlord’s actions. Notwithstanding the foregoing, in exercising its rights pursuant to this Section 29.30, Landlord shall use commercially reasonable efforts to minimize interference with Tenant use of, occupancy of and access to the Premises including, without limitation, performing such work after normal business hours.

29.31 No Violation. Tenant hereby warrants and represents that neither its execution of nor performance under this Lease shall cause Tenant to be in violation of any agreement, instrument, contract, law, rule or regulation by which Tenant is bound, and Tenant shall protect, defend, indemnify and hold Landlord harmless against any claims, demands, losses, damages, liabilities, costs and expenses, including, without limitation, reasonable attorneys’ fees and costs, arising from Tenant’s breach of this warranty and representation.

29.32 Communications and Computer Lines. Tenant may install, maintain, replace, remove or use any communications or computer wires and cables serving the Premises (collectively, the “Lines”), provided that (i) Tenant shall obtain Landlord’s prior written consent, use an experienced and qualified contractor approved in writing by Landlord, and comply with all of the other provisions of Articles 7 and 8 of this Lease, (ii) an acceptable number of spare Lines and space for additional Lines shall be maintained for existing and future occupants of the Project, as determined in Landlord’s reasonable opinion, (iii) the Lines therefor (including riser cables) shall be appropriately insulated to prevent excessive electromagnetic fields or radiation, shall be surrounded by a protective conduit reasonably acceptable to Landlord, and shall be identified in accordance with the “Identification Requirements,” as that term is set forth hereinbelow, (iv) any new or existing Lines servicing the Premises shall comply with all applicable governmental laws and regulations, (v) as a condition to permitting the installation of new Lines, Landlord may require that Tenant remove existing Lines located in or serving the Premises and repair any damage in connection with such removal, and (vi) Tenant shall pay all costs in connection therewith. All Lines shall be clearly marked with adhesive plastic labels (or plastic tags attached to such Lines with wire) to show Tenant’s name, suite number, telephone number and the name of the person to contact in the case of an emergency (A) every four feet (4’) outside the Premises (specifically including, but not limited to, the electrical room risers and

 

55


other Common Areas), and (B) at the Lines’ termination point(s) (collectively, the “Identification Requirements”). Upon the expiration of the Lease Term, or immediately following any earlier termination of this Lease, Tenant shall, at Tenant’s sole cost and expense, remove all Lines installed by Tenant or utilized in any manner by Tenant at any time during the Lease Term, and repair any damage caused by such removal. In the event that Tenant fails to complete such removal and/or fails to repair any damage caused by the removal of any Lines, Landlord may do so and may charge the cost thereof to Tenant. In addition, Landlord reserves the right at any time to require that Tenant remove any Lines located in or serving the Premises which are installed in violation of these provisions, or which are at any time in violation of any laws or represent a dangerous or potentially dangerous condition.

29.33 Development of the Project.

29.33.1 Subdivision. Landlord reserves the right to further subdivide all or a portion of the Project. Tenant agrees to execute and deliver, upon demand by Landlord and in the form requested by Landlord, any additional documents needed to conform this Lease to the circumstances resulting from such subdivision.

29.33.2 The Other Improvements. If portions of the Project or property adjacent to the Project (collectively, the “Other Improvements”) are owned by an entity other than Landlord, Landlord, at its option, may enter into an agreement with the owner or owners of any or all of the Other Improvements to provide (i) for reciprocal rights of access and/or use of the Project and the Other Improvements, (ii) for the common management, operation, maintenance, improvement and/or repair of all or any portion of the Project and the Other Improvements, (iii) for the allocation of a portion of the Direct Expenses to the Other Improvements and the operating expenses and taxes for the Other Improvements to the Project, and (iv) for the use or improvement of the Other Improvements and/or the Project in connection with the improvement, construction, and/or excavation of the Other Improvements and/or the Project. Nothing contained herein shall be deemed or construed to limit or otherwise affect Landlord’s right to convey all or any portion of the Project or any other of Landlord’s rights described in this Lease.

29.33.3 Construction of Project and Other Improvements. Tenant acknowledges that portions of the Project and/or the Other Improvements may be under construction following Tenant’s occupancy of the Premises, and that such construction may result in levels of noise, dust, obstruction of access, etc. which are in excess of that present in a fully constructed project. Tenant hereby waives any and all rent offsets or claims of constructive eviction which may arise in connection with such construction.

29.34 Rent from Real Property. Landlord and Tenant agree that all Rent payable by Tenant to Landlord, which includes all sums, charges, or amounts of whatever nature to be paid by Tenant to Landlord in accordance with the provisions of this Lease, shall qualify as “rents from real property” within the meaning of both Sections 512(b)(3) and 856(d) of the Internal Revenue Code of 1986, as amended (the “IRS Code”) and the U.S. Department of Treasury Regulations promulgated thereunder (the “Regulations”). In the event that Landlord, in its sole discretion, determines that there is any risk that all or part of any rental shall not qualify as “rents from real property” for the purposes of Sections 512(b)(3) or 856(d) of the IRS Code and the Regulations promulgated thereunder, Tenant agrees (i) to cooperate with Landlord by entering into such amendment or amendments as Landlord deems necessary to qualify all rental as “rents from real property,” and (ii) to permit an assignment of this Lease; provided, however, that any adjustments required pursuant to this Section shall be made so as to produce the equivalent rental (in economic terms) payable prior to such adjustment.

29.35 Unrelated Business Transaction Income. Landlord shall have the right at any time and from time to time to unilaterally amend the provisions of this Lease, if Landlord is advised by its counsel that all or any portion of the monies paid by Tenant to Landlord hereunder are, or may be deemed to be, unrelated business income within the meaning of the United States Internal Revenue Code or regulations issued there under, and Tenant agrees that it will execute all documents or instruments necessary to effect such amendment or amendments, provided that no such amendment shall result in Tenant having to pay in the aggregate more money on account of its occupancy of the Premises under the terms of this Lease, as so amended, and provided further that no such amendment shall result in Tenant having materially greater obligations or receiving less services that it previously obligated for or entitled to receive under this Lease, or services of a lesser quality.

 

56


29.36 Services. Any services which Landlord is required to furnish pursuant to the provisions of this Lease may, at Landlord’s option, be furnished from time to time, in whole or in part, by employees of Landlord or Landlord’s managing agent or its employees or by one or more third persons hired by Landlord or the Landlord’s managing agent. Tenant agrees that upon Landlord’s written request it will enter into direct agreements with the Landlord’s managing agent or other parties designated by Landlord for the furnishing of any such services required to be furnished by Landlord hereunder, in the form and content approved by Landlord, provided however that no such contract shall result in Tenant having to pay in the aggregate more money on account of its occupancy of the Premises under the terms of this Lease, and provided further that no such contract shall result in Tenant having materially greater obligations or receiving less services than it is presently obligated for or entitled to receive under this Lease or, services of a lesser quality.

29.37 Rooftop Rights. Provided that Tenant remains in occupancy of at least 66.67% of the Premises, including the Sublease Premises, then in accordance with, and subject to, (A) reasonable construction rules and regulations promulgated by Landlord, (B) the Building standards therefor, and (C) the terms of Article 8 of this Lease and this Section 29.37, Tenant may install, repair, maintain and use, at Tenant’s sole cost and expense, and subject to the payment of Rent at the rate of Two and 75/100 Dollars ($2.75) per usable square foot of rooftop space utilized by Tenant, which Rent amount shall increase by three percent (3%) on each anniversary of the Lease Commencement Date, one (1) satellite dish on the roof of each of the Buildings in the Project in which any portion of the Premises is located for the receiving of signals or broadcasts (as opposed to the generation or transmission of any such signals or broadcasts) servicing the business conducted by Tenant from within the Premises and one (1) supplemental HVAC unit on the roof of each of the Buildings in the Project in which any portion of the Premises is located (such satellite and HVAC unit is defined as the “Rooftop Equipment”). The Rooftop Equipment shall be no larger than (or otherwise occupy a space which is larger than) two feet (2’) high, two feet (2’) long and two feet (2’) wide. Tenant shall be solely responsible for any and all costs incurred or arising in connection with the Rooftop Equipment, including but not limited to costs of electricity and insurance related to the Rooftop Equipment. Landlord makes no representations or warranties whatsoever with respect to the condition of the roof of the Building, or the fitness or suitability of the roof of the Building for the installation, maintenance and operation of the Rooftop Equipment, including, without limitation, with respect to the quality and clarity of any receptions and transmissions to or from the Rooftop Equipment and the presence of any interference with such signals whether emanating from the Building or otherwise. The physical appearance and the size of the Rooftop Equipment shall be subject to Landlord’s reasonable approval, the location of any such Rooftop Equipment shall be mutually agreed upon by Landlord and Tenant and Landlord may require Tenant to install screening around such Rooftop Equipment, at Tenant’s sole cost and expense, as reasonably designated by Landlord. Tenant shall service, maintain and repair such Rooftop Equipment, at Tenant’s sole cost and expense, which maintenance shall include entering into service contracts for the Rooftop Equipment. In the event Tenant elects to exercise its right to install the Rooftop Equipment, then Tenant shall give Landlord prior notice thereof. Tenant shall reimburse to Landlord the actual costs reasonably incurred by Landlord in approving such Rooftop Equipment. Tenant’s rights under this Section 29.37 shall terminate and shall be of no further force or effect upon the expiration or earlier termination of this Lease, or, in the event Tenant (including any Permitted Transferee Assignee) no longer occupies at least fifty 66.67% of the Premises, including the Sublease Premises. Prior to the expiration or earlier termination of this Lease, Tenant shall, as promptly as possible but in no event more than fifteen (15) days thereafter, remove and restore the affected portion of the rooftop, the Building and the Premises to the same condition the rooftop, the Building and the Premises as received except for (x) reasonable wear and tear (y) damage by fire or other casualty which is not Tenant’s obligation to repair hereunder, or (z) repairs which are specifically made the responsibility of Landlord hereunder. Such Rooftop Equipment shall be installed pursuant to plans and specifications approved by Landlord (specifically including, without limitation, all mounting and waterproofing details), which approval will not be unreasonably withheld, conditioned, or delayed. Notwithstanding any such review or approval by Landlord, Tenant shall remain solely liable for any damage arising in connection with Tenant’s installation, use, maintenance and/or repair of such Rooftop Equipment, including, without limitation, any damage to a portion of the roof or

 

57


roof membrane and any penetrations to the roof. Landlord and Tenant hereby acknowledge and agree that, except for personal injury and property damage to the extent caused by Landlord’s gross negligence or willful misconduct, Landlord shall have no liability in connection with Tenant’s use, maintenance and/or repair of such Rooftop Equipment. Such Rooftop Equipment shall, in all instances, comply with applicable governmental laws, codes, rules and regulations. Tenant shall not be entitled to license its Rooftop Equipment to any third party, nor shall Tenant be permitted to receive any revenues, fees or any other consideration for the use of such Rooftop Equipment by a third party. Tenant’s right to install such Rooftop Equipment shall be non-exclusive, and Tenant hereby expressly acknowledges Landlord’s continued right (i) to itself utilize any portion of the rooftop of the Building, and (ii) to re-sell, license or lease any rooftop space to an unaffiliated third party; provided, however, such Landlord (or third-party) use shall not materially interfere with (or preclude the installation of) Tenant’s Rooftop Equipment. Notwithstanding any provision to the contrary contained in this Section 29.37, in no event shall Tenant access the roof of the Building without first receiving Landlord’s prior consent. The rights contained in this Section 29.37 shall be personal to the Original Tenant and its Permitted Transferee Assignee, and may only be exercised by the Original Tenant or its Permitted Transferee Assignee (and not by any other assignee, or any sublessee or other transferee of Tenant’s interest in the Lease) if the Original Tenant or its Permitted Transferee Assignee occupies or intends to occupy (if such exercise is prior to the Lease Commencement Date) at least fifty percent 66.67% of the Premises, including the Sublease Premises as of the date of the attempted exercise of its rooftop rights set forth herein.

29.38 Bicycles.

29.38.1 Bicycle Locker. Subject to the other terms and conditions set forth in Article 28, above, in connection with Tenant’s lease of the Premises as provided in this Lease, in lieu of an equal number of unreserved parking passes (but not more than two (2)), Tenant shall have the right to designate parking spaces in the Project parking facility for the installation and use of a secure bicycle locker (the “Bicycle Locker”) on the terms and conditions set forth in this Section 29.38. All aspects of such Bicycle Locker, including without limitation, the size, color, method of mounting/securing to any portion of the Premises, specifications and exact location of the parking spaces to be utilized in connection therewith, shall be subject to the prior written approval of Landlord, in Landlord’s sole discretion. The Bicycle Locker shall be subject to Tenant’s receipt of all required governmental permits and approvals and shall be subject to all Applicable Laws and to any covenants, conditions and restrictions affecting the Project. Tenant hereby acknowledges that Landlord has made no representation or warranty to Tenant with respect to the probability of obtaining all necessary governmental approvals and permits for the Bicycle Locker. In the event Tenant does not receive the necessary governmental approvals and permits for the Bicycle Locker, Tenant’s and Landlord’s rights and obligations under the remaining terms and conditions of the Lease shall be unaffected. The rights under this Section 29.38 shall be personal to the Original Tenant and any Permitted Transferee Assignee. The costs of the Bicycle Locker and the installation, design, construction and any and all other costs associated with the Bicycle Locker, including, without limitation, permits, and maintenance and repairs, shall be the sole responsibility of Tenant. Should the Bicycle Locker require repairs and/or maintenance, as determined in Landlord’s reasonable judgment, Landlord shall have the right to provide notice thereof to Tenant and Tenant (except as set forth below) shall cause such repairs and/or maintenance to be performed within thirty (30) days after receipt of such notice from Landlord, at Tenant’s sole cost and expense; provided, however, if such repairs and/or maintenance are reasonably expected to require longer than thirty (30) days to perform, Tenant shall commence such repairs and/or maintenance within such thirty (30) day period and shall diligently prosecute such repairs and maintenance to completion. Should Tenant fail to perform such repairs and/or maintenance within the periods described in the immediately preceding sentence, Landlord shall, upon the delivery of an additional five (5) business days’ prior written notice, have the right, but not the obligation, to cause such work to be performed and to charge Tenant as Additional Rent for the actual cost of such work. Upon the expiration or earlier termination of the Lease, Tenant shall, at Tenant’s sole cost and expense, cause the Bicycle Locker to be removed and shall cause the areas in which such Bicycle Locker was located to be restored to the condition existing immediately prior to the placement of such Bicycle Locker except for (x) reasonable wear and tear, (y) damage by fire or other casualty which is not Tenant’s obligation to repair hereunder, or (z) repairs which are specifically made the responsibility of Landlord hereunder. If Tenant fails to timely remove the Bicycle Locker or to restore the areas in which such the Bicycle Locker was located, as provided in the immediately

 

58


preceding sentence, then Landlord may perform such work, and all actual costs incurred by Landlord in so performing shall be reimbursed by Tenant to Landlord within thirty (30) days after Tenant’s receipt of an invoice therefor. The terms and conditions of the immediately foregoing sentence shall survive the expiration or earlier termination of the Lease.

29.38.2 Bicycles in the Premises. Tenant’s employees shall be permitted to bring their bicycles in the Premises in accordance with the terms of this Section 29.38.2. The right provided to Tenant and its employees to bring bicycles into the Premises shall be subject to the following terms and conditions: (i) bicycles may only enter and exit the Building through the parking facilities; (ii) bicycles may only be brought into portions of the Premises constituting full floors of the applicable Building (including the Sublease Premises as part of the “Premises” for purposes hereof); (iii) bicycles must be taken directly from the parking facilities to the Premises via the Building’s freight elevator or another elevator reasonably designated by Landlord, and in no event shall Tenant’s employees bring any Bicycles into or through the ground floor lobby of either Building; (iv) Landlord shall have the right to reasonably designate the path of travel that Tenant’s employees must follow to/from the parking facilities and the freight elevator, or another elevator reasonably designated by Landlord; and (v) in no event shall Tenant permit any bicycles to be located within the Common Areas (other than the Bicycle Locker and other bicycle storage areas reasonably designated by Landlord for non-exclusive use of tenants of the Project) at any time.

29.39 Tenant’s Dogs.

29.39.1 In General. Subject to the provisions of this Section 29.39, and the rules and regulations for the Project, Tenant shall be permitted to bring non-aggressive, fully domesticated, fully-vaccinated (including vaccines for rabies, distemper, hepatitis, para-influenza, parvovirus and Bordetella), dogs into the Premises (including the Sublease Premises as part of the “Premises” for such purposes) (which dogs are owned by Tenant or an officer or employee of Tenant) (“Tenant’s Dogs”). The total number of Tenant’s Dogs eligible to be brought into the Premises shall not exceed one dog per 4,500 rentable square feet of space within the Premises (including the Sublease Premises as part of the “Premises” for such purposes) that is not subject to a sublease agreement (or a sub-sublease agreement with respect to the Sublease Premises), but in no event in excess of forty-five (45) dogs in the aggregate. This Section 29.39 (including the foregoing limit on the total number of dogs eligible to be brought into the Premises) shall not be applicable to service animals (as defined under Applicable Laws and accompanying guidelines). Tenant’s Dogs must be on a leash while in any area of the Project outside of the Premises. Tenant’s Dogs shall not be brought to the Project if such dog has fleas or ticks, is ill or contracts a disease that could potentially threaten the health or wellbeing of any other dog, or any tenant or occupant of the Building (which diseases may include, but shall not be limited to, rabies, leptospirosis and Lyme disease). Tenant’s Dogs may only be brought into the Premises using the access route as may be reasonably designated by Landlord. While in the Building, Tenant’s Dogs must be taken directly to/from the Premises and Tenant shall use the Building freight elevator, or other elevator reasonably designated by Landlord, to bring Tenant’s Dogs to/from the Premises. Tenant’s Dogs shall at no time be allowed on any passenger elevators in the Project. Tenant shall not permit any objectionable dog related odors to emanate from the Premises, and in no event shall Tenant’s Dogs be at the Project overnight. Tenant’s Dogs shall not be permitted to defecate or urinate at the Premises or Project, and shall be removed from the Building at regular times to allow defecation or urination at places other than the Project. Any bodily waste generated by Tenant’s Dogs in or about the Project shall be promptly removed and disposed of in trash receptacles reasonably designated by Landlord, and any areas of the Project affected by such waste shall be cleaned and otherwise sanitized. The indemnification provisions of Article 10 of this Lease shall apply to any claims relating to any of Tenant’s Dogs, and Tenant shall provide evidence to Landlord that Tenant’s insurance under Article 10 above includes coverage for “pet incidents” or like-kind coverage.

29.39.2 Costs and Expenses. Tenant shall pay to Landlord, within thirty (30) days after demand accompanied by a documented invoice therefor, all costs reasonably incurred by Landlord in connection with the presence of Tenant’s Dogs in the Building, Premises or Project, including, but not limited to, janitorial (provided Tenant shall be solely responsible for janitorial services within the Premises pursuant to Section 6.1.4 above), waste disposal, landscaping, signage, repair, legal costs and expenses, and costs of issuing “Dog Tags” as defined in Section 29.39.3, below. In the event Landlord receives any verbal or written complaints from any other tenant or occupant of the Project in connection with health-related

 

59


issues (e.g., allergies) related to the presence of Tenant’s Dogs in the Premises, the Building or the Project, which complaint is, in Landlord’s reasonable business judgment, legitimate and not intended solely to harass or frustrate Tenant’s use and occupancy of the Premises or Tenant’s right to bring Tenant’s Dogs into the Premises in accordance with this Section 29.39, Landlord and Tenant shall promptly meet and mutually confer, in good faith, to determine appropriate mitigation measures to eliminate the causes of such complaints (which mitigation measures may include, without limitation, additional and/or different air filters to be installed in the Premises HVAC system, or elsewhere in the Building), and Tenant shall cause such measures to be taken promptly at its sole cost or expense.

29.39.3 Registration. Each of Tenant’s employees that desires to bring a dog to the Premises as one of the Tenant’s Dogs (each, a “Dog Owner”) shall be required to execute an agreement with Tenant (the “Dog Policy Agreement”) in the form attached hereto as Exhibit I, subject to reasonable modifications, from time to time, by Tenant. Following receipt of evidence from Tenant that such Dog Owner has signed a Dog Policy Agreement and a certification from Tenant that the applicable dog has passed a temperament test or other behavioral test designed and reasonably administered by Tenant, Landlord shall issue a Building identification tag to be worn by such dog in order to gain entry into the Project, (the “Dog Tag”). Additionally each Dog Owner shall have on file with Landlord a photograph of the Dog Owner and the dog together for purposes of identification. Landlord may require that if a Dog Owner does not have the applicable Dog Tag attached to the dog, Landlord may refuse to allow such dog to enter the Project. At Tenant’s request, Landlord may require that each Dog Owner pay Landlord directly for issuance of a Dog Tag, such cost not to exceed Ten and 00/100 Dollars ($10.00) per Dog Tag. At any time and from time to time Landlord may require Tenant to provide reasonable evidence that all of Tenant’s Dogs with issued Dog Tags continue to meet the requirements of Section 29.39.1, above. Tenant shall be responsible for implementing and maintaining a program to track the vaccine records for all of Tenant’s Dogs with issued Dog Tags, for providing Landlord with regular updates of such records, and revoking the Dog Tag for any of Tenant’s Dogs that do not have up-to-date vaccines.

29.39.4 Rights Personal to Original Tenant. The right to bring Tenant’s Dogs into the Premises pursuant to this Section 29.39 is personal to the Original Tenant and its Permitted Transferee Assignees. If Tenant assigns the Lease or sublets all or any portion of the Premises other than to a Permitted Transferee Assignee, then, as to the entire Premises, upon such assignment, or, as to the portion of the Premises sublet, upon such subletting and until the expiration of such sublease, the right to bring Tenant’s Dogs into such portion the Premises shall simultaneously terminate and be of no further force or effect, and the total number of dogs eligible to be brought into the Premises shall be proportionately reduced, as set forth in Section 29.39.1 above.

29.39.5 Termination of Dog Owner Rights. Tenant agrees to enforce the terms of the Dog Policy Agreement against each Dog Owner, including the requirement that if the Dog Policy Agreement is breached on more than two (2) occasions by any particular Dog Owner and or dog, Tenant shall revoke such Dog Owner’s right to bring a dog into the Project. Notwithstanding the foregoing, Landlord shall have the right, at any time, to prevent particular dogs from entering or accessing the Premises if such dogs are in violation of the terms of this Section 29.39, or if Landlord has received a complaint from any tenant regarding damage, disruption or nuisance caused by such dog in the Building or the Project, which complaint is, in Landlord’s reasonable business judgment, legitimate and not intended solely to harass or frustrate Tenant’s use and occupancy of the Premises or Tenant’s right to bring Tenant’s Dogs into the Premises in accordance with this Section 29.39.

ARTICLE 30

LETTER OF CREDIT

30.1 Delivery of Letter of Credit. Tenant shall deliver to Landlord, concurrently with Tenant’s and Landlord’s execution of this Lease (but prior to delivery of this Lease), an unconditional, clean, irrevocable letter of credit (the “L-C”) in the amount set forth in Section 30.3 below (the “L-C Amount”), which L-C shall be issued by a money-center, solvent and nationally recognized bank (a bank which accepts deposits, maintains accounts, has a local San Francisco office which will negotiate a letter of credit or otherwise allows draws via overnight courier or facsimile, and whose deposits are insured by the FDIC) reasonably acceptable to Landlord (such approved, issuing bank being referred to herein as the “Bank”), which Bank must

 

60


have a short term Fitch Rating which is not less than “F1”, and a long term Fitch Rating which is not less than “A” (or in the event such Fitch Ratings are no longer available, a comparable rating from Standard and Poor’s Professional Rating Service or Moody’s Professional Rating Service) (collectively, the “Bank’s Credit Rating Threshold”), and which L-C shall be initially in the form of Exhibit G, attached hereto, and any subsequent or replacement L-C shall be on a substantively similar form approved by Landlord. Landlord hereby approves JPMorgan Chase Bank N.A. as the initial issuer of the L-C. Tenant shall pay all expenses, points and/or fees incurred by Tenant in obtaining the L-C. The L-C shall (i) be “callable” at sight, irrevocable and unconditional, (ii) be maintained in effect, whether through renewal or extension, for the period commencing on the date of this Lease and continuing until the date (the “L-C Expiration Date”) that is no less than one hundred five (105) days after the expiration of the Lease Term as the same may be extended, and Tenant shall deliver a new L-C or certificate of renewal or extension to Landlord at least sixty (60) days prior to the expiration of the L-C then held by Landlord, without any action whatsoever on the part of Landlord, (iii) be fully assignable by Landlord, its successors and assigns, (iv) permit partial draws and multiple presentations and drawings, and (v) be otherwise subject to the International Standby Practices-ISP 98, International Chamber of Commerce Publication #590. Landlord, or its then managing agent, shall have the right to draw down an amount up to the face amount of the L-C if any of the following shall have occurred or be applicable: (A) such amount is past due to Landlord under the terms and conditions of this Lease, or (B) Tenant has filed a voluntary petition under the U. S. Bankruptcy Code or any state bankruptcy code (collectively, “Bankruptcy Code”), or (C) an involuntary petition has been filed against Tenant under the Bankruptcy Code, or (D) the Lease has been rejected, or is deemed rejected, under Section 365 of the U.S. Bankruptcy Code, following the filing of a voluntary petition by Tenant under the Bankruptcy Code, or the filing of an involuntary petition against Tenant under the Bankruptcy Code, or (E) the Bank has notified Landlord that the L-C will not be renewed or extended through the L-C Expiration Date, or (F) Tenant is placed into receivership or conservatorship, or becomes subject to similar proceedings under Federal or State law, or (G) Tenant executes an assignment for the benefit of creditors, or (H) if (1) any of the Bank’s Fitch Ratings (or other comparable ratings to the extent the Fitch Ratings are no longer available) have been reduced below the Bank’s Credit Rating Threshold, or (2) there is otherwise a material adverse change in the financial condition of the Bank, and Tenant has failed to provide Landlord with a replacement letter of credit, conforming in all respects to the requirements of this Article 30 (including, but not limited to, the requirements placed on the issuing Bank more particularly set forth in this Section 30.1 above), in the amount of the applicable L-C Amount, within seven (7) business days following Landlord’s written demand therefor (with no other notice or cure or grace period being applicable thereto, notwithstanding anything in this Lease to the contrary) (each of the foregoing being an “L-C Draw Event”). The L-C shall be honored by the Bank regardless of whether Tenant disputes Landlord’s right to draw upon the L-C. In addition, in the event the Bank is placed into receivership or conservatorship by the Federal Deposit Insurance Corporation or any successor or similar entity, then, effective as of the date such receivership or conservatorship occurs, said L-C shall be deemed to fail to meet the requirements of this Article 30, and, within seven (7) business days following Landlord’s notice to Tenant of such receivership or conservatorship, Tenant shall replace such L-C with a substitute letter of credit from a different issuer (which issuer shall meet or exceed the Bank’s Credit Rating Threshold and shall otherwise be acceptable to Landlord in its reasonable discretion) and that complies in all respects with the requirements of this Article 30. If Tenant fails to replace such L-C with such conforming, substitute letter of credit pursuant to the terms and conditions of this Section 30.1, then, notwithstanding anything in this Lease to the contrary, Landlord shall have the right to declare Tenant in default of this Lease for which there shall be no notice or grace or cure periods being applicable thereto (other than the aforesaid seven (7) business day period). Tenant shall be responsible for the payment of any and all costs incurred with the review of any replacement L-C (including without limitation Landlord’s reasonable attorneys’ fees), which replacement is required pursuant to this Section or is otherwise requested by Tenant. In the event of an assignment by Tenant of its interest in the Lease (and irrespective of whether Landlord’s consent is required for such assignment), the acceptance of any replacement or substitute letter of credit by Landlord from the assignee shall be subject to Landlord’s prior written approval, in Landlord’s sole and absolute discretion, and the attorney’s fees incurred by Landlord in connection with such determination shall be payable by Tenant to Landlord within thirty (30) days of billing.

 

 

61


30.2 Application of L-C. Tenant hereby acknowledges and agrees that Landlord is entering into this Lease in material reliance upon the ability of Landlord to draw upon the L-C upon the occurrence of any L-C Draw Event. In the event of any L-C Draw Event, Landlord may, but without obligation to do so, and without notice to Tenant (except in connection with an L-C Draw Event under Section 30.1(H) above), draw upon the L-C, in part or in whole, as necessary to cure any such L-C Draw Event and/or to compensate Landlord for any and all damages of any kind or nature sustained or which Landlord reasonably estimates that it will sustain resulting from Tenant’s breach or default of the Lease or other L-C Draw Event and/or to compensate Landlord for any and all damages arising out of, or incurred in connection with, the termination of this Lease, including, without limitation, those specifically identified in Section 1951.2 of the California Civil Code. The use, application or retention of the L-C, or any portion thereof, by Landlord shall not prevent Landlord from exercising any other right or remedy provided by this Lease or by any applicable law, it being intended that Landlord shall not first be required to proceed against the L-C, and such L-C shall not operate as a limitation on any recovery to which Landlord may otherwise be entitled. Tenant agrees not to interfere in any way with payment to Landlord of the proceeds of the L-C, either prior to or following a “draw” by Landlord of any portion of the L-C, regardless of whether any dispute exists between Tenant and Landlord as to Landlord’s right to draw upon the L-C. No condition or term of this Lease shall be deemed to render the L-C conditional to justify the issuer of the L-C in failing to honor a drawing upon such L-C in a timely manner. Tenant agrees and acknowledges that (i) the L-C constitutes a separate and independent contract between Landlord and the Bank, (ii) Tenant is not a third party beneficiary of such contract, (iii) Tenant has no property interest whatsoever in the L-C or the proceeds thereof, and (iv) in the event Tenant becomes a debtor under any chapter of the Bankruptcy Code, Tenant is placed into receivership or conservatorship, and/or there is an event of a receivership, conservatorship or a bankruptcy filing by, or on behalf of, Tenant, neither Tenant, any trustee, nor Tenant’s bankruptcy estate shall have any right to restrict or limit Landlord’s claim and/or rights to the L-C and/or the proceeds thereof by application of Section 502(b)(6) of the U. S. Bankruptcy Code or otherwise.

30.3 L-C Amount; Burn Down Requirements.

30.3.1 L-C Amount. The initial L-C Amount shall be equal to the amount set forth in Section 13 of the Summary. Notwithstanding anything to the contrary set forth in this Article 30, if additional space is added to the Premises after the date hereof (other than the Must-Take Premises), then the L-C Amount provided for in Section 13 of the Summary shall, effective as of the commencement date of Tenant’s lease of the subject additional space, be increased so that, based on the new total rentable square footage of the Premises (with the additional space added thereto) the L-C Amount is the same amount per rentable square foot of the Premises that was in effect on the date immediately prior to the date the subject additional space was added to the Premises.

30.3.2 Reduction in L-C Amount. To the extent that on each of the “Dates of Reduction” identified below, (i) Tenant is not in default under this Lease, and (ii) Tenant satisfies the “Burn Down Requirements” identified below, the L-C Amount shall be reduced as follows:

 

Date of Reduction

   Amount of
Reduction
     L-C Amount  

The last day of the forty-eighth (48th) full calendar month of the initial Lease Term

   $ 1,335,000.00      $ 7,565,000.00  

The last day of the sixtieth (60th) full calendar month of the initial Lease Term

   $ 1,335,000.00      $ 6,230,000.00  

The last day of the seventy-second (72nd) full calendar month of the initial Lease Term

   $ 1,335,000.00      $ 4,895,000.00  

The last day of the eighty-fourth (84th) full calendar month of the initial Lease Term

   $ 1,335,000.00      $ 3,560,000.  

The last day of the ninety-sixth (96th) full calendar month of the initial Lease Term

   $ 1,335,000.00      $ 2,225,000.00  

 

62


30.3.3 Burn Down Requirements. The “Burn Down Requirements” shall be as follows:

30.3.3.1 Tenant’s then-existing average “Cash on Hand,” as of the closing date of Tenant’s then most current Audited Financial Statement, has averaged $100,000,000.00 or more during the preceding twelve (12) calendar month period or, in the event that Tenant no longer utilizes or publishes such Cash on Hand amounts, this requirement shall be reasonably determined based on an equivalent or corresponding measure established using generally accepted accounting principles.

30.3.3.2 Tenant has achieved its projected 2019 revenue target of $2,000,000,000.00

30.3.3.3 Tenant has been “cash flow positive,” on an EBITDA (earnings before interest, taxes, depreciation and amortization) basis with an EBITDA margin of 8.5% or better, during each financial quarter on a trailing basis during the immediately preceding twelve (12) month period, as shown on Tenant’s then most current Audited Financial Statement; and

30.3.3.4 Tenant provides Landlord with a representation, reasonably acceptable to Landlord and certified by Tenant’s chief financial officer, that based on Tenant’s then most current Audited Financial Statement and to the best of Tenant’s knowledge, there has not been, and there will not be, any adverse material change(s) to Tenant’s ability to remain “cash flow positive” for the twelve (12) month period immediately following the date of any reduction in the L-C Amount.

In the event that Tenant desires to reduce either the L-C Amount as set forth in Sections 30.3.2 above, then no later than six (6) months prior to the scheduled date of such reduction, concurrently with Tenant’s delivery of the written representation and certification required under Section 30.3.3.4, above, Tenant shall deliver to Landlord a copy of Tenant’s then most current Audited Financial Statement evidencing compliance with the Burn Down Requirements. Notwithstanding anything to the contrary set forth in this Section 30.3.3, in no event shall the L-C Amount as set forth above decrease during any period in which Tenant is in default under this Lease, but such decrease shall take place retroactively after such default is cured, provided that no such decrease shall thereafter take effect in the event this Lease is terminated early due to such default by Tenant.

30.4 Maintenance of L-C. If, as a result of any drawing by Landlord of all or any portion of the L-C, the amount of the L-C shall be less than the L-C Amount, Tenant shall, within five (5) business days thereafter, provide Landlord with additional letter(s) of credit in an amount equal to the deficiency, and any such additional letter(s) of credit shall comply with all of the provisions of this Article 30. Tenant further covenants and warrants that it will neither assign nor encumber the L-C or any part thereof and that neither Landlord nor its successors or assigns will be bound by any such assignment, encumbrance, attempted assignment or attempted encumbrance. Without limiting the generality of the foregoing, if the L-C expires earlier than the L-C Expiration Date, Landlord will accept a renewal thereof (such renewal letter of credit to be in effect and delivered to Landlord, as applicable, not later than sixty (60) days prior to the expiration of the L-C), which shall be irrevocable and automatically renewable as above provided through the L-C Expiration Date upon the same terms as the expiring L-C or such other terms as may be acceptable to Landlord in its sole discretion. If Tenant exercises its option to extend the Lease Term pursuant to Section 2.2 of this Lease then, not later than sixty (60) days prior to the commencement of the Option Term, Tenant shall deliver to Landlord a new L C or certificate of renewal or extension evidencing the L-C Expiration Date as one hundred five (105) days after the expiration of the Option Term. However, if the L-C is not timely renewed, or if Tenant fails to maintain the L-C in the amount and in accordance with the terms set forth in this Article 30, Landlord shall have the right to present the L-C to the Bank in accordance with the terms of this Article 30, and the proceeds of the L-C may be applied by Landlord against any Rent payable by Tenant under this Lease that is not paid when due and/or to pay for all losses and damages that Landlord has suffered or that Landlord reasonably estimates that it will suffer

 

63


as a result of any breach or default by Tenant under this Lease. In the event Landlord elects to exercise its rights under the foregoing, (I) any unused proceeds shall constitute the property of Landlord (and not Tenant’s property or, in the event of a receivership, conservatorship, or a bankruptcy filing by, or on behalf of, Tenant, property of such receivership, conservatorship or Tenant’s bankruptcy estate) and need not be segregated from Landlord’s other assets, and (II) Landlord agrees to pay to Tenant within thirty (30) days after the L-C Expiration Date the amount of any proceeds of the L-C received by Landlord and not applied against any Rent payable by Tenant under this Lease that was not paid when due or used to pay for any losses and/or damages suffered by Landlord (or reasonably estimated by Landlord that it will suffer) as a result of any breach or default by Tenant under this Lease; provided, however, that if prior to the L-C Expiration Date a voluntary petition is filed by Tenant, or an involuntary petition is filed against Tenant by any of Tenant’s creditors, under the Bankruptcy Code, then Landlord shall not be obligated to make such payment in the amount of the unused L-C proceeds until either all preference issues relating to payments under this Lease have been resolved in such bankruptcy or reorganization case or such bankruptcy or reorganization case has been dismissed.

30.5 Transfer and Encumbrance. The L-C shall also provide that Landlord may, at any time and without notice to Tenant and without first obtaining Tenant’s consent thereto, transfer (one or more times) all or any portion of its interest in and to the L-C to another party, person or entity, regardless of whether or not such transfer is from or as a part of the assignment by Landlord of its rights and interests in and to this Lease. In the event of a transfer of Landlord’s interest in under this Lease, Landlord shall transfer the L-C, in whole or in part, to the transferee and thereupon Landlord shall, without any further agreement between the parties, be released by Tenant from all liability therefor, and it is agreed that the provisions hereof shall apply to every transfer or assignment of the whole of said L-C to a new landlord. In connection with any such transfer of the L-C by Landlord, Tenant shall, at Tenant’s sole cost and expense, execute and submit to the Bank such applications, documents and instruments as may be necessary to effectuate such transfer and, Tenant shall be responsible for paying the Bank’s transfer and processing fees in connection therewith; provided that, Landlord shall have the right (in its sole discretion), but not the obligation, to pay such fees on behalf of Tenant, in which case Tenant shall reimburse Landlord within ten (10) business days after Tenant’s receipt of an invoice from Landlord therefor.

30.6 L-C Not a Security Deposit. Landlord and Tenant (1) acknowledge and agree that in no event or circumstance shall the L-C or any renewal thereof or substitute therefor or any proceeds thereof be deemed to be or treated as a “security deposit” under any law applicable to security deposits in the commercial context, including, but not limited to, Section 1950.7 of the California Civil Code, as such Section now exists or as it may be hereafter amended or succeeded (the “Security Deposit Laws”), (2) acknowledge and agree that the L-C (including any renewal thereof or substitute therefor or any proceeds thereof) is not intended to serve as a security deposit, and the Security Deposit Laws shall have no applicability or relevancy thereto, and (c) waive any and all rights, duties and obligations that any such party may now, or in the future will, have relating to or arising from the Security Deposit Laws. Tenant hereby irrevocably waives and relinquishes the provisions of Section 1950.7 of the California Civil Code and any successor statute, and all other provisions of law, now or hereafter in effect, which (x) establish the time frame by which a landlord must refund a security deposit under a lease, and/or (y) provide that a landlord may claim from a security deposit only those sums reasonably necessary to remedy defaults in the payment of rent, to repair damage caused by a tenant or to clean the premises, it being agreed that Landlord may, in addition, claim those sums specified in this Article 30 and/or those sums reasonably necessary to (a) compensate Landlord for any loss or damage caused by Tenant’s breach of this Lease, including any damages Landlord suffers following termination of this Lease, and/or (b) compensate Landlord for any and all damages arising out of, or incurred in connection with, the termination of this Lease, including, without limitation, those specifically identified in Section 1951.2 of the California Civil Code.

30.7 Non-Interference By Tenant. Tenant agrees not to interfere in any way with any payment to Landlord of the proceeds of the L-C, either prior to or following a “draw” by Landlord of all or any portion of the L-C, regardless of whether any dispute exists between Tenant and Landlord as to Landlord’s right to draw down all or any portion of the L-C. No condition or term of this Lease shall be deemed to render the L-C conditional and thereby afford the Bank a justification for failing to honor a drawing upon such L-C in a timely manner. Tenant shall not request or instruct the Bank of any L-C to refrain from paying sight draft(s) drawn under such L-C.

 

64


30.8 Waiver of Certain Relief. Tenant unconditionally and irrevocably waives (and as an independent covenant hereunder, covenants not to assert) any right to claim or obtain any of the following relief in connection with the L-C:

30.8.1 A temporary restraining order, temporary injunction, permanent injunction, or other order that would prevent, restrain or restrict the presentment of sight drafts drawn under any L-C or the Bank’s honoring or payment of sight draft(s); or

30.8.2 Any attachment, garnishment, or levy in any manner upon either the proceeds of any L-C or the obligations of the Bank (either before or after the presentment to the Bank of sight drafts drawn under such L-C) based on any theory whatever.

30.9 Remedy for Improper Drafts. Tenant’s sole remedy in connection with the improper presentment or payment of sight drafts drawn under any L-C shall be the right to obtain from Landlord a refund of the amount of any sight draft(s) that were improperly presented or the proceeds of which were misapplied, together: (A) with interest at the Interest Rate, (B) reasonable actual out-of-pocket attorneys’ fees and (C) any charges imposed on Tenant by the Bank in connection therewith, provided that at the time of such refund, Tenant increases the amount of such L-C to the amount (if any) then required under the applicable provisions of this Lease. Tenant acknowledges that the presentment of sight drafts drawn under any L-C, or the Bank’s payment of sight drafts drawn under such L-C, could not under an2y circumstances cause Tenant injury that could not be remedied by an award of money damages, and that the recovery of money damages would be an adequate remedy therefor. In the event Tenant shall be entitled to a refund as aforesaid and Landlord shall fail to make such payment within ten (10) business days after demand, Tenant shall have the right to deduct the amount thereof together with interest thereon at the Interest Rate from the next installment(s) of Base Rent.

[signatures follow on next page]

 

65


IN WITNESS WHEREOF, Landlord and Tenant have caused this Lease to be executed the day and date first above written.

 

“Landlord”:

SPF CHINA BASIN HOLDINGS, LLC, a Delaware limited liability company

By:

 

SPF China Basin Acquisition, LLC, a Delaware limited liability company Managing Member

 

By:

 

Commingled Pension Trust Fund (Strategic Property) of JPMorgan Chase Bank, N.A., Sole Member

   

By:

 

JPMorgan Chase Bank, N.A., Trustee

     

By:

 

/s/ Karen M. Wilbrecht

       

Karen M. Wilbrecht,

       

Vice President

       

Date: 4/8/16

“Tenant”:

 

LYFT, INC., a Delaware corporation

By:

 

/s/ John Zimmer

 

Name: John Zimmer

 

Its: President

 

Date: 4/8/2016

 

66


EXHIBIT A

CHINA BASIN

OUTLINE OF PREMISES 1

This Exhibit A is referenced in Section 1.1.1 of that certain Office Lease dated as of April 8, 2016, by and between SPF CHINA BASIN HOLDINGS, LLC, a Delaware limited liability company, and LYFT, INC., a Delaware corporation.

 

LOGO

 

 

1

NOTE: Suite 3000 depicted above contains approximately 25,783 rentable square feet of space and Suite 500 depicted above contains approximately 26,514 rentable square feet of space.

 

  

EXHIBIT A

1

  
     


EXHIBIT A-1

CHINA BASIN

OUTLINE OF MUST-TAKE PREMISES2

This Exhibit A-1 is referenced in Section 1.1.1 of that certain Office Lease dated as of April 8, 2016, by and between SPF CHINA BASIN HOLDINGS, LLC, a Delaware limited liability company, and LYFT, INC., a Delaware corporation.

 

LOGO

 

 

2

NOTE: Suite 590 depicted above contains approximately 41,430 rentable square feet of space.

 

   EXHIBIT A-1   
   1   


EXHIBIT A-2

CHINA BASIN

OUTLINE OF FIRST OFFER SPACE3

This Exhibit A-2 is referenced in Section 1.2 of that certain Office Lease dated as of April 8, 2016, by and between SPF CHINA BASIN HOLDINGS, LLC, a Delaware limited liability company, and LYFT, INC., a Delaware corporation.

 

LOGO

 

 

3

NOTE: The First Offer Space located on the fourth (4th) floor of the Berry Street Building depicted above contains approximately 85,591 rentable square feet of space and the First Offer Space located on the fifth (5th) floor of the Berry Street Building depicted above contains approximately 16,801 rentable square feet of space.

 

   EXHIBIT A-2   
   1   


EXHIBIT A-3

CHINA BASIN

OUTLINE OF TEMPORARY PREMISES4

This Exhibit A-3 is referenced in Section 1.3 of that certain Office Lease dated as of April 8, 2016, by and between SPF CHINA BASIN HOLDINGS, LLC, a Delaware limited liability company, and LYFT, INC., a Delaware corporation.

 

LOGO

 

 

4

NOTE: Suite 500 depicted above contains approximately 26,514 rentable square feet of space.

 

   EXHIBIT A-3   
   1   


EXHIBIT B

CHINA BASIN

TENANT WORK LETTER

This Exhibit B is referenced in Section 1.1.1 of that certain Office Lease dated as of April 8, 2016, by and between SPF CHINA BASIN HOLDINGS, LLC, a Delaware limited liability company, and LYFT, INC., a Delaware corporation.

This Tenant Work Letter shall set forth the terms and conditions relating to the construction of improvements in the initial Premises and the Must-Take Premises. This Tenant Work Letter is essentially organized chronologically and addresses the issues of the construction of the initial Premises and Must-Take Premises, in sequence, as such issues will arise during the actual construction of the initial Premises and Must-Take Premises. All references in this Tenant Work Letter to Sections of “this Lease” shall mean the relevant portion of the Lease to which this Tenant Work Letter is attached as Exhibit B and of which this Tenant Work Letter forms a part, and all references in this Tenant Work Letter to Sections of “this Tenant Work Letter” shall mean the relevant portions of Sections 1 through 5 of this Tenant Work Letter. Unless context indicates otherwise, all references in this Tenant Work Letter to “Premises” shall mean either the “initial Premises” or the “Must-Take Premises” as applicable.

SECTION 1

DELIVERY OF THE PREMISES

1.1 Delivery of the Initial Premises. Tenant acknowledges that Tenant has thoroughly examined the initial Premises. Upon the full execution and delivery of this Lease by Landlord and Tenant, Landlord shall deliver the initial Premises and Tenant shall accept the initial Premises from Landlord in its presently existing, “as-is” condition as of the date of this Lease; provided, however, Landlord shall deliver the initial Premises with the plumbing, electrical systems, fire sprinkler system, lighting, air conditioning and heating systems and all other Building systems serving the initial Premises in good operating condition and repair and any failure of such systems to be in such condition on delivery shall not be a default under this Lease, but shall be promptly remedied by Landlord at Landlord’s sole cost and expense.

1.1.1 Delay in Delivery of Initial Premises. Notwithstanding anything contained herein to the contrary, if Landlord has not delivered the initial Premises to Tenant within ninety (90) days after the Anticipated Initial Premises Delivery Date (the “Initial Late Delivery Date”, which date shall be extended on a day-for-day basis for each day Landlord is delayed in delivering the initial Premises to Tenant as a result of delays due to any Force Majeure and/or any acts or omissions of Tenant and/or Tenant’s agents, contractors, employees, licensees and/or invitees (a “Tenant Delay”)), then Tenant shall have the right, in its sole discretion, to terminate this Lease. Such termination shall be effective ten (10) business days after Landlord’s receipt of written notice from Tenant pursuant to which Tenant elects to terminate this Lease (the “Initial Delivery Termination Notice”); provided that, if Landlord delivers the initial Premises to Tenant prior to the effective date of the Initial Delivery Termination Notice, then such Initial Delivery Termination Notice shall be of no force or effect. Tenant’s right to terminate this Lease, as provided for herein, shall be Tenant’s sole and exclusive remedy if Landlord has not delivered the initial Premises to Tenant as of the Initial Late Delivery Date (as such date may be extended as provided herein). Within thirty (30) days of any such termination, Landlord shall return the prepaid rent and original L-C to Tenant.

1.2 Delivery of the Must-Take Premises. Tenant acknowledges that Tenant has thoroughly examined the Must-Take Premises. Tenant hereby acknowledges that the Must-Take Premises is currently occupied by another tenant of the Building (the “Must-Take Existing Tenant”). Following the vacation and surrender of the Must-Take Premises by such Must-Take Existing Tenant, Landlord shall deliver the Must-Take Premises and Tenant shall accept the Must-Take Premises from Landlord in its presently existing, “as-is” condition as of the date of this Lease; provided, however, Landlord shall deliver the Must-Take Premises with the plumbing, electrical systems, fire sprinkler system, lighting, air conditioning and heating systems and all other Building systems serving the Must-Take Premises in good operating condition and repair and any failure of such systems to be in such condition on delivery shall not be a default

 

   EXHIBIT B   
   1   


under this Lease, but shall be promptly remedied by Landlord at Landlord’s sole cost and expense. In addition, prior to delivery of the Must-Take Premises to Tenant, Landlord shall repair (or cause the Must-Take Existing Tenant to repair) any major damage to the Must-Take Premises caused by the Must-Take Existing Tenant’s vacation of the Must-Take Premises and the Must-Take Premises shall be broom swept and free of the Must-Take Existing Tenant’s personal property, furniture, fixtures and equipment. Landlord anticipates delivering the Must-Take Premises to Tenant on the Anticipated Must-Take Premises Delivery Date (i.e., August 1, 2017); provided, however, if Landlord is unable for any reason to deliver possession of the Must-Take Premises to Tenant on any specific date, then Landlord shall not be subject to any liability for its failure to do so, and such failure shall not affect the validity of this Lease or the obligations of Tenant hereunder, except as otherwise expressly set forth herein below.

1.2.1 Delay in Delivery of Must-Take Premises. Notwithstanding anything contained herein to the contrary, if Landlord has not delivered the Must-Take Premises to Tenant within thirty (30) days after the Anticipated Must-Take Premises Delivery Date (the “First Must Take Late Delivery Date”, which date shall be extended on a day-for-day basis for each day Landlord is delayed in delivering the Must-Take Premises to Tenant as a result of any failure of the Existing Tenant to timely surrender the Must Take Premises (for which Landlord shall have no liability whatsoever so long as Landlord uses reasonable efforts, including filing an unlawful detainer action, to cause the Existing Tenant to vacate the Must-Take Premises), delays due to any Force Majeure and/or any Tenant Delay)), then Tenant shall be entitled to a Base Rent credit, to be applied to the Base Rent first coming due with respect to the Must-Take Premises, in an amount equal to Nine Thousand Three Hundred Fifty-Two and 96/100 Dollars ($9,352.96) for each day beyond the First Must Take Late Delivery Date (as such date may be extended as provided herein) up to the date that Landlord delivers the Must-Take Premises to Tenant. Notwithstanding anything contained herein to the contrary, if Landlord has not delivered the Must-Take Premises to Tenant within ninety (90) days after the Anticipated Must-Take Premises Delivery Date (the “Second Must Take Late Delivery Date”, which date shall be extended on a day-for-day basis for each day Landlord is delayed in delivering the Must-Take Premises to Tenant as a result of any failure of the Existing Tenant to timely surrender the Must Take Premises (for which Landlord shall have no liability whatsoever), delays due to any Force Majeure and/or any Tenant Delay)), then Tenant shall have the right, in its sole discretion, to terminate Tenant’s lease of the Must-Take Premises (though Tenant’s lease of the initial Premises shall remain in full force and effect). Such termination shall be effective ten (10) business days after Landlord’s receipt of written notice from Tenant pursuant to which Tenant elects to terminate this Lease (the “Delivery Termination Notice”); provided that, if Landlord delivers the Must-Take Premises to Tenant prior to the effective date of the Delivery Termination Notice, then such Delivery Termination Notice shall be of no force or effect. Tenant’s rights to abate rent and to terminate Tenant’s lease of the Must-Take Premises as provided for herein, shall be Tenant’s sole and exclusive remedies if Landlord has not delivered the Must-Take Premises to Tenant as of the First Must-Take Late Delivery Date or the Second Must-Take Late Delivery Date (as such dates may be extended as provided herein). Upon such termination, the L-C Amount shall be reduced in proportionately on a rentable square footage basis to account for the rentable square footage of the Must-Take Premises no longer being part of the “Premises” under this Lease.

1.3 Compliance. Notwithstanding the foregoing, in connection with Tenant’s construction of the “Tenant Improvements” (as defined in Section 2.1 below) and to the extent that such Tenant Improvements are normal and customary general office improvements assuming an office occupancy density consistent with comparable tenants in Class A buildings in the San Francisco area and the Building, Landlord shall be responsible, at Landlord’s sole cost and expense, to the extent such compliance is required in order to allow Tenant to obtain a certificate of occupancy, or its legal equivalent, for the Premises for general office use, (i) to cause the “path of travel” to the Premises (i.e., the most direct route through the Common Areas of the Building starting from the entrance of the Building and ending at the entrance to the Premises) to comply with applicable building codes and other governmental laws, ordinances and regulations related to handicap access and use, as enacted and enforced as of the Lease Commencement Date, including but not limited to building codes and other governmental laws, ordinances and regulations enacted in conformity with Title 24 accessibility standards and the Americans with Disabilities Act, and (ii) to perform all work necessary to the Base Building and the Common Areas to cause such areas to comply with applicable building codes and other governmental laws, ordinances and regulations, as enacted and enforced as of the Lease Commencement Date, including but not limited to building codes and other governmental laws, ordinances and regulations enacted in conformity with Title 24 accessibility standards and the Americans with Disabilities Act (collectively, the “Code Work”).

 

   EXHIBIT B   
   2   


SECTION 2

IMPROVEMENTS

2.1 Tenant Improvement Allowance. Tenant shall be entitled to a one-time improvement allowance (the “Tenant Improvement Allowance”) in the aggregate amount of (i) $1,675,895.00 (i.e., $65.00 per each of the 25,783 rentable square feet in the Suite 3000, Wharfside Building portion of the Premises) (ii) $927,990.00 (i.e., $35.00 per each of the 26,514 rentable square feet in Suite 500, Berry Street portion of the Premises), and (iii) $1,242,900,00 (i.e., $30.00 per each of the 41,430 rentable square feet in the Must-Take Premises) for the costs relating to the initial design and construction of the improvements, which are permanently affixed to the Premises (the “Tenant Improvements”). The portion of the Tenant Improvement Allowance described in items (i) and (ii) above is referred to herein as the “Initial Premises Allowance” and the portion of the Tenant Improvement Allowance described in item (iii) above is referred to herein as the “Must-Take Premises Allowance”. In addition, Landlord shall provide up to $0.15 per rentable square foot of the entire Premises towards the cost of one (1) preliminary space plan for the entire Premises (“Landlord’s Drawing Contribution”), but not the cost of any revisions thereto requested by Tenant or required by Landlord, and only to the extent such drawings reflect items from the Building standards and no portion of the Landlord’s Drawing Contribution, if any, remaining after the completion of the Tenant Improvements shall be available for use by Tenant. In no event shall Landlord be obligated to make disbursements pursuant to this Tenant Work Letter in the event that Tenant fails to immediately pay any portion of the “Over-Allowance Amount,” as defined in Section 4.2.1. Tenant shall utilize at least ninety percent (90%) of (a) $1,675,895.00 of the Tenant Improvement Allowance for Tenant Improvements installed in the Suite 3000, Wharfside Building portion of the Premises, (b) $927,990.00 of the Tenant Improvement Allowance for Tenant Improvements installed in the Suite 500, Berry Street portion of the Premises, and (c) $1,242,900.00 of the Tenant Improvement Allowance for Tenant Improvements installed in the Must-Take Premises; and Tenant may use up to ten percent (10%) of the Tenant Improvement Allowance allocated to the Suite 3000, Wharfside Building portion of the Premises in connection with Tenant Improvements to be constructed in the Suite 500, Berry Street portion of the Premises. Landlord shall not be obligated to pay a total amount which exceeds the Tenant Improvement Allowance and Landlord’s Drawing Contribution. Notwithstanding the foregoing or any contrary provision of this Lease, all Tenant Improvements shall be deemed Landlord’s property under the terms of this Lease. Any unused portion of the Initial Premises Allowance remaining as of the first anniversary of the Lease Commencement Date, shall remain with Landlord and Tenant shall have no further right thereto. Any unused portion of the Must-Take Premises Allowance remaining as of the first anniversary of the Must-Take Premises Lease Commencement Date, shall remain with Landlord and Tenant shall have no further right thereto.

2.2 Disbursement of the Tenant Improvement Allowance.

2.2.1 Tenant Improvement Allowance Items. Except as otherwise set forth in this Tenant Work Letter, the Tenant Improvement Allowance shall be disbursed by Landlord (each of which disbursements shall be made pursuant to Landlord’s disbursement process, including, without limitation, Landlord’s receipt of invoices for all costs and fees described herein) only for the following items and costs (collectively the “Tenant Improvement Allowance Items”):

2.2.1.1 Payment of the fees of the “Architect” and the “Engineers,” as those terms are defined in Section 3.1 of this Tenant Work Letter, and payment of the fees incurred by, and the cost of documents and materials supplied by, Landlord and Landlord’s consultants in connection with the preparation and review of the “Construction Drawings,” as that term is defined in Section 3.1 of this Tenant Work Letter, and the cost of computer and telecommunication cabling, reasonably incurred by Tenant, which payment for the foregoing items in this Section 2.2.1.1 shall not exceed an aggregate amount equal to $4.00 per rentable square foot of the entire Premises;

 

   EXHIBIT B   
   3   


2.2.1.2 The payment of plan check, permit and license fees relating to construction of the Tenant Improvements;

2.2.1.3 The cost of construction of the Tenant Improvements, including, without limitation, costs of installing submeters to monitor the electricity usage in the Premises pursuant to Section 6.1.2 of this Lease, testing and inspection costs, after-hours and above-standard freight elevator usage, hoisting and trash removal costs, and contractors’ fees and general conditions;

2.2.1.4 The cost of any changes in the Base Building when such changes are required by the Construction Drawings (including if such changes are due to the fact that such work is prepared on an unoccupied basis), such cost to include all direct architectural and/or engineering fees and expenses incurred in connection therewith, but excluding any costs that are Landlord’s obligation pursuant to the terms of Section 1 of this Tenant Work Letter;

2.2.1.5 The cost of any changes to the Construction Drawings or Tenant Improvements required by all applicable building codes (the “Code”), but excluding any costs that are Landlord’s obligation pursuant to the terms of Section 1 of this Tenant Work Letter;

2.2.1.6 The cost of the “Coordination Fee,” as that term is defined in Section 4.2.2.1 of this Tenant Work Letter;

2.2.1.7 Sales and use taxes; and

2.2.1.8 All other costs to be expended by Landlord in connection with the construction of the Tenant Improvements.

2.2.2 Disbursement of Tenant Improvement Allowance. During the construction of the Tenant Improvements, Landlord shall make monthly disbursements of the Tenant Improvement Allowance for Tenant Improvement Allowance Items and shall authorize the release of monies as follows.

2.2.2.1 Monthly Disbursements. On or before the day of each calendar month, as determined by Landlord, during the construction of the Tenant Improvements (or such other date as Landlord may designate), Tenant shall deliver to Landlord: (i) a request for payment of the “Contractor,” as that term is defined in Section 4.1.1 of this Tenant Work Letter, approved by Tenant, in a form to be provided by Landlord, showing the schedule, by trade, of percentage of completion of the Tenant Improvements in the Premises, detailing the portion of the work completed and the portion not completed; (ii) invoices from all of “Tenant’s Agents,” as that term is defined in Section 4.1.2 of this Tenant Work Letter, for labor rendered and materials delivered to the Premises; (iii) executed mechanic’s lien releases from all of Tenant’s Agents which shall comply with the appropriate provisions, as reasonably determined by Landlord, of California Civil Code Sections 8132, 8134, 8136 and 8138; and (iv) all other information reasonably requested by Landlord. Tenant’s request for payment shall be deemed Tenant’s acceptance and approval of the work furnished and/or the materials supplied as set forth in Tenant’s payment request. Thereafter, Landlord shall deliver a check to Tenant made jointly payable to Contractor and Tenant in payment of the lesser of: (A) the amounts so requested by Tenant, as set forth in this Section 2.2.2.1, above, less a ten percent (10%) retention (the aggregate amount of such retentions to be known as the “Final Retention”), and (B) the balance of any remaining available portion of the Tenant Improvement Allowance (not including the Final Retention), provided that Landlord does not reasonably dispute any request for payment based on non-compliance of any work with the “Approved Working Drawings,” as that term is defined in Section 3.4 below, or due to any substandard work, or for any other reason. Landlord’s payment of such amounts shall not be deemed Landlord’s approval or acceptance of the work furnished or materials supplied as set forth in Tenant’s payment request.

2.2.2.2 Final Retention. Subject to the provisions of this Tenant Work Letter, a check for the Final Retention payable jointly to Tenant and Contractor shall be delivered by Landlord to Tenant following the completion of construction of the initial Premises or the Must-Take Premises, as the case may be, provided that (i) Tenant delivers to Landlord properly executed mechanic’s lien releases in compliance with both California Civil Code Section 8136, (ii) Landlord has reasonably determined that no substandard work exists which adversely affects the mechanical, electrical, plumbing, heating, ventilating and air conditioning,

 

   EXHIBIT B   
   4   


life-safety or other systems of the Building, the curtain wall of the Building, the structure or exterior appearance of the Building, or any other tenant’s use of such other tenant’s leased premises in the Building, and (iii) Architect delivers to Landlord a certificate, in a form reasonably acceptable to Landlord, certifying that the construction of the Tenant Improvements in the initial Premises or the Must-Take Premises, as the case may be, has been substantially completed.

2.2.2.3 Other Terms. Landlord shall only be obligated to make disbursements from the Tenant Improvement Allowance to the extent costs are incurred by Tenant for Tenant Improvement Allowance Items. All Tenant Improvement Allowance Items for which the Tenant Improvement Allowance has been made available shall be deemed Landlord’s property under the terms of this Lease.

2.3 Building Standards. Landlord has established or may establish specifications for certain Building standard components to be used in the construction of the Tenant Improvements in the Premises. The quality of Tenant Improvements shall be equal to or of greater quality than the quality of such Building standards, provided that Landlord may, at Landlord’s option, require the Tenant Improvements to comply with certain Building standards. Landlord may make changes to said specifications for Building standards from time to time upon no less than thirty (30) days prior written notice to Tenant; provided, however, such changes shall not apply to any elements of the Tenant Improvements that were previously approved by Landlord.

2.4 Removal Requirements. Tenant’s removal requirements with respect to the Tenant Improvements are set forth in Section 8.5 of this Lease, including Tenant’s right to request that Landlord waive certain removal requirements pursuant to the terms thereof.

SECTION 3

CONSTRUCTION DRAWINGS

3.1 Selection of Architect/Construction Drawings. Tenant shall retain the architect/space planner designated by Tenant and reasonably approved by Landlord (the “Architect”) to prepare the “Construction Drawings,” as that term is defined in this Section 3.1. Tenant shall retain the engineering consultants designated by Tenant and reasonably approved by Landlord (the “Engineers”) to prepare all plans and engineering working drawings relating to the structural, mechanical, electrical, plumbing, HVAC, lifesafety, and sprinkler work in the Premises, which work is not part of the Base Building. The plans and drawings to be prepared by Architect and the Engineers hereunder shall be known collectively as the “Construction Drawings.” All Construction Drawings shall be subject to Landlord’s approval, such approval not to be unreasonably withheld, conditioned or delayed. Tenant and Architect shall verify, in the field, the dimensions and conditions as shown on the relevant portions of the Base Building plans, and Tenant and Architect shall be solely responsible for the same, and Landlord shall have no responsibility in connection therewith. Landlord’s review of the Construction Drawings as set forth in this Section 3, shall be for its sole purpose and shall not imply Landlord’s review of the same, or obligate Landlord to review the same, for quality, design, Code compliance or other like matters. Accordingly, notwithstanding that any Construction Drawings are reviewed by Landlord or its space planner, architect, engineers and consultants, and notwithstanding any advice or assistance which may be rendered to Tenant by Landlord or Landlord’s space planner, architect, engineers, and consultants, Landlord shall have no liability whatsoever in connection therewith and shall not be responsible for any omissions or errors contained in the Construction Drawings, and Tenant’s waiver and indemnity set forth in this Lease shall specifically apply to the Construction Drawings.

3.2 Final Space Plan. Tenant shall supply Landlord with one PDF copy signed by Tenant of its final space plan for the Premises. The final space plan (the “Final Space Plan”) shall include a layout and designation of all offices, rooms and other partitioning, their intended use, and equipment to be contained therein. Such Final Space Plan shall be approved by Landlord, which approval shall not be unreasonably withheld, conditioned or delayed; provided, however, without limitation as to other reasonable grounds for withholding consent, it shall be deemed reasonable for Landlord to withhold its consent to any proposed Tenant Improvements or aspect of the Final Space Plan in the event the same (i) require, or might reasonably require, or give rise to governmentally required changes to the Base Building, (ii) have an adverse effect on the structural integrity of the Building; (iii) are not in compliance with Code; (c) have an adverse

 

   EXHIBIT B   
   5   


effect on the systems and equipment of the Building; (iv) have an effect on the exterior appearance of the Building; or (v) cause unreasonable interference with the normal and customary office operations of any other tenant in the Building (individually or collectively, a “Design Problem”). Landlord may request clarification or more specific drawings for special use items not included in the Final Space Plan. Landlord shall advise Tenant within five (5) business days after Landlord’s receipt of the Final Space Plan for the Premises if the same is unsatisfactory or incomplete in any respect. If Tenant is so advised, Tenant shall promptly cause the Final Space Plan to be revised to correct any deficiencies or other matters Landlord may reasonably require. If Landlord fails to notify Tenant of Landlord’s approval or disapproval of any such Final Space Plan within such five (5) business day period, Tenant shall have the right to provide Landlord with a second written request for approval (a “Second Request”) that specifically identifies the Final Space Plan and contains the following statement in bold and capital letters: “THIS IS A SECOND REQUEST FOR APPROVAL PURSUANT TO THE PROVISIONS OF SECTION 3.2 OF THE WORK LETTER ATTACHED TO THE LEASE. IF LANDLORD FAILS TO RESPOND WITHIN THREE (3) BUSINESS DAYS AFTER RECEIPT OF THIS NOTICE, THEN LANDLORD SHALL BE DEEMED TO HAVE APPROVED THE FINAL SPACE PLAN.” If Landlord fails to respond to such Second Request within three (3) business days after receipt by Landlord, the Final Space Plan in question shall be deemed approved by Landlord.

3.3 Final Working Drawings. After the Final Space Plan has been approved (or deemed approved) by Landlord, Tenant shall supply the Engineers with a complete listing of standard and non-standard equipment and specifications, including, without limitation, fire-suppression system requirements, B.T.U. calculations, electrical requirements and special electrical receptacle requirements for the Premises, to enable the Engineers and the Architect to complete the “Final Working Drawings” (as that term is defined below) in the manner as set forth below. Upon the approval of the Final Space Plan by Landlord and Tenant, Tenant shall promptly cause the Architect and the Engineers to complete the architectural and engineering drawings for the Premises, and Architect shall compile a fully coordinated set of architectural, structural, mechanical, electrical and plumbing working drawings in a form which is complete to allow subcontractors to bid on the work and to obtain all applicable permits (collectively, the “Final Working Drawings”) and shall submit the same to Landlord for Landlord’s approval; however, Tenant shall have the ability to submit architectural and engineered drawings at separate times, all subject to the timelines outlined below. Tenant shall supply Landlord with one (1) copy signed by Tenant (and three (3) additional unsigned copies as necessary for review) of such Final Working Drawings. Such Final Working Drawings shall be approved by Landlord, which approval shall not be unreasonably withheld, conditioned or delayed; provided, however, without limitation as to other reasonable grounds for withholding consent, it shall be deemed reasonable for Landlord to withhold its consent to any proposed Tenant Improvements or aspect of the Final Working Drawings in the event the same causes a Design Problem. Landlord shall advise Tenant within ten (10) business days after Landlord’s receipt of the Final Working Drawings for the Premises if the same is unsatisfactory or incomplete in any respect. If Tenant is so advised, Tenant shall immediately revise the Final Working Drawings in accordance with such review and any disapproval of Landlord in connection therewith. If Landlord fails to notify Tenant of Landlord’s approval or disapproval of any such Final Working Drawings within such ten (10) business day period, Tenant shall have the right to provide Landlord with a second written request for approval (a “Working Drawing Second Request”) that specifically identifies the Final Working Drawings and contains the following statement in bold and capital letters: “THIS IS A SECOND REQUEST FOR APPROVAL PURSUANT TO THE PROVISIONS OF SECTION 3.3 OF THE WORK LETTER ATTACHED TO THE LEASE. IF LANDLORD FAILS TO RESPOND WITHIN FIVE (5) BUSINESS DAYS AFTER RECEIPT OF THIS NOTICE, THEN LANDLORD SHALL BE DEEMED TO HAVE APPROVED THE FINAL WORKING DRAWINGS.” If Landlord fails to respond to such Working Drawing Second Request within five (5) business days after receipt by Landlord, the Final Working Drawings in question shall be deemed approved by Landlord. Subject to Landlord’s obligation to perform the Code Work, if the Final Working Drawings or any amendment thereof or supplement thereto shall require alterations in the Base Building (as contrasted with the Tenant Improvements), and if Landlord in its sole and exclusive discretion agrees to any such alterations, and notifies Tenant of the need and cost for such alterations, then Tenant may elect to either: (i) value engineer the Final Working Drawings so as to reduce or eliminate such cost, (ii) pay the cost of such required changes in advance upon receipt of notice thereof, and Tenant shall pay all direct architectural and/or engineering fees in connection with such Base Building changes, plus three percent (3%) of such direct costs for Landlord’s servicing and overhead.

 

   EXHIBIT B   
   6   


3.4 Approved Working Drawings. The Final Working Drawings shall be approved by Landlord (the “Approved Working Drawings”) prior to the commencement of construction of the Premises by Tenant. After approval (or deemed approval) by Landlord of the Final Working Drawings, Tenant may submit the same to the appropriate municipal authorities for all applicable building permits. Tenant hereby agrees that neither Landlord nor Landlord’s consultants shall be responsible for obtaining any building permit or certificate of occupancy for the Premises and that obtaining the same shall be Tenant’s responsibility; provided, however, that Landlord shall cooperate with Tenant in executing permit applications and performing other ministerial acts reasonably necessary to enable Tenant to obtain any such permit or certificate of occupancy. No changes, modifications or alterations in the Approved Working Drawings may be made without the prior written consent of Landlord, which consent may not be unreasonably withheld.

3.5 Tenant’s Plans. Landlord acknowledges and agrees that any architectural plans, layouts, and drawings (individually and collectively, “Lyft Drawings”) may be used by Landlord solely in connection with and for the build-out of the Premises and future reference or use as may be required in the normal course of owning and operating a commercial office building, and for no other purpose. Nothing in this Lease shall be construed as granting any rights under any copyright or other intellectual property right of any nature of Tenant in and to the Lyft Drawings, and Landlord acknowledges that Landlord has no ownership rights to the Lyft Drawings.

3.6 Change Orders. In the event Tenant desires to make any material changes to the Approved Working Drawings, Tenant shall deliver written notice (the “Drawing Change Notice”) of the same to Landlord (which Landlord may require to be on a standard AIA Change Order form), setting forth in detail the proposed changes (the “Tenant Change”) Tenant desires to make to the Approved Working Drawings. Within three (3) business days following receipt of a Drawing Change Notice, Landlord shall deliver written notice to Tenant of either (i) Landlord’s approval of the proposed Tenant Change, or (ii) its disapproval of the proposed Tenant Change (not to be unreasonably withheld, conditioned or delayed, in accordance with Landlord’s rights under Section 3.3 of this Tenant Work Letter) specifying in reasonably sufficient detail the reasons for Landlord’s disapproval. If Landlord fails to notify Tenant of Landlord’s approval or disapproval of any such Tenant Change within such three (3) business day period, Tenant shall have the right to provide Landlord with a second written request for approval (a “Tenant Change Second Request”) that specifically identifies the Tenant Change and contains the following statement in bold and capital letters: “THIS IS A SECOND REQUEST FOR APPROVAL PURSUANT TO THE PROVISIONS OF SECTION 3.6 OF THE WORK LETTER ATTACHED TO THE LEASE. IF LANDLORD FAILS TO RESPOND WITHIN FIVE (5) BUSINESS DAYS AFTER RECEIPT OF THIS NOTICE, THEN LANDLORD SHALL BE DEEMED TO HAVE APPROVED THE TENANT CHANGE.” If Landlord fails to respond to such Tenant Change Second Request within five (5) business days after receipt by Landlord, the Tenant change in question shall be deemed approved by Landlord. Tenant shall pay all additional costs and fees, if any, attributable to such Tenant Change, subject to application of the Tenant Improvement Allowance.

SECTION 4

CONSTRUCTION OF THE TENANT IMPROVEMENTS

4.1 Tenant’s Selection of Contractors.

4.1.1 The Contractor. A general contractor shall be retained by Tenant to construct the Tenant Improvements. Such general contractor (“Contractor”) shall be selected by Tenant and reasonably approved by Landlord.

4.1.2 Tenant’s Agents. All subcontractors, laborers, materialmen, and suppliers used by Tenant (such subcontractors, laborers, materialmen, and suppliers, and the Contractor to be known collectively as “Tenant’s Agents”) must be approved in writing by Landlord, which approval shall not be unreasonably withheld or delayed. If Landlord does not approve any of Tenant’s proposed subcontractors, laborers, materialmen or suppliers, Tenant shall submit other proposed subcontractors, laborers, materialmen or suppliers for Landlord’s written approval. All of Tenant’s Agents retained directly by Tenant shall all be union labor in compliance with the then existing master labor agreements.

 

   EXHIBIT B   
   7   


4.2 Construction of Tenant Improvements by Tenant’s Agents.

4.2.1 Construction Contract; Cost Budget. Tenant shall engage the Contractor under a contract in a form reasonably approved by Landlord (collectively, the “Contract”). Landlord’s failure to respond to Tenant’s request for approval of the Contract within five (5) business days shall constitute Landlord’s deemed approval of the Contract. Prior to the commencement of the construction of the Tenant Improvements, Tenant shall provide a copy of the Contract to Landlord for its records. In addition, prior to the commencement of the construction of the Tenant Improvements, and after Tenant has accepted all bids for the Tenant Improvements, Tenant shall provide Landlord with a detailed breakdown, by trade, of the final costs to be incurred or which have been incurred, as set forth more particularly in Sections 2.2.1.1 through 2.2.1.9, above, in connection with the design and construction of the Tenant Improvements to be performed by or at the direction of Tenant or the Contractor, which costs form a basis for the amount of the Contract (the “Final Costs”). Prior to the commencement of construction of the Tenant Improvements, Tenant shall supply Landlord with cash in an amount (the “Over-Allowance Amount”) equal to the difference between the amount of the Final Costs and the amount of the Tenant Improvement Allowance (less any portion thereof already disbursed by Landlord, or in the process of being disbursed by Landlord, on or before the commencement of construction of the Tenant Improvements). The Over-Allowance Amount shall be disbursed by Landlord on a pro-rata basis along with any of the then remaining portion of the Tenant Improvement Allowance, and such disbursement shall be pursuant to the same procedure as the Tenant Improvement Allowance. In the event that, after the Final Costs have been delivered by Tenant to Landlord, the costs relating to the design and construction of the Tenant Improvements shall change, any additional costs necessary to such design and construction in excess of the Final Costs, shall be paid by Tenant to Landlord immediately as an addition to the Over-Allowance Amount or at Landlord’s option, Tenant shall make payments for such additional costs out of its own funds, but Tenant shall continue to provide Landlord with the documents described in Sections 2.2.2.1(i), (ii), (iii) and (iv) of this Tenant Work Letter, above, for Landlord’s approval, prior to Tenant paying such costs.

4.2.2 Tenant’s Agents.

4.2.2.1 Landlord’s General Conditions for Tenant’s Agents and Improvement Work. Tenant’s and Tenant’s Agent’s construction of the Tenant Improvements shall comply with the following: (i) the Tenant Improvements shall be constructed in strict accordance with the Approved Working Drawings; (ii) Tenant’s Agents shall submit schedules of all work relating to the Tenant Improvements to Contractor and Contractor shall, within five (5) business days of receipt thereof, inform Tenant’s Agents of any changes which are necessary thereto, and Tenant’s Agents shall adhere to such corrected schedule; and (iii) Tenant shall abide by all rules made by Landlord’s Building manager with respect to the use of freight, loading dock and service elevators, storage of materials, coordination of work with the contractors of other tenants, and any other matter in connection with this Tenant Work Letter, including, without limitation, the construction of the Tenant Improvements. Tenant shall pay a logistical coordination fee (the “Coordination Fee”) to Landlord in an amount equal to the product of (A) one and one-half percent (1.5%), and (B) the total amount of the hard costs of the Tenant Improvements, which Coordination Fee shall be for services relating to the coordination of the construction of the Tenant Improvements.

4.2.2.2 Indemnity. Tenant’s indemnity of Landlord as set forth in this Lease shall also apply with respect to any and all costs, losses, damages, injuries and liabilities related in any way to any act or omission of Tenant or Tenant’s Agents, or anyone directly or indirectly employed by any of them, or in connection with Tenant’s non-payment of any amount arising out of the Tenant Improvements and/or Tenant’s disapproval of all or any portion of any request for payment. Such indemnity by Tenant, as set forth in this Lease, shall also apply with respect to any and all costs, losses, damages, injuries and liabilities related in any way to Landlord’s performance of any ministerial acts reasonably necessary (i) to permit Tenant to complete the Tenant Improvements, and (ii) to enable Tenant to obtain any building permit or certificate of occupancy for the Premises.

 

   EXHIBIT B   
   8   


4.2.2.3 Requirements of Tenant’s Agents. Each of Tenant’s Agents shall guarantee to Tenant and for the benefit of Landlord that the portion of the Tenant Improvements for which it is responsible shall be free from any defects in workmanship and materials for a period of not less than one (1) year from the date of completion thereof. Each of Tenant’s Agents shall be responsible for the replacement or repair, without additional charge, of all work done or furnished in accordance with its contract that shall become defective within one (1) year after the later to occur of (i) completion of the work performed by such contractor or subcontractors and (ii) the Lease Commencement Date (or the Must-Take Premises Lease Commencement Date, as applicable). The correction of such work shall include, without additional charge, all additional expenses and damages incurred in connection with such removal or replacement of all or any part of the Tenant Improvements, and/or the Building and/or common areas that may be damaged or disturbed thereby. All such warranties or guarantees as to materials or workmanship of or with respect to the Tenant Improvements shall be contained in the Contract or subcontract and shall be written such that such guarantees or warranties shall inure to the benefit of both Landlord and Tenant, as their respective interests may appear, and can be directly enforced by either. Tenant covenants to give to Landlord any assignment or other assurances which may be necessary to effect such right of direct enforcement.

4.2.2.4 Insurance Requirements.

4.2.2.4.1 General Coverages. All of Tenant’s Agents shall carry worker’s compensation insurance covering all of their respective employees, and shall also carry public liability insurance, including property damage, all with limits, in form and with companies as are required to be carried by Tenant as set forth in this Lease.

4.2.2.4.2 Special Coverages. Tenant shall cause its general contractor to carry “Builder’s All Risk” insurance in an amount approved by Landlord covering the construction of the Tenant Improvements, and such other insurance as Landlord may require, it being understood and agreed that the Tenant Improvements shall be insured by Tenant pursuant to this Lease immediately upon completion thereof. Such insurance shall be in amounts and shall include such extended coverage endorsements as may be reasonably required by Landlord including, but not limited to, the requirement that all of Tenant’s Agents shall carry excess liability and Products and Completed Operation Coverage insurance, each in amounts not less than $5,000,000 per incident, $5,000,000 in aggregate, and in form and with companies as are required to be carried by Tenant as set forth in this Lease.

4.2.2.4.3 General Terms. Certificates for all insurance carried pursuant to this Section 4.2.2.4 shall be delivered to Landlord before the commencement of construction of the Tenant Improvements and before the Contractor’s equipment is moved onto the site. Tenant will give Landlord thirty (30) days prior written notice of any cancellation or lapse of the effective date or any reduction in the amounts of such insurance. In the event that the Tenant Improvements are damaged by any cause during the course of the construction thereof, Tenant shall immediately repair the same at Tenant’s sole cost and expense. Tenant’s Agents shall maintain all of the foregoing insurance coverage in force until the Tenant Improvements are fully completed and accepted by Landlord, except for any Products and Completed Operation Coverage insurance required by Landlord, which is to be maintained for ten (10) years following completion of the work and acceptance by Landlord and Tenant. All policies carried under this Section 4.2.2.4 shall insure Landlord and Tenant, as their interests may appear, as well as Contractor and Tenant’s Agents. All insurance, except Workers’ Compensation, maintained by Tenant’s Agents shall preclude subrogation claims by the insurer against anyone insured thereunder. Such insurance shall provide that it is primary insurance as respects the owner and that any other insurance maintained by owner is excess and noncontributing with the insurance required hereunder. The requirements for the foregoing insurance shall not derogate from the provisions for indemnification of Landlord by Tenant under Section 4.2.2.2 of this Tenant Work Letter. Landlord may, in its discretion, require Tenant to obtain a lien and completion bond or some alternate form of security satisfactory to Landlord in an amount sufficient to ensure the lien-free completion of the Tenant Improvements and naming Landlord as a co-obligee.

4.2.3 Governmental Compliance. The Tenant Improvements shall comply in all respects with the following: (i) the Code and other state, federal, city or quasi-governmental laws, codes, ordinances and regulations (specifically including, without limitation, any OSHA requirements) as each may apply according to the rulings of the controlling public official, agent

 

   EXHIBIT B   
   9   


or other person; (ii) applicable standards of the American Insurance Association (formerly, the National Board of Fire Underwriters) and the National Electrical Code; and (iii) building material manufacturer’s specifications. In the event any of the Tenant Improvements require or give rise to governmentally required changes to the Base Building (specifically including, without limitation, the installation of any venting or other air-removal/circulation system), then Landlord shall, at Tenant’s expense, make such changes to the Base Building.

4.2.4 Inspection by Landlord. Landlord shall have the right to inspect the Tenant Improvements at all times, provided however, that Landlord’s failure to inspect the Tenant Improvements shall in no event constitute a waiver of any of Landlord’s rights hereunder nor shall Landlord’s inspection of the Tenant Improvements constitute Landlord’s approval of the same. Should Landlord disapprove any portion of the Tenant Improvements, Landlord shall notify Tenant in writing of such disapproval and shall specify the items disapproved. Any defects or deviations in, and/or disapproval by Landlord of, the Tenant Improvements shall be rectified by Tenant at no expense to Landlord, provided however, that in the event Landlord determines that a defect or deviation exists or disapproves of any matter in connection with any portion of the Tenant Improvements and such defect, deviation or matter might adversely affect the mechanical, electrical, plumbing, heating, ventilating and air conditioning or life-safety systems of the Building, the structure or exterior appearance of the Building or any other tenant’s use of such other tenant’s leased premises, Landlord may, upon three (3) business days prior written notice to take such action as Landlord reasonably deems necessary, at Tenant’s expense and without incurring any liability on Landlord’s part, to correct any such defect, deviation and/or matter, including, without limitation, causing the cessation of performance of the construction of the Tenant Improvements until such time as the defect, deviation and/or matter is corrected to Landlord’s satisfaction.

4.2.5 Meetings. Within thirty (30) days following the execution of this Lease, or as soon as practical thereafter, Tenant shall hold weekly meetings at a reasonable time, with the Architect and the Contractor regarding the progress of the preparation of Construction Drawings and the construction of the Tenant Improvements, which meetings shall be held at a location reasonably acceptable to Landlord, and Landlord and/or its agents shall receive prior notice of, and shall have the right to attend, all such meetings, and, upon Landlord’s request, certain of Tenant’s Agents shall attend such meetings. In addition, minutes shall be taken at all such meetings, a copy of which minutes shall be promptly delivered to Landlord. Following commencement of construction of the Tenant Improvements, one such meeting each month shall include the review of Contractor’s current request for payment.

4.3 Notice of Completion; Copy of Record Set of Plans. Within ten (10) business days after completion of construction of the Tenant Improvements, Tenant shall cause a Notice of Completion to be recorded in the office of the Recorder of the county in which the Building is located in accordance with Section 8182 of the Civil Code of the State of California or any successor statute, and shall furnish a copy thereof to Landlord upon such recordation. If Tenant fails to do so, Landlord may execute and file the same as Tenant’s agent for such purpose, at Tenant’s sole cost and expense. At the conclusion of construction, (i) Tenant shall cause the Architect and Contractor (A) to update the Approved Working Drawings as necessary to reflect all changes made to the Approved Working Drawings during the course of construction, (B) to certify to the best of their knowledge that the “record-set” of as-built drawings are true and correct, which certification shall survive the expiration or termination of this Lease, and (C) to deliver to Landlord two (2) electronic CAD’s and two (2) full-size sets of copies of such record set of drawings within ninety (90) days following issuance of a certificate of occupancy for the Premises, and (ii) Tenant shall deliver to Landlord a copy of all warranties, guaranties, and operating manuals and information relating to the improvements, equipment, and systems in the Premises.

SECTION 5

MISCELLANEOUS

5.1 Tenant’s Representative. Tenant has designated Nancy Losey as its sole representative with respect to the matters set forth in this Tenant Work Letter, who shall have full authority and responsibility to act on behalf of the Tenant as required in this Tenant Work Letter.

 

   EXHIBIT B   
   10   


5.2 Landlord’s Representative. Landlord has designated Mr. Garth Phillips as its sole representative with respect to the matters set forth in this Tenant Work Letter, who, until further notice to Tenant, shall have full authority and responsibility to act on behalf of the Landlord as required in this Tenant Work Letter.

5.3 Time of the Essence in This Tenant Work Letter. Unless otherwise indicated, all references herein to a “number of days” shall mean and refer to calendar days. If any item requiring approval is timely disapproved by Landlord, the procedure for preparation of the document and approval thereof shall be repeated until the document is approved by Landlord.

5.4 Tenant’s Lease Default. Notwithstanding any provision to the contrary contained in the Lease or this Tenant Work Letter, if any monetary or material non-monetary Default by Tenant under the Lease or default under this Tenant Work Letter (including, without limitation, any failure by Tenant to fund any portion of the Over-Allowance Amount) occurs at any time on or before the substantial completion of the Tenant Improvements, then (i) in addition to all other rights and remedies granted to Landlord pursuant to the Lease, Landlord shall have the right to withhold payment of all or any portion of the Tenant Improvement Allowance and/or Landlord may, without any liability whatsoever, cause the cessation of construction of the Tenant Improvements (in which case, Tenant shall be responsible for any delay in the substantial completion of the Tenant Improvements and any costs occasioned thereby), and (ii) all other obligations of Landlord under the terms of the Lease and this Tenant Work Letter shall be forgiven until such time as such default is cured pursuant to the terms of the Lease.

 

   EXHIBIT B   
   11   


EXHIBIT C

CHINA BASIN

NOTICE OF LEASE TERM DATES

This Exhibit C is referenced in Article 2 of that certain Office Lease dated as of April 8, 2016, by and between SPF CHINA BASIN HOLDINGS, LLC, a Delaware limited liability company, and LYFT, INC., a Delaware corporation.

To: _______________________

                                                             

                                                             

                                                             

 

  Re:

Office Lease dated April 8, 2016 between                                     , a                                          (“Landlord”), and Lyft, Inc., a Delaware corporation (“Tenant”) concerning Suite              on floor(s)                          of the office building located at                                                          , San Francisco, California.

Gentlemen:

In accordance with the Office Lease (the “Lease”), we wish to advise you and/or confirm as follows:

 

  1.

The Lease Term shall commence on or has commenced on                                      for a term of                                      ending on                                    .

 

  2.

Rent commenced to accrue on                                     , in the amount of                                     .

 

  3.

If the Lease Commencement Date is other than the first day of the month, the first billing will contain a pro rata adjustment. Each billing thereafter, with the exception of the final billing, shall be for the full amount of the monthly installment as provided for in the Lease.

 

  4.

Your rent checks should be made payable to                                      at                                     .

 

  5.

The number of rentable/usable square feet of the Premises is approximately                         square feet.

 

  6.

Tenant’s Share as adjusted based upon the approximate number of rentable/usable square feet of the Premises is             %.

 

   EXHIBIT C   
   1   


This Commencement Letter shall be deemed accepted by Tenant if not executed and returned to Landlord by Tenant within thirty (30) days following the date that Landlord delivers this Commencement Letter to Tenant for execution.

 

“Landlord”:

 

 

 

,

a

 

                          

 

By:

 

                 

 
 

Its:

 

 

 

Agreed to and Accepted

as of ____________, 20__.

“Tenant”:

 

 

a

 

 

By:

   

 

 

Its:

 

 

 

   EXHIBIT C   
   2   


EXHIBIT D

CHINA BASIN

RULES AND REGULATIONS

This Exhibit D is referenced in Section 5.2 of that certain Office Lease dated as of April 8, 2016, by and between SPF CHINA BASIN HOLDINGS, LLC, a Delaware limited liability company, and LYFT, INC., a Delaware corporation.

Tenant shall faithfully observe and comply with the following Rules and Regulations. Landlord shall not be responsible to Tenant for the nonperformance of any of said Rules and Regulations by or otherwise with respect to the acts or omissions of any other tenants or occupants of the Project. In the event of any conflict between the Rules and Regulations and the other provisions of this Lease, the latter shall control.

1. Tenant shall not alter any lock or install any new or additional locks or bolts on any doors or windows of the Premises without obtaining Landlord’s prior written consent. Tenant shall bear the cost of any lock changes or repairs required by Tenant. Two keys will be furnished by Landlord for the Premises, and any additional keys required by Tenant must be obtained from Landlord at a reasonable cost to be established by Landlord. Upon the termination of this Lease, Tenant shall restore to Landlord all keys of stores, offices, and toilet rooms, either furnished to, or otherwise procured by, Tenant and in the event of the loss of keys so furnished, Tenant shall pay to Landlord the cost of replacing same or of changing the lock or locks opened by such lost key if Landlord shall deem it necessary to make such changes.

2. All doors opening to public corridors shall be kept closed at all times except for normal ingress and egress to the Premises.

3. Landlord reserves the right to close and keep locked all entrance and exit doors of the Building during such hours as are customary for comparable buildings in the vicinity of the Building. Tenant, its employees and agents must be sure that the doors to the Building are securely closed and locked when leaving the Premises if it is after the normal hours of business for the Building. Any tenant, its employees, agents or any other persons entering or leaving the Building at any time when it is so locked, or any time when it is considered to be after normal business hours for the Building, may be required to sign the Building register. Access to the Building may be refused unless the person seeking access has proper identification or has a previously arranged pass for access to the Building. Landlord will furnish passes to persons for whom Tenant requests same in writing. Tenant shall be responsible for all persons for whom Tenant requests passes and shall be liable to Landlord for all acts of such persons. The Landlord and his agents shall in no case be liable for damages for any error with regard to the admission to or exclusion from the Building of any person. In case of invasion, mob, riot, public excitement, or other commotion, Landlord reserves the right to prevent access to the Building or the Project during the continuance thereof by any means it deems appropriate for the safety and protection of life and property.

4. No furniture, freight or equipment of any kind shall be brought into the Building without prior notice to Landlord. All moving activity into or out of the Building shall be performed by a professional third party moving company (the “Moving Company”) reasonably acceptable to Landlord. The moving activity also shall be scheduled with Landlord and performed only at such time and in such manner as Landlord designates. Landlord shall have the right to prescribe the weight, size and position of all safes and other heavy property brought into the Building and also the times and manner of moving the same in and out of the Building. Safes and other heavy objects shall, if considered necessary by Landlord, stand on supports of such thickness as is necessary to properly distribute the weight. Landlord will not be responsible for loss of or damage to any such safe or property in any case. Any damage to any part of the Building, its contents, occupants or visitors by moving or maintaining any such safe or other property shall be the sole responsibility and expense of Tenant.

5. No furniture, packages, supplies, equipment or merchandise will be received in the Building or carried up or down in the elevators other than by the Moving Company, and except between such hours, in such specific elevator as shall be designated by Landlord.

 

   EXHIBIT D   
   1   


6. The requirements of Tenant will be attended to only upon application at the management office for the Project or at such office location designated by Landlord. Employees of Landlord shall not perform any work or do anything outside their regular duties unless under special instructions from Landlord.

7. No sign, advertisement, notice or handbill shall be exhibited, distributed, painted or affixed by Tenant on any part of the Premises or the Building without the prior written consent of the Landlord. Tenant shall not disturb, solicit, peddle, or canvass any occupant of the Project and shall cooperate with Landlord and its agents of Landlord to prevent same.

8. The toilet rooms, urinals, wash bowls and other apparatus shall not be used for any purpose other than that for which they were constructed, and no foreign substance of any kind whatsoever shall be thrown therein. The expense of any breakage, stoppage or damage resulting from the violation of this rule shall be borne by the tenant who, or whose servants, employees, agents, visitors or licensees shall have caused same.

9. Tenant shall not overload the floor of the Premises, nor mark, drive nails or screws, or drill into the partitions, woodwork or drywall or in any way deface the Premises or any part thereof without Landlord’s prior written consent. Tenant shall not purchase spring water, ice, towel, linen, maintenance or other like services from any person or persons not approved by Landlord.

10. Except for vending machines intended for the sole use of Tenant’s employees and invitees, no vending machine or machines other than fractional horsepower office machines shall be installed, maintained or operated upon the Premises without the written consent of Landlord.

11. Tenant shall not use or keep in or on the Premises, the Building, or the Project any kerosene, gasoline, explosive material, corrosive material, material capable of emitting toxic fumes, or other inflammable or combustible fluid chemical, substitute or material. Tenant shall provide material safety data sheets for any hazardous material used or kept on the Premises.

12. Tenant shall not without the prior written consent of Landlord use any method of heating or air conditioning other than that supplied by Landlord.

13. Tenant shall not use, keep or permit to be used or kept, any foul or noxious gas or substance in or on the Premises, or permit or allow the Premises to be occupied or used in a manner offensive or objectionable to Landlord or other occupants of the Project by reason of noise, odors, or vibrations, or interfere with other tenants or those having business therein, whether by the use of any musical instrument, radio, phonograph, or in any other way. Tenant shall not throw anything out of doors, windows or skylights or down passageways.

14. Tenant shall not bring into or keep within the Project, the Building or the Premises any animals, birds, aquariums, or, except in areas designated by Landlord, bicycles or other vehicles.

15. Intentionally deleted.

16. The Premises shall not be used for manufacturing or for the storage of merchandise except as such storage may be incidental to the use of the Premises provided for in the Summary. Tenant shall not occupy or permit any portion of the Premises to be occupied as an office for a messenger-type operation or dispatch office, public stenographer or typist, or for the manufacture or sale of liquor, narcotics, or tobacco in any form, or as a medical office, or as a barber or manicure shop, or as an employment bureau without the express prior written consent of Landlord. Tenant shall not engage or pay any employees on the Premises except those actually working for such tenant on the Premises nor advertise for laborers giving an address at the Premises.

17. Landlord reserves the right to exclude or expel from the Project any person who, in the judgment of Landlord, is intoxicated or under the influence of liquor or drugs, or who shall in any manner do any act in violation of any of these Rules and Regulations.

18. Tenant, its employees and agents shall not loiter in or on the entrances, corridors, sidewalks, lobbies, courts, halls, stairways, elevators, vestibules or any Common Areas for the purpose of smoking tobacco products or for any other purpose, nor in any way obstruct such areas, and shall use them only as a means of ingress and egress for the Premises.

 

   EXHIBIT D   
   2   


19. Tenant shall not waste electricity, water or air conditioning and agrees to cooperate fully with Landlord to ensure the most effective operation of the Building’s heating and air conditioning system, and shall refrain from attempting to adjust any controls. Tenant shall participate in recycling programs undertaken by Landlord

20. Tenant shall store all its trash and garbage within the interior of the Premises. No material shall be placed in the trash boxes or receptacles if such material is of such nature that it may not be disposed of in the ordinary and customary manner of removing and disposing of trash and garbage in San Francisco, California without violation of any law or ordinance governing such disposal. Tenant shall also cooperate with Landlord’s efforts to comply with the terms of the City of San Francisco Mandatory Recycling and Composting Ordinance, by separating its trash and garbage into the applicable recycling and composting receptacles provided by Landlord. All trash, garbage and refuse disposal shall be made only through entry-ways and elevators provided for such purposes at such times as Landlord shall designate. If the Premises is or becomes infested with vermin as a result of the use or any misuse or neglect of the Premises by Tenant, its agents, servants, employees, contractors, visitors or licensees, Tenant shall forthwith, at Tenant’s expense, cause the Premises to be exterminated from time to time to the satisfaction of Landlord and shall employ such licensed exterminators as shall be approved in writing in advance by Landlord.

21. Tenant shall comply with all safety, fire protection and evacuation procedures and regulations established by Landlord or any governmental agency.

22. Any persons employed by Tenant to do janitorial work shall be subject to the prior written approval of Landlord, and while in the Building and outside of the Premises, shall be subject to and under the control and direction of the Building manager (but not as an agent or servant of such manager or of Landlord), and Tenant shall be responsible for all acts of such persons.

23. No awnings or other projection shall be attached to the outside walls of the Building without the prior written consent of Landlord, and no curtains, blinds, shades or screens shall be attached to or hung in, or used in connection with, any window or door of the Premises other than Landlord standard drapes. All electrical ceiling fixtures hung in the Premises or spaces along the perimeter of the Building must be fluorescent and/or of a quality, type, design and a warm white bulb color approved in advance in writing by Landlord. Neither the interior nor exterior of any windows shall be coated or otherwise sunscreened without the prior written consent of Landlord. Tenant shall be responsible for any damage to the window film on the exterior windows of the Premises and shall promptly repair any such damage at Tenant’s sole cost and expense. Tenant shall keep its window coverings closed during any period of the day when the sun is shining directly on the windows of the Premises. Prior to leaving the Premises for the day, Tenant shall draw or lower window coverings and extinguish all lights. Tenant shall abide by Landlord’s regulations concerning the opening and closing of window coverings which are attached to the windows in the Premises, if any, which have a view of any interior portion of the Building or Building Common Areas.

24. The sashes, sash doors, skylights, windows, and doors that reflect or admit light and air into the halls, passageways or other public places in the Building shall not be covered or obstructed by Tenant, nor shall any bottles, parcels or other articles be placed on the windowsills.

25. Tenant must comply with requests by the Landlord concerning the informing of their employees of items of importance to the Landlord.

26. Tenant must comply with all city and state “NO-SMOKING” ordinances. If Tenant is required under any ordinance to adopt a written smoking policy, a copy of said policy shall be on file in the office of the Building.

27. Landlord shall provide security measures in accordance with Section 6.1.7 of this Lease. Notwithstanding the foregoing, Tenant hereby assumes all responsibility for the protection of Tenant and its agents, employees, contractors, invitees and guests, and the property thereof, from acts of third parties, including keeping doors locked and other means of entry to the

 

   EXHIBIT D   
   3   


Premises closed. Tenant further assumes the risk that any safety and security devices, services and programs which Landlord elects, in its sole discretion, to provide may not be effective, or may malfunction or be circumvented by an unauthorized third party, and Tenant shall, in addition to its other insurance obligations under this Lease, obtain its own insurance coverage to the extent Tenant desires protection against losses related to such occurrences. Tenant shall cooperate in any reasonable safety or security program developed by Landlord or required by law.

28. All office equipment of any electrical or mechanical nature shall be placed by Tenant in the Premises in settings approved by Landlord, to absorb or prevent any vibration, noise and annoyance.

29. Tenant shall not use in any space or in the public halls of the Building, any hand trucks except those equipped with rubber tires and rubber side guards.

30. No auction, liquidation, fire sale, going-out-of-business or bankruptcy sale shall be conducted in the Premises without the prior written consent of Landlord.

31. No tenant shall use or permit the use of any portion of the Premises for living quarters, sleeping apartments or lodging rooms.

32. Tenant shall not purchase spring water, towels, janitorial or maintenance or other similar services from any company or persons not approved by Landlord. Landlord shall approve a sufficient number of sources of such services to provide Tenant with a reasonable selection, but only in such instances and to such extent as Landlord in its judgment shall consider consistent with the security and proper operation of the Building.

33. Tenant shall install and maintain, at Tenant’s sole cost and expense, an adequate, visibly marked and properly operational fire extinguisher next to any duplicating or photocopying machines or similar heat producing equipment, which may or may not contain combustible material, in the Premises.

Landlord reserves the right at any time to change or rescind any one or more of these Rules and Regulations, or to make such other and further reasonable Rules and Regulations as in Landlord’s judgment may from time to time be necessary for the management, safety, care and cleanliness of the Premises, Building, the Common Areas and the Project, and for the preservation of good order therein, as well as for the convenience of other occupants and tenants therein. Landlord may waive any one or more of these Rules and Regulations for the benefit of any particular tenants, but no such waiver by Landlord shall be construed as a waiver of such Rules and Regulations in favor of any other tenant, nor prevent Landlord from thereafter enforcing any such Rules or Regulations against any or all tenants of the Project. Tenant shall be deemed to have read these Rules and Regulations and to have agreed to abide by them as a condition of its occupancy of the Premises.

 

   EXHIBIT D   
   4   


EXHIBIT E

CHINA BASIN

FORM OF TENANT’S ESTOPPEL CERTIFICATE

This Exhibit E is referenced in Article 17 of that certain Office Lease dated as of April 8, 2016, by and between SPF CHINA BASIN HOLDINGS, LLC, a Delaware limited liability company, and LYFT, INC., a Delaware corporation.

The undersigned as Tenant under that certain Office Lease (the “Lease”) made and entered into as of April 8, 2016 by and between                              as Landlord, and the undersigned as Tenant, for Premises on the                              floor(s) of the office building located at                             , San Francisco, California                         , certifies as follows:

1. Attached hereto as Exhibit A is a true and correct copy of the Lease and all amendments and modifications thereto. The documents contained in Exhibit A represent the entire agreement between the parties as to the Premises and the project of which the Premises are a part.

2. The undersigned currently occupies the Premises described in the Lease, the Lease Term commenced on                     , and the Lease Term expires on                         , and the undersigned has no option to terminate or cancel the Lease or to purchase all or any part of the Premises, the Building and/or the Project.

3. Base Rent became payable on                         .

4. The Lease is in full force and effect and has not been modified, supplemented or amended in any way except as provided in Exhibit A.

5. Tenant has not transferred, assigned, or sublet any portion of the Premises nor entered into any license or concession agreements with respect thereto except as follows:

6. Tenant shall not modify the documents contained in Exhibit A without the prior written consent of Landlord’s mortgagee.

7. All monthly installments of Base Rent, all Additional Rent and all monthly installments of estimated Additional Rent have been paid when due through                         . The current monthly installment of Base Rent is $                                .

8. All conditions of the Lease to be performed by Landlord necessary to the enforceability of the Lease have been satisfied and Landlord is not in default thereunder. In addition, the undersigned has not delivered any notice to Landlord regarding a default by Landlord thereunder.

9. No rental has been paid more than thirty (30) days in advance and no security has been deposited with Landlord except as provided in the Lease.

10. As of the date hereof, there are no existing defenses or offsets, to the undersigned’s knowledge, claims or any basis for a claim, that the undersigned has against Landlord.

11. If Tenant is a corporation or partnership, each individual executing this Estoppel Certificate on behalf of Tenant hereby represents and warrants that Tenant is a duly formed and existing entity qualified to do business in California and that Tenant has full right and authority to execute and deliver this Estoppel Certificate and that each person signing on behalf of Tenant is authorized to do so.

12. There are no actions pending against the undersigned or any guarantor of the Lease under the bankruptcy or similar laws of the United States or any state.

 

   EXHIBIT E   
   1   


13. Other than in compliance with all applicable laws and incidental to the ordinary course of the use of the Premises, the undersigned has not used or stored any hazardous substances in the Premises.

14. To the undersigned’s knowledge, all tenant improvement work to be performed by Landlord under the Lease has been completed in accordance with the Lease and has been accepted by the undersigned and all reimbursements and allowances due to the undersigned under the Lease in connection with any tenant improvement work have been paid in full.

The undersigned acknowledges that this Estoppel Certificate may be delivered to Landlord or to a prospective mortgagee or prospective purchaser, and acknowledges that said prospective mortgagee or prospective purchaser will be relying upon the statements contained herein in making the loan or acquiring the property of which the Premises are a part and that receipt by it of this certificate is a condition of making such loan or acquiring such property.

Executed at ______________ on the ____ day of ___________, 20 .

 

“Tenant”:

     

 

 

,

a

 

                      

 

By:

 

                      

 
 

Its:

 

                 

 

By:

 

             

 
 

Its:

 

 

 

 

  

EXHIBIT E

  
   2   


EXHIBIT F

CHINA BASIN

MARKET RENT ANALYSIS

This Exhibit F is referenced in Section 2.2 of that certain Office Lease dated as of April 8, 2016, by and between SPF CHINA BASIN HOLDINGS, LLC, a Delaware limited liability company, and LYFT, INC., a Delaware corporation.

When determining Market Rent, the following rules and instructions shall be followed.

1. RELEVANT FACTORS. The Market Rent shall be derived from an analysis (as such derivation and analysis are set forth in this Exhibit F) of the Net Equivalent Lease Rates, of the Comparable Transactions. The “Market Rent”, as used in this Lease, shall be equal to the annual rent per rentable square foot as would be applicable on the commencement of the Option Term (or First Offer Term, as applicable) at which tenants, are, pursuant to transactions consummated within the twelve (12) month period immediately preceding the first day of the Option Term (or First Offer Term, as applicable) (provided that timing adjustments shall be made to reflect any perceived changes which will occur in the Market Rent following the date of any particular Comparable Transaction up to the date of the commencement of the Option Term (or First Offer Term, as applicable)) leasing non-sublease, non-encumbered, non-equity space comparable in location and quality to the Premises (or First Offer Space, as applicable) and consisting of, in connection with the Option Rent, between 50,000 rentable square feet and 120,000 rentable square feet, and in connection with the First Offer Rent, of a size comparable to the size of the First Offer Space, for a comparable term, in an arm’s-length transaction, which comparable space is located in the Comparable Buildings (transactions satisfying the foregoing criteria shall be known as the “Comparable Transactions”). The terms of the Comparable Transactions shall be calculated as a Net Equivalent Lease Rate pursuant to the terms of this Exhibit F and shall take into consideration only the following terms and concessions: (i) the rental rate and escalations for the Comparable Transactions, (ii) the amount of parking rent per parking permit paid in the Comparable Transactions, (iii) operating expense and tax escalation protection granted in such Comparable Transactions such as a base year or expense stop (although for each such Comparable Transaction the base rent shall be adjusted to a triple net base rent using reasonable estimates of operating expenses and taxes as determined by Landlord for each such Comparable Transaction); (iv) tenant improvements or allowances provided or to be provided for such comparable space, taking into account, the value of the existing improvements, if any, in the Premises (or First Offer Space, as applicable) and/or improvement allowances granted to Tenant, such value of existing improvements to be based upon the age, quality and layout of the improvements and the extent to which the same could be utilized by general office users (as contrasted to the Tenant), and (v) rental abatement concessions, if any, being granted such tenants in connection with such comparable space; provided, however, that no consideration shall be given to (1) the fact that Landlord is or is not required to pay a real estate brokerage commission in connection with the applicable term or the fact that the Comparable Transactions do or do not involve the payment of real estate brokerage commissions, and (2) any period of rental abatement, if any, granted to tenants in Comparable Transactions in connection with the design, permitting and construction of tenant improvements in such comparable spaces. The Market Rent shall include adjustment of the stated size of the Premises (or First Offer Space, as applicable), based upon the standards of measurement utilized in the Comparable Transactions.

2. TENANT SECURITY. The Market Rent shall additionally include a determination as to whether, and if so to what extent, Tenant must provide Landlord with financial security, such as a letter of credit or guaranty, for Tenant’s Rent obligations during the Option Term (or First Offer Term, as applicable). Such determination shall be made by reviewing the extent of financial security then generally being imposed in Comparable Transactions from tenants of comparable financial condition and credit history to the then existing financial condition and credit history of Tenant (with appropriate adjustments to account for differences in the then-existing financial condition of Tenant and such other tenants).

 

  

EXHIBIT F

  
   1   


3. TENANT IMPROVEMENT ALLOWANCE. If, in determining the Market Rent for an Option Term (or First Offer Term, as applicable), Tenant is entitled to a tenant improvement or comparable allowance for the improvement of the Premises (or First Offer Space, as applicable) (the “Option TI Allowance”), Landlord may, at Landlord’s sole option, elect to grant all or a portion of the Option TI Allowance in accordance with the following: (A) to grant some or all of the Option TI Allowance to Tenant in the form as described above (i.e., as an improvement allowance), and/or (B) to offset against the rental rate component of the Market Rent all or a portion of the Option TI Allowance (in which case such portion of the Option TI Allowance provided in the form of a rental offset shall not be granted to Tenant). To the extent Landlord elects not to grant the entire Option TI Allowance to Tenant as a tenant improvement allowance, the offset under item (B), above, shall equal the amount of the tenant improvement allowance not granted to Tenant as a tenant improvement allowance pursuant to the preceding sentence.

4. COMPARABLE BUILDINGS. For purposes of this Lease, the term “Comparable Buildings” shall mean the Project and other comparable class “A” commercial office properties in the South Beach/China Basin submarkets of San Francisco, California, with a similar quality of institutional ownership, tenant mix, quality of construction, tenant improvements and exterior appearance, and are of similar size, and offer similar services and amenities, as the Project (as of the date of this Lease, the parties acknowledge that Comparable Buildings would include, but shall not be limited to the following: 303 Second Street, 650 Townsend Street, 500 Terry Francois Boulevard and 370 Third Street).

5. METHODOLOGY FOR REVIEWING AND COMPARING THE COMPARABLE TRANSACTIONS. For purposes of this Section 5, the term “Comparable Transactions” shall include any proposed transactions with third parties for the First Offer Space (pursuant to Section 1.3 above). In order to analyze the Comparable Transactions based on the factors to be considered in calculating Market Rent, and given that the Comparable Transactions may vary in terms of length or term, rental rate, concessions, etc., the following steps shall be taken into consideration to “adjust” the objective data from each of the Comparable Transactions. By taking this approach, a “Net Equivalent Lease Rate” for each of the Comparable Transactions shall be determined using the following steps to adjust the Comparable Transactions, which will allow for an “apples to apples” comparison of the Comparable Transactions.

5.1 The contractual rent payments for each of the Comparable Transactions should be arrayed monthly or annually over the lease term. All Comparable Transactions should be adjusted to simulate a net rent structure, wherein the tenant is responsible for the payment of all property operating expenses and taxes in a manner consistent with this Lease. This results in the estimate of Net Equivalent Rent received by each landlord for each Comparable Transaction being expressed as a periodic net rent payment.

5.2 Any free rent or similar inducements received over time should be deducted in the time period in which they occur, resulting in the net cash flow arrayed over the lease term.

5.3 The resultant net cash flow from the lease should be then discounted (using an annual discount rate equal to 8.0%) to the lease commencement date, resulting in a net present value estimate.

5.4 From the net present value, up front inducements (improvements allowances and other concessions) should be deducted. These items should be deducted directly, on a “dollar for dollar” basis, without discounting since they are typically incurred at lease commencement, while rent (which is discounted) is a future receipt.

5.5 The net present value should then be amortized back over the lease term as a level monthly or annual net rent payment using the same annual discount rate of 8.0% used in the present value analysis. This calculation will result in a hypothetical level or even payment over the option period, termed the “Net Equivalent Lease Rate” (or constant equivalent in general financial terms).

6. USE OF NET EQUIVALENT LEASE RATES FOR COMPARABLE TRANSACTIONS. The Net Equivalent Lease Rates for the Comparable Transactions shall then be used to reconcile, in a manner usual and customary for a real estate appraisal process, to a conclusion of Market Rent which shall be stated as a Net Equivalent Lease Rate applicable to the Option Term or First Offer Term, as applicable.

 

  

EXHIBIT F

  
   2   


EXHIBIT G

FORM OF LETTER OF CREDIT

This Exhibit G is referenced in Section 31.1 of that certain Office Lease dated as of April 8, 2016, by and between CHINA BASIN/SAN FRANCISCO, LLC, a Delaware limited liability company, and LYFT, INC., a Delaware corporation.

 

FAX NO. [(___) ___-____]
SWIFT: [Insert No., if any]

  

[Insert Bank Name And Address]

  

DATE OF ISSUE:                        

BENEFICIARY:
[Insert Beneficiary Name And Address]

  

APPLICANT:
[Insert Applicant Name And Address]

  

LETTER OF CREDIT NO.                    

EXPIRATION DATE:
                AT OUR COUNTERS

  

AMOUNT AVAILABLE:
USD[Insert Dollar Amount]
(U.S. DOLLARS [Insert Dollar Amount])

LADIES AND GENTLEMEN:

WE HEREBY ESTABLISH OUR IRREVOCABLE STANDBY LETTER OF CREDIT NO.                     IN YOUR FAVOR FOR THE ACCOUNT OF [Insert Tenant’s Name], A [Insert Entity Type], UP TO THE AGGREGATE AMOUNT OF USD[Insert Dollar Amount] ([Insert Dollar Amount] U.S. DOLLARS) EFFECTIVE IMMEDIATELY AND EXPIRING ON (Expiration Date) WHICH WE UNDERSTAND COVERS certain Office Lease dated as of         , 2016 by and between CHINA BASIN/SAN FRANCISCO, LLC, a Delaware limited liability company, and LYFT, INC., a Delaware corporation.

FUNDS UNDER THIS LETTER OF CREDIT ARE AVAILABLE AT SIGHT WITH JPMORGAN CHASE BANK, N.A. UPON PRESENTATION OF THE FOLLOWING DOCUMENTS:

1. THE ORIGINAL OF THIS IRREVOCABLE STANDBY LETTER OF CREDIT AND AMENDMENT(S), IF ANY.

2. A DRAFT DRAWN ON JPMORGAN CHASE BANK, N.A., AT SIGHT MARKED ‘DRAWN UNDER JPMORGAN CHASE N.A. STANDBY LETTER OF CREDIT NO. XXXXXX’.

3. BENEFICIARY’S SIGNED AND DATED STATEMENT REFERENCING JPMORGAN CHASE BANK N.A., STANDBY LETTER OF CREDIT NO. XXXX INDICATING THE AMOUNT OF DEMAND/CLAIM AND SIGNED BY AN AUTHORIZED REPRESENTATIVE OF [Insert Landlord’s Name], A [Insert Entity Type] (“LANDLORD”) SIGNING AS SUCH AND STATING AS FOLLOWS:

“THE UNDERSIGNED HEREBY CERTIFIES THAT THE LANDLORD, EITHER (A) UNDER THE LEASE (DEFINED BELOW), OR (B) AS A RESULT OF THE TERMINATION OF SUCH LEASE, HAS THE RIGHT TO DRAW DOWN THE AMOUNT OF USD         IN ACCORDANCE WITH THE TERMS OF THAT CERTAIN OFFICE LEASE DATED [Insert Lease Date], AS AMENDED (COLLECTIVELY, THE “LEASE”), OR SUCH AMOUNT CONSTITUTES DAMAGES OWING BY THE TENANT UNDER SUCH LEASE TO BENEFICIARY RESULTING FROM THE BREACH OF SUCH LEASE BY THE TENANT THEREUNDER, AND SUCH AMOUNT REMAINS UNPAID AT THE TIME OF THIS DRAWING.”

 

  

EXHIBIT G

  
   1   


OR

“THE UNDERSIGNED HEREBY CERTIFIES THAT WE HAVE RECEIVED A WRITTEN NOTICE OF JPMORGAN CHASE BANK N.A.‘S ELECTION NOT TO EXTEND ITS STANDBY LETTER OF CREDIT NO.                     AND HAVE NOT RECEIVED A REPLACEMENT LETTER OF CREDIT WITHIN AT LEAST SIXTY (60) DAYS PRIOR TO THE PRESENT EXPIRATION DATE.”

OR

“THE UNDERSIGNED HEREBY CERTIFIES THAT BENEFICIARY IS ENTITLED TO DRAW DOWN THE FULL AMOUNT OF LETTER OF CREDIT NO.                     AS THE RESULT OF THE FILING OF A VOLUNTARY PETITION UNDER THE U.S. BANKRUPTCY CODE OR A STATE BANKRUPTCY CODE BY THE TENANT UNDER THAT CERTAIN OFFICE LEASE DATED [Insert Lease Date], AS AMENDED (COLLECTIVELY, THE “LEASE”), WHICH FILING HAS NOT BEEN DISMISSED AT THE TIME OF THIS DRAWING.”

OR

“THE UNDERSIGNED HEREBY CERTIFIES THAT BENEFICIARY IS ENTITLED TO DRAW DOWN THE FULL AMOUNT OF LETTER OF CREDIT NO.                     AS THE RESULT OF AN INVOLUNTARY PETITION HAVING BEEN FILED UNDER THE U.S. BANKRUPTCY CODE OR A STATE BANKRUPTCY CODE AGAINST THE TENANT UNDER THAT CERTAIN OFFICE LEASE DATED [Insert Lease Date], AS AMENDED (COLLECTIVELY, THE “LEASE”), WHICH FILING HAS NOT BEEN DISMISSED AT THE TIME OF THIS DRAWING.”

SPECIAL CONDITIONS:

PARTIAL DRAWINGS AND MULTIPLE PRESENTATIONS MAY BE MADE UNDER THIS STANDBY LETTER OF CREDIT, PROVIDED, HOWEVER, THAT EACH SUCH DEMAND THAT IS PAID BY US SHALL REDUCE THE AMOUNT AVAILABLE UNDER THIS STANDBY LETTER OF CREDIT.

ALL INFORMATION REQUIRED WHETHER INDICATED BY BLANKS, BRACKETS OR OTHERWISE, MUST BE COMPLETED AT THE TIME OF DRAWING. [Please Provide The Required Forms For Review, And Attach As Schedules To The Letter Of Credit.]

ALL SIGNATURES MUST BE MANUALLY EXECUTED IN ORIGINALS.

ALL BANKING CHARGES ARE FOR THE APPLICANT’S ACCOUNT.

IT IS A CONDITION OF THIS LETTER OF CREDIT THAT THE EXPIRATION DATE SHALL BE AUTOMATICALLY EXTENDED WITHOUT AMENDMENT FOR ONE (1) YEAR FROM THE EXPIRATION DATE HEREOF OR ANY FUTURE EXPIRATION DATE, UNLESS AT LEAST SIXTY (60) DAYS PRIOR TO THE EXPIRATION DATE WE SEND YOU NOTICE BY CERTIFIED MAIL OR HAND DELIVERED COURIER, AT THE ADDRESS STATED ABOVE, THAT WE ELECT NOT TO EXTEND THIS LETTER OF CREDIT FOR ANY SUCH ADDITIONAL PERIOD.

THIS NOTICE WILL BE SENT TO THE ADDRESS INDICATED ABOVE, UNLESS A CHANGE OF ADDRESS IS OTHERWISE NOTIFIED BY YOU TO US IN WRITING BY RECEIPTED MAIL OR COURIER. ANY NOTICE TO US WILL BE DEEMED EFFECTIVE ONLY UPON ACTUAL RECEIPT BY US AT OUR DESIGNATED OFFICE. IN NO EVENT, AND WITHOUT FURTHER NOTICE FROM OURSELVES, SHALL THE EXPIRATION DATE BE EXTENDED BEYOND A FINAL EXPIRATION DATE OF (Expiration Date).

 

   EXHIBIT G   
   2   


THIS LETTER OF CREDIT IS TRANSFERABLE, BUT ONLY IN ITS ENTIRETY, AND MAY BE SUCCESSIVELY TRANSFERRED. TRANSFER OF THIS LETTER OF CREDIT SHALL BE EFFECTED BY US UPON YOUR SUBMISSION OF THIS ORIGINAL LETTER OF CREDIT, INCLUDING ALL AMENDMENTS, IF ANY, ACCOMPANIED BY OUR TRANSFER REQUEST FORM DULY COMPLETED AND SIGNED, WITH THE SIGNATURE THEREON AUTHENTICATED BY YOUR BANK. IF YOU WISH TO TRANSFER THE LETTER OF CREDIT, PLEASE CONTACT US FOR THE FORM WHICH WE SHALL PROVIDE TO YOU UPON YOUR REQUEST. IN ANY EVENT, THIS LETTER OF CREDIT MAY NOT BE TRANSFERRED TO ANY PERSON OR ENTITY LISTED IN OR OTHERWISE SUBJECT TO, ANY SANCTION OR EMBARGO UNDER ANY APPLICABLE RESTRICTIONS.

ALL DRAFTS REQUIRED UNDER THIS STANDBY LETTER OF CREDIT MUST BE MARKED: ‘‘DRAWN UNDER JPMORGAN CHASE BANK N.A., STANDBY LETTER OF CREDIT NO.                 .”

IF A DRAW REQUEST IS PRESENTED IN COMPLIANCE WITH THE TERMS OF THIS LETTER OF CREDIT BY 1:00 P.M. PACIFIC STANDARD TIME ON ANY BUSINESS DAY, PAYMENT WILL BE MADE NOT LATER THAN 3:00 P.M. PACIFIC TIME ON THE FOLLOWING BUSINESS DAY AND IF A DRAW REQUEST IS PRESENTED TO US AFTER 1:00 P.M. PACIFIC STANDARD TIME ON ANY BUSINESS DAY, PAYMENT WILL BE MADE ON THE SECOND SUCCEEDING BUSINESS DAY NOT LATER THAN 1:00 P.M. PACIFIC STANDARD TIME.

AS USED IN THIS LETTER OF CREDIT, BUSINESS DAY MEANS ANY DAY OTHER THAN A SATURDAY, SUNDAY, NATIONAL OR STATE HOLIDAY OR OTHER DAY ON WHICH COMMERCIAL BANKS ARE AUTHORIZED OR REQUIRED TO CLOSE UNDER THE LAWS OF THE STATE OF CALIFORNIA AND A DAY ON WHICH PAYMENT CAN BE EFFECTED ON THE FEDWIRE SYSTEM.

IF THE EXPIRATION DATE FOR THIS LETTER OF CREDIT SHALL EVER FALL ON A DAY WHICH IS NOT A BUSINESS DAY THEN SUCH EXPIRATION DATE SHALL AUTOMATICALLY BE EXTENDED TO THE DATE WHICH IS THE NEXT BUSINESS DAY.

PRESENTATION OF A DRAWING UNDER THIS LETTER OF CREDIT MAY BE MADE ON OR PRIOR TO THE THEN CURRENT EXPIRATION DATE HEREOF BY HAND DELIVERY, COURIER SERVICE, OR OVERNIGHT MAIL.

DRAWINGS MAY ALSO BE PRESENTED BY TELECOPY (“FAX”) TO FAX NUMBER 213-346-9471, 312-233-2265 OR 312-233-2266 UNDER TELEPHONE PRE-ADVICE TO 213-621-8081 OR ALTERNATELY TO 1-800-634-1969; PROVIDED THAT SUCH FAX PRESENTATION IS RECEIVED ON OR BEFORE THE EXPIRY DATE ON THIS INSTRUMENT IN ACCORDANCE WITH THE TERMS AND CONDITIONS OF THIS LETTER OF CREDIT, IT BEING UNDERSTOOD THAT ANY SUCH FAX PRESENTATION SHALL BE CONSIDERED THE SOLE OPERATIVE INSTRUMENT OF DRAWING. IN THE EVENT OF PRESENTATION BY FAX, THE ORIGINAL DOCUMENTS SHOULD NOT ALSO BE PRESENTED.

WE HEREBY ENGAGE WITH YOU THAT ALL DOCUMENT(S) DRAWN UNDER AND IN COMPLIANCE WITH THE TERMS OF THIS STANDBY LETTER OF CREDIT WILL BE DULY HONORED IF DRAWN AND PRESENTED FOR PAYMENT AT OUR OFFICE LOCATED AT

IN THE EVENT THAT THE ORIGINAL OF THIS STANDBY LETTER OF CREDIT IS LOST, STOLEN, MUTILATED, OR OTHERWISE DESTROYED, WE HEREBY AGREE TO ISSUE A DUPLICATE ORIGINAL HEREOF UPON RECEIPT OF A WRITTEN INDEMNITY IN A FORM ACCEPTABLE TO US.

JPMORGAN CHASE BANK, N.A.

Global Trade

300 South Grand Avenue, 4th floor

Los Angeles, CA 90071

ATTN: STANDBY LC DEPT

ON OR BEFORE THE EXPIRATION DATE OF THIS CREDIT, (Expiration Date).

 

  

EXHIBIT G

  
   3   


EXCEPT SO FAR AS OTHERWISE EXPRESSLY STATED HEREIN, THIS STANDBY LETTER OF CREDIT IS SUBJECT TO THE “INTERNATIONAL STANDBY PRACTICES” (ISP 98) INTERNATIONAL CHAMBER OF COMMERCE (PUBLICATION NO. 590).

PLEASE DIRECT ALL CORRESPONDENCE AND ANY DRAWINGS REGARDING THIS STANDBY LETTER OF CREDIT TO OUR OFFICE AT 300 SOUTH GRAND AVENUE, 4TH FLOOR, LOS ANGELES, CA 90071 ATTN: STANDBY LETTER OF CREDIT DEPARTMENT/MS. AGNES MARTINEZ, VICE PRESIDENT, TEL NO.    (213) 621-8076 OR JAY FERNANDO, TEL NO. (213) 621-8081.

 

Very truly yours,

(Name of Issuing Bank)

By:

 

 

 

  

EXHIBIT G

  
   4   


EXHIBIT H

CHINA BASIN

LOCATION OF EXTERIOR BUILDING SIGNAGE

This Exhibit H is referenced in Section 23.4 of that certain Office Lease dated as of April 8, 2016, by and between SPF CHINA BASIN HOLDINGS, LLC, a Delaware limited liability company, and LYFT, INC., a Delaware corporation.

 

LOGO

 

  

EXHIBIT H

  
   1   


EXHIBIT I

CHINA BASIN

DOG POLICY AGREEMENT

This Exhibit I is referenced in Section 29.39 of that certain Office Lease dated as of April 8, 2016, by and between SPF CHINA BASIN HOLDINGS, LLC, a Delaware limited liability company, and LYFT, INC., a Delaware corporation.

Lyft Dog Agreement

At Lyft, we believe that our lives intersect with our work, and to that end, we have the benefit of bringing our canine pals to the office*! In consideration of the privilege to bring your dog onto the Lyft premises, the undersigned agrees to the terms of the following dog policy:

Dog at Work Requirements:

1. Dogs must be clean, well groomed and free of illness and diseases (e.g. fleas, ticks). Your dog may be subject to spot checks for fleas, ticks and other pests.

2. Dog must be potty-trained/house broken.

3. Dog must have no history of aggressive behavior or biting, and be well socialized to people and other dogs. Certain office properties have a zero tolerance policy on loud, repetitive barking or other disruptive behavior.

4. Dog must be up to date on all immunizations, including rabies, distemper, hepatitis, para-influenza, parvovirus, and Bordetella.

5. If your dog is not well trained, leave him/her at home until he/she is ready to mingle with both humans and dogs.

6. Dogs must pass a temperament evaluation by the Office team before coming onsite.

Paw-tiquette Guidelines:

1. Keep your dog on-leash at all times while in the office.

2. Make sure to exercise your dog outside regularly (especially for bathroom breaks).

3. Your pup needs food and fresh water, but make sure you don’t leave its food sitting out unattended. Please make sure that any food or water bowls are placed on waterproof mats rather than directly on carpeting. Please also make sure your dog does not eat other team members’ human food!

4. Keep your dog with you while you’re working.

5. Do not leave your dog unattended.

6. If your dog begins to bark or otherwise misbehave, please take immediate corrective action.

7. If your dog makes “a mess,” please clean it up immediately (if you see someone else’s mess, let them know right away).

8. Please keep your dog off of the office furniture.

9. Pay attention to special circumstances that may require extra attention (ie: a full office, conference calls, special guests, onsite filming, etc.)

 

*

Note: If your dog is in violation of any of the above guidelines, you will receive a warning. After three warnings, you will lose the privilege of bringing your dog to the office.

Dogs who are disruptive will need to be sent home. Dogs with multiple complaints may be banned from the office.

Want to bring your dog to Lyft? Just follow these few steps:

1. Complete the Dogs At Work Application **

2. Request a copy of your dog’s vaccination records from your veterinarian.

3. Bring your completed application and your pet’s vet records to a member of the HR team. To figure out who is the right member of HR, check our this page here (based on your org).

Vaccination records should be updated with HR annually.

4. An HR team member will review and approve your application, and discuss your pet’s first day in the office with you. No dogs are permitted at the office until HR approval is provided. Dogs on the premises without an approved application will need to go home.

 

 

 

    

  

 

  

Date:

  

 

Lyft, Inc.             Employee

  

                             Name:

  

 

 

  

EXHIBIT I

  
   1   


OFFICE LEASE

CHINA BASIN

SPF CHINA BASIN HOLDINGS, LLC,

a Delaware limited liability company,

as Landlord,

and

LYFT, INC.,

a Delaware corporation

as Tenant


TABLE OF CONTENTS

 

         Page  

ARTICLE 1

 

PREMISES, BUILDING, PROJECT, AND COMMON AREAS

     5  

ARTICLE 2

 

LEASE TERM

     10  

ARTICLE 3

 

BASE RENT

     13  

ARTICLE 4

 

ADDITIONAL RENT

     14  

ARTICLE 5

 

USE OF PREMISES

     21  

ARTICLE 6

 

SERVICES AND UTILITIES

     24  

ARTICLE 7

 

REPAIRS

     27  

ARTICLE 8

 

ADDITIONS AND ALTERATIONS

     29  

ARTICLE 9

 

COVENANT AGAINST LIENS

     31  

ARTICLE 10

 

INSURANCE

     31  

ARTICLE 11

 

DAMAGE AND DESTRUCTION

     34  

ARTICLE 12

 

NONWAIVER

     36  

ARTICLE 13

 

CONDEMNATION

     36  

ARTICLE 14

 

ASSIGNMENT AND SUBLETTING

     37  

ARTICLE 15

 

SURRENDER OF PREMISES; OWNERSHIP AND REMOVAL OF TRADE FIXTURES

     41  

ARTICLE 16

 

HOLDING OVER

     41  

ARTICLE 17

 

ESTOPPEL CERTIFICATES; AUDITED FINANCIAL STATEMENTS

     42  

ARTICLE 18

 

SUBORDINATION

     42  

ARTICLE 19

 

DEFAULTS; REMEDIES

     43  

ARTICLE 20

 

COVENANT OF QUIET ENJOYMENT

     45  

ARTICLE 21

 

INTENTIONALLY OMITTED

     45  

ARTICLE 22

 

INTENTIONALLY DELETED

     45  

ARTICLE 23

 

SIGNS

     45  

ARTICLE 24

 

COMPLIANCE WITH LAW

     47  

ARTICLE 25

 

LATE CHARGES

     48  

ARTICLE 26

 

LANDLORD’S RIGHT TO CURE DEFAULT; PAYMENTS BY TENANT

     48  

ARTICLE 27

 

ENTRY BY LANDLORD

     49  

ARTICLE 28

 

TENANT PARKING

     49  

ARTICLE 29

 

MISCELLANEOUS PROVISIONS

     50  

ARTICLE 30

 

LETTER OF CREDIT

     60  

 

     
   (i)   


INDEX

 

     Page(s)  

Abatement Event

     27  

Accountant

     21  

Additional Notice

     7  

Additional Rent

     14  

Advocate Arbitrators.

     11  

Affiliate

     40  

Alterations

     29  

Anticipated Initial Premises Delivery Date

     1  

Anticipated Must-Take Premises Delivery Date

     2  

Applicable Laws

     48  

Approved Working Drawings

     Exhibit B  

Arbitration Agreement

     11  

Architect

     Exhibit B  

Area Renovations

     55  

Audit Period

     21  

Audited Financial Statement

     42  

Bank

     61  

Bankruptcy Code

     62  

Bank’s Credit Rating Threshold

     61  

Base Building

     30  

Base Rent

     13  

Base Year

     14  

Bicycle Locker

     58  

BOMA

     10  

Briefs

     12  

Brokers

     54  

Building

     5  

Building Common Areas

     6  

Building Common Areas,

     6  

Building Hours

     24  

Building Systems

     28  

Burn Down Requirements

     63  

China Basin Landing

     5  

China Basin

     5  

Claims’

     32  

Code

     Exhibit B  

Code Work

     Exhibit B  

Commercial Kitchen

     23  

Common Areas

     6  

Comparable Buildings

     Exhibit F  

Comparable Transactions

     Exhibit F  

Competitor Affiliate

     52  

Competitors

     52  

Construction Drawings

     Exhibit B  

Contract

     Exhibit B  

Contractor

     Exhibit B  

Control

     41  

Coordination Fee

     Exhibit B  

Coordinator

     55  

Cosmetic Alteration

     29  

Cost Pools

     19  

Damage Termination Notice

     36  

Default

     43  

Delivery Date

     1  

Delivery Termination Notice

     Exhibit B  

Design Problem

     Exhibit B  

Direct Expenses

     14  

Dog Owner

     60  

Dog Policy Agreement

     60  

 

     
   (ii)   


     Page(s)  

Dog Tag

     60  

Drawing Change Notice

     Exhibit B  

Economic Terms

     7  

Eligibility Period

     27  

Engineers

     Exhibit B  

Estimate

     20  

Estimate Statement

     20  

Estimated Excess

     20  

Excess

     19  

Expense Year

     14  

Exterior Building Signage

     46  

Fifth Floor First Offer Space

     6  

Final Costs

     Exhibit B  

Final Retention

     Exhibit B  

Final Space Plan

     Exhibit B  

Final Working Drawings

     Exhibit B  

First Must Take Late Delivery Date

     Exhibit B  

First Offer Commencement Date

     8  

First Offer Notice

     6  

First Offer Rent

     8  

First Offer Rent Outside Agreement Date

     8  

First Offer Space

     6  

First Offer Term

     8  

First Rebuttals

     12  

Force Majeure

     52, 53  

Fourth Floor First Offer Space

     6  

Governmental Approvals

     22  

Gross Rental Revenues

     17  

Holidays

     24  

HVAC

     24  

Identification Requirements

     56  

Initial Delivery Termination Notice

     Exhibit B  

Initial Late Delivery Date

     Exhibit B  

Initial Notice

     27  

Initial Premises Allowance

     Exhibit B  

Interest Rate

     48  

IRS Code

     56  

JPMIMI

     34  

Landlord

     Summary  

Landlord Parties

     32  

Landlord Repair Notice

     35  

Landlord’s Completion Notice

     34  

Landlord’s Drawing Contribution

     Exhibit B  

Landlord’s Initial Statement

     12  

Landlord’s Security

     25  

L-C

     61  

L-C Amount

     61  

L-C Draw Event

     62  

L-C Expiration Date

     61  

Lease

     Summary  

Lease Commencement Date

     10  

Lease Expiration Date

     10  

Lease Term

     10  

Lease Year

     10  

Lines

     56  

Lyft Drawings

     Exhibit B  

Mail

     53  

Management Fee Cap

     17  

Market Rent

     Exhibit F  

Moving Company

     Exhibit D  

Must-Take Delivery Date

     1  

 

     
   (iii)   


     Page(s)  

Must-Take Existing Tenant

     Exhibit B  

Must-Take Premises

     5  

Must-Take Premises Allowance

     Exhibit B  

Must-Take Premises Lease Commencement Date

     10  

Named Competitor

     52  

Net Cash

     8  

Net Equivalent Lease Rate

     Exhibit F  

Neutral Arbitrator

     11  

New Offer Terms

     7  

Notices

     53  

Objectionable Name

     47  

Operating Expenses

     14  

Option TI Allowance

     Exhibit F  

Option Exercise Notice

     11  

Option Interest Notice

     11  

Option Rent

     10  

Option Rent Notice

     11  

Option Rent Outside Agreement Date

     11  

Option Term

     10  

Original Improvements

     33  

Original Tenant

     6  

Other Improvements

     56  

Over-Allowance Amount

     Exhibit B  

Permitted Capital Expenditures

     15  

Permitted Transferee Assignee

     41  

Premises

     5  

Project

     5  

Project Common Areas

     6  

Project Common Areas,

     6  

Project,

     5  

Proposition 13

     18  

Regulations

     56  

Renovations

     55  

Rent

     14  

Rent

     14  

Right of First Offer

     6  

Rooftop Equipment

     57  

Ruling

     13  

Second Must Take Late Delivery Date

     Exhibit B  

Second Rebuttals

     12  

Second Request

     29, Exhibit B  

Secured Areas

     49  

Security Deposit Laws

     65  

SNDA

     43  

Specialty Improvements

     31  

Stairwell

     22  

Stairwell Security System

     22  

Statement

     19  

Subject Space

     37  

Sublease

     47  

Sublease Premises

     47  

Summary

     1  

Superior Holders

     43  

Superior Right Holders

     6  

Superior Rights

     6  

Tax Expenses

     18  

Temporary Premises

     9  

Temporary Premises Commencement Date

     9  

Temporary Premises Expiration Date

     9  

Temporary Premises Term

     9  

Tenant

     Summary  

 

     
   (iv)   


     Page(s)  

Tenant Change

     Exhibit B  

Tenant Change Second Request

     Exhibit B  

Tenant Delay

     Exhibit B  

Tenant HVAC System

     27  

Tenant Improvement Allowance

     Exhibit B  

Tenant Improvement Allowance Items

     Exhibit B  

Tenant Improvements

     Exhibit B  

Tenant Parties

     32  

Tenant Personal Property

     41  

Tenant Work Letter

     5  

Tenant’s Agents

     Exhibit B  

Tenant’s Dogs

     59  

Tenant’s Financial Condition

     8  

Tenant’s First Offer Exercise Notice

     7  

Tenant’s Initial Statement

     12  

Tenant’s Interior Signage

     47  

Tenant’s Rebuttal Statement

     12  

Tenant’s Security System

     25  

Tenant’s Share

     19  

Termination Notice

     35  

Third Party Lease

     7  

Third Party Operator

     24  

TMP

     55  

Transfer

     40  

Transfer Notice

     37  

Transfer Premium

     39  

Transferee

     37  

Transfers

     37  

Underlying Documents

     22  

Working Drawing Second Request

     Exhibit B  

 

     
   (v)   


FIRST AMENDMENT TO OFFICE LEASE

This FIRST AMENDMENT TO OFFICE LEASE (this “First Amendment”) is made and entered into as of the 27th day of September, 2017 (“Effective Date”), by and between SPF CHINA BASIN HOLDINGS, LLC, a Delaware limited liability company (“Landlord”), and LYFT, INC., a Delaware corporation (“Tenant”).

R E C I T A L S :

A. Landlord and Tenant entered into that certain Office Lease dated April 8, 2016 (the “Lease”), whereby Landlord leases to Tenant and Tenant leases from Landlord those certain premises consisting of (i) approximately 52,297 rentable square feet (the “Initial Premises”) comprised of (a) approximately 25,783 rentable square feet located in Suite 3000 on the third (3rd) floor of the “Wharfside Building,” located at 185 Berry Street, San Francisco, California (“Wharfside Building”), and (b) approximately 26,514 rentable square feet located in Suite 500 on the fifth (5th) floor of the “Berry Street Building” located at 185 Berry Street, San Francisco, California (“Berry Street Building”), and (ii) approximately 41,430 rentable square feet located in Suite 590 on the fifth (5th) floor of the Berry Street Building (the “Must-Take Premises”) (the Initial Premises and the Must-Take Premises are, collectively, the “Existing Premises”). The Wharfside Building and Berry Street Building are each referred to herein as the “Building”, and collectively, as the “Buildings”.

B. Landlord and Tenant desire to expand the Existing Premises to include that certain space consisting of (i) approximately 57,692 rentable square feet of space, commonly known as Suite 4000, on the fourth (4th) floor of the Wharfside Building (the “Phase 1 Expansion Premises”), as delineated on Exhibit A-1 attached hereto and (ii) approximately 16,801 rentable square feet of space, commonly known as Suite 550, on the fifth (5th) floor of the Berry Street Building (the “Phase 2 Expansion Premises”), as delineated on Exhibit A-2 attached hereto (the Phase 1 Expansion Premises and the Phase 2 Expansion Premises are, collectively, the “Expansion Premises”), and to make other modifications to the Lease, and in connection therewith, Landlord and Tenant desire to amend the Lease as hereinafter provided.

A G R E E M E N T :

NOW, THEREFORE, in consideration of the foregoing recitals and the mutual covenants contained herein, and for other good and valuable consideration, the receipt and sufficiency of which are hereby acknowledged, the parties hereto hereby agree as follows:

1. Capitalized Terms. All capitalized terms when used herein shall have the same meaning as is given such terms in the Lease unless expressly superseded by the terms of this First Amendment.


2. Modification of Premises.

2.1. Phase 1 Expansion Commencement Date. The “Phase 1 Expansion Commencement Date” is the date that is six (6) months following the Phase 1 Expansion Delivery Date. As used herein, the “Phase 1 Expansion Delivery Date” shall mean the date on which Landlord delivers the Phase 1 Expansion Premises to Tenant in the condition required hereunder, which Phase 1 Expansion Delivery Date is anticipated to occur on the first business day following the full execution of this First Amendment by Landlord and Tenant (the “Anticipated Phase 1 Expansion Premises Delivery Date”). Effective upon the Phase 1 Expansion Commencement Date, the Premises shall be increased to include the Phase 1 Expansion Premises. Except as provided in this First Amendment, including, but not limited to, Sections 4, 5, and 6 of this First Amendment, effective as of the Phase 1 Expansion Commencement Date, the term “Premises” as used in the Lease shall mean, collectively, the Existing Premises and the Phase 1 Expansion Premises. Except as specifically set forth in the Expansion Premises Work Letter attached hereto as Exhibit B (the “Expansion Premises Work Letter”), Landlord shall not be obligated to provide or pay for any improvement work or services related to the improvement of the Phase 1 Expansion Premises, and Tenant shall accept the Phase 1 Expansion Premises in its presently existing, “as-is” condition.

2.2. Phase 2 Expansion Commencement Date. The “Phase 2 Expansion Commencement Date” is the date that is four (4) months following the Phase 2 Expansion Delivery Date. As used herein, the “Phase 2 Expansion Delivery Date” shall mean the date on which Landlord delivers the Phase 2 Expansion Premises to Tenant in the condition required hereunder, which Phase 2 Expansion Delivery Date is anticipated to occur on October 1, 2019 (the “Anticipated Phase 2 Expansion Premises Delivery Date”). Effective upon the Phase 2 Expansion Commencement Date, the Premises shall be increased to include the Phase 2 Expansion Premises. Except as provided in this First Amendment, including, but not limited to, Sections 4, 5, and 6 of this First Amendment, effective as of the Phase 2 Expansion Commencement Date, the term “Premises” as used in the Lease shall mean, collectively, the Existing Premises, the Phase 1 Expansion Premises, and the Phase 2 Expansion Premises. The Phase 1 Expansion Commencement Date and Phase 2 Expansion Commencement Date are each referred to herein as an “Expansion Commencement Date”, and the Phase 1 Expansion Delivery Date and Phase 2 Expansion Delivery Date are each referred to herein as an “Expansion Delivery Date”. Except as specifically set forth in the Expansion Premises Work Letter, Landlord shall not be obligated to provide or pay for any improvement work or services related to the improvement of the Phase 2 Expansion Premises, and Tenant shall accept the Phase 2 Expansion Premises in its presently existing, “as-is” condition.

2.3. Beneficial Occupancy. Subject to the terms of this Section 2.3, if the Expansion Improvements (as defined in Section 2.1 of the Expansion Premises Work Letter) in the applicable Expansion Premises are substantially completed prior to the applicable Expansion Commencement Date, Tenant shall have the right thereafter to occupy the applicable Expansion Premises prior to the applicable Expansion Commencement Date for the conduct of Tenant’s business; provided that (i) Tenant shall give Landlord at least ten (10) days’ prior written notice of any occupancy of the applicable Expansion Premises for the conduct of Tenant’s business, (ii) a temporary certificate of occupancy shall have been issued by the appropriate governmental authorities for the applicable Expansion Premises to be occupied for the conduct of Tenant’s

 

2


business, (iii) Tenant has delivered to Landlord satisfactory evidence of the insurance coverage required to be carried by Tenant in accordance with Article 10 of the Lease with respect to the applicable Expansion Premises, and (iv) except as provided hereinbelow, all of the terms and conditions of the Lease shall apply as though the applicable Expansion Commencement Date had occurred (although the applicable Expansion Commencement Date shall not actually occur until the occurrence of the same pursuant to the terms of Sections 2.1 and 2.2, as applicable) upon Tenant’s commencement of the conduct of its business in the applicable Expansion Premises; provided, however, notwithstanding the foregoing, (A) Tenant shall have no obligation to pay Base Rent attributable to the applicable Expansion Premises, or Tenant’s Share of Direct Expenses attributable to the applicable Expansion Premises during any such period prior to the applicable Expansion Commencement Date that Tenant occupies the applicable Expansion Premises.

3. Expansion Term.

3.1. Phase 1 Expansion Term. The term of Tenant’s lease of the Phase 1 Expansion Premises (the “Phase 1 Expansion Term”) shall commence on the Phase 1 Expansion Commencement Date and shall expire conterminously with Tenant’s Lease of the Existing Premises on August 31, 2025, unless sooner terminated as provided in the Lease, as hereby amended.

3.2. Phase 2 Expansion Term. The term of Tenant’s lease of the Phase 2 Expansion Premises (the “Phase 2 Expansion Term”) shall commence on the Phase 2 Expansion Commencement Date and shall expire conterminously with Tenant’s lease of the Existing Premises and Phase 1 Expansion Premises on August 31, 2025, unless sooner terminated as provided in the Lease, as hereby amended. The Phase 1 Expansion Term and Phase 2 Expansion Term are each referred to herein as an “Expansion Term”.

4. Base Rent.

4.1. Phase 1 Expansion Premises. Commencing on the Phase 1 Expansion Commencement Date and continuing throughout the Phase 1 Expansion Term, Tenant shall pay to Landlord monthly installments of Base Rent for the Phase 1 Expansion Premises as follows:

 

Phase 1 Expansion Year

  Annual Base Rent     Monthly Installment
of Base Rent
    Annual Rental Rate per
Rentable Square Foot
 
1   $ 4,730,744.00     $ 394,228.67     $ 82.00  
2   $ 4,872,666.32     $ 406,055.53     $ 84.46  
3   $ 5,018,846.31     $ 418,237.19     $ 86.99  
4   $ 5,169,411.72     $ 430,784.31     $ 89.60  
5   $ 5,324,494.08     $ 443,707.84     $ 92.29  
6   $ 5,484,228.87     $ 457,019.07     $ 95.06  
7   $ 5,648,755.74     $ 470,729.65     $ 97.91  
8 – August 31, 2025   $ TBD     $ 484,851.53     $ 100.85  

 

3


For purposes of this First Amendment, the term “Phase 1 Expansion Year” shall mean each consecutive twelve (12) month period during the Phase 1 Expansion Term; provided, however, that the first Phase 1 Expansion Year shall commence on the Phase 1 Expansion Commencement Date and end on the last day of the eleventh month thereafter and the second and each succeeding Phase 1 Expansion Year shall commence on the first day of the next calendar month; and further provided that the last Phase 1 Expansion Year shall end on August 31, 2025.

4.2. Phase 2 Expansion Premises. Commencing on the Phase 2 Expansion Commencement Date and continuing throughout the Phase 2 Expansion Term, Tenant shall pay to Landlord monthly installments of Base Rent for the Phase 2 Expansion Premises as follows:

 

Phase 2 Expansion Year

  Annual Base Rent     Monthly Installment
of Base Rent
    Annual Rental Rate per
Rentable Square Foot
 
1   $ 1,428,085.00     $ 119,007.08     $ 85.00  
2   $ 1,470,927.55     $ 122,577.30     $ 87.55  
3   $ 1,515,055.38     $ 126,254.62     $ 90.18  
4   $ 1,560,507.04     $ 130,042.25     $ 92.88  
5   $ 1,607,322.25     $ 133,943.52     $ 95.67  
6 – August 31, 2025   $ TBD     $ 137,961.83     $ 98.54  

For purposes of this First Amendment, the term “Phase 2 Expansion Year” shall mean each consecutive twelve (12) month period during the Phase 2 Expansion Term; provided, however, that the first Phase 2 Expansion Year shall commence on the Phase 2 Expansion Commencement Date and end on the last day of the eleventh month thereafter and the second and each succeeding Phase 2 Expansion Year shall commence on the first day of the next calendar month; and further provided that the last Phase 2 Expansion Year shall end on August 31, 2025.

5. Rent Abatement.

5.1. Phase 1 Expansion Premises. Provided that Tenant is not then in Default of the Lease, then Tenant shall have no obligation to pay the Base Rent and Tenant’s Share of Direct Expenses otherwise attributable to the Phase 1 Expansion Premises during the first seven (7) full calendar months of the Phase 1 Expansion Term (the “Phase 1 Abatement Period”). Landlord and Tenant acknowledge that the total amount of the Base Rent component of the abatement above equals $2,759,600.69 (i.e., $394,228.67 per month).

 

4


5.2. Phase 2 Expansion Premises. Provided that Tenant is not then in Default of the Lease, then Tenant shall have no obligation to pay the Base Rent and Tenant’s Share of Direct Expenses otherwise attributable to the Phase 2 Expansion Premises during the first five (5) full calendar months of the Phase 1 Expansion Term (the “Phase 2 Abatement Period”). Landlord and Tenant acknowledge that the total amount of the Base Rent component of the abatement above equals $595,035.40 (i.e., $119,007.08 per month).

6. Tenant’s Share of Direct Expenses.

6.1. Phase 1 Expansion Premises. Except as specifically set forth in this Section 6.1, commencing on the expiration of the Phase 1 Abatement Period, Tenant shall pay Tenant’s Share of Direct Expenses in connection with the Phase 1 Expansion Premises in accordance with the terms of Article 4 of the Lease, provided that with respect to the calculation of Tenant’s Share of Direct Expenses in connection with the Phase 1 Expansion Premises, the following shall apply:

6.1.1 Tenant’s Share shall equal 6.2912%; and

6.1.2 the Base Year shall be the calendar year 2018.

6.2. Phase 2 Expansion Premises. Except as specifically set forth in this Section 6.2, commencing on the expiration of the Phase 2 Abatement Period, Tenant shall pay Tenant’s Share of Direct Expenses in connection with the Phase 2 Expansion Premises in accordance with the terms of Article 4 of the Lease, provided that with respect to the calculation of Tenant’s Share of Direct Expenses in connection with the Phase 2 Expansion Premises, the following shall apply:

6.2.1 Tenant’s Share shall equal 1.8295%; and

6.2.2 the Base Year shall be the calendar year 2020.

7. Parking. In addition to Tenant’s parking rights set forth in the Lease, effective as of the Phase 1 Expansion Commencement Date and continuing throughout the entire Expansion Term, Tenant shall be entitled to rent up to fifteen (15) unreserved parking passes in connection with Tenant’s lease of both the Phase 1 Expansion Premises and the Phase 2 Expansion Premises (the “Expansion Parking Passes”). Except as set forth in this Section 7, Tenant shall lease the Expansion Parking Passes in accordance with the provisions of Article 28 of the Lease.

8. Electrical. Landlord acknowledges and agrees that Section 6.1.2 of the Lease [“Landlord shall provide adequate electrical wiring and facilities for connection to Building standard ceiling mounted lighting fixtures and incidental use equipment, i.e., 5 watts of connected load per usable square foot, provided that Tenant’s consumption of electricity does not exceed 2.4 watts/hour per usable square foot of the Premises per month, which electrical usage shall be subject to Applicable Laws and regulations, including Title 24.”] shall apply to the Expansion Premises.

 

5


9. Tenant’s Dogs. In addition to Tenant’s rights set forth in the Lease to bring Tenant’s Dogs into the Premises, effective as of (i) the Phase 1 Expansion Commencement Date, the total number of Tenant’s Dogs eligible to be brought into the Premises (including the Sublease Premises as part of the “Premises” for such purposes) that is not subject to a sublease agreement (or a sub-sublease agreement with respect to the Sublease Premises) shall not exceed sixty (60) dogs in the aggregate and (ii) the Phase 2 Expansion Commencement Date, the total number of Tenant’s Dogs eligible to be brought into the Premises (including the Sublease Premises as part of the “Premises” for such purposes) that is not subject to a sublease agreement (or a sub-sublease agreement with respect to the Sublease Premises) shall not exceed sixty-five (65) dogs in the aggregate. Except as set forth in this Section 9, the terms of Section 29.39 of the Lease shall continue to apply with respect to Tenant’s dog rights.

10. Right of First Offer. Notwithstanding any provision to the contrary set forth in the Lease, as of the Effective Date, all references in Section 1.2 of the Lease to the “Fourth Floor First Offer Space” are hereby deleted and of no further force or effect, and Tenant’s “Right of First Offer”, and the “First Offer Space” shall pertain solely to the Fifth Floor First Offer Space as set forth therein.

11. Exterior Building Signage. Notwithstanding any provision to the contrary set forth in the Lease, as of the Effective Date, Tenant’s “Exterior Building Signage” as described in Section 23.4 of the Lease shall be on the east-facing side of the Berry Street Building in the location more particularly identified on Exhibit C attached hereto.

12. Removal Obligations. Notwithstanding any provision to the contrary set forth in the Lease, as of the Effective Date, the term “Tenant Improvements” within the definition of “Specialty Improvements” in Section 8.5 of the Lease, shall include any Expansion Improvements, and accordingly, Tenant shall not be required to remove any Expansion Improvements upon the expiration or earlier termination of the Lease, unless the same would constitute Specialty Improvements. In addition, in the event that, at the time Tenant requests Landlord’s consent to any Expansion Improvements, if Tenant also requests in writing a determination of whether Landlord will require restoration and/or removal of the particular Expansion Improvements or portions thereof for which consent is being requested upon expiration or any earlier termination of the Lease (as amended), Landlord shall so notify Tenant along with Landlord’s consent (if such consent is given).

13. Letter of Credit. Landlord and Tenant acknowledge that, in accordance with the Lease, Landlord currently holds an L-C (as defined in the Lease) (the “Existing L-C”) in the amount of $8,900,000.00 (the “Existing L-C Amount”) as security for the faithful performance by Tenant of the terms, covenants and conditions of the Lease. Landlord shall continue to retain the Existing L-C as security for the faithful performance by Tenant of the terms, covenants and conditions of the Lease, as hereby amended; provided, however, Tenant shall deliver to Landlord within five (5) business days following Tenant’s and Landlord’s execution of this First Amendment (but prior to delivery of this First Amendment), an amendment to the Existing L-C, or a new or replacement L-C in the form required by the Lease, increasing the Existing L-C Amount by $4,000,000.00 (the “Expansion L-C Amount”), which Expansion L-C Amount shall be subject to reduction as set forth below. To the extent that on each of the “Dates of Reduction” identified below, (i) Tenant is not in default under the Lease (as amended), and (ii) Tenant satisfies the “Burn Down Requirements” identified in the Lease, the Expansion L-C Amount shall be reduced as follows:

 

6


Date of Reduction

   Amount of Reduction      Expansion L-C Amount  

First Day of Phase 1 Expansion Year 3

   $ 600,000.00      $ 3,400,000.00  

First Day of Phase 1 Expansion Year 4

   $ 600,000.00      $ 2,800,000.00  

First Day of Phase 1 Expansion Year 5

   $ 600,000.00      $ 2,200,000.00  

First Day of Phase 1 Expansion Year 6

   $ 600,000.00      $ 1,600,000.00  

First Day of Phase 1 Expansion Year 7

   $ 600,000.00      $ 1,000,000.00  

In the event that Tenant desires to reduce the Expansion L-C Amount as set forth above, then no later than six (6) months prior to the scheduled date of such reduction, concurrently with Tenant’s delivery of the written representation and certification required under Section 30.3.3.4, of the Lease, Tenant shall deliver to Landlord a copy of Tenant’s then most current Audited Financial Statement evidencing compliance with the Burn Down Requirements. Notwithstanding anything to the contrary set forth herein, in no event shall the Expansion L-C Amount as set forth above decrease during any period in which Tenant is in default under the Lease, as amended, but such decrease shall take place retroactively after such default is cured, provided that no such decrease shall thereafter take effect in the event the Lease, as amended, is terminated early due to such default by Tenant.

14. Must-Take Premises. In lieu of the Notice of Delivery and Lease Term Dates contemplated in Section 2.1 and Exhibit C of the Lease, Landlord and Tenant hereby confirm the following with respect to the Must-Take Premises.

14.1. The Must-Take Delivery Date occurred on August 1, 2017.

14.2. The Must-Take Premises Commencement Date shall be one hundred and twenty (120) days after the Must-Take Delivery Date, which is December 1, 2017.

14.3. The Lease Expiration Date for the Must-Take Premises shall be August 31, 2025.

14.4. Provided that Tenant is not then in Default under the Lease, Tenant shall not be obligated to pay Base Rent for the Must-Take Premises for the first four full calendar months following the Must-Take Premises Commencement Date, which is the period from December 1, 2017 through and including March 31, 2018. In addition, provided that Tenant is not then in Default under the Lease, Tenant shall not be obligated to pay Base Rent on the Existing Premises for the month of September 2018.

15. Brokers. Landlord and Tenant hereby warrant to each other that they have had no dealings with any real estate broker or agent in connection with the negotiation of this First Amendment other than McCarthy Cook & Co. and Jones Lang LaSalle (the “Brokers”), and that they know of no other real estate broker or agent who is entitled to a commission in connection with this First Amendment. Landlord shall pay the brokerage commissions owing to the Brokers

 

7


in connection with the transaction contemplated by this First Amendment pursuant to the terms of separate written agreements between Landlord and each of the Brokers. Each party agrees to indemnify and defend the other party against and hold the other party harmless from and against any and all claims, demands, losses, liabilities, lawsuits, judgments, and costs and expenses (including, without limitation, reasonable attorneys’ fees) with respect to any leasing commission or equivalent compensation alleged to be owing on account of the indemnifying party’s dealings with any real estate broker or agent, other than the Brokers. The terms of this Section 15 shall survive the expiration or earlier termination of the term of the Lease, as hereby amended.

16. CASp. For purposes of Section 1938(a) of the California Civil Code, Landlord hereby discloses to Tenant, and Tenant hereby acknowledges, that the Premises have not undergone inspection by a Certified Access Specialist (CASp). In addition, the following notice is hereby provided pursuant to Section 1938(e) of the California Civil Code: “A Certified Access Specialist (CASp) can inspect the subject premises and determine whether the subject premises comply with all of the applicable construction-related accessibility standards under state law. Although state law does not require a CASp inspection of the subject premises, the commercial property owner or lessor may not prohibit the lessee or tenant from obtaining a CASp inspection of the subject premises for the occupancy or potential occupancy of the lessee or tenant, if requested by the lessee or tenant. The parties shall mutually agree on the arrangements for the time and manner of the CASp inspection, the payment of the fee for the CASp inspection, and the cost of making any repairs necessary to correct violations of construction-related accessibility standards within the premises.” In furtherance of and in connection with such notice: (i) Tenant, having read such notice and understanding Tenant’s right to request and obtain a CASp inspection and with advice of counsel, hereby elects not to obtain such CASp inspection and forever waives its rights to obtain a CASp inspection with respect to the Premises, the Building and/or the Project to the extent permitted by applicable laws now or hereafter in effect; and (ii) if the waiver set forth in clause (i) hereinabove is not enforceable pursuant to applicable laws now or hereafter in effect, then Landlord and Tenant hereby agree as follows (which constitute the mutual agreement of the parties as to the matters described in the last sentence of the foregoing notice): (A) Tenant shall have the one-time right to request for and obtain a CASp inspection, which request must be made, if at all, in a written notice delivered by Tenant to Landlord on or before the Lease Commencement Date; (B) any CASp inspection timely requested by Tenant shall be conducted (1) between the hours of 9:00 a.m. and 5:00 p.m. on any business day, (2) only after ten (10) days’ prior written notice to Landlord of the date of such CASp inspection, (3) in a professional manner by a CASp designated by Landlord and without any testing that would damage the Premises, the Building or the Project in any way, (4) in accordance with all of the provisions of the Lease applicable to Tenant contracts for construction, and (5) at Tenant’s sole cost and expense, including, without limitation, Tenant’s payment of the fee for such CASp inspection, the fee for any reports and/or certificates prepared by the CASp in connection with such CASp inspection (collectively, the “CASp Reports”) and all other costs and expenses in connection therewith; (C) Landlord shall be an express third party beneficiary of Tenant’s contract with the CASp, and any CASp Reports shall be addressed to both Landlord and Tenant; (D) Tenant shall deliver a copy of any CASp Reports to Landlord within two (2) business days after Tenant’s receipt thereof; (E) any information generated by the CASp inspection and/or contained in the CASp Reports shall not be disclosed by Tenant to anyone other than (I) contractors, subcontractors and/or consultants of Tenant, in each instance who have a need to know such information and who agree in writing not

 

8


to further disclose such information, or (II) any governmental entity, agency or other person, in each instance to whom disclosure is required by law or by regulatory or judicial process; (F) Tenant, at its sole cost and expense, shall be responsible for making any improvements, alterations, modifications and/or repairs to or within the Premises to correct violations of construction-related accessibility standards, including, without limitation, any violations disclosed by such CASp inspection; and (G) if such CASp inspection identifies any improvements, alterations, modifications and/or repairs necessary to correct violations of construction-related accessibility standards relating to those items of the Building and/or the Project located outside the Premises that are Landlord’s obligation to repair under the Lease, then Landlord shall perform such improvements, alterations, modifications and/or repairs as and to the extent required by applicable laws to correct such violations, and Tenant shall reimburse Landlord for the cost of such improvements, alterations, modifications and/or repairs as part of Operating Expenses to the extent permitted under Article 4 of the Lease.

17. Third Party Approvals. Landlord shall be responsible, at Landlord’s sole cost and expense, for obtaining any third party approvals required for Landlord to enter into this First Amendment, including, without limitation, the approval of HSBC Bank USA, National Association.

18. No Further Modification. Except as set forth in this First Amendment, all of the terms and provisions of the Lease shall apply with respect to the Expansion Premises and shall remain unmodified and in full force and effect.

19. Counterparts and Electronic Signatures. This First Amendment may be executed in one or more counterparts, each of which shall be an original, and all of which together shall constitute a single instrument. Further, the parties agree that this First Amendment may be signed and/or transmitted by electronic mail of a .PDF document or electronic signature (e.g., DocuSign or similar electronic signature technology) and thereafter maintained in electronic form, and that such electronic record shall be valid and effective to bind the party so signing as a paper copy bearing such party’s hand-written signature. The parties further consent and agree that the electronic signatures appearing on this First Amendment shall be treated, for purpose of validity, enforceability and admissibility, the same as hand-written signatures.

[signatures follow on next page]

 

9


IN WITNESS WHEREOF, this First Amendment has been executed as of the day and year first above written.

 

“Landlord”:

SPF CHINA BASIN HOLDINGS, LLC,

a Delaware limited liability company

By:

 

SPF China Basin Acquisition, LLC,

 

a Delaware limited liability company

 

Managing Member

 

By:

 

Commingled Pension Trust Fund (Strategic

   

Property) of JPMorgan Chase Bank, N.A.,

   

Sole Member

   

By:

 

JPMorgan Chase Bank, N.A.,

     

Trustee

     

By:

 

/s/ Karen M. Wilbrecht

       

Karen M. Wilbrecht,

       

Executive Director

       

Date: 9/27/17

“Tenant”:

LYFT, INC.,

a Delaware corporation

By:

 

/s/ Brian Roberts

 

Name: Brian Roberts

 

Its: CFO

 

Date: 9/27/2017

 

10


EXHIBIT A-1

CHINA BASIN

OUTLINE OF PHASE 1 EXPANSION PREMISES1

This Exhibit A-1 is referenced in the Recital B of that certain First Amendment to Office Lease dated as of September 27, 2017, by and between SPF CHINA BASIN HOLDINGS, LLC, a Delaware limited liability company, and LYFT, INC., a Delaware corporation.

 

LOGO

 

1 

NOTE: Suite 4000 depicted above contains approximately 57,692 rentable square feet of space.

 

LandLord’s initials /s/ K.W.

     

Tenant’s initials /s/ B.R.

 

      CHINA BASIN
   EXHIBIT A-1    First Amendment
   1    Lyft, Inc.


EXHIBIT A-2

CHINA BASIN

OUTLINE OF PHASE 2 EXPANSION PREMISES2

This Exhibit A-2 is referenced in the Recital B of that certain First Amendment to Office Lease dated as of September 27, 2017, by and between SPF CHINA BASIN HOLDINGS, LLC, a Delaware limited liability company, and LYFT, INC., a Delaware corporation.

 

LOGO

 

 

2 

NOTE: Suite 550 depicted above contains approximately 16,801 rentable square feet of space.

 

LandLord’s initials /s/ K.W.

     

Tenant’s initials /s/ B.R.

 

      CHINA BASIN
   EXHIBIT A-2    First Amendment
   1    Lyft, Inc.


EXHIBIT B

CHINA BASIN

EXPANSION PREMISES WORK LETTER

This Exhibit B is referenced in Sections 2.1 and 2.2 of that certain First Amendment to Office Lease dated as of September 27, 2017, by and between SPF CHINA BASIN HOLDINGS, LLC, a Delaware limited liability company, and LYFT, INC., a Delaware corporation.

This Expansion Premises Work Letter shall set forth the terms and conditions relating to the construction of improvements in the Phase 1 Expansion Premises and the Phase 2 Expansion Premises. This Expansion Premises Work Letter is essentially organized chronologically and addresses the issues of the construction of the Phase 1 Expansion Premises and the Phase 2 Expansion Premises, in sequence, as such issues will arise during the actual construction of the Phase 1 Expansion Premises and the Phase 2 Expansion Premises. All references in this Expansion Premises Work Letter to Sections of “this Expansion Premises Work Letter” shall mean the relevant portions of Sections 1 through 5 of this Expansion Premises Work Letter. Unless context indicates otherwise, all references in this Expansion Premises Work Letter to “Expansion Premises” shall mean either the “Phase 1 Expansion Premises” or the “Phase 2 Expansion Premises” as applicable.

SECTION 1

DELIVERY OF THE EXPANSION PREMISES

1.1 Delivery of the Phase 1 Expansion Premises. Tenant acknowledges that Tenant has thoroughly examined the Phase 1 Expansion Premises. As of the Phase 1 Expansion Delivery Date, Landlord shall deliver the Phase 1 Expansion Premises and Tenant shall accept the Phase 1 Expansion Premises from Landlord in its presently existing, “as-is” condition as of the date of this First Amendment; provided, however, Landlord shall deliver the Phase 1 Expansion Premises with the plumbing, electrical systems, fire sprinkler system, lighting, air conditioning and heating systems and all other Building systems serving the Phase 1 Expansion Premises in good operating condition and repair and any failure of such systems to be in such condition on delivery shall not be a default under the Lease (as amended), but shall be promptly remedied by Landlord at Landlord’s sole cost and expense. Notwithstanding anything to the contrary set forth herein, Landlord shall, at Landlord’s sole cost, using Building standard methods, materials and finishes, (A) cause the flooring within the Expansion Premises to be level to as close as commercially reasonably practicable to 1/4” over 10’, and (B) install Building standard window shades on the perimeter windows of the Premises. The provisions of Article 6 of the Lease shall apply to the Expansion Premises.

 

LandLord’s initials /s/ K.W.

     

Tenant’s initials /s/ B.R.

 

      CHINA BASIN
   EXHIBIT B    First Amendment
   1    Lyft, Inc.


1.2 Delivery of the Phase 2 Expansion Premises. Tenant acknowledges that Tenant has thoroughly examined the Phase 2 Expansion Premises. Tenant hereby acknowledges that the Phase 2 Expansion Premises is currently occupied by another tenant of the Building (the “Phase 2 Expansion Premises Existing Tenant”). Following the vacation and surrender of the Phase 2 Expansion Premises by such Phase 2 Expansion Premises Existing Tenant, Landlord shall deliver the Phase 2 Expansion Premises and Tenant shall accept the Phase 2 Expansion Premises from Landlord in its presently existing, “as-is” condition as of the date of this First Amendment; provided, however, Landlord shall deliver the Phase 2 Expansion Premises with the plumbing, electrical systems, fire sprinkler system, lighting, air conditioning and heating systems and all other Building systems serving the Phase 2 Expansion Premises in good operating condition and repair and any failure of such systems to be in such condition on delivery shall not be a default under the Lease (as amended), but shall be promptly remedied by Landlord at Landlord’s sole cost and expense. In addition, prior to delivery of the Phase 2 Expansion Premises to Tenant, Landlord shall repair (or cause the Phase 2 Expansion Premises Existing Tenant to repair) any material damage to the Phase 2 Expansion Premises caused by the Phase 2 Expansion Premises Existing Tenant’s vacation of the Phase 2 Expansion Premises and the Phase 2 Expansion Premises shall be broom swept and free of the Phase 2 Expansion Premises Existing Tenant’s personal property, furniture, fixtures and equipment. Landlord anticipates delivering the Phase 2 Expansion Premises to Tenant on the Anticipated Phase 2 Expansion Premises Delivery Date (i.e., October 1, 2019); provided, however, if Landlord is unable for any reason to deliver possession of the Phase 2 Expansion Premises to Tenant on any specific date, then Landlord shall not be subject to any liability for its failure to do so, and such failure shall not affect the validity of the Lease (as amended) or the obligations of Tenant hereunder, except as otherwise expressly set forth herein below.

1.2.1 Delay in Delivery of Phase 2 Expansion Premises. Notwithstanding anything contained herein to the contrary, if Landlord has not delivered the Phase 2 Expansion Premises to Tenant within thirty (30) days after the Anticipated Phase 2 Expansion Premises Delivery Date (the “First Phase 2 Late Delivery Date”, which date shall be extended on a day-for-day basis for each day Landlord is delayed in delivering the Phase 2 Expansion Premises to Tenant as a result of any failure of the Phase 2 Expansion Premises Existing Tenant to timely surrender the Phase 2 Expansion Premises (for which Landlord shall have no liability whatsoever so long as Landlord uses reasonable efforts, including filing an unlawful detainer action, to cause the Phase 2 Expansion Premises Existing Tenant to vacate the Phase 2 Expansion Premises), and delays due to any Force Majeure and/or any delays due to the acts or omissions of Tenant or any of Tenant’s Agents), then Tenant shall be entitled to a Base Rent credit, to be applied to the Base Rent first coming due with respect to the Phase 2 Expansion Premises, in an amount equal to Three Thousand Nine Hundred Sixty-Six and 90/100 Dollars ($3,966.90) for each day beyond the First Phase 2 Late Delivery Date (as such date may be extended as provided herein) up to the date that Landlord delivers the Phase 2 Expansion Premises to Tenant. Notwithstanding anything contained herein to the contrary, if Landlord has not delivered the Phase 2 Expansion Premises to Tenant within ninety (90) days after the Anticipated Phase 2 Expansion Premises Delivery Date (the “Second Phase 2 Late Delivery Date”, which date shall be extended on a day-for-day basis for each day Landlord is delayed in delivering the Phase 2 Expansion Premises to Tenant as a result of any failure of the Phase 2 Expansion Premises Existing Tenant to timely surrender the Phase 2 Expansion Premises (for which Landlord shall have no liability whatsoever so long as Landlord uses reasonable efforts, including filing an unlawful detainer action, to cause

 

LandLord’s initials /s/ K.W.

     

Tenant’s initials /s/ B.R.

 

      CHINA BASIN
   EXHIBIT B    First Amendment
   2    Lyft, Inc.


the Phase 2 Expansion Premises Existing Tenant to vacate the Phase 2 Expansion Premises), delays due to any Force Majeure and/or any delays due to the acts or omissions of Tenant or any of Tenant’s Agents)), then Tenant shall have the right, in its sole discretion, to terminate Tenant’s lease of the Phase 2 Expansion Premises (though Tenant’s lease of the initial Premises, Must-Take Premises and Phase 1 Expansion Premises shall remain in full force and effect). Such termination shall be effective ten (10) business days after Landlord’s receipt of written notice from Tenant pursuant to which Tenant elects to terminate Tenant’s lease of the Phase 2 Expansion Premises (the “Delivery Termination Notice”); provided that, if Landlord delivers the Phase 2 Expansion Premises to Tenant prior to the effective date of the Delivery Termination Notice, then such Delivery Termination Notice shall be of no force or effect. Tenant’s rights to abate rent and to terminate Tenant’s lease of the Phase 2 Expansion Premises as provided for herein, shall be Tenant’s sole and exclusive remedies if Landlord has not delivered the Phase 2 Expansion Premises to Tenant as of any particular date. Upon such termination, the L-C Amount shall be reduced proportionately on a rentable square footage basis to account for the rentable square footage of the Phase 2 Expansion Premises no longer being part of the “Premises” under the Lease (as amended).

1.3 Compliance. Notwithstanding the foregoing, in connection with Tenant’s construction of the “Expansion Improvements” (as defined in Section 2.1 below), Landlord shall be responsible, at Landlord’s sole cost and expense, to the extent such compliance is required in order to allow Tenant to obtain a certificate of occupancy, or its legal equivalent, for the Expansion Premises for general office use, (i) to cause the “path of travel” to the Expansion Premises (i.e., the most direct route through the Common Areas of the Building starting from the main entrance of the Building (Lobby 4) and ending at the entrance to the Expansion Premises) to comply with applicable building codes and other governmental laws, ordinances and regulations related to handicap access and use, as enacted and enforced as of the applicable Expansion Commencement Date, including but not limited to building codes and other governmental laws, ordinances and regulations enacted in conformity with Title 24 accessibility standards and the Americans with Disabilities Act (collectively, the “ADA”), (ii) perform the work shown on Schedule 1 to Exhibit B attached hereto, and (iii) to perform all work necessary to the Base Building and the Common Areas (including all the restrooms currently located in the Common Area which will become part of the Expansion Premises) to cause such areas to comply with applicable building codes and other governmental laws, ordinances and regulations, as enacted and enforced as of the Expansion Commencement Date, including but not limited to building codes and other governmental laws, ordinances and regulations enacted in conformity with Title 24 accessibility standards and the Americans with Disabilities Act (collectively, the “Code Work”). Landlord acknowledges and agrees that the following language from Section 5.2 of the Lease shall apply to the Expansion Premises: “Tenant shall not allow occupancy density of use of the Premises which is greater than one (1) person for each 125 rentable square feet of the Premises; provided, however, that such density ratio shall be applicable to the entirety of the space then leased by Tenant in the Project (and shall not apply on a floor by floor basis).”

 

LandLord’s initials /s/ K.W.

     

Tenant’s initials /s/ B.R.

 

      CHINA BASIN
   EXHIBIT B    First Amendment
   3    Lyft, Inc.


1.4 Corridor Work. Except for the Code Work, Landlord shall not be obligated to perform or pay for any work to demolish the existing corridor shown on Exhibit A-1 attached hereto within the Phase 1 Expansion Premises (the “Phase 1 Corridor”), which demolition work shall be performed by Tenant as part of the construction of the Phase 1 Expansion Improvements. The rentable square footage of the Phase 1 Expansion Premises specified in Recital B of this First Amendment (57,692 rentable square feet) was determined under the assumption that the Phase 1 Corridor will be demolished. If Tenant is unable to obtain permits and other required governmental approvals to demolish the Phase 1 Corridor, then the rentable square footage of the Phase 1 Expansion Premises shall instead be a stipulated total of 56,568 rentable square feet, and the parties shall enter into an amendment to the Lease documenting the revised rentable square footage amount and adjusting all numbers, amounts and percentage based on the rentable square footage of the Phase 1 Expansion Premises.

SECTION 2

IMPROVEMENTS

2.1 Expansion Improvement Allowance. Tenant shall be entitled to a one-time improvement allowance (the “Expansion Improvement Allowance”) in the aggregate amount of (i) $5,192,280.00 (i.e., $90.00 per each of the 57,692 rentable square feet in the Phase 1 Expansion Premises), and (ii) $840,050.00 (i.e., $50.00 per each of the 16,801 rentable square feet in the Phase 2 Expansion Premises) for the costs relating to the initial design and construction of the improvements, which are permanently affixed to the Expansion Premises (the “Expansion Improvements”). The portion of the Expansion Improvement Allowance described in item (i) above is referred to herein as the “Phase 1 Expansion Premises Allowance” and the portion of the Expansion Improvement Allowance described in item (ii) above is referred to herein as the “Phase 2 Expansion Premises Allowance”. In addition (and not as part of the Phase 1 Expansion Premises Allowance or the Phase 2 Expansion Premises Allowance), Landlord shall provide up to $0.15 per rentable square foot of the entire Expansion Premises towards the cost of one (1) preliminary space plan for each portion of the Expansion Premises (“Landlord’s Drawing Contribution”), but not the cost of any revisions thereto requested by Tenant or required by Landlord, and only to the extent such drawings reflect items from the Building standards and no portion of the Landlord’s Drawing Contribution, if any, remaining after the completion of the Expansion Improvements shall be available for use by Tenant. In addition to the Expansion Improvement Allowance, Landlord shall also provide an additional allowance of $460,000 (the “HVAC Allowance”) to be utilized by Tenant for the performance of certain HVAC work in the Phase 1 Expansion Premises. The HVAC Allowance shall be deemed part of the Phase 1 Expansion Premises Allowance for all purposes hereunder. Tenant shall utilize at least ninety percent (90%) of Phase 1 Expansion Premises Allowance for Expansion Improvements installed in the Phase 1 Expansion Premises and at least ninety percent (90%) of the Phase 2 Expansion Premises Allowance for Expansion Improvements installed in the Phase 2 Expansion Premises. Landlord shall not be obligated to pay a total amount which exceeds the Expansion Improvement Allowance, HVAC Allowance, and Landlord’s Drawing Contribution. Notwithstanding the foregoing or any contrary provision of the Lease, all Expansion Improvements shall be deemed Landlord’s property under the terms of the Lease. Any unused portion of the Phase 1 Expansion Premises Allowance remaining (and not otherwise designated

 

LandLord’s initials /s/ K.W.

     

Tenant’s initials /s/ B.R.

 

      CHINA BASIN
   EXHIBIT B    First Amendment
   4    Lyft, Inc.


as a Base Rent credit pursuant to Section 2.2.1.9 below) as of the last day of the fifteenth (15th) full calendar month following the Phase 1 Expansion Commencement Date, shall remain with Landlord and Tenant shall have no further right thereto. Any unused portion of the Phase 2 Expansion Premises Allowance remaining (and not otherwise designated as a Base Rent credit pursuant to Section 2.2.1.9 below) as of the last day of the fifteenth (15th) full calendar month following the Phase 2 Expansion Commencement Date, shall remain with Landlord and Tenant shall have no further right thereto. The outside dates referred to in the preceding two (2) sentences are each an “Outside Allowance Date”.

2.2 Disbursement of the Expansion Improvement Allowance.

2.2.1 Expansion Improvement Allowance Items. Except as otherwise set forth in this Expansion Premises Work Letter, the Expansion Improvement Allowance shall be disbursed by Landlord (each of which disbursements shall be made pursuant to Landlord’s disbursement process, including, without limitation, Landlord’s receipt of invoices for all costs and fees described herein) only for the following items and costs (collectively the “Expansion Improvement Allowance Items”):

2.2.1.1 Payment of the fees of the “Architect” and the “Engineers,” as those terms are defined in Section 3.1 of this Expansion Premises Work Letter, and payment of the fees incurred by, and the cost of documents and materials supplied by, Landlord and Landlord’s consultants in connection with the preparation and review of the “Construction Drawings,” as that term is defined in Section 3.1 of this Expansion Premises Work Letter, and the cost of computer and telecommunication cabling, reasonably incurred by Tenant, which payment for the foregoing items in this Section 2.2.1.1 shall not exceed an aggregate amount equal to $4.00 per rentable square foot of the entire Expansion Premises;

2.2.1.2 The payment of plan check, permit and license fees relating to construction of the Expansion Improvements;

2.2.1.3 The cost of construction of the Expansion Improvements, including, without limitation, costs of installing submeters to monitor the electricity usage in the Expansion Premises pursuant to Section 6.1.2 of the Lease, testing and inspection costs, after-hours and above-standard freight elevator usage, hoisting and trash removal costs, and contractors’ fees and general conditions;

2.2.1.4 Other than the Code Work which is Landlord’s responsibility as outlined in Section 1.3 above, the cost of any changes in the Base Building when such changes are required by the Construction Drawings (including if such changes are due to the fact that such work is prepared on an unoccupied basis), such cost to include all direct architectural and/or engineering fees and expenses incurred in connection therewith, but excluding any costs that are Landlord’s obligation pursuant to the terms of Section 1 of this Expansion Premises Work Letter;

2.2.1.5 The cost of any changes to the Construction Drawings or Expansion Improvements required by all applicable building codes (the “Code”), but excluding any costs that are Landlord’s obligation pursuant to the terms of Section 1 of this Expansion Premises Work Letter;

 

LandLord’s initials /s/ K.W.

     

Tenant’s initials /s/ B.R.

 

      CHINA BASIN
   EXHIBIT B    First Amendment
   5    Lyft, Inc.


2.2.1.6 The cost of the “Coordination Fee,” as that term is defined in Section 4.2.2.1 of this Expansion Premises Work Letter;

2.2.1.7 Sales and use taxes;

2.2.1.8 All other costs to be expended by Landlord in connection with the construction of the Expansion Improvements; and

2.2.1.9 Following the completion of the Expansion Improvements (determined separately with respect to each increment of the Expansion Premises) and prior to the applicable Outside Allowance Date, Tenant shall have the right, exercisable by written notice to Landlord, to elect to use the unused amount of the applicable Expansion Improvement Allowance to receive a credit against future installments of monthly Base Rent coming due under the Lease, as amended, applicable to the applicable Expansion Premises; provided, however, the total amount of such Base Rent credit shall not exceed Ten Dollars ($10.00) per rentable square foot of the applicable Expansion Premises, and, as determined on a monthly installment basis, such credit shall not exceed fifty percent (50%) of the Base Rent otherwise due and owing for such month. Any Base Rent credit under this Section 2.2.1.9 shall be applied to the Base Rent due promptly following the expiration of the Base Rent abatement period described in Section 5 pertaining to the applicable Expansion Premises.

2.2.2 Disbursement of Expansion Improvement Allowance. At Tenant’s option, Landlord shall (i) make a lump sum disbursement of the Expansion Improvement Allowance for the Expansion Improvement Allowance Items, following completion of the Expansion Improvements and Landlord’s receipt of the items specified below applicable to release of the “Final Retention” or (ii) make multiple disbursements, not more than once per month, of the Expansion Improvement Allowance for Expansion Improvement Allowance Items and shall authorize the release of monies as follows. Tenant shall make such election prior to requesting any disbursement of the Expansion Improvement Allowance.

2.2.2.1 Monthly Disbursements. If Tenant elects to receive multiple disbursements of the Expansion Improvement Allowance, on or before the twentieth (20th) day of any calendar month, during the construction of the Expansion Improvements (or such other date as Landlord may designate), Tenant shall deliver to Landlord: (i) a request for payment of the “Contractor,” as that term is defined in Section 4.1.1 of this Expansion Premises Work Letter, approved by Tenant, in a form to be provided by Landlord, showing the schedule, by trade, of percentage of completion of the Expansion Improvements in the Expansion Premises, detailing the portion of the work completed and the portion not completed; (ii) invoices from all of “Tenant’s Agents,” as that term is defined in Section 4.1.2 of this Expansion Premises Work Letter, for labor rendered and materials delivered to the Expansion Premises; (iii) executed mechanic’s lien releases from all of Tenant’s Agents which shall comply with the appropriate provisions, as reasonably determined by Landlord, of California Civil Code Sections 8132, 8134,

 

LandLord’s initials /s/ K.W.

     

Tenant’s initials /s/ B.R.

 

      CHINA BASIN
   EXHIBIT B    First Amendment
   6    Lyft, Inc.


8136 and 8138; and (iv) all other information reasonably requested by Landlord. Tenant’s request for payment shall be deemed Tenant’s acceptance and approval of the work furnished and/or the materials supplied as set forth in Tenant’s payment request. Thereafter, Landlord shall deliver a check to Tenant made jointly payable to Contractor and Tenant in payment of the lesser of: (A) the amounts so requested by Tenant, as set forth in this Section 2.2.2.1, above, less a ten percent (10%) retention (the aggregate amount of such retentions to be known as the “Final Retention”), and (B) the balance of any remaining available portion of the Expansion Improvement Allowance (not including the Final Retention), provided that Landlord does not reasonably dispute any request for payment based on non-compliance of any work with the “Approved Working Drawings,” as that term is defined in Section 3.4 below, or due to any substandard work, or for any other reason. Landlord’s payment of such amounts shall not be deemed Landlord’s approval or acceptance of the work furnished or materials supplied as set forth in Tenant’s payment request.

2.2.2.2 Final Retention. Subject to the provisions of this Expansion Premises Work Letter, a check for the Final Retention payable to Tenant shall be delivered by Landlord to Tenant following the completion of construction of the Phase 1 Expansion Premises or the Phase 2 Expansion Premises, as the case may be, provided that (i) Tenant delivers to Landlord properly executed mechanic’s lien releases in compliance with both California Civil Code Section 8134 and Section 8138, (ii) Landlord has reasonably determined that no substandard work exists which adversely affects the mechanical, electrical, plumbing, heating, ventilating and air conditioning, life-safety or other systems of the Building, the curtain wall of the Building, the structure or exterior appearance of the Building, or any other tenant’s use of such other tenant’s leased premises in the Building, and (iii) Architect delivers to Landlord a certificate, in a form reasonably acceptable to Landlord, certifying that the construction of the Expansion Improvements in the Phase 1 Expansion Premises or the Phase 2 Expansion Premises, as the case may be, has been substantially completed.

2.2.2.3 Other Terms. Landlord shall only be obligated to make disbursements from the Expansion Improvement Allowance to the extent costs are incurred by Tenant for Expansion Improvement Allowance Items.

2.3 Building Standards. Landlord has established or may establish specifications for certain Building standard components to be used in the construction of the Expansion Improvements in the Expansion Premises. The quality of Expansion Improvements shall be equal to or of greater quality than the quality of such Building standards, provided that Landlord may, at Landlord’s option, require the Expansion Improvements to comply with certain Building standards. Landlord may make changes to said specifications for Building standards from time to time upon no less than thirty (30) days prior written notice to Tenant; provided, however, such changes shall not apply to any elements of the Expansion Improvements that were previously approved by Landlord.

2.4 Removal Requirements. Tenant’s removal requirements with respect to the Expansion Improvements are set forth in Section 8.5 of the Lease, as amended by Section 12 of this First Amendment, including Tenant’s right to request that Landlord waive certain removal requirements pursuant to the terms thereof.

 

LandLord’s initials /s/ K.W.

     

Tenant’s initials /s/ B.R.

 

      CHINA BASIN
   EXHIBIT B    First Amendment
   7    Lyft, Inc.


SECTION 3

CONSTRUCTION DRAWINGS

3.1 Selection of Architect/Construction Drawings. Tenant shall retain the architect/space planner designated by Tenant and reasonably approved by Landlord (the “Architect”) to prepare the “Construction Drawings,” as that term is defined in this Section 3.1. Landlord hereby approves Studio as the Architect. Tenant shall retain the engineering consultants designated by Tenant and reasonably approved by Landlord (the “Engineers”) to prepare all plans and engineering working drawings relating to the structural, mechanical, electrical, plumbing, HVAC, lifesafety, and sprinkler work in the Expansion Premises, which work is not part of the Base Building. The plans and drawings to be prepared by Architect and the Engineers hereunder shall be known collectively as the “Construction Drawings.” All Construction Drawings shall be subject to Landlord’s approval, such approval not to be unreasonably withheld, conditioned or delayed. Tenant and Architect shall verify, in the field, the dimensions and conditions as shown on the relevant portions of the Base Building plans, and Tenant and Architect shall be solely responsible for the same, and Landlord shall have no responsibility in connection therewith. Landlord’s review of the Construction Drawings as set forth in this Section 3, shall be for its sole purpose and shall not imply Landlord’s review of the same, or obligate Landlord to review the same, for quality, design, Code compliance or other like matters. Accordingly, notwithstanding that any Construction Drawings are reviewed by Landlord or its space planner, architect, engineers and consultants, and notwithstanding any advice or assistance which may be rendered to Tenant by Landlord or Landlord’s space planner, architect, engineers, and consultants, Landlord shall have no liability whatsoever in connection therewith and shall not be responsible for any omissions or errors contained in the Construction Drawings, and Tenant’s waiver and indemnity set forth in the Lease (as amended) shall specifically apply to the Construction Drawings.

3.2 Final Space Plan. Tenant shall supply Landlord with one PDF copy signed by Tenant of its final space plan for the Expansion Premises. The final space plan (the “Final Space Plan”) shall include a layout and designation of all offices, rooms and other partitioning, their intended use, and equipment to be contained therein. Such Final Space Plan shall be approved by Landlord, which approval shall not be unreasonably withheld, conditioned or delayed; provided, however, without limitation as to other reasonable grounds for withholding consent, it shall be deemed reasonable for Landlord to withhold its consent to any proposed Expansion Improvements or aspect of the Final Space Plan in the event the same (i) require, or might reasonably require, or give rise to governmentally required changes to the Base Building, (ii) have an adverse effect on the structural integrity of the Building; (iii) are not in compliance with Code; (iv) have an adverse effect on the systems and equipment of the Building; (v) have an effect on the exterior appearance of the Building; or (vi) cause unreasonable interference with the normal and customary office operations of any other tenant in the Building (individually or

 

LandLord’s initials /s/ K.W.

     

Tenant’s initials /s/ B.R.

 

      CHINA BASIN
   EXHIBIT B    First Amendment
   8    Lyft, Inc.


collectively, a “Design Problem”). Landlord may request clarification or more specific drawings for special use items not included in the Final Space Plan. Landlord shall advise Tenant within five (5) business days after Landlord’s receipt of the Final Space Plan for the Expansion Premises if the same is unsatisfactory or incomplete in any respect. If Tenant is so advised, Tenant shall promptly cause the Final Space Plan to be revised to correct any deficiencies or other matters Landlord may reasonably require. If Landlord fails to notify Tenant of Landlord’s approval or disapproval of any such Final Space Plan within such five (5) business day period, Tenant shall have the right to provide Landlord with a second written request for approval (a “Second Request”) that specifically identifies the Final Space Plan and contains the following statement in bold and capital letters: “THIS IS A SECOND REQUEST FOR APPROVAL PURSUANT TO THE PROVISIONS OF SECTION 3.2 OF THE WORK LETTER ATTACHED TO THE FIRST AMENDMENT TO LEASE. IF LANDLORD FAILS TO RESPOND WITHIN THREE (3) BUSINESS DAYS AFTER RECEIPT OF THIS NOTICE, THEN LANDLORD SHALL BE DEEMED TO HAVE APPROVED THE FINAL SPACE PLAN.” If Landlord fails to respond to such Second Request within three (3) business days after receipt by Landlord, the Final Space Plan in question shall be deemed approved by Landlord.

3.3 Final Working Drawings. After the Final Space Plan has been approved (or deemed approved) by Landlord, Tenant shall supply the Engineers with a complete listing of standard and non-standard equipment and specifications, including, without limitation, fire-suppression system requirements, B.T.U. calculations, electrical requirements and special electrical receptacle requirements for the Expansion Premises, to enable the Engineers and the Architect to complete the “Final Working Drawings” (as that term is defined below) in the manner as set forth below. Upon the approval of the Final Space Plan by Landlord and Tenant, Tenant shall promptly cause the Architect and the Engineers to complete the architectural and engineering drawings for the Expansion Premises, and Architect shall compile a fully coordinated set of architectural, structural, mechanical, electrical and plumbing working drawings in a form which is complete to allow subcontractors to bid on the work and to obtain all applicable permits (collectively, the “Final Working Drawings”) and shall submit the same to Landlord for Landlord’s approval; however, Tenant shall have the ability to submit architectural and engineered drawings at separate times, all subject to the timelines outlined below. Tenant shall supply Landlord with one (1) copy signed by Tenant (and three (3) additional unsigned copies as necessary for review) of such Final Working Drawings. Such Final Working Drawings shall be approved by Landlord, which approval shall not be unreasonably withheld, conditioned or delayed; provided, however, without limitation as to other reasonable grounds for withholding consent, it shall be deemed reasonable for Landlord to withhold its consent to any proposed Expansion Improvements or aspect of the Final Working Drawings in the event the same causes a Design Problem. Landlord shall advise Tenant within ten (10) business days after Landlord’s receipt of the Final Working Drawings for the Expansion Premises if the same is unsatisfactory or incomplete in any respect. If Tenant is so advised, Tenant shall promptly cause the Final Working Drawings to be revised in accordance with such review and any disapproval of Landlord in connection therewith. If Landlord fails to notify Tenant of Landlord’s approval or disapproval of any such Final Working Drawings within such ten (10) business day period,

 

LandLord’s initials /s/ K.W.

     

Tenant’s initials /s/ B.R.

 

      CHINA BASIN
   EXHIBIT B    First Amendment
   9    Lyft, Inc.


Tenant shall have the right to provide Landlord with a second written request for approval (a “Working Drawing Second Request”) that specifically identifies the Final Working Drawings and contains the following statement in bold and capital letters: “THIS IS A SECOND REQUEST FOR APPROVAL PURSUANT TO THE PROVISIONS OF SECTION 3.3 OF THE WORK LETTER ATTACHED TO THE FIRST AMENDMENT TO LEASE. IF LANDLORD FAILS TO RESPOND WITHIN FIVE (5) BUSINESS DAYS AFTER RECEIPT OF THIS NOTICE, THEN LANDLORD SHALL BE DEEMED TO HAVE APPROVED THE FINAL WORKING DRAWINGS.” If Landlord fails to respond to such Working Drawing Second Request within five (5) business days after receipt by Landlord, the Final Working Drawings in question shall be deemed approved by Landlord. Subject to Landlord’s obligation to perform the Code Work, if the Final Working Drawings or any amendment thereof or supplement thereto shall require alterations in the Base Building (as contrasted with the Expansion Improvements), and if Landlord in its sole and exclusive discretion agrees to any such alterations, and notifies Tenant of the need and cost for such alterations, then Tenant may elect to either: (i) value engineer the Final Working Drawings so as to reduce or eliminate such cost, or (ii) pay the cost of such required changes in advance upon receipt of notice thereof, and if Tenant elects to pay such costs for the required change, then Tenant shall also pay all direct architectural and/or engineering fees in connection with such Base Building changes, plus one and one-half percent (112%) of such direct costs for Landlord’s servicing and overhead.

3.4 Approved Working Drawings. The Final Working Drawings shall be approved by Landlord (the “Approved Working Drawings”) prior to the commencement of construction of the Expansion Premises by Tenant. After approval (or deemed approval) by Landlord of the Final Working Drawings, Tenant may submit the same to the appropriate municipal authorities for all applicable building permits. Tenant hereby agrees that neither Landlord nor Landlord’s consultants shall be responsible for obtaining any building permit or certificate of occupancy for the Expansion Premises and that obtaining the same shall be Tenant’s responsibility; provided, however, that Landlord shall cooperate with Tenant in executing permit applications and performing other ministerial acts reasonably necessary to enable Tenant to obtain any such permit or certificate of occupancy. No changes, modifications or alterations in the Approved Working Drawings may be made without the prior written consent of Landlord, which consent may not be unreasonably withheld.

3.5 Tenant’s Plans. Landlord acknowledges and agrees that any architectural plans, layouts, and drawings (individually and collectively, “Lyft Drawings”) may be used by Landlord solely in connection with and for the build-out of the Expansion Premises and future reference or use as may be required in the normal course of owning and operating a commercial office building, and for no other purpose. Nothing in the Lease or this First Amendment shall be construed as granting any rights under any copyright or other intellectual property right of any nature of Tenant in and to the Lyft Drawings, and Landlord acknowledges that Landlord has no ownership rights to the Lyft Drawings.

 

LandLord’s initials /s/ K.W.

     

Tenant’s initials /s/ B.R.

 

      CHINA BASIN
   EXHIBIT B    First Amendment
   10    Lyft, Inc.


3.6 Change Orders. In the event Tenant desires to make any material changes to the Approved Working Drawings, Tenant shall deliver written notice (the “Drawing Change Notice”) of the same to Landlord (which Landlord may require to be on a standard AIA Change Order form), setting forth in detail the proposed changes (the “Tenant Change”) Tenant desires to make to the Approved Working Drawings. Within three (3) business days following receipt of a Drawing Change Notice, Landlord shall deliver written notice to Tenant of either (i) Landlord’s approval of the proposed Tenant Change, or (ii) its disapproval of the proposed Tenant Change (not to be unreasonably withheld, conditioned or delayed, in accordance with Landlord’s rights under Section 3.3 of this Expansion Premises Work Letter) specifying in reasonably sufficient detail the reasons for Landlord’s disapproval. If Landlord fails to notify Tenant of Landlord’s approval or disapproval of any such Tenant Change within such three (3) business day period, Tenant shall have the right to provide Landlord with a second written request for approval (a “Tenant Change Second Request”) that specifically identifies the Tenant Change and contains the following statement in bold and capital letters: “THIS IS A SECOND REQUEST FOR APPROVAL PURSUANT TO THE PROVISIONS OF SECTION 3.6 OF THE WORK LETTER ATTACHED TO THE FIRST AMENDMENT TO LEASE. IF LANDLORD FAILS TO RESPOND WITHIN FIVE (5) BUSINESS DAYS AFTER RECEIPT OF THIS NOTICE, THEN LANDLORD SHALL BE DEEMED TO HAVE APPROVED THE TENANT CHANGE.” If Landlord fails to respond to such Tenant Change Second Request within five (5) business days after receipt by Landlord, the Tenant change in question shall be deemed approved by Landlord. Tenant shall pay all additional costs and fees, if any, attributable to such Tenant Change, subject to application of the Expansion Improvement Allowance.

SECTION 4

CONSTRUCTION OF THE EXPANSION IMPROVEMENTS

4.1 Tenant’s Selection of Contractors.

4.1.1 The Contractor. A general contractor shall be retained by Tenant to construct the Expansion Improvements. Such general contractor (“Contractor”) shall be selected by Tenant and reasonably approved by Landlord. Landlord hereby approves NOVO Construction as the Contractor.

4.1.2 Tenant’s Agents. All subcontractors, laborers, materialmen, and suppliers used by Tenant (such subcontractors, laborers, materialmen, and suppliers, and the Contractor to be known collectively as “Tenant’s Agents”) must be approved in writing by Landlord, which approval shall not be unreasonably withheld or delayed. If Landlord does not approve any of Tenant’s proposed subcontractors, laborers, materialmen or suppliers, Tenant shall submit other proposed subcontractors, laborers, materialmen or suppliers for Landlord’s written approval. All of Tenant’s Agents retained directly by Tenant shall all be union labor in compliance with the then existing master labor agreements.

 

LandLord’s initials /s/ K.W.

     

Tenant’s initials /s/ B.R.

 

      CHINA BASIN
   EXHIBIT B    First Amendment
   11    Lyft, Inc.


4.2 Construction of Expansion Improvements by Tenant’s Agents.

4.2.1 Construction Contract; Cost Budget. Tenant shall engage the Contractor under a contract in a form reasonably approved by Landlord (collectively, the “Contract”). Landlord’s failure to respond to Tenant’s request for approval of the Contract within five (5) business days shall constitute Landlord’s deemed approval of the Contract. Prior to the commencement of the construction of the Expansion Improvements, Tenant shall provide a copy of the Contract to Landlord for its records. In addition, prior to the commencement of the construction of the Expansion Improvements, and after Tenant has accepted all bids for the Expansion Improvements, Tenant shall provide Landlord with a detailed breakdown, by trade, of the final costs to be incurred or which have been incurred, as set forth more particularly in Sections 2.2.1.1 through 2.2.1.9, above, in connection with the design and construction of the Expansion Improvements to be performed by or at the direction of Tenant or the Contractor, which costs form a basis for the amount of the Contract (the “Final Costs”).

4.2.1.1 Intentionally Deleted.

4.2.1.2 Lump Sum Disbursement Option. If Tenant elects to receive a lump sum disbursement of the Expansion Improvement Allowance pursuant to Section 2.2.2 above, then Tenant shall be solely responsible for the timely payment of all Final Costs (subject to reimbursement from the Expansion Improvement Allowance pursuant to Section 2.2.2 above), and in the event that, after the Final Costs have been delivered by Tenant to Landlord, the costs relating to the design and construction of the Expansion Improvements shall change, any additional costs necessary to such design and construction in excess of the Final Costs, shall be paid by out of its own funds.

4.2.2 Tenant’s Agents.

4.2.2.1 Landlord’s General Conditions for Tenant’s Agents and Improvement Work. Tenant’s and Tenant’s Agent’s construction of the Expansion Improvements shall comply with the following: (i) the Expansion Improvements shall be constructed in strict accordance with the Approved Working Drawings; (ii) Tenant’s Agents shall submit schedules of all work relating to the Expansion Improvements to Contractor and Contractor shall, within five (5) business days of receipt thereof, inform Tenant’s Agents of any changes which are necessary thereto, and Tenant’s Agents shall adhere to such corrected schedule; and (iii) Tenant shall abide by all rules made by Landlord’s Building manager with respect to the use of freight, loading dock and service elevators, storage of materials, coordination of work with the contractors of other tenants, and any other matter in connection with this Expansion Premises Work Letter, including, without limitation, the construction of the Expansion Improvements. Tenant shall pay a logistical coordination fee (the “Coordination Fee”) to Landlord in an amount equal to the product of (A) one and one-half percent (1.5%), and (B) the total amount of the hard costs of the Expansion Improvements, which Coordination Fee shall be for services relating to the coordination of the construction of the Expansion Improvements.

 

LandLord’s initials /s/ K.W.

     

Tenant’s initials /s/ B.R.

 

      CHINA BASIN
   EXHIBIT B    First Amendment
   12    Lyft, Inc.


4.2.2.2 Indemnity. Tenant’s indemnity of Landlord as set forth in the Lease (as amended) shall also apply with respect to any and all costs, losses, damages, injuries and liabilities related in any way to any act or omission of Tenant or Tenant’s Agents, or anyone directly or indirectly employed by any of them, or in connection with Tenant’s non-payment of any amount arising out of the Expansion Improvements and/or Tenant’s disapproval of all or any portion of any request for payment. Such indemnity by Tenant, as set forth in the Lease (as amended), shall also apply with respect to any and all costs, losses, damages, injuries and liabilities related in any way to Landlord’s performance of any ministerial acts (including execution of any documents pursuant to the last two sentences of Section 4.3 below) reasonably necessary (i) to permit Tenant to complete the Expansion Improvements, and (ii) to enable Tenant to obtain any building permit or certificate of occupancy for the Expansion Premises. The foregoing indemnity shall not apply to claims to the extent caused by the willful misconduct of Landlord, its member partners, shareholders, officers, directors, or employees.

4.2.2.3 Requirements of Tenant’s Agents. Each of Tenant’s Agents shall guarantee to Tenant and for the benefit of Landlord that the portion of the Expansion Improvements for which it is responsible shall be free from any defects in workmanship and materials for a period of not less than one (1) year from the date of completion thereof. Each of Tenant’s Agents shall be responsible for the replacement or repair, without additional charge, of all work done or furnished in accordance with its contract that shall become defective within one (1) year after the later to occur of (i) completion of the work performed by such contractor or subcontractors and (ii) the applicable Expansion Commencement Date. The correction of such work shall include, without additional charge, all additional expenses and damages incurred in connection with such removal or replacement of all or any part of the Expansion Improvements, and/or the Building and/or common areas that may be damaged or disturbed thereby. All such warranties or guarantees as to materials or workmanship of or with respect to the Expansion Improvements shall be contained in the Contract or subcontract and shall be written such that such guarantees or warranties shall inure to the benefit of both Landlord and Tenant, as their respective interests may appear, and can be directly enforced by either. Tenant covenants to give to Landlord any assignment or other assurances which may be necessary to effect such right of direct enforcement.

4.2.2.4 Insurance Requirements.

4.2.2.4.1 General Coverages. All of Tenant’s Agents shall carry worker’s compensation insurance covering all of their respective employees, and shall also carry public liability insurance, including property damage, all with limits, in form and with companies as are required to be carried by Tenant as set forth in the Lease (as amended).

4.2.2.4.2 Special Coverages. Tenant shall cause its general contractor to carry “Builder’s All Risk” insurance in an amount approved by Landlord covering the construction of the Expansion Improvements, and such other insurance as Landlord may require, it being understood and agreed that the Expansion Improvements shall be insured by Tenant pursuant to the Lease (as amended) immediately upon completion thereof. Such

 

LandLord’s initials /s/ K.W.

     

Tenant’s initials /s/ B.R.

 

      CHINA BASIN
   EXHIBIT B    First Amendment
   13    Lyft, Inc.


insurance shall be in amounts and shall include such extended coverage endorsements as may be reasonably required by Landlord including, but not limited to, the requirement that all of Tenant’s Agents shall carry excess liability and Products and Completed Operation Coverage insurance, each in amounts not less than $5,000,000 per incident, $5,000,000 in aggregate, and in form and with companies as are required to be carried by Tenant as set forth in the Lease (as amended).

4.2.2.4.3 General Terms. Certificates for all insurance carried pursuant to this Section 4.2.2.4 shall be delivered to Landlord before the commencement of construction of the Expansion Improvements and before the Contractor’s equipment is moved onto the site. Tenant will give Landlord thirty (30) days prior written notice of any cancellation or lapse of the effective date or any reduction in the amounts of such insurance. In the event that the Expansion Improvements are damaged by any cause during the course of the construction thereof, Tenant shall immediately repair the same at Tenant’s sole cost and expense. Tenant’s Agents shall maintain all of the foregoing insurance coverage in force until the Expansion Improvements are fully completed and accepted by Landlord, except for any Products and Completed Operation Coverage insurance required by Landlord, which is to be maintained for ten (10) years following completion of the work and acceptance by Landlord and Tenant. All policies carried under this Section 4.2.2.4 shall insure Landlord and Tenant, as their interests may appear, as well as Contractor and Tenant’s Agents. All insurance, except Workers’ Compensation, maintained by Tenant’s Agents shall preclude subrogation claims by the insurer against anyone insured thereunder. Such insurance shall provide that it is primary insurance as respects the owner and that any other insurance maintained by owner is excess and noncontributing with the insurance required hereunder. The requirements for the foregoing insurance shall not derogate from the provisions for indemnification of Landlord by Tenant under Section 4.2.2.2 of this Expansion Premises Work Letter.

4.2.3 Governmental Compliance. The Expansion Improvements shall comply in all respects with the following: (i) the Code and other state, federal, city or quasi-governmental laws, codes, ordinances and regulations (specifically including, without limitation, any OSHA requirements) as each may apply according to the rulings of the controlling public official, agent or other person; (ii) applicable standards of the American Insurance Association (formerly, the National Board of Fire Underwriters) and the National Electrical Code; and (iii) building material manufacturer’s specifications. In the event any of the Expansion Improvements require or give rise to governmentally required changes to the Base Building (specifically including, without limitation, the installation of any venting or other air-removal/circulation system), then Landlord shall notify Tenant of the need and cost for such changes, and Tenant may elect to either: (A) value engineer the Final Working Drawings so as to reduce or eliminate such cost, (B) pay the cost of such required changes in advance upon receipt of notice thereof, and if Tenant elects to pay such costs for the required change, then Tenant shall also pay all direct architectural and/or engineering fees in connection with such Base Building changes, plus one and one-half percent (112%) of such direct costs for Landlord’s servicing and overhead.

 

LandLord’s initials /s/ K.W.

     

Tenant’s initials /s/ B.R.

 

      CHINA BASIN
   EXHIBIT B    First Amendment
   14    Lyft, Inc.


4.2.4 Inspection by Landlord. Landlord shall have the right to inspect the Expansion Improvements at all times, provided however, that Landlord’s failure to inspect the Expansion Improvements shall in no event constitute a waiver of any of Landlord’s rights hereunder nor shall Landlord’s inspection of the Expansion Improvements constitute Landlord’s approval of the same. Should Landlord disapprove any portion of the Expansion Improvements, Landlord shall notify Tenant in writing of such disapproval and shall specify the items disapproved. Any defects or deviations in, and/or disapproval by Landlord of, the Expansion Improvements shall be rectified by Tenant at no expense to Landlord, provided however, that in the event Landlord determines that a defect or deviation exists or disapproves of any matter in connection with any portion of the Expansion Improvements and such defect, deviation or matter might adversely affect the mechanical, electrical, plumbing, heating, ventilating and air conditioning or life-safety systems of the Building, the structure or exterior appearance of the Building or any other tenant’s use of such other tenant’s leased premises, Landlord may, upon three (3) business days prior written notice to take such action as Landlord reasonably deems necessary, at Tenant’s expense and without incurring any liability on Landlord’s part, to correct any such defect, deviation and/or matter, including, without limitation, causing the cessation of performance of the construction of the Expansion Improvements until such time as the defect, deviation and/or matter is corrected to Landlord’s reasonable satisfaction.

4.2.5 Meetings. Within thirty (30) days following the execution of this First Amendment, or as soon as practical thereafter, Tenant shall hold weekly meetings at a reasonable time, with the Architect and the Contractor regarding the progress of the preparation of Construction Drawings and the construction of the Expansion Improvements, which meetings shall be held at a location reasonably acceptable to Landlord, and Landlord and/or its agents shall receive prior notice of, and shall have the right to attend, all such meetings, and, upon Landlord’s request, certain of Tenant’s Agents shall attend such meetings. In addition, minutes shall be taken at all such meetings, a copy of which minutes shall be promptly delivered to Landlord. Following commencement of construction of the Expansion Improvements, one such meeting each month shall include the review of Contractor’s current request for payment.

4.3 Notice of Completion; Copy of Record Set of Plans. Within ten (10) business days after completion of construction of the Expansion Improvements, Tenant shall cause a Notice of Completion to be recorded in the office of the Recorder of the county in which the Building is located in accordance with Section 8182 of the Civil Code of the State of California or any successor statute, and shall furnish a copy thereof to Landlord upon such recordation. If Tenant fails to do so, Landlord may execute and file the same as Tenant’s agent for such purpose, at Tenant’s sole cost and expense. At the conclusion of construction, (i) Tenant shall cause the Architect and Contractor (A) to update the Approved Working Drawings as necessary to reflect all changes made to the Approved Working Drawings during the course of construction, (B) to certify to the best of their knowledge that the “record-set” of as-built drawings are true and correct, which certification shall survive the expiration or termination of the Lease (as amended), and (C) to deliver to Landlord two (2) electronic CAD’s and two (2) full-size sets of copies of such record set of drawings within ninety (90) days following issuance of a certificate of occupancy for the Expansion Premises, and (ii) Tenant shall deliver to Landlord a copy of all

 

LandLord’s initials /s/ K.W.

     

Tenant’s initials /s/ B.R.

 

      CHINA BASIN
   EXHIBIT B    First Amendment
   15    Lyft, Inc.


warranties, guaranties, and operating manuals and information relating to the improvements, equipment, and systems in the Expansion Premises. Within fifteen (15) days after request by Tenant following the substantial completion of the Tenant Improvements, Landlord will acknowledge its approval of the Expansion Improvements (provided that such approval has been granted) by placing its signature on a Contractor’s Certificate of Substantial Completion fully executed by the Architect, Contractor and Tenant. Landlord’s approval shall not create any contingent liabilities or impose any responsibility for Landlord with respect to any latent quality, completeness, design sufficiency, means and methods of construction, Code compliance or other like matters that may arise subsequent to Landlord’s approval.

SECTION 5

MISCELLANEOUS

5.1 Tenant’s Representative. Tenant has designated Nancy Losey as its sole representative with respect to the matters set forth in this Expansion Premises Work Letter, who shall have full authority and responsibility to act on behalf of the Tenant as required in this Expansion Premises Work Letter.

5.2 Landlord’s Representative. Landlord has designated Ms. Jane Echlin as its sole representative with respect to the matters set forth in this Expansion Premises Work Letter, who, until further notice to Tenant, shall have full authority and responsibility to act on behalf of the Landlord as required in this Expansion Premises Work Letter.

5.3 Time of the Essence in This Expansion Premises Work Letter. Unless otherwise indicated, all references herein to a “number of days” shall mean and refer to calendar days. If any item requiring approval is timely disapproved by Landlord, the procedure for preparation of the document and approval thereof shall be repeated until the document is approved by Landlord.

5.4 Tenant’s Lease Default. Notwithstanding any provision to the contrary contained in the Lease or this Expansion Premises Work Letter, if any monetary or material non-monetary Default by Tenant under the Lease or default under this Expansion Premises Work Letter occurs at any time on or before the substantial completion of the Expansion Improvements and such default remains uncured five (5) days following Landlord’s notice of such default to Tenant, then in addition to all other rights and remedies granted to Landlord pursuant to the Lease, Landlord shall have the right to withhold payment of all or any portion of the Expansion Improvement Allowance and/or Landlord may, without any liability whatsoever, cause the cessation of construction of the Expansion Improvements (in which case, Tenant shall be responsible for any delay in the substantial completion of the Expansion Improvements and any costs occasioned thereby).

 

LandLord’s initials /s/ K.W.

     

Tenant’s initials /s/ B.R.

 

      CHINA BASIN
   EXHIBIT B    First Amendment
   16    Lyft, Inc.


SCHEDULE 1 TO EXHIBIT

DEPICTION OF ADDITIONAL CODE WORK

This Schedule 1 to Exhibit B is referenced in Section 1.3 of Exhibit B of that certain First Amendment to Office Lease dated as of September 27, 2017, by and between SPF CHINA BASIN HOLDINGS, LLC, a Delaware limited liability company, and LYFT, INC., a Delaware corporation.

 

LOGO

SCHEDULE 1 TO EXHIBIT

 

LandLord’s initials                             

  

 

      CHINA BASIN
   EXHIBIT B    First Amendment
   1    Lyft, Inc.


EXHIBIT C

CHINA BASIN

LOCATION OF EXTERIOR BUILDING SIGNAGE

This Exhibit C is referenced in Section 11 of that certain First Amendment to Office Lease dated as of September 27, 2017, by and between SPF CHINA BASIN HOLDINGS, LLC, a Delaware limited liability company, and LYFT, INC., a Delaware corporation.

 

LOGO

 

LandLord’s initials /s/ K.W.

     

Tenant’s initials /s/ B.R.

 

      CHINA BASIN
   EXHIBIT C    First Amendment
   1    Lyft, Inc.


SECOND AMENDMENT TO OFFICE LEASE

This SECOND AMENDMENT TO OFFICE LEASE (this “Second Amendment”) is made and entered into as of May 31, 2018 (“Effective Date”), by and between SPF CHINA BASIN HOLDINGS, LLC, a Delaware limited liability company (“Landlord”), and LYFT, INC., a Delaware corporation (“Tenant”).

R E C I T A L S :

A. Landlord and Tenant entered into that certain Office Lease dated April 8, 2016 (the “Original Lease”), whereby Landlord leases to Tenant and Tenant leases from Landlord those certain premises consisting of (i) approximately 25,783 rentable square feet of space (“RSF”) located in Suite 3000 on the third (3rd) floor of the “Wharfside Building,” located at 185 Berry Street, San Francisco, California (“Wharfside Building”), (ii) approximately 26,514 RSF located in Suite 500 on the fifth (5th) floor of the “Berry Street Building” located at 185 Berry Street, San Francisco, California (“Berry Street Building”), and (iv) approximately 41,430 RSF located in Suite 590 on the fifth (5th) floor of the Berry Street Building (collectively, the “Existing Premises”).

B. Landlord and Tenant entered into that certain First Amendment to Office Lease dated September 27, 2017 (the “First Amendment”), pursuant to which Landlord leases to Tenant and Tenant leases from Landlord the “Expansion Premises” which includes certain space consisting of (i) approximately 57,692 rentable square feet of space, commonly known as Suite 4000, on the fourth (4th) floor of the Wharfside Building, and (ii) approximately 16,801 rentable square feet of space, commonly known as Suite 550, on the fifth (5th) floor of the Berry Street Building. The Original Lease, as amended by the First Amendment is referred to herein collectively as the “Lease”. The Wharfside Building and Berry Street Building are each referred to herein as the “Building”, and collectively, as the “Buildings”.

C. Landlord and Tenant desire to further expand the Existing Premises and the Expansion Premises to include the following spaces.

(i) Suite 3700, containing approximately 5,399 RSF on the 3rd floor of the Wharfside Building (the “Suite 3700 Premises”),

(ii) Suite 6700, containing approximately 4,675 RSF on the 6th floor of the Wharfside Building (the “Suite 6700 Premises”),

(iii) Suite 4700, containing approximately 7,625 RSF on the 4th floor of the Wharfside Building (the “Suite 4700 Premises”), and

(iv) Suite 6600, containing approximately 6,179 RSF on the 6th floor of the Wharfside Building (the “Suite 6600 Premises”).


D. The Suite 3700 Premises, Suite 6700 Premises, Suite 4700 Premises and Suite 6600 Premises are delineated on Exhibit A attached hereto, and are referred to herein, collectively, as the “Additional Premises”. The Additional Premises, in the aggregate, contain 23,878 RSF.

E. In addition to the Additional Premises, Tenant may also, as provided in this Second Amendment, lease approximately 8,844 RSF on the 3rd floor of the Wharfside Building (the “3rd Floor Must Take Space), comprised of (i) Suite 3515, containing 6,803 RSF on the third floor of the Wharfside Building (“Must Take Premises North” or the “Suite 3515 Premises”) which is adjacent to Tenant’s existing Suite 3000 and Suite 3700, and (ii) Suite 3512, containing 2,041 RSF (“Must Take Premises South”) which is adjacent to Tenant’s existing Suite 3000. The 3rd Floor Must Take Space is delineated on Exhibit A attached hereto (and designated thereon as “Must Take South” and “Must Take North”).

F. In addition, Landlord and Tenant desire to make other modifications to the Lease, and in connection therewith, Landlord and Tenant desire to amend the Lease as hereinafter provided.

A G R E E M E N T :

NOW, THEREFORE, in consideration of the foregoing recitals and the mutual covenants contained herein, and for other good and valuable consideration, the receipt and sufficiency of which are hereby acknowledged, the parties hereto hereby agree as follows:

1. Capitalized Terms. All capitalized terms when used herein shall have the same meaning as is given such terms in the Lease unless expressly superseded by the terms of this Second Amendment.

2. Modification of Premises. Landlord represents that the rentable square footage of the Additional Premises and the 3rd Floor Must Take Space have been measured in accordance with BOMA (as defined in Section 1.4 of the Original Lease).

2.1. Suite 3700 Commencement Date. The “Suite 3700 Commencement Date” is the date that is four (4) months following the Suite 3700 Delivery Date. As used herein, the “Suite 3700 Delivery Date” shall mean the date on which Landlord delivers the Suite 3700 Premises to Tenant in the condition required hereunder, which Suite 3700 Delivery Date is anticipated to occur on the first business day following the full execution of this Second Amendment by Landlord and Tenant (the “Anticipated Suite 3700 Premises Delivery Date”). Except as specifically set forth in the Additional Premises Work Letter attached hereto as Exhibit B (the “Additional Premises Work Letter”), Landlord shall not be obligated to provide or pay for any improvement work or services related to the improvement of the Suite 3700 Premises, and Tenant shall accept the Suite 3700 Premises in its presently existing, “as-is” condition. Effective upon the Suite 3700 Commencement Date, the Premises shall be increased to include the Suite 3700 Premises. Except as provided in this Second Amendment, effective as of the Suite 3700 Commencement Date, the term “Premises” as used in the Lease shall mean, collectively, the Existing Premises and the Suite 3700 Premises.

 

      CHINA BASIN
      Second Amendment
   2    Lyft, Inc.


2.2. Suite 6700 Commencement Date. The “Suite 6700 Commencement Date” is the date that is four (4) months following the Suite 6700 Delivery Date. As used herein, the “Suite 6700 Delivery Date” shall mean the date on which Landlord delivers the Suite 6700 Premises to Tenant in the condition required hereunder, which Suite 6700 Delivery Date is anticipated to occur on the first business day following the full execution of this Second Amendment by Landlord and Tenant. Except as specifically set forth in the Additional Premises Work Letter, Landlord shall not be obligated to provide or pay for any improvement work or services related to the improvement of the Suite 6700 Premises, and Tenant shall accept the Suite 6700 Premises in its presently existing, “as-is” condition. Effective upon the Suite 6700 Commencement Date, the Premises shall be increased to include the Suite 6700 Premises. Except as provided in this Second Amendment, effective as of the Suite 6700 Commencement Date, the term “Premises” as used in the Lease shall mean, collectively, the Existing Premises, the Suite 3700 Premises, and the Suite 6700 Premises.

2.3. Suite 4700 Commencement Date. The “Suite 4700 Commencement Date” is the date that is six (6) months following the Suite 4700 Delivery Date. As used herein, the “Suite 4700 Delivery Date” shall mean the date on which Landlord delivers the Suite 4700 Premises to Tenant in the condition required hereunder, following the vacation and surrender of such space by the current tenant thereof, which Suite 4700 Delivery Date is anticipated to occur on or about July 1, 2018 (the “Anticipated Suite 4700 Premises Delivery Date”). Effective upon the Suite 4700 Commencement Date, the Premises shall be increased to include the Suite 4700 Premises. Except as specifically set forth in the Additional Premises Work Letter, Landlord shall not be obligated to provide or pay for any improvement work or services related to the improvement of the Suite 4700 Premises, and Tenant shall accept the Suite 4700 Premises in its presently existing, “as-is” condition. Except as provided in this Second Amendment, effective as of the Suite 4700 Commencement Date, the term “Premises” as used in the Lease shall mean, collectively, the Existing Premises, the Suite 3700 Premises, the Suite 6700 Premises, and the Suite 4700 Premises.

2.4. Suite 6600 Commencement Date. The “Suite 6600 Commencement Date” is the date that is four (4) months following the Suite 6600 Delivery Date. As used herein, the “Suite 6600 Delivery Date” shall mean the date on which Landlord delivers the Suite 6600 Premises to Tenant in the condition required hereunder, which Suite 6600 Delivery Date is anticipated to occur on March 1, 2019 (the “Anticipated Suite 6600 Premises Delivery Date”). Effective upon the Suite 6600 Commencement Date, the Premises shall be increased to include the Suite 6600 Premises. Except as specifically set forth in the Additional Premises Work Letter, Landlord shall not be obligated to provide or pay for any improvement work or services related to the improvement of the Suite 6600 Premises, and Tenant shall accept the Suite 6600 Premises in its presently existing, “as-is” condition. Except as provided in this Second Amendment, effective as of the Suite 6600 Commencement Date, the term “Premises” as used in the Lease shall mean, collectively, the Existing Premises, the Suite 3700 Premises, the Suite 6700 Premises, the Suite 4700 Premises, and the Suite 6600 Premises. The Suite 3700 Commencement Date, Suite 6700 Commencement Date, Suite 4700 Commencement Date, and Suite 6600 Commencement Date are each referred to herein as an “Additional Commencement Date”. The Suite 3700 Delivery Date, Suite 6700 Delivery Date, Suite 4700 Delivery Date and Suite 6600 Delivery Date are each referred to herein as an “Additional Delivery Date”.

 

      CHINA BASIN
      Second Amendment
   3    Lyft, Inc.


2.5. Beneficial Occupancy. Subject to the terms of this Section 2.5, if the Additional Improvements (as defined in Section 2.1 of the Additional Premises Work Letter) in any applicable Additional Premises are substantially completed prior to the applicable Additional Commencement Date, Tenant shall have the right thereafter to occupy such Additional Premises prior to the applicable Additional Commencement Date for the conduct of Tenant’s business; provided that (i) Tenant shall give Landlord at least five (5) days’ prior written notice of any occupancy of the applicable Additional Premises for the conduct of Tenant’s business, (ii) a temporary certificate of occupancy shall have been issued by the appropriate governmental authorities for the applicable Additional Premises to be occupied for the conduct of Tenant’s business should Tenant conduct any permittable Tenant Improvements within the Premises, (iii) Tenant has delivered to Landlord satisfactory evidence of the insurance coverage required to be carried by Tenant in accordance with Article 10 of the Lease with respect to the applicable Additional Premises, and (iv) except as provided hereinbelow, all of the terms and conditions of the Lease shall apply as though the applicable Additional Commencement Date had occurred (although the applicable Additional Commencement Date shall not actually occur until the occurrence of the same pursuant to the terms of the applicable Section 2.1, 2.2, 2.3 or 2.4) upon Tenant’s commencement of the conduct of its business in the applicable Additional Premises; provided, however, notwithstanding the foregoing, Tenant shall have no obligation to pay Base Rent attributable to the applicable Additional Premises, or Tenant’s Share of Direct Expenses attributable to the applicable Additional Premises during any such period prior to the applicable Additional Commencement Date that Tenant occupies the applicable Additional Premises.

2.6. Delivery. Tenant acknowledges that certain portions of the Additional Premises are currently occupied by third parties. Landlord will use commercially reasonable efforts to cause the respective Additional Delivery Dates to occur by the estimated dates as set forth above; provided, however, that following the scheduled expiration of any third party’s lease, if such third parties do not timely vacate its premises, Landlord shall use commercially reasonable efforts to regain possession of the subject increment of the Premises. If Landlord is unable for any reason to deliver possession of a portion of the Additional Premises to Tenant on any specific date, then Landlord shall not be subject to any liability for its failure to do so, and such failure shall not affect the validity of the Lease (as amended) or the obligations of Tenant hereunder.

3. Additional Premises Term. The lease terms for each increment of the Additional Premises as set forth below are each referred to herein as an “Additional Premises Term”.

3.1. Suite 3700 Term. The term of Tenant’s lease of the Suite 3700 Premises (the “Suite 3700 Term”) shall commence on the Suite 3700 Commencement Date and shall expire conterminously with Tenant’s Lease of the Existing Premises on August 31, 2025, unless sooner terminated as provided in the Lease, as hereby amended.

3.2. Suite 6700 Term. The term of Tenant’s lease of the Suite 6700 Premises (the “Suite 6700 Term”) shall commence on the Suite 6700 Commencement Date and shall expire conterminously with Tenant’s lease of the Existing Premises on August 31, 2025, unless sooner terminated as provided in the Lease, as hereby amended.

 

      CHINA BASIN
      Second Amendment
   4    Lyft, Inc.


3.3. Suite 4700 Term. The term of Tenant’s lease of the Suite 4700 Premises (the “Suite 4700 Term”) shall commence on the Suite 4700 Commencement Date and shall expire conterminously with Tenant’s Lease of the Existing Premises on August 31, 2025, unless sooner terminated as provided in the Lease, as hereby amended.

3.4. Suite 6600 Term. The term of Tenant’s lease of the Suite 6600 Premises (the “Suite 6600 Term”) shall commence on the Suite 6600 Commencement Date and shall expire conterminously with Tenant’s Lease of the Existing Premises on August 31, 2025, unless sooner terminated as provided in the Lease, as hereby amended.

4. Base Rent. Commencing on the Suite 3700 Commencement Date and continuing throughout the Suite 3700 Term, Tenant shall pay to Landlord monthly installments of Base Rent for the Suite 3700 Premises, Suite 6700 Premises, Suite 4700 Premises and Suite 6600 Premises as follows:

 

Date:

   Annual Base Rent      Monthly
Installment of
Base Rent
     Annual
Rental Rate
Per RSF
     Square
Footage
 

Suite 3700 Commencement Date and Suite 6700 Commencement Date through the date immediately preceding the Suite 4700 Commencement Date1

     N/A      $ 68,839.00      $ 82.00        10,074  

Suite 4700 Commencement Date through the date immediately preceding the Suite 6600 Commencement Date

     N/A      $ 120,943.17      $ 82.00        17,699  

Suite 6600 Commencement Date -March 31, 2019

     N/A      $ 163,166.33      $ 82.00        23,878  

April 1, 20192 – March 31, 2020

   $ 2,016,735.88      $ 168,061.32      $ 84.46        23,878  

April 1, 2020 – March 31, 2021

   $ 2,077,147.22      $ 173,095.60      $ 86.99        23,878  

April 1, 2021 – March 31, 2022

   $ 2,139,468.80      $ 178,289.07      $ 89.60        23,878  

April 1, 2022 – March 31, 2023

   $ 2,203,700.62      $ 183,641.72      $ 92.29        23,878  

April 1, 2023 – March 31, 2024

   $ 2,269,842.68      $ 189,153.56      $ 95.06        23,878  

April 1, 2024 – March 31, 2025

   $ 2,337,894.98      $ 194,824.58      $ 97.91        23,878  

April 1, 2025 – August 31, 2025

   $ 2,462,555.30      $ 205,212.94      $ 100.85        23,878  

 

1 

Provided however that if any increment of the Additional Premises has not been delivered by such date, then the Base Rent shall be adjusted accordingly.

2 

Provided however that if any increment of the Additional Premises has not been delivered by such date, then the Base Rent shall be adjusted accordingly.

 

      CHINA BASIN
      Second Amendment
   5    Lyft, Inc.


5. Rent Abatement.

5.1. Suite 3700 Premises. Provided that Tenant is not then in Default of the Lease, then Tenant shall have no obligation to pay the Base Rent and Tenant’s Share of Direct Expenses otherwise attributable to the Suite 3700 Premises during the first four (4) full calendar months of the Suite 3700 Term (the “Suite 3700 Abatement Period”). Landlord and Tenant acknowledge that the total amount of the Base Rent component of the abatement above equals $147,572.67 (i.e., $36,893.17 per month).

5.2. Suite 6700 Premises. Provided that Tenant is not then in Default of the Lease, then Tenant shall have no obligation to pay the Base Rent and Tenant’s Share of Direct Expenses otherwise attributable to the Suite 6700 Premises during the first four (4) full calendar months of the Suite 6700 Term (the “Suite 6700 Abatement Period”). Landlord and Tenant acknowledge that the total amount of the Base Rent component of the abatement above equals $127,783.33 (i.e., $31,945.83 per month).

5.3. Suite 4700 Premises. Provided that Tenant is not then in Default of the Lease, then Tenant shall have no obligation to pay the Base Rent and Tenant’s Share of Direct Expenses otherwise attributable to the Suite 4700 Premises during the first five (5) full calendar months of the Suite 4700 Term (the “Suite 4700 Abatement Period”). Landlord and Tenant acknowledge that the total amount of the Base Rent component of the abatement above equals $260,520.83 (i.e., $52,104.17 per month).

5.4. Suite 6600 Premises. Provided that Tenant is not then in Default of the Lease, then Tenant shall have no obligation to pay the Base Rent and Tenant’s Share of Direct Expenses otherwise attributable to the Suite 6600 Premises during the first three (3) full calendar months of the Suite 6600 Term (the “Suite 6600 Abatement Period”). Landlord and Tenant acknowledge that the total amount of the Base Rent component of the abatement above equals $129,202.89 (i.e., $42,223.17 for the 1st month, and $43,489.86 per month for the 2nd and 3rd months).

6. Tenant’s Share of Direct Expenses.

6.1. Suite 3700 Premises. Except as specifically set forth in this Section 6.1, commencing on the expiration of the Suite 3700 Abatement Period, Tenant shall pay Tenant’s Share of Direct Expenses in connection with the Suite 3700 Premises in accordance with the terms of Article 4 of the Lease, provided that with respect to the calculation of Tenant’s Share of Direct Expenses in connection with the Suite 3700 Premises, the following shall apply:

 

      CHINA BASIN
      Second Amendment
   6    Lyft, Inc.


6.1.1 Tenant’s Share shall equal 0.5879%; and

6.1.2 the Base Year shall be the calendar year 2018.

6.2. Suite 6700 Premises. Except as specifically set forth in this Section 6.2, commencing on the expiration of the Suite 6700 Abatement Period, Tenant shall pay Tenant’s Share of Direct Expenses in connection with the Suite 6700 Premises in accordance with the terms of Article 4 of the Lease, provided that with respect to the calculation of Tenant’s Share of Direct Expenses in connection with the Suite 6700 Premises, the following shall apply:

6.2.1 Tenant’s Share shall equal 0.5091%; and

6.2.2 the Base Year shall be the calendar year 2018.

6.3. Suite 4700 Premises. Except as specifically set forth in this Section 6.2, commencing on the expiration of the Suite 4700 Abatement Period, Tenant shall pay Tenant’s Share of Direct Expenses in connection with the Suite 4700 Premises in accordance with the terms of Article 4 of the Lease, provided that with respect to the calculation of Tenant’s Share of Direct Expenses in connection with the Suite 4700 Premises, the following shall apply:

6.3.1 Tenant’s Share shall equal 0.8303%; and

6.3.2 the Base Year shall be the calendar year 2019.

6.4. Suite 6600 Premises. Except as specifically set forth in this Section 6.2, commencing on the expiration of the Suite 6600 Abatement Period, Tenant shall pay Tenant’s Share of Direct Expenses in connection with the Suite 6600 Premises in accordance with the terms of Article 4 of the Lease, provided that with respect to the calculation of Tenant’s Share of Direct Expenses in connection with the Suite 6600 Premises, the following shall apply:

6.4.1 Tenant’s Share shall equal 0.7316%; and

6.4.2 the Base Year shall be the calendar year 2019.

7. 3rd Floor Must-Take Space. The Suite 3515 Premises is currently occupied by an existing tenant (the “Existing Tenant”) under a lease that is scheduled to expire on April 30, 2019. The Existing Tenant has a right to extend its lease of the Suite 3515 Premises. If the Existing Tenant does not elect to extend its lease of the Suite 3515 Premises, then Tenant shall lease the entire 3rd Floor Must Take Space. Landlord shall provide Tenant with prompt written notice of whether or not the Existing Tenant has exercised its right to extend its lease for the Suite 3515 Premises. If the Existing Tenant does not elect to extend its lease of the Suite 3515 Premises, then: (i) Landlord shall deliver the 3rd Floor Must Take Space to Tenant as soon as practicable following Existing Tenant’s vacation and surrender of the 3rd Floor Must Take Space (the date of such delivery the “3rd Floor Must Take Delivery Date”) and shall provide Tenant with no less than five (5) Business Days advance written notice of the anticipated 3rd Floor Must Take Delivery Date; (ii) the “3rd Floor Must Take Commencement Date” shall mean the date that is four (4) months following the 3rd Floor Must Take Delivery Date; (iii) effective as of the 3rd Floor Must Take Commencement Date, the Premises shall be increased to include the 3rd

 

      CHINA BASIN
      Second Amendment
   7    Lyft, Inc.


Floor Must Take Space and the term of Tenant’s lease of the 3rd Floor Must Take Space (the “3rd Floor Must Take Term”) shall commence on the 3rd Floor Must Take Commencement Date and shall expire conterminously with Tenant’s Lease of the Existing Premises on August 31, 2025, unless sooner terminated as provided in the Lease; (iv) Tenant’s lease of the 3rd Floor Must Take Space shall be on the same terms and conditions as Tenant’s lease of the Suite 6600 Premises (including, without limitation, the same Base Rent rate per rentable square foot as is payable for the Suite 6600 Premises); (v) Tenant shall receive a period of rent abatement for the 3rd Floor Must Take Space equal to the Suite 6600 Abatement Period, but pro-rated based on the respective length of the 3rd Floor Must Take Term; (vi) The Base Year applicable to the 3rd Floor Must Take Space shall be 2019, and Tenant’s Share applicable to the 3rd Floor Must Take Space shall be 1.0130%; and (vi) Tenant shall receive an improvement allowance for the 3rd Floor Must Take Space equal to the allowance provided for the Suite 6600 Premises (i.e., $50.00 per RSF), but pro-rated based on the respective length of the 3rd Floor Must Take Term. If the Existing Tenant does elect to extend its lease of Suite 3515, then the terms of this Section 7 shall be of no force or effect.

8. Parking. In addition to Tenant’s parking rights set forth in the Lease, effective as of the Suite 3700 Commencement Date and continuing throughout the entire Additional Term, Tenant shall be entitled to rent up to four (4) additional unreserved parking passes in total in connection with Tenant’s lease of all of the Additional Premises (the “Additional Parking Passes”). Except as set forth in this Section 8, Tenant such lease of Additional Parking Passes shall be in accordance with the provisions of Article 28 of the Lease.

9. Freight Elevator Shaft Space. Tenant acknowledges that there is an existing freight elevator and shaft running through portions of the Premises on the 4th and 5th floors (and through the 3rd Floor Must Take Space). Landlord may in the future elect to remove such elevator and shaft, and make the necessary improvements to the areas of the Building occupied by such elevator and shaft so as to create additional usable space in the Building (the “New Shaft Space”), all at Landlord’s sole cost and expense. Tenant agrees that if Landlord does elect to create the New Shaft Space that such New Shaft Space shall be added to the Premises on the same terms and conditions applicable to the portion of the Premises that are immediately adjacent to the New Shaft Space. In connection with Tenant’s lease of any New Shaft Space (i) the Lease Commencement Date for such space shall be the date which is four (4) months following the date on which such New Shaft Space is delivered to Tenant, and (ii) Tenant shall receive an improvement allowance equal to $80.00 per RSF of such New Shaft Space. Tenant shall pay Base Rent and Tenant’s Share of Direct Expenses with respect to the New Shaft Space at the same rates per RSF as are applicable to the portion of the Premises to which each portion of the New Shaft Space is added.

10. Electrical. Landlord acknowledges and agrees that Section 6.1.2 of the Original Lease [“Landlord shall provide adequate electrical wiring and facilities for connection to Building standard ceiling mounted lighting fixtures and incidental use equipment, i.e., 5 watts of connected load per usable square foot, provided that Tenant’s consumption of electricity does not exceed 2.4 watts/hour per usable square foot of the Premises per month, which electrical usage shall be subject to Applicable Laws and regulations, including Title 24.”] shall apply to each increment of the Additional Premises.

 

      CHINA BASIN
      Second Amendment
   8    Lyft, Inc.


11. Tenant’s Dogs; Indemnity. The number of Tenant’s Dogs allowed in the Premises shall not be increased as a result of Tenant’s lease of the Additional Premises. Tenant shall be liable for, and hereby agrees to indemnify, defend and hold the Landlord Parties (including without limitation, Landlord’s property manager) harmless from and against any and all claims, losses, costs (including reasonable attorney’s fees), suits and proceedings arising from any and all acts (including without limitation, biting or other bodily injury, damage to property, including property of any other tenant, subtenant, occupancy, licensee, invitee or employee, or of any Landlord Party, and including any such party’s dog or other pet) of, or the presence of, Tenant’s Dogs or any other pet or service animal or other animal brought into the Premises, the Building or the Project by Tenant or any Tenant Party (any such animal, a “Tenant Animal”) in or about the Premises, the Building or the Project. In the event that any Tenant Animal bites or otherwise injures any person or any other animal, Tenant must immediately cause such Tenant Animal to be removed from the Project, and such particular Tenant Animal shall thereafter be prevented and restricted from being brought to the Project.

12. Removal Obligations. Notwithstanding any provision to the contrary set forth in the Lease, as of the Effective Date, the term “Tenant Improvements” within the definition of “Specialty Improvements” in Section 8.5 of the Original Lease, shall include any Additional Improvements, and accordingly, Tenant shall not be required to remove any Additional Improvements upon the expiration or earlier termination of the Lease, unless the same would constitute Specialty Improvements. In addition, in the event that, at the time Tenant requests Landlord’s consent to any Additional Improvements, if Tenant also requests in writing a determination of whether Landlord will require restoration and/or removal of the particular Additional Improvements or portions thereof for which consent is being requested upon expiration or any earlier termination of the Lease (as amended), Landlord shall so notify Tenant along with Landlord’s consent (if such consent is given).

13. Letter of Credit. Tenant shall not be required to provide any additional letter of credit or security deposit in connection with this Second Amendment.

14. Brokers. Landlord and Tenant hereby warrant to each other that they have had no dealings with any real estate broker or agent in connection with the negotiation of this Second Amendment other than McCarthy Cook & Co. and Jones Lang LaSalle (the “Brokers”), and that they know of no other real estate broker or agent who is entitled to a commission in connection with this Second Amendment. Landlord shall pay the brokerage commissions owing to the Brokers in connection with the transaction contemplated by this Second Amendment pursuant to the terms of separate written agreements between Landlord and each of the Brokers. Each party agrees to indemnify and defend the other party against and hold the other party harmless from and against any and all claims, demands, losses, liabilities, lawsuits, judgments, and costs and expenses (including, without limitation, reasonable attorneys’ fees) with respect to any leasing commission or equivalent compensation alleged to be owing on account of the indemnifying party’s dealings with any real estate broker or agent, other than the Brokers. The terms of this Section 14 shall survive the expiration or earlier termination of the term of the Lease, as hereby amended.

15. CASp. For purposes of Section 1938(a) of the California Civil Code, Landlord hereby discloses to Tenant, and Tenant hereby acknowledges, that neither the Additional

 

      CHINA BASIN
      Second Amendment
   9    Lyft, Inc.


Premises nor the 3rd Floor Must Take Space have undergone inspection by a Certified Access Specialist (CASp). In addition, the following notice is hereby provided pursuant to Section 1938(e) of the California Civil Code: “A Certified Access Specialist (CASp) can inspect the subject premises and determine whether the subject premises comply with all of the applicable construction-related accessibility standards under state law. Although state law does not require a CASp inspection of the subject premises, the commercial property owner or lessor may not prohibit the lessee or tenant from obtaining a CASp inspection of the subject premises for the occupancy or potential occupancy of the lessee or tenant, if requested by the lessee or tenant. The parties shall mutually agree on the arrangements for the time and manner of the CASp inspection, the payment of the fee for the CASp inspection, and the cost of making any repairs necessary to correct violations of construction-related accessibility standards within the premises.” The terms of Section 16 of the First Amendment shall continue to apply with respect to the foregoing.

16. Third Party Approvals. Landlord shall be responsible, at Landlord’s sole cost and expense, for obtaining any third party approvals required for Landlord to enter into this Second Amendment, including, without limitation, the approval of HSBC Bank USA, National Association.

17. No Further Modification. Except as set forth in this Second Amendment, all of the terms and provisions of the Lease shall apply with respect to the Additional Premises and shall remain unmodified and in full force and effect.

18. Counterparts and Electronic Signatures. This Second Amendment may be executed in one or more counterparts, each of which shall be an original, and all of which together shall constitute a single instrument. Further, the parties agree that this Second Amendment may be signed and/or transmitted by electronic mail of a .PDF document or electronic signature (e.g., DocuSign or similar electronic signature technology) and thereafter maintained in electronic form, and that such electronic record shall be valid and effective to bind the party so signing as a paper copy bearing such party’s hand-written signature. The parties further consent and agree that the electronic signatures appearing on this Second Amendment shall be treated, for purpose of validity, enforceability and admissibility, the same as hand-written signatures.

[signatures follow on next page]

 

      CHINA BASIN
      Second Amendment
   10    Lyft, Inc.


IN WITNESS WHEREOF, this Second Amendment has been executed as of the day and year first above written.

 

“Landlord”:

SPF CHINA BASIN HOLDINGS, LLC,

a Delaware limited liability company

By:

 

SPF China Basin Acquisition, LLC,

 

a Delaware limited liability company

 

Managing Member

 

By:

 

Commingled Pension Trust Fund (Strategic

   

Property) of JPMorgan Chase Bank, N.A.,

   

Sole Member

   

By:

 

JPMorgan Chase Bank, N.A.,

     

Trustee

   

By:

 

/s/ Karen M. Wilbrecht

     

Karen M. Wilbrecht,

     

Executive Director

     

Date: 5/31/18

“Tenant”:

LYFT, INC.,

a Delaware corporation

By:

 

/s/ Brian Roberts

 

Name: Brian Roberts

 

Its: CFO

 
 

Date: May 29, 2018

 

   11   


EXHIBIT A

CHINA BASIN

OUTLINE OF ADDITIONAL PREMISES AND MUST TAKE SPACE

This Exhibit A is referenced in the Recital D of that certain Second Amendment to Office Lease dated as of May 31, 2018, by and between SPF CHINA BASIN HOLDINGS, LLC, a Delaware limited liability company, and LYFT, INC., a Delaware corporation.

 

LOGO

 

Landlord’s initials /s/ K.W.

     

Tenant’s initials /s/ B.R.

 

      CHINA BASIN
   EXHIBIT A    Second Amendment
   1    Lyft, Inc.


LOGO

 

LOGO

 

Landlord’s initials /s/ K.W.

     

Tenant’s initials /s/ B.R.

 

      CHINA BASIN
   EXHIBIT A    Second Amendment
   2    Lyft, Inc.


LOGO

 

Landlord’s initials /s/ K.W.

     

Tenant’s initials /s/ B.R.

 

      CHINA BASIN
   EXHIBIT A    Second Amendment
   3    Lyft, Inc.


EXHIBIT B

CHINA BASIN

ADDITIONAL PREMISES WORK LETTER

This Exhibit B is referenced in Sections 2.1 and 2.2 of that certain Second Amendment to Office Lease dated as of May 31, 2018, by and between SPF CHINA BASIN HOLDINGS, LLC, a Delaware limited liability company, and LYFT, INC., a Delaware corporation.

This Additional Premises Work Letter shall set forth the terms and conditions relating to the construction of improvements in the Additional Premises (and, if applicable, the 3rd Floor Must Take Space). This Additional Premises Work Letter is essentially organized chronologically and addresses the issues of the construction of the Additional Premises, in sequence, as such issues will arise during the actual construction of the Additional Premises. All references in this Additional Premises Work Letter to Sections of “this Additional Premises Work Letter” shall mean the relevant portions of Sections 1 through 5 of this Additional Premises Work Letter. Unless context indicates otherwise, all references in this Additional Premises Work Letter to “Additional Premises” shall mean the applicable portion of the Additional Premises, or 3rd Floor Must Take Space.

SECTION 1

DELIVERY OF THE ADDITIONAL PREMISES

1.1 Delivery of the Additional Premises. Tenant acknowledges that Tenant has thoroughly examined the visible areas of the Additional Premises. As of each applicable Additional Delivery Date, Landlord shall deliver the applicable increment of the Additional Premises and Tenant shall accept such Additional Premises from Landlord in its presently existing, “as-is” condition as of the date of this Second Amendment; provided, however, (i) Landlord shall deliver each portion of the Additional Premises with the plumbing, electrical systems, fire sprinkler system, lighting, air conditioning and heating systems and all other Building systems serving such portion of the Additional Premises in good operating condition and repair and any failure of such systems to be in such condition on delivery shall not be a default under the Lease (as amended), but shall be promptly remedied by Landlord at Landlord’s sole cost and expense, and (ii) each such increment shall be free of any prior tenant’s personal property and free of any material damage caused by such prior tenant’s occupancy or vacation. Notwithstanding anything to the contrary set forth herein, Landlord shall, at Landlord’s sole cost, using Building standard methods, materials and finishes, install Building standard window shades on the perimeter windows of the Additional Premises.

1.2 Landlord Work. Notwithstanding anything to the contrary set forth herein, Landlord shall, at Landlord’s sole cost, using Building standard methods, materials and finishes, remove the “V” shaped filter from the main HVAC loop in the engineering storage area within the Suite 4700 Premises, and shall provide and install any necessary ducting to maintain the HVAC connection through the portion that previously comprised the filter. The engineering storage area and prior server room areas shall be delivered free of all materials, equipment, racks and cabling.

 

   EXHIBIT B   
   1   


1.3 Compliance. Notwithstanding the foregoing, in connection with Tenant’s construction of the “Additional Improvements” (as defined in Section 2.1 below), Landlord shall be responsible, at Landlord’s sole cost and expense, to the extent such compliance is required in order to allow Tenant to obtain a certificate of occupancy, or its legal equivalent, for the Additional Premises for general office use, to cause the “path of travel” to the Additional Premises (i.e., the most direct route through the Common Areas of the Building starting from the main entrance of the Building (Lobby 4) and ending at the entrance to each increment of the Additional Premises) to comply with applicable building codes and other governmental laws, ordinances and regulations related to handicap access and use, as enacted and enforced as of the applicable Additional Commencement Date, including but not limited to building codes and other governmental laws, ordinances and regulations enacted in conformity with Title 24 accessibility standards and the Americans with Disabilities Act (collectively, the “ADA”), and (ii) to perform all work necessary to the Base Building and the Common Areas (including any restrooms currently located in the Common Area which will become part of the Additional Premises) to cause such areas to comply with applicable building codes and other governmental laws, ordinances and regulations, as enacted and enforced as of the Additional Commencement Date, including but not limited to building codes and other governmental laws, ordinances and regulations enacted in conformity with Title 24 accessibility standards and the Americans with Disabilities Act (collectively, the “Code Work”).

SECTION 2

IMPROVEMENTS

2.1 Additional Improvement Allowance. Tenant shall be entitled to a one-time improvement allowance (the “Additional Improvement Allowance”) in the aggregate amount of (i) $1,549,270.00, based on individual allowances of $55.00 per RSF of the Suite 3700 Premises and Suite 6700 Premises, $90.00 per RSF of the Suite 4700 Premises, and $50.00 per RSF of the Suite 6600 Premises, for the costs relating to the initial design and construction of the improvements, which are permanently affixed to the Additional Premises (the “Additional Improvements”). In addition (and not as part of the Additional Improvement Allowance), Landlord shall provide up to $0.15 per rentable square foot of the entire Additional Premises towards the cost of preliminary space plans for each portion of the Additional Premises (“Landlord’s Drawing Contribution”). Tenant may utilize any part of the Additional Premises Allowance in any portion of the Additional Premises. Landlord shall not be obligated to pay a total amount which exceeds the Additional Improvement Allowance and Landlord’s Drawing Contribution. Notwithstanding the foregoing or any contrary provision of the Lease, all Additional Improvements shall be deemed Landlord’s property under the terms of the Lease. Any unused portion of the Additional Premises Allowance remaining (and not otherwise designated as a Base Rent credit pursuant to Section 2.2.1.9 below) as of the last day of the fifteenth (15th) full calendar month following the Suite 6600 Commencement Date, shall remain with Landlord and Tenant shall have no further right thereto (the “Outside Allowance Date”).

 

   EXHIBIT B   
   2   


2.2 Disbursement of the Additional Improvement Allowance.

2.2.1 Additional Improvement Allowance Items. Except as otherwise set forth in this Additional Premises Work Letter, the Additional Improvement Allowance shall be disbursed by Landlord (each of which disbursements shall be made pursuant to Landlord’s disbursement process, including, without limitation, Landlord’s receipt of invoices for all costs and fees described herein) only for the following items and costs (collectively the “Additional Improvement Allowance Items”):

2.2.1.1 Payment of the fees of the “Architect” and the “Engineers,” as those terms are defined in Section 3.1 of this Additional Premises Work Letter, and payment of the fees incurred by, and the cost of documents and materials supplied by, Landlord and Landlord’s consultants in connection with the preparation and review of the “Construction Drawings,” as that term is defined in Section 3.1 of this Additional Premises Work Letter, and the cost of computer and telecommunication cabling, reasonably incurred by Tenant, which payment for the foregoing items in this Section 2.2.1.1 shall not exceed an aggregate amount equal to $4.00 per rentable square foot of the entire Additional Premises;

2.2.1.2 The payment of plan check, permit and license fees relating to construction of the Additional Improvements;

2.2.1.3 The cost of construction of the Additional Improvements, including, without limitation, costs of installing submeters to monitor the electricity usage in the Additional Premises pursuant to Section 6.1.2 of the Lease, testing and inspection costs, after-hours and above-standard freight elevator usage, hoisting and trash removal costs, and contractors’ fees and general conditions;

2.2.1.4 Other than the Code Work which is Landlord’s responsibility as outlined in Section 1.3 above, the cost of any changes in the Base Building when such changes are required by the Construction Drawings (including if such changes are due to the fact that such work is prepared on an unoccupied basis), such cost to include all direct architectural and/or engineering fees and expenses incurred in connection therewith, but excluding any costs that are Landlord’s obligation pursuant to the terms of Section 1 of this Additional Premises Work Letter;

2.2.1.5 The cost of any changes to the Construction Drawings or Additional Improvements required by all applicable building codes (the “Code”), but excluding any costs that are Landlord’s obligation pursuant to the terms of Section 1 of this Additional Premises Work Letter;

2.2.1.6 The cost of the “Coordination Fee,” as that term is defined in Section 4.2.2.1 of this Additional Premises Work Letter;

 

   EXHIBIT B   
   3   


2.2.1.7 Sales and use taxes;

2.2.1.8 All other costs to be expended by Landlord in connection with the construction of the Additional Improvements; and

2.2.1.9 Following the completion of the Additional Improvements (determined separately with respect to each increment of the Additional Premises) and prior to the Outside Allowance Date, Tenant shall have the right, exercisable by written notice to Landlord, to elect to use the unused amount of the applicable Additional Improvement Allowance to receive a credit against future installments of monthly Base Rent coming due under the Lease, as amended, applicable to the applicable Additional Premises; provided, however, the total amount of such Base Rent credit shall not exceed Ten Dollars ($10.00) per rentable square foot of the applicable Additional Premises, and, as determined on a monthly installment basis, such credit shall not exceed fifty percent (50%) of the Base Rent otherwise due and owing for such month. Any Base Rent credit under this Section 2.2.1.9 shall be applied to the Base Rent due promptly following the expiration of the Base Rent abatement period described in Section 5 of the Second Amendment pertaining to the applicable Additional Premises.

2.2.2 Disbursement of Additional Improvement Allowance. At Tenant’s option, Landlord shall (i) make a lump sum disbursement of the Additional Improvement Allowance for the Additional Improvement Allowance Items, following completion of the Additional Improvements and Landlord’s receipt of the items specified below applicable to release of the “Final Retention” or (ii) make multiple disbursements, not more than once per month, of the Additional Improvement Allowance for Additional Improvement Allowance Items and shall authorize the release of monies as follows. Tenant shall make such election prior to requesting any disbursement of the Additional Improvement Allowance.

2.2.2.1 Monthly Disbursements. If Tenant elects to receive multiple disbursements of the Additional Improvement Allowance, on or before the twentieth (20th) day of any calendar month, during the construction of the Additional Improvements (or such other date as Landlord may designate), Tenant shall deliver to Landlord: (i) a request for payment of the “Contractor,” as that term is defined in Section 4.1.1 of this Additional Premises Work Letter, approved by Tenant, in a form to be provided by Landlord, showing the schedule, by trade, of percentage of completion of the Additional Improvements in the Additional Premises, detailing the portion of the work completed and the portion not completed; (ii) invoices from all of “Tenant’s Agents,” as that term is defined in Section 4.1.2 of this Additional Premises Work Letter, for labor rendered and materials delivered to the Additional Premises; (iii) executed mechanic’s lien releases from all of Tenant’s Agents which shall comply with the appropriate provisions, as reasonably determined by Landlord, of California Civil Code Sections 8132, 8134, 8136 and 8138; and (iv) all other information reasonably requested by Landlord. Tenant’s request for payment shall be deemed Tenant’s acceptance and approval of the work furnished and/or the materials supplied as set forth in Tenant’s payment request. Thereafter, Landlord shall deliver a check to Tenant made jointly payable to Contractor and Tenant in payment of the lesser of: (A) the amounts so requested by Tenant, as set forth in this Section 2.2.2.1, above, less a ten

 

   EXHIBIT B   
   4   


percent (10%) retention (the aggregate amount of such retentions to be known as the “Final Retention”), and (B) the balance of any remaining available portion of the Additional Improvement Allowance (not including the Final Retention), provided that Landlord does not reasonably dispute any request for payment based on non-compliance of any work with the “Approved Working Drawings,” as that term is defined in Section 3.4 below, or due to any substandard work, or for any other reason. Landlord’s payment of such amounts shall not be deemed Landlord’s approval or acceptance of the work furnished or materials supplied as set forth in Tenant’s payment request.

2.2.2.2 Final Retention. Subject to the provisions of this Additional Premises Work Letter, a check for the Final Retention payable to Tenant shall be delivered by Landlord to Tenant following the completion of construction of the Phase 1 Additional Premises or the Suite 6600 Premises, as the case may be, provided that (i) Tenant delivers to Landlord properly executed mechanic’s lien releases in compliance with both California Civil Code Section 8134 and Section 8138, (ii) Landlord has reasonably determined that no substandard work exists which adversely affects the mechanical, electrical, plumbing, heating, ventilating and air conditioning, life-safety or other systems of the Building, the curtain wall of the Building, the structure or exterior appearance of the Building, or any other tenant’s use of such other tenant’s leased premises in the Building, and (iii) Architect delivers to Landlord a certificate, in a form reasonably acceptable to Landlord, certifying that the construction of the Additional Improvements in the Phase 1 Additional Premises or the Suite 6600 Premises, as the case may be, has been substantially completed. As used herein, “Phase 1 Additional Premises” shall mean collectively, the Suite 3700 Premises, the Suite 6700 Premises and the Suite 4700 Premises.

2.2.2.3 Other Terms. Landlord shall only be obligated to make disbursements from the Additional Improvement Allowance to the extent costs are incurred by Tenant for Additional Improvement Allowance Items.

2.3 Building Standards. Landlord has established or may establish specifications for certain Building standard components to be used in the construction of the Additional Improvements in the Additional Premises. The quality of Additional Improvements shall be equal to or of greater quality than the quality of such Building standards, provided that Landlord may, at Landlord’s option, require the Additional Improvements to comply with certain Building standards. Landlord may make changes to said specifications for Building standards from time to time upon no less than thirty (30) days prior written notice to Tenant; provided, however, such changes shall not apply to any elements of the Additional Improvements that were previously approved by Landlord.

2.4 Removal Requirements. Tenant’s removal requirements with respect to the Additional Improvements are set forth in Section 8.5 of the Lease, as amended by Section 12 of this Second Amendment, including Tenant’s right to request that Landlord waive certain removal requirements pursuant to the terms thereof.

 

   EXHIBIT B   
   5   


SECTION 3

CONSTRUCTION DRAWINGS

3.1 Selection of Architect/Construction Drawings. Tenant shall retain the architect/space planner designated by Tenant and reasonably approved by Landlord (the “Architect”) to prepare the “Construction Drawings,” as that term is defined in this Section 3.1. Landlord hereby approves Studio as the Architect. Tenant shall retain the engineering consultants designated by Tenant and reasonably approved by Landlord (the “Engineers”) to prepare all plans and engineering working drawings relating to the structural, mechanical, electrical, plumbing, HVAC, lifesafety, and sprinkler work in the Additional Premises, which work is not part of the Base Building. The plans and drawings to be prepared by Architect and the Engineers hereunder shall be known collectively as the “Construction Drawings.” Tenant acknowledges that a concrete masonry shear wall exists on the west demising wall of Suite 4000 in the Premises. Any penetrations of the shear wall will require structural engineering review, and the Construction Drawings shall include any shear replacement values. Any and all such costs shall be payable by Tenant subject to reimbursement from the Additional Premises Allowance. All Construction Drawings shall be subject to Landlord’s approval, such approval not to be unreasonably withheld, conditioned or delayed. Tenant and Architect shall verify, in the field, the dimensions and conditions as shown on the relevant portions of the Base Building plans, and Tenant and Architect shall be solely responsible for the same, and Landlord shall have no responsibility in connection therewith. Landlord’s review of the Construction Drawings as set forth in this Section 3, shall be for its sole purpose and shall not imply Landlord’s review of the same, or obligate Landlord to review the same, for quality, design, Code compliance or other like matters. Accordingly, notwithstanding that any Construction Drawings are reviewed by Landlord or its space planner, architect, engineers and consultants, and notwithstanding any advice or assistance which may be rendered to Tenant by Landlord or Landlord’s space planner, architect, engineers, and consultants, Landlord shall have no liability whatsoever in connection therewith and shall not be responsible for any omissions or errors contained in the Construction Drawings, and Tenant’s waiver and indemnity set forth in the Lease (as amended) shall specifically apply to the Construction Drawings.

3.2 Final Space Plan. Tenant shall supply Landlord with one PDF copy signed by Tenant of its final space plan for the Additional Premises. The final space plan (the “Final Space Plan”) shall include a layout and designation of all offices, rooms and other partitioning, their intended use, and equipment to be contained therein. Such Final Space Plan shall be approved by Landlord, which approval shall not be unreasonably withheld, conditioned or delayed; provided, however, without limitation as to other reasonable grounds for withholding consent, it shall be deemed reasonable for Landlord to withhold its consent to any proposed Additional Improvements or aspect of the Final Space Plan in the event the same (i) require, or might reasonably require, or give rise to governmentally required changes to the Base Building, (ii) have an adverse effect on the structural integrity of the Building; (iii) are not in compliance with Code; (iv) have an adverse effect on the systems and equipment of the Building; (v) have an effect on the exterior appearance of the Building; or (vi) cause unreasonable interference with the

 

   EXHIBIT B   
   6   


normal and customary office operations of any other tenant in the Building (individually or collectively, a “Design Problem”). Landlord may request clarification or more specific drawings for special use items not included in the Final Space Plan. Landlord shall advise Tenant within five (5) business days after Landlord’s receipt of the Final Space Plan for the Additional Premises if the same is unsatisfactory or incomplete in any respect. If Tenant is so advised, Tenant shall promptly cause the Final Space Plan to be revised to correct any deficiencies or other matters Landlord may reasonably require. If Landlord fails to notify Tenant of Landlord’s approval or disapproval of any such Final Space Plan within such five (5) business day period, Tenant shall have the right to provide Landlord with a second written request for approval (a “Second Request”) that specifically identifies the Final Space Plan and contains the following statement in bold and capital letters: “THIS IS A SECOND REQUEST FOR APPROVAL PURSUANT TO THE PROVISIONS OF SECTION 3.2 OF THE WORK LETTER ATTACHED TO THE SECOND AMENDMENT TO LEASE. IF LANDLORD FAILS TO RESPOND WITHIN THREE (3) BUSINESS DAYS AFTER RECEIPT OF THIS NOTICE, THEN LANDLORD SHALL BE DEEMED TO HAVE APPROVED THE FINAL SPACE PLAN.” If Landlord fails to respond to such Second Request within three (3) business days after receipt by Landlord, the Final Space Plan in question shall be deemed approved by Landlord.

3.3 Final Working Drawings. After the Final Space Plan has been approved (or deemed approved) by Landlord, Tenant shall supply the Engineers with a complete listing of standard and non-standard equipment and specifications, including, without limitation, fire-suppression system requirements, B.T.U. calculations, electrical requirements and special electrical receptacle requirements for the Additional Premises, to enable the Engineers and the Architect to complete the “Final Working Drawings” (as that term is defined below) in the manner as set forth below. Upon the approval of the Final Space Plan by Landlord and Tenant, Tenant shall promptly cause the Architect and the Engineers to complete the architectural and engineering drawings for the Additional Premises, and Architect shall compile a fully coordinated set of architectural, structural, mechanical, electrical and plumbing working drawings in a form which is complete to allow subcontractors to bid on the work and to obtain all applicable permits (collectively, the “Final Working Drawings”) and shall submit the same to Landlord for Landlord’s approval; however, Tenant shall have the ability to submit architectural and engineered drawings at separate times, all subject to the timelines outlined below. Tenant shall supply Landlord with one (1) copy signed by Tenant (and three (3) additional unsigned copies as necessary for review) of such Final Working Drawings. Such Final Working Drawings shall be approved by Landlord, which approval shall not be unreasonably withheld, conditioned or delayed; provided, however, without limitation as to other reasonable grounds for withholding consent, it shall be deemed reasonable for Landlord to withhold its consent to any proposed Additional Improvements or aspect of the Final Working Drawings in the event the same causes a Design Problem. Landlord shall advise Tenant within ten (10) business days after Landlord’s receipt of the Final Working Drawings for the Additional Premises if the same is unsatisfactory or incomplete in any respect. If Tenant is so advised, Tenant shall promptly cause the Final Working Drawings to be revised in accordance with such review and any disapproval of Landlord in connection therewith. If Landlord fails to notify Tenant of Landlord’s approval or

 

   EXHIBIT B   
   7   


disapproval of any such Final Working Drawings within such ten (10) business day period, Tenant shall have the right to provide Landlord with a second written request for approval (a “Working Drawing Second Request”) that specifically identifies the Final Working Drawings and contains the following statement in bold and capital letters: “THIS IS A SECOND REQUEST FOR APPROVAL PURSUANT TO THE PROVISIONS OF SECTION 3.3 OF THE WORK LETTER ATTACHED TO THE SECOND AMENDMENT TO LEASE. IF LANDLORD FAILS TO RESPOND WITHIN FIVE (5) BUSINESS DAYS AFTER RECEIPT OF THIS NOTICE, THEN LANDLORD SHALL BE DEEMED TO HAVE APPROVED THE FINAL WORKING DRAWINGS.” If Landlord fails to respond to such Working Drawing Second Request within five (5) business days after receipt by Landlord, the Final Working Drawings in question shall be deemed approved by Landlord. Subject to Landlord’s obligation to perform the Code Work, if the Final Working Drawings or any amendment thereof or supplement thereto shall require alterations in the Base Building (as contrasted with the Additional Improvements), and if Landlord in its sole and exclusive discretion agrees to any such alterations, and notifies Tenant of the need and cost for such alterations, then Tenant may elect to either: (i) value engineer the Final Working Drawings so as to reduce or eliminate such cost, or (ii) pay the cost of such required changes in advance upon receipt of notice thereof, and if Tenant elects to pay such costs for the required change, then Tenant shall also pay all direct architectural and/or engineering fees in connection with such Base Building changes, plus one and one-half percent (112%) of such direct costs for Landlord’s servicing and overhead.

3.4 Approved Working Drawings. The Final Working Drawings shall be approved by Landlord (the “Approved Working Drawings”) prior to the commencement of construction of the Additional Premises by Tenant. After approval (or deemed approval) by Landlord of the Final Working Drawings, Tenant may submit the same to the appropriate municipal authorities for all applicable building permits. Tenant hereby agrees that neither Landlord nor Landlord’s consultants shall be responsible for obtaining any building permit or certificate of occupancy for the Additional Premises and that obtaining the same shall be Tenant’s responsibility; provided, however, that Landlord shall cooperate with Tenant in executing permit applications and performing other ministerial acts reasonably necessary to enable Tenant to obtain any such permit or certificate of occupancy. No changes, modifications or alterations in the Approved Working Drawings may be made without the prior written consent of Landlord, which consent may not be unreasonably withheld.

3.5 Tenant’s Plans. Landlord acknowledges and agrees that any architectural plans, layouts, and drawings (individually and collectively, “Lyft Drawings”) may be used by Landlord solely in connection with and for the build-out of the Additional Premises and future reference or use as may be required in the normal course of owning and operating a commercial office building, and for no other purpose. Nothing in the Lease or this Second Amendment shall be construed as granting any rights under any copyright or other intellectual property right of any nature of Tenant in and to the Lyft Drawings, and Landlord acknowledges that Landlord has no ownership rights to the Lyft Drawings.

 

   EXHIBIT B   
   8   


3.6 Change Orders. In the event Tenant desires to make any material changes to the Approved Working Drawings, Tenant shall deliver written notice (the “Drawing Change Notice”) of the same to Landlord (which Landlord may require to be on a standard AIA Change Order form), setting forth in detail the proposed changes (the “Tenant Change”) Tenant desires to make to the Approved Working Drawings. Within three (3) business days following receipt of a Drawing Change Notice, Landlord shall deliver written notice to Tenant of either (i) Landlord’s approval of the proposed Tenant Change, or (ii) its disapproval of the proposed Tenant Change (not to be unreasonably withheld, conditioned or delayed, in accordance with Landlord’s rights under Section 3.3 of this Additional Premises Work Letter) specifying in reasonably sufficient detail the reasons for Landlord’s disapproval. If Landlord fails to notify Tenant of Landlord’s approval or disapproval of any such Tenant Change within such three (3) business day period, Tenant shall have the right to provide Landlord with a second written request for approval (a “Tenant Change Second Request”) that specifically identifies the Tenant Change and contains the following statement in bold and capital letters: “THIS IS A SECOND REQUEST FOR APPROVAL PURSUANT TO THE PROVISIONS OF SECTION 3.6 OF THE WORK LETTER ATTACHED TO THE SECOND AMENDMENT TO LEASE. IF LANDLORD FAILS TO RESPOND WITHIN FIVE (5) BUSINESS DAYS AFTER RECEIPT OF THIS NOTICE, THEN LANDLORD SHALL BE DEEMED TO HAVE APPROVED THE TENANT CHANGE.” If Landlord fails to respond to such Tenant Change Second Request within five (5) business days after receipt by Landlord, the Tenant change in question shall be deemed approved by Landlord. Tenant shall pay all additional costs and fees, if any, attributable to such Tenant Change, subject to application of the Additional Improvement Allowance.

SECTION 4

CONSTRUCTION OF THE ADDITIONAL IMPROVEMENTS

4.1 Tenant’s Selection of Contractors.

4.1.1 The Contractor. A general contractor shall be retained by Tenant to construct the Additional Improvements. Such general contractor (“Contractor”) shall be selected by Tenant and reasonably approved by Landlord. Landlord hereby approves NOVO Construction as the Contractor.

4.1.2 Tenant’s Agents. All subcontractors, laborers, materialmen, and suppliers used by Tenant (such subcontractors, laborers, materialmen, and suppliers, and the Contractor to be known collectively as “Tenant’s Agents”) must be approved in writing by Landlord, which approval shall not be unreasonably withheld or delayed. If Landlord does not approve any of Tenant’s proposed subcontractors, laborers, materialmen or suppliers, Tenant shall submit other proposed subcontractors, laborers, materialmen or suppliers for Landlord’s written approval. All of Tenant’s Agents retained directly by Tenant shall all be union labor in compliance with the then existing master labor agreements.

 

   EXHIBIT B   
   9   


4.2 Construction of Additional Improvements by Tenant’s Agents.

4.2.1 Construction Contract; Cost Budget. Tenant shall engage the Contractor under a contract in a form reasonably approved by Landlord (collectively, the “Contract”). Landlord’s failure to respond to Tenant’s request for approval of the Contract within five (5) business days shall constitute Landlord’s deemed approval of the Contract. Prior to the commencement of the construction of the Additional Improvements, Tenant shall provide a copy of the Contract to Landlord for its records. In addition, prior to the commencement of the construction of the Additional Improvements, and after Tenant has accepted all bids for the Additional Improvements, Tenant shall provide Landlord with a detailed breakdown, by trade, of the final costs to be incurred or which have been incurred, as set forth more particularly in Sections 2.2.1.1 through 2.2.1.9, above, in connection with the design and construction of the Additional Improvements to be performed by or at the direction of Tenant or the Contractor, which costs form a basis for the amount of the Contract (the “Final Costs”).

4.2.1.1 Intentionally Deleted.

4.2.1.2 Lump Sum Disbursement Option. If Tenant elects to receive a lump sum disbursement of the Additional Improvement Allowance pursuant to Section 2.2.2 above, then Tenant shall be solely responsible for the timely payment of all Final Costs (subject to reimbursement from the Additional Improvement Allowance pursuant to Section 2.2.2 above), and in the event that, after the Final Costs have been delivered by Tenant to Landlord, the costs relating to the design and construction of the Additional Improvements shall change, any additional costs necessary to such design and construction in excess of the Final Costs, shall be paid by out of its own funds.

4.2.2 Tenant’s Agents.

4.2.2.1 Landlord’s General Conditions for Tenant’s Agents and Improvement Work. Tenant’s and Tenant’s Agent’s construction of the Additional Improvements shall comply with the following: (i) the Additional Improvements shall be constructed in strict accordance with the Approved Working Drawings; (ii) Tenant’s Agents shall submit schedules of all work relating to the Additional Improvements to Contractor and Contractor shall, within five (5) business days of receipt thereof, inform Tenant’s Agents of any changes which are necessary thereto, and Tenant’s Agents shall adhere to such corrected schedule; and (iii) Tenant shall abide by all rules made by Landlord’s Building manager with respect to the use of freight, loading dock and service elevators, storage of materials, coordination of work with the contractors of other tenants, and any other matter in connection with this Additional Premises Work Letter, including, without limitation, the construction of the Additional Improvements. Tenant shall pay a logistical coordination fee (the “Coordination Fee”) to Landlord in an amount equal to the product of (A) one and one-half percent (1.5%), and (B) the total amount of the hard costs of the Additional Improvements, which Coordination Fee shall be for services relating to the coordination of the construction of the Additional Improvements.

 

   EXHIBIT B   
   10   


4.2.2.2 Indemnity. Tenant’s indemnity of Landlord as set forth in the Lease (as amended) shall also apply with respect to any and all costs, losses, damages, injuries and liabilities related in any way to any act or omission of Tenant or Tenant’s Agents, or anyone directly or indirectly employed by any of them, or in connection with Tenant’s non-payment of any amount arising out of the Additional Improvements and/or Tenant’s disapproval of all or any portion of any request for payment. Such indemnity by Tenant, as set forth in the Lease (as amended), shall also apply with respect to any and all costs, losses, damages, injuries and liabilities related in any way to Landlord’s performance of any ministerial acts (including execution of any documents pursuant to the last two sentences of Section 4.3 below) reasonably necessary (i) to permit Tenant to complete the Additional Improvements, and (ii) to enable Tenant to obtain any building permit or certificate of occupancy for the Additional Premises. The foregoing indemnity shall not apply to claims to the extent caused by the willful misconduct of Landlord, its member partners, shareholders, officers, directors, or employees.

4.2.2.3 Requirements of Tenant’s Agents. Each of Tenant’s Agents shall guarantee to Tenant and for the benefit of Landlord that the portion of the Additional Improvements for which it is responsible shall be free from any defects in workmanship and materials for a period of not less than one (1) year from the date of completion thereof. Each of Tenant’s Agents shall be responsible for the replacement or repair, without additional charge, of all work done or furnished in accordance with its contract that shall become defective within one (1) year after the later to occur of (i) completion of the work performed by such contractor or subcontractors and (ii) the applicable Additional Commencement Date. The correction of such work shall include, without additional charge, all additional expenses and damages incurred in connection with such removal or replacement of all or any part of the Additional Improvements, and/or the Building and/or common areas that may be damaged or disturbed thereby. All such warranties or guarantees as to materials or workmanship of or with respect to the Additional Improvements shall be contained in the Contract or subcontract and shall be written such that such guarantees or warranties shall inure to the benefit of both Landlord and Tenant, as their respective interests may appear, and can be directly enforced by either. Tenant covenants to give to Landlord any assignment or other assurances which may be necessary to effect such right of direct enforcement.

4.2.2.4 Insurance Requirements.

4.2.2.4.1 General Coverages. All of Tenant’s Agents shall carry worker’s compensation insurance covering all of their respective employees, and shall also carry public liability insurance, including property damage, all with limits, in form and with companies as are required to be carried by Tenant as set forth in the Lease (as amended).

4.2.2.4.2 Special Coverages. Tenant shall cause its general contractor to carry “Builder’s All Risk” insurance in an amount approved by Landlord covering the construction of the Additional Improvements, and such other insurance as Landlord may require, it being understood and agreed that the Additional Improvements shall be insured by Tenant pursuant to the Lease (as amended) immediately upon completion thereof. Such

 

   EXHIBIT B   
   11   


insurance shall be in amounts and shall include such extended coverage endorsements as may be reasonably required by Landlord including, but not limited to, the requirement that all of Tenant’s Agents shall carry excess liability and Products and Completed Operation Coverage insurance, each in amounts not less than $5,000,000 per incident, $5,000,000 in aggregate, and in form and with companies as are required to be carried by Tenant as set forth in the Lease (as amended).

4.2.2.4.3 General Terms. Certificates for all insurance carried pursuant to this Section 4.2.2.4 shall be delivered to Landlord before the commencement of construction of the Additional Improvements and before the Contractor’s equipment is moved onto the site. Tenant will give Landlord thirty (30) days prior written notice of any cancellation or lapse of the effective date or any reduction in the amounts of such insurance. In the event that the Additional Improvements are damaged by any cause during the course of the construction thereof, Tenant shall immediately repair the same at Tenant’s sole cost and expense. Tenant’s Agents shall maintain all of the foregoing insurance coverage in force until the Additional Improvements are fully completed and accepted by Landlord, except for any Products and Completed Operation Coverage insurance required by Landlord, which is to be maintained for ten (10) years following completion of the work and acceptance by Landlord and Tenant. All policies carried under this Section 4.2.2.4 shall insure Landlord and Tenant, as their interests may appear, as well as Contractor and Tenant’s Agents. All insurance, except Workers’ Compensation, maintained by Tenant’s Agents shall preclude subrogation claims by the insurer against anyone insured thereunder. Such insurance shall provide that it is primary insurance as respects the owner and that any other insurance maintained by owner is excess and noncontributing with the insurance required hereunder. The requirements for the foregoing insurance shall not derogate from the provisions for indemnification of Landlord by Tenant under Section 4.2.2.2 of this Additional Premises Work Letter.

4.2.3 Governmental Compliance. The Additional Improvements shall comply in all respects with the following: (i) the Code and other state, federal, city or quasi-governmental laws, codes, ordinances and regulations (specifically including, without limitation, any OSHA requirements) as each may apply according to the rulings of the controlling public official, agent or other person; (ii) applicable standards of the American Insurance Association (formerly, the National Board of Fire Underwriters) and the National Electrical Code; and (iii) building material manufacturer’s specifications. In the event any of the Additional Improvements require or give rise to governmentally required changes to the Base Building (specifically including, without limitation, the installation of any venting or other air-removal/circulation system), then Landlord shall notify Tenant of the need and cost for such changes, and Tenant may elect to either: (A) value engineer the Final Working Drawings so as to reduce or eliminate such cost, (B) pay the cost of such required changes in advance upon receipt of notice thereof, and if Tenant elects to pay such costs for the required change, then Tenant shall also pay all direct architectural and/or engineering fees in connection with such Base Building changes, plus one and one-half percent (112%) of such direct costs for Landlord’s servicing and overhead.

 

   EXHIBIT B   
   12   


4.2.4 Inspection by Landlord. Landlord shall have the right to inspect the Additional Improvements at all times, provided however, that Landlord’s failure to inspect the Additional Improvements shall in no event constitute a waiver of any of Landlord’s rights hereunder nor shall Landlord’s inspection of the Additional Improvements constitute Landlord’s approval of the same. Should Landlord disapprove any portion of the Additional Improvements, Landlord shall notify Tenant in writing of such disapproval and shall specify the items disapproved. Any defects or deviations in, and/or disapproval by Landlord of, the Additional Improvements shall be rectified by Tenant at no expense to Landlord, provided however, that in the event Landlord determines that a defect or deviation exists or disapproves of any matter in connection with any portion of the Additional Improvements and such defect, deviation or matter might adversely affect the mechanical, electrical, plumbing, heating, ventilating and air conditioning or life-safety systems of the Building, the structure or exterior appearance of the Building or any other tenant’s use of such other tenant’s leased premises, Landlord may, upon three (3) business days prior written notice to take such action as Landlord reasonably deems necessary, at Tenant’s expense and without incurring any liability on Landlord’s part, to correct any such defect, deviation and/or matter, including, without limitation, causing the cessation of performance of the construction of the Additional Improvements until such time as the defect, deviation and/or matter is corrected to Landlord’s reasonable satisfaction.

4.2.5 Meetings. Within thirty (30) days following the execution of this Second Amendment, or as soon as practical thereafter, Tenant shall hold weekly meetings at a reasonable time, with the Architect and the Contractor regarding the progress of the preparation of Construction Drawings and the construction of the Additional Improvements, which meetings shall be held at a location reasonably acceptable to Landlord, and Landlord and/or its agents shall receive prior notice of, and shall have the right to attend, all such meetings, and, upon Landlord’s request, certain of Tenant’s Agents shall attend such meetings. In addition, minutes shall be taken at all such meetings, a copy of which minutes shall be promptly delivered to Landlord. Following commencement of construction of the Additional Improvements, one such meeting each month shall include the review of Contractor’s current request for payment.

4.3 Notice of Completion; Copy of Record Set of Plans. Within ten (10) business days after completion of construction of the Additional Improvements, Tenant shall cause a Notice of Completion to be recorded in the office of the Recorder of the county in which the Building is located in accordance with Section 8182 of the Civil Code of the State of California or any successor statute, and shall furnish a copy thereof to Landlord upon such recordation. If Tenant fails to do so, Landlord may execute and file the same as Tenant’s agent for such purpose, at Tenant’s sole cost and expense. At the conclusion of construction, (i) Tenant shall cause the Architect and Contractor (A) to update the Approved Working Drawings as necessary to reflect all changes made to the Approved Working Drawings during the course of construction, (B) to certify to the best of their knowledge that the “record-set” of as-built drawings are true and correct, which certification shall survive the expiration or termination of the Lease (as amended), and (C) to deliver to Landlord two (2) electronic CAD’s and two (2) full-size sets of copies of such record set of drawings within ninety (90) days following issuance of a certificate of occupancy for the Additional Premises, and (ii) Tenant shall deliver to Landlord a copy of all

 

   EXHIBIT B   
   13   


warranties, guaranties, and operating manuals and information relating to the improvements, equipment, and systems in the Additional Premises. Within fifteen (15) days after request by Tenant following the substantial completion of the Tenant Improvements, Landlord will acknowledge its approval of the Additional Improvements (provided that such approval has been granted) by placing its signature on a Contractor’s Certificate of Substantial Completion fully executed by the Architect, Contractor and Tenant. Landlord’s approval shall not create any contingent liabilities or impose any responsibility for Landlord with respect to any latent quality, completeness, design sufficiency, means and methods of construction, Code compliance or other like matters that may arise subsequent to Landlord’s approval.

SECTION 5

MISCELLANEOUS

5.1 Tenant’s Representative. Tenant has designated Nancy Losey as its sole representative with respect to the matters set forth in this Additional Premises Work Letter, who shall have full authority and responsibility to act on behalf of the Tenant as required in this Additional Premises Work Letter.

5.2 Landlord’s Representative. Landlord has designated Ms. Jane Echlin as its sole representative with respect to the matters set forth in this Additional Premises Work Letter, who, until further notice to Tenant, shall have full authority and responsibility to act on behalf of the Landlord as required in this Additional Premises Work Letter.

5.3 Time of the Essence in This Additional Premises Work Letter. Unless otherwise indicated, all references herein to a “number of days” shall mean and refer to calendar days. If any item requiring approval is timely disapproved by Landlord, the procedure for preparation of the document and approval thereof shall be repeated until the document is approved by Landlord.

5.4 Tenant’s Lease Default. Notwithstanding any provision to the contrary contained in the Lease or this Additional Premises Work Letter, if any monetary or material non-monetary Default by Tenant under the Lease or default under this Additional Premises Work Letter occurs at any time on or before the substantial completion of the Additional Improvements and such default remains uncured five (5) days following Landlord’s notice of such default to Tenant, then in addition to all other rights and remedies granted to Landlord pursuant to the Lease, Landlord shall have the right to withhold payment of all or any portion of the Additional Improvement Allowance and/or Landlord may, without any liability whatsoever, cause the cessation of construction of the Additional Improvements (in which case, Tenant shall be responsible for any delay in the substantial completion of the Additional Improvements and any costs occasioned thereby).

 

   EXHIBIT B   
   14   


Exhibit C

 

Phase

   RSF     

Estimated Delivery Date

  

Estimated C

ommencement

Date

   Base Rent
Abatement
Period for
each
applicable
increment
   Tenant’s
Percentage
Share
    Base
Year
 

3700 Premises

     5,399      Upon execution    4 months from delivery    4 months      0.5879     2018  

6700 Premises

     4,675      Upon execution    4 months from delivery    4 months      0.5091     2018  

4700 Premises

     7,625      July 1, 2018    6 months from delivery    5 months      0.8303     2019  

6600 Premises

     6,179      March 1, 2019    4 months from delivery    3 months      0.7316     2019  

 

Landlord’s initials                                 

     

Tenant’s initials                                 

 

      CHINA BASIN
   EXHIBIT B    Second Amendment
   15    Lyft, Inc.


THIRD AMENDMENT TO OFFICE LEASE

This THIRD AMENDMENT TO OFFICE LEASE (this “Third Amendment”) is made and entered into as of June 11, 2018 (“Effective Date”), by and between SPF CHINA BASIN HOLDINGS, LLC, a Delaware limited liability company (“Landlord”), and LYFT, INC., a Delaware corporation (“Tenant”).

R E C I T A L S :

A. Landlord and Tenant entered into that certain Office Lease dated April 8, 2016 (the “Original Lease”), whereby Landlord leases to Tenant and Tenant leases from Landlord those certain premises consisting of (i) approximately 25,783 rentable square feet of space (“RSF”) located in Suite 3000 on the third (3rd) floor of the “Wharfside Building,” located at 185 Berry Street, San Francisco, California (“Wharfside Building”), (ii) approximately 26,514 RSF located in Suite 500 on the fifth (5th) floor of the “Berry Street Building” located at 185 Berry Street, San Francisco, California (“Berry Street Building”), and (iv) approximately 41,430 RSF located in Suite 590 on the fifth (5th) floor of the Berry Street Building (collectively, the “Original Premises”).

B. Landlord and Tenant entered into that certain First Amendment to Office Lease dated September 27, 2017 (the “First Amendment”), pursuant to which Landlord leases to Tenant and Tenant leases from Landlord the “Expansion Premises” which includes certain space consisting of (i) approximately 57,692 rentable square feet of space, commonly known as Suite 4000, on the fourth (4th) floor of the Wharfside Building, and (ii) approximately 16,801 rentable square feet of space, commonly known as Suite 550, on the fifth (5th) floor of the Berry Street Building.

C. Landlord and Tenant entered into that certain Second Amendment to Office Lease dated May 31, 2018 (the “Second Amendment”), pursuant to which Landlord leases to Tenant and Tenant leases from Landlord the “Additional Premises”, containing 23,878 RSF comprised of (i) Suite 3700, containing approximately 5,399 RSF on the 3rd floor of the Wharfside Building (the “Suite 3700 Premises”), (ii) Suite 6700, containing approximately 4,675 RSF on the 6th floor of the Wharfside Building (the “Suite 6700 Premises”), (iii) Suite 4700, containing approximately 7,625 RSF on the 4th floor of the Wharfside Building (the “Suite 4700 Premises”), and (iv) Suite 6600, containing approximately 6,179 RSF on the 6th floor of the Wharfside Building (the “Suite 6600 Premises”). The Original Lease, as amended by the First Amendment and the Second Amendment is referred to herein collectively as the “Lease”. The Wharfside Building and Berry Street Building are each referred to herein as the “Building”, and collectively, as the “Buildings”. The Original Premises, Expansion Premises, and Additional Premises, are referred to herein collectively as the “Existing Premises”.

D. Landlord and Tenant desire to further expand the Existing Premises to include Suite 400 containing approximately 85,591 RSF on the 4th floor of the Berry Building (the “Suite 400 Expansion Premises”), as set forth on Exhibit A attached hereto.


E. In addition, Landlord and Tenant desire to make other modifications to the Lease, and in connection therewith, Landlord and Tenant desire to amend the Lease as hereinafter provided.

A G R E E M E N T :

NOW, THEREFORE, in consideration of the foregoing recitals and the mutual covenants contained herein, and for other good and valuable consideration, the receipt and sufficiency of which are hereby acknowledged, the parties hereto hereby agree as follows:

1. Capitalized Terms. All capitalized terms when used herein shall have the same meaning as is given such terms in the Lease unless expressly superseded by the terms of this Third Amendment.

2. Modification of Premises. Landlord represents that the rentable square footage of the Suite 400 Expansion Premises have been measured in accordance with BOMA (as defined in Section 1.4 of the Original Lease).

2.1. Suite 400 Commencement Date. The “Suite 400 Commencement Date” is the date that is four (4) months following the Suite 400 Delivery Date. As used herein, the “Suite 400 Delivery Date” shall mean the date on which Landlord delivers the Suite 400 Expansion Premises to Tenant in the condition required hereunder, which Suite 400 Delivery Date shall not occur prior to December 1, 2018 (the “Anticipated Suite 400 Delivery Date”). Except as specifically set forth in the Tenant Work Letter attached hereto as Exhibit B (the “Suite 400 Expansion Premises Work Letter”), Landlord shall not be obligated to provide or pay for any improvement work or services related to the improvement of the Suite 400 Expansion Premises, and Tenant shall accept the Suite 400 Expansion Premises in its presently existing, “as-is” condition. Effective upon the Suite 400 Commencement Date, the Premises shall be increased to include the Suite 400 Premises. Except as provided in this Third Amendment, effective as of the Suite 400 Commencement Date, the term “Premises” as used in the Lease shall mean, collectively, the Existing Premises and the Suite 400 Expansion Premises.

2.2. Beneficial Occupancy. Subject to the terms of this Section 2.2, if the Suite 400 Improvements (as defined in Section 2.1 of the Suite 400 Expansion Premises Work Letter) in the Suite 400 Expansion Premises are substantially completed prior to the Suite 400 Commencement Date, Tenant shall have the right thereafter to occupy the Suite 400 Expansion Premises prior to the Suite 400 Commencement Date for the conduct of Tenant’s business; provided that (i) Tenant shall give Landlord at least five (5) days’ prior written notice of any occupancy of the Suite 400 Expansion Premises for the conduct of Tenant’s business, (ii) a temporary certificate of occupancy shall have been issued by the appropriate governmental authorities for the Suite 400 Expansion Premises to be occupied for the conduct of Tenant’s business should Tenant conduct any permittable Tenant Improvements within the Premises, (iii) Tenant has delivered to Landlord satisfactory evidence of the insurance coverage required to be carried by Tenant in accordance with Article 10 of the Original Lease with respect to the Suite 400 Expansion Premises, and (iv) except as provided hereinbelow, all of the terms and conditions of the Lease shall apply as though the Suite 400 Commencement Date had occurred

 

      CHINA BASIN
      Third Amendment
   2    Lyft, Inc.


(although the Suite 400 Commencement Date shall not actually occur until the occurrence of the same pursuant to the terms of Section 2.1) upon Tenant’s commencement of the conduct of its business in the Suite 400 Expansion Premises; provided, however, notwithstanding the foregoing, Tenant shall have no obligation to pay Base Rent attributable to the Suite 400 Expansion Premises, or Tenant’s Share of Direct Expenses attributable to the Suite 400 Expansion Premises during any such period prior to the Suite 400 Commencement Date that Tenant occupies the Suite 400 Expansion Premises.

2.3. Delivery. Tenant acknowledges that the Suite 400 Expansion Premises are currently occupied by third parties. Landlord will use commercially reasonable efforts to cause the Suite 400 Delivery Date to occur by the estimated date as set forth above; provided, however, that following the scheduled expiration of any third party’s lease, if such third parties do not timely vacate its premises, Landlord shall use commercially reasonable efforts to regain possession of the Suite 400 Expansion Premises. If Landlord is unable for any reason to deliver possession of a portion of the Suite 400 Expansion Premises to Tenant on any specific date, then Landlord shall not be subject to any liability for its failure to do so, and such failure shall not affect the validity of the Lease (as amended) or the obligations of Tenant hereunder.

3. Suite 400 Expansion Premises Term; Option Term.

3.1. Suite 400 Expansion Premises Term. The term of Tenant’s lease of the Suite 400 Premises (the “Suite 400 Expansion Premises Term”) shall be for approximately ten (10) years and six (6) months, commencing on the Suite 400 Commencement Date and expiring on the last day of the 126th full calendar month after the Suite 400 Commencement Date (the “Suite 400 Expiration Date”), unless sooner terminated as provided in the Lease, as hereby amended. Landlord and Tenant acknowledge that the Suite 400 Expansion Premises Term is not coterminous with Tenant’s lease of the Existing Premises.

3.2. Option Term. Separate and apart from the Option Term granted in the Original Lease with respect to the Existing Premises, Landlord hereby grants to the Original Tenant and any Permitted Transferee Assignee, one (1) option to extend the Suite 400 Expansion Premises Term for a period of five (5) years (the “Suite 400 Option Term”). The Suite 400 Option Term may be exercised, or not exercised, at Tenant’s option, independently of the Option Term applicable to the Existing Premises, and irrespective of whether or not Tenant continues to lease the Existing Premises. Except as provided in this Section 3.2, the Suite 400 Option Term shall be on the same terms and conditions as the Option Term set forth in Section 2.2 of the Original Lease.

3.2.1 For the purposes of this Section 3.2, all references in Section 2.2 or Exhibit F of the Original Lease, to the “initial Lease Term” shall be deemed to refer to the Suite 400 Expansion Premises Term.

3.2.2 For the purposes of this Section 3.2, all references in Section 2.2 or Exhibit F of the Original Lease to the “Premises” shall be deemed to refer to the Suite 400 Expansion Premises.

 

      CHINA BASIN
      Third Amendment
   3    Lyft, Inc.


4. Base Rent. Commencing on the Suite 400 Commencement Date and continuing throughout the Suite 400 Expansion Premises Term, Tenant shall pay to Landlord monthly installments of Base Rent for the Suite 400 Expansion Premises as follows:

 

Year of Suite 400 Expansion Premises Term:

   Annual Base Rent      Monthly Installment of
Base Rent
     Annual Rental Rate
Per RSF
 

1

   $ 7,703,190.00      $ 641,932.50      $ 90.00  

2

   $ 7,934,285.70      $ 661,190.48      $ 92.7000  

3

   $ 8,172,314.27      $ 681,026.19      $ 95.4810  

4

   $ 8,417,481.13      $ 701,456.76      $ 98.3454  

5

   $ 8,670,008.82      $ 722,500.74      $ 101.2958  

6

   $ 8,930,111.31      $ 744,175.94      $ 104.3347  

7

   $ 9,198,011.14      $ 766,500.93      $ 107.4647  

8

   $ 9,473,947.96      $ 789,495.66      $ 110.6886  

9

   $ 9,758,170.00      $ 813,180.83      $ 114.0093  

10

   $ 10,050,916.89      $ 837,576.41      $ 117.4296  

11 (through Suite 400 Expiration Date)

   $ 10,352,445.43      $ 862,703.79      $ 120.9525  

5. Rent Abatement. Provided that Tenant is not then in Default of the Lease, then Tenant shall have no obligation to pay the Base Rent and Tenant’s Share of Direct Expenses otherwise attributable to the Suite 400 Expansion Premises during the first six (6) full calendar months of the Suite 400 Expansion Premises Term (the “Suite 400 Abatement Period”). Landlord and Tenant acknowledge that the total amount of the Base Rent component of the abatement above equals $3,851,595.00 (i.e., $641,932.50 per month).

6. Tenant’s Share of Direct Expenses. Except as specifically set forth in this Section 6, commencing on the expiration of the Suite 400 Abatement Period, Tenant shall pay Tenant’s Share of Direct Expenses in connection with the Suite 400 Expansion Premises in accordance with the terms of Article 4 of the Original Lease, provided that with respect to the calculation of Tenant’s Share of Direct Expenses in connection with the Suite 400 Expansion Premises, the following shall apply:

6.1. Tenant’s 3Share shall equal 9.3203%; and

6.2. the Base Year shall be the calendar year 2020.

 

      CHINA BASIN
      Third Amendment
   4    Lyft, Inc.


7. Parking. In addition to Tenant’s parking rights set forth in the Lease, effective as of the Suite 400 Commencement Date and continuing throughout the entire Suite 400 Expansion Premises Term, Tenant shall be entitled to rent up to seventeen (17) additional unreserved parking passes in total in connection with Tenant’s lease of the Suite 400 Expansion Premises (the “Suite 400 Parking Passes”). Except as set forth in this Section 7, Tenant such lease of Suite 400 Parking Passes shall be in accordance with the provisions of Article 28 of the Original Lease.

8. Electrical. Landlord acknowledges and agrees that Section 6.1.2 of the Original Lease [“Landlord shall provide adequate electrical wiring and facilities for connection to Building standard ceiling mounted lighting fixtures and incidental use equipment, i.e., 5 watts of connected load per usable square foot, provided that Tenant’s consumption of electricity does not exceed 2.4 watts/hour per usable square foot of the Premises per month, which electrical usage shall be subject to Applicable Laws and regulations, including Title 24.”] shall apply to the Suite 400 Expansion Premises.

9. Tenant’s Dogs. The number of Tenant’s Dogs allowed in the Premises shall not be increased as a result of Tenant’s lease of the Suite 400 Expansion Premises.

10. Removal Obligations. Notwithstanding any provision to the contrary set forth in the Lease, as of the Effective Date, the term “Tenant Improvements” within the definition of “Specialty Improvements” in Section 8.5 of the Original Lease, shall include any Suite 400 Improvements, and accordingly, Tenant shall not be required to remove any Suite 400 Improvements upon the expiration or earlier termination of the Lease, unless the same would constitute Specialty Improvements. In addition, in the event that, at the time Tenant requests Landlord’s consent to any Suite 400 Improvements, if Tenant also requests in writing a determination of whether Landlord will require restoration and/or removal of the particular Suite 400 Improvements or portions thereof for which consent is being requested upon expiration or any earlier termination of the Lease (as amended), Landlord shall so notify Tenant along with Landlord’s consent (if such consent is given).

11. Letter of Credit. Landlord and Tenant acknowledge that, in accordance with the Lease, Landlord currently holds an L-C (as defined in the Lease) (the “Existing L-C”) (as amended by the addition of the Expansion L-C as provided in Section 13 of the First Amendment) in the current amount of $12,900,000.00, as security for the faithful performance by Tenant of the terms, covenants and conditions of the Lease. Landlord shall continue to retain the Existing L-C as security for the faithful performance by Tenant of the terms, covenants and conditions of the Lease, as hereby amended; and Tenant shall deliver to Landlord within ten (10) business days following Tenant’s and Landlord’s execution of this Third Amendment, an amendment to the Existing L-C, or a new or replacement L-C in the form required by the Lease, increasing the Existing L-C Amount by $5,936,000.00 (the “Suite 400 L-C Amount”), which Suite 400 L-C Amount shall be subject to reduction as set forth below. To the extent that on each of the “Dates of Reduction” identified below, (i) Tenant is not in default under the Lease (as amended), and (ii) Tenant satisfies the “Burn Down Requirements” identified in the Lease, the Suite 400 L-C Amount shall be reduced as follows:

 

      CHINA BASIN
      Third Amendment
   5    Lyft, Inc.


Date of Reduction

   Amount of Reduction      Expansion L-C Amount  

First Day of Suite 400 Expansion Year 3

   $ 890,400.00      $ 5,045,600.00  

First Day of Suite 400 Expansion Year 4

   $ 890,400.00      $ 4,155,200.00  

First Day of Suite 400 Expansion Year 5

   $ 890,400.00      $ 3,264,800.00  

First Day of Suite 400 Expansion Year 6

   $ 890,400.00      $ 2,374,400.00  

First Day of Suite 400 Expansion Year 7

   $ 890,400.00      $ 1,484,000.00  

In the event that Tenant desires to reduce the Suite 400 L-C Amount as set forth above, then no later than six (6) months prior to the scheduled date of such reduction, concurrently with Tenant’s delivery of the written representation and certification required under Section 30.3.3.4, of the Original Lease, Tenant shall deliver to Landlord a copy of Tenant’s then most current Audited Financial Statement evidencing compliance with the Burn Down Requirements. Notwithstanding anything to the contrary set forth herein, in no event shall the Suite 400 L-C Amount as set forth above decrease during any period in which Tenant is in default under the Lease, as amended, but such decrease shall take place retroactively after such default is cured, provided that no such decrease shall thereafter take effect in the event the Lease, as amended, is terminated early due to such default by Tenant.

12. Brokers. Landlord and Tenant hereby warrant to each other that they have had no dealings with any real estate broker or agent in connection with the negotiation of this Third Amendment other than McCarthy Cook & Co. and Jones Lang LaSalle (the “Brokers”), and that they know of no other real estate broker or agent who is entitled to a commission in connection with this Third Amendment. Landlord shall pay the brokerage commissions owing to the Brokers in connection with the transaction contemplated by this Third Amendment pursuant to the terms of separate written agreements between Landlord and each of the Brokers. Each party agrees to indemnify and defend the other party against and hold the other party harmless from and against any and all claims, demands, losses, liabilities, lawsuits, judgments, and costs and expenses (including, without limitation, reasonable attorneys’ fees) with respect to any leasing commission or equivalent compensation alleged to be owing on account of the indemnifying party’s dealings with any real estate broker or agent, other than the Brokers. The terms of this Section 12 shall survive the expiration or earlier termination of the term of the Lease, as hereby amended.

13. CASp. For purposes of Section 1938(a) of the California Civil Code, Landlord hereby discloses to Tenant, and Tenant hereby acknowledges, that the Suite 400 Expansion Premises has not undergone inspection by a Certified Access Specialist (CASp). In addition, the following notice is hereby provided pursuant to Section 1938(e) of the California Civil Code: “A Certified Access Specialist (CASp) can inspect the subject premises and determine whether the subject premises comply with all of the applicable construction-related accessibility standards under state law. Although state law does not require a CASp inspection of the subject premises, the commercial property owner or lessor may not prohibit the lessee or tenant from obtaining a

 

      CHINA BASIN
      Third Amendment
   6    Lyft, Inc.


CASp inspection of the subject premises for the occupancy or potential occupancy of the lessee or tenant, if requested by the lessee or tenant. The parties shall mutually agree on the arrangements for the time and manner of the CASp inspection, the payment of the fee for the CASp inspection, and the cost of making any repairs necessary to correct violations of construction-related accessibility standards within the premises.” The terms of Section 16 of the First Amendment shall continue to apply with respect to the foregoing.

14. Third Party Approvals. Landlord shall be responsible, at Landlord’s sole cost and expense, for obtaining any third party approvals required for Landlord to enter into this Third Amendment, including, without limitation, the approval of HSBC Bank USA, National Association.

15. No Further Modification. Except as set forth in this Third Amendment, all of the terms and provisions of the Lease shall apply with respect to the Suite 400 Expansion Premises and shall remain unmodified and in full force and effect.

16. Counterparts and Electronic Signatures. This Third Amendment may be executed in one or more counterparts, each of which shall be an original, and all of which together shall constitute a single instrument. Further, the parties agree that this Third Amendment may be signed and/or transmitted by electronic mail of a .PDF document or electronic signature (e.g., DocuSign or similar electronic signature technology) and thereafter maintained in electronic form, and that such electronic record shall be valid and effective to bind the party so signing as a paper copy bearing such party’s hand-written signature. The parties further consent and agree that the electronic signatures appearing on this Third Amendment shall be treated, for purpose of validity, enforceability and admissibility, the same as hand-written signatures.

[signatures follow on next page]

 

      CHINA BASIN
      Third Amendment
   7    Lyft, Inc.


IN WITNESS WHEREOF, this Third Amendment has been executed as of the day and year first above written.

 

“Landlord”:

SPF CHINA BASIN HOLDINGS, LLC,

a Delaware limited liability company

By:

 

SPF China Basin Acquisition, LLC,

a Delaware limited liability company

 

Managing Member

 

By:

 

Commingled Pension Trust Fund (Strategic

Property) of JPMorgan Chase Bank, N.A.,

   

Sole Member

   

By:

 

JPMorgan Chase Bank, N.A.,

     

Trustee

   

By:

 

/s/ Karen M. Wilbrecht

     

Karen M. Wilbrecht,

     

Executive Director

     

Date: 6/15/18

“Tenant”:

LYFT, INC.,

a Delaware corporation

By:

 

/s/ Brian Roberts

 

Name: Brian Roberts

 

Its: CFO

 

Date: Jun 14, 2018

 

      CHINA BASIN
      Third Amendment
   8    Lyft, Inc.


EXHIBIT A

CHINA BASIN

OUTLINE OF SUITE 400 EXPANSION PREMISES

This Exhibit A is referenced in the Recital D of that certain Third Amendment to Office Lease dated as of June 11, 2018, by and between SPF CHINA BASIN HOLDINGS, LLC, a Delaware limited liability company, and LYFT, INC., a Delaware corporation.

 

LOGO

 

LandLord’s initials /s/ K.W.

     

Tenant’s initials /s/ B.R.

 

      CHINA BASIN
   EXHIBIT A    Third Amendment
   1    Lyft, Inc.


EXHIBIT B

CHINA BASIN

SUITE 400 EXPANSION PREMISES WORK LETTER

This Exhibit B is referenced in Section 2.1 of that certain Third Amendment to Office Lease dated as of June 11, 2018, by and between SPF CHINA BASIN HOLDINGS, LLC, a Delaware limited liability company, and LYFT, INC., a Delaware corporation.

This Suite 400 Expansion Premises Work Letter shall set forth the terms and conditions relating to the construction of improvements in the Suite 400 Expansion Premises. This Suite 400 Expansion Premises Work Letter is essentially organized chronologically and addresses the issues of the construction of the Suite 400 Expansion Premises, in sequence, as such issues will arise during the actual construction of the Suite 400 Expansion Premises. All references in this Suite 400 Expansion Premises Work Letter to Sections of “this Suite 400 Expansion Premises Work Letter” shall mean the relevant portions of Sections 1 through 5 of this Suite 400 Expansion Premises Work Letter. Unless context indicates otherwise, all references in this Suite 400 Expansion Premises Work Letter to “Premises” shall mean the Suite 400 Expansion Premises.

SECTION 1

DELIVERY OF THE SUITE 400 EXPANSION PREMISES

1.1 Delivery of the Suite 400 Expansion Premises. Tenant acknowledges that Tenant has thoroughly examined the visible areas of the Suite 400 Expansion Premises. On or before the Suite 400 Delivery Date, Landlord shall deliver the Suite 400 Expansion Premises and Tenant shall accept the Suite 400 Expansion Premises from Landlord in its presently existing, “as-is” condition as of the date of this Third Amendment; provided, however, (i) Landlord shall deliver the Suite 400 Expansion Premises with the plumbing, electrical systems, fire sprinkler system, lighting, air conditioning and heating systems and all other Building systems serving the Suite 400 Expansion Premises in good operating condition and repair and any failure of such systems to be in such condition on delivery shall not be a default under the Lease (as amended), but shall be promptly remedied by Landlord at Landlord’s sole cost and expense, and (ii) the Suite 400 Expansion Premises shall be free of any prior tenant’s personal property and free of any material damage caused by such prior tenant’s occupancy or vacation. Notwithstanding anything to the contrary set forth herein, Landlord shall, at Landlord’s sole cost, using Building standard methods, materials and finishes, install Building standard window shades on the perimeter windows of the Suite 400 Expansion Premises. Landlord shall provide not less than thirty (30) days prior notice of the Suite 400 Delivery Date.

 

Landlord’s initials /s/ K.W.                

      Tenant’s initials /s/ B.R.                

 

      CHINA BASIN
   EXHIBIT B    Third Amendment
   1    Lyft, Inc.


1.2 Compliance. Notwithstanding the foregoing, in connection with Tenant’s construction of the “Suite 400 Improvements” (as defined in Section 2.1 below), Landlord shall be responsible, at Landlord’s sole cost and expense, to the extent such compliance is required in order to allow Tenant to obtain a certificate of occupancy, or its legal equivalent, for the Suite 400 Expansion Premises for general office use, to cause the “path of travel” to the Suite 400 Expansion Premises (i.e., the most direct route through the Common Areas of the Building starting from the main entrance of the Building (Lobby 4) and ending at the entrance to the Suite 400 Expansion Premises) to comply with applicable building codes and other governmental laws, ordinances and regulations related to handicap access and use, as enacted and enforced as of the Suite 400 Commencement Date, including but not limited to building codes and other governmental laws, ordinances and regulations enacted in conformity with Title 24 accessibility standards and the Americans with Disabilities Act (collectively, the “ADA”), and (ii) to perform all work necessary to the Base Building and the Common Areas (including any restrooms currently located in the Common Area which will become part of the Suite 400 Expansion Premises) to cause such areas to comply with applicable building codes and other governmental laws, ordinances and regulations, as enacted and enforced as of the Suite 400 Commencement Date, including but not limited to building codes and other governmental laws, ordinances and regulations enacted in conformity with the ADA (collectively, the “Code Work”).

SECTION 2

IMPROVEMENTS

2.1 Suite 400 Improvement Allowance. Tenant shall be entitled to a one-time improvement allowance (the “Suite 400 Improvement Allowance”) in the amount of $30.00 per RSF of the Suite 400 Expansion Premises (i.e., $2,567,730.00, for the costs relating to the initial design and construction of the improvements, which are permanently affixed to the Suite 400 Expansion Premises (the “Suite 400 Improvements”). In addition (and not as part of the Suite 400 Improvement Allowance), Landlord shall provide up to $0.15 per rentable square foot of the entire Suite 400 Expansion Premises towards the cost of preliminary space plans for each portion of the Suite 400 Expansion Premises (“Landlord’s Drawing Contribution”). Tenant may utilize any part of the Suite 400 Improvement Allowance in any portion of the Suite 400 Expansion Premises. Landlord shall not be obligated to pay a total amount which exceeds the Suite 400 Improvement Allowance and Landlord’s Drawing Contribution. Notwithstanding the foregoing or any contrary provision of the Lease, all Suite 400 Improvements shall be deemed Landlord’s property under the terms of the Lease. Any unused portion of the Suite 400 Improvement Allowance remaining (and not otherwise designated as a Base Rent credit pursuant to Section 2.2.1.9 below) as of the last day of the fifteenth (15th) full calendar month following the Suite 400 Commencement Date, shall remain with Landlord and Tenant shall have no further right thereto (the “Outside Allowance Date”).

2.2 Disbursement of the Suite 400 Improvement Allowance.

2.2.1 Suite 400 Improvement Allowance Items. Except as otherwise set forth in this Suite 400 Expansion Premises Work Letter, the Suite 400 Improvement Allowance shall be disbursed by Landlord (each of which disbursements shall be made pursuant to Landlord’s disbursement process, including, without limitation, Landlord’s receipt of invoices for all costs and fees described herein) only for the following items and costs (collectively the “Suite 400 Improvement Allowance Items”):

 

Landlord’s initials /s/ K.W.                

      Tenant’s initials /s/ B.R.                

 

      CHINA BASIN
   EXHIBIT B    Third Amendment
   2    Lyft, Inc.


2.2.1.1 Payment of the fees of the “Architect” and the “Engineers,” as those terms are defined in Section 3.1 of this Suite 400 Expansion Premises Work Letter, and payment of the fees incurred by, and the cost of documents and materials supplied by, Landlord and Landlord’s consultants in connection with the preparation and review of the “Construction Drawings,” as that term is defined in Section 3.1 of this Suite 400 Expansion Premises Work Letter, and the cost of computer and telecommunication cabling, reasonably incurred by Tenant, which payment for the foregoing items in this Section 2.2.1.1 shall not exceed an aggregate amount equal to $4.00 per rentable square foot of the entire Suite 400 Expansion Premises;

2.2.1.2 The payment of plan check, permit and license fees relating to construction of the Suite 400 Improvements;

2.2.1.3 The cost of construction of the Suite 400 Improvements, including, without limitation, costs of installing submeters to monitor the electricity usage in the Suite 400 Expansion Premises pursuant to Section 6.1.2 of the Original Lease, testing and inspection costs, after-hours and above-standard freight elevator usage, hoisting and trash removal costs, and contractors’ fees and general conditions;

2.2.1.4 Other than the Code Work which is Landlord’s responsibility as outlined in Section 1.2 above, the cost of any changes in the Base Building when such changes are required by the Construction Drawings (including if such changes are due to the fact that such work is prepared on an unoccupied basis), such cost to include all direct architectural and/or engineering fees and expenses incurred in connection therewith, but excluding any costs that are Landlord’s obligation pursuant to the terms of Section 1 of this Suite 400 Expansion Premises Work Letter;

2.2.1.5 The cost of any changes to the Construction Drawings or Suite 400 Improvements required by all applicable building codes (the “Code”), but excluding any costs that are Landlord’s obligation pursuant to the terms of Section 1 of this Suite 400 Expansion Premises Work Letter;

2.2.1.6 The cost of the “Coordination Fee,” as that term is defined in Section 4.2.2.1 of this Suite 400 Expansion Premises Work Letter;

2.2.1.7 Sales and use taxes;

2.2.1.8 All other costs to be expended by Landlord in connection with the construction of the Suite 400 Improvements; and

 

Landlord’s initials /s/ K.W.                

      Tenant’s initials /s/ B.R.                

 

      CHINA BASIN
   EXHIBIT B    Third Amendment
   3    Lyft, Inc.


2.2.1.9 Following the completion of the Suite 400 Improvements and prior to the Outside Allowance Date, Tenant shall have the right, exercisable by written notice to Landlord, to elect to use the unused amount of the Suite 400 Improvement Allowance to receive a credit against future installments of monthly Base Rent coming due under the Lease, as amended; provided, however, the total amount of such Base Rent credit shall not exceed Five Dollars ($5.00) per RSF of the Suite 400 Expansion Premises, and, as determined on a monthly installment basis, such credit shall not exceed fifty percent (50%) of the Base Rent otherwise due and owing for such month. Any Base Rent credit under this Section 2.2.1.9 shall be applied to the Base Rent due promptly following the expiration of the Suite 400 Abatement Period.

2.2.2 Disbursement of Suite 400 Improvement Allowance. At Tenant’s option, Landlord shall (i) make a lump sum disbursement of the Suite 400 Improvement Allowance for the Suite 400 Improvement Allowance Items, following completion of the Suite 400 Improvements and Landlord’s receipt of the items specified below applicable to release of the “Final Retention” or (ii) make multiple disbursements, not more than once per month, of the Suite 400 Improvement Allowance for Suite 400 Improvement Allowance Items and shall authorize the release of monies as follows. Tenant shall make such election prior to requesting any disbursement of the Suite 400 Improvement Allowance.

2.2.2.1 Monthly Disbursements. If Tenant elects to receive multiple disbursements of the Suite 400 Improvement Allowance, on or before the twentieth (20th) day of any calendar month, during the construction of the Suite 400 Improvements (or such other date as Landlord may designate), Tenant shall deliver to Landlord: (i) a request for payment of the “Contractor,” as that term is defined in Section 4.1.1 of this Suite 400 Expansion Premises Work Letter, approved by Tenant, in a form to be provided by Landlord, showing the schedule, by trade, of percentage of completion of the Suite 400 Improvements in the Suite 400 Expansion Premises, detailing the portion of the work completed and the portion not completed; (ii) invoices from all of “Tenant’s Agents,” as that term is defined in Section 4.1.2 of this Suite 400 Expansion Premises Work Letter, for labor rendered and materials delivered to the Suite 400 Expansion Premises; (iii) executed mechanic’s lien releases from all of Tenant’s Agents which shall comply with the appropriate provisions, as reasonably determined by Landlord, of California Civil Code Sections 8132, 8134, 8136 and 8138; and (iv) all other information reasonably requested by Landlord. Tenant’s request for payment shall be deemed Tenant’s acceptance and approval of the work furnished and/or the materials supplied as set forth in Tenant’s payment request. Thereafter, Landlord shall deliver a check to Tenant made jointly payable to Contractor and Tenant in payment of the lesser of: (A) the amounts so requested by Tenant, as set forth in this Section 2.2.2.1, above, less a ten percent (10%) retention (the aggregate amount of such retentions to be known as the “Final Retention”), and (B) the balance of any remaining available portion of the Suite 400 Improvement Allowance (not including the Final Retention), provided that Landlord does not reasonably dispute any request for payment based on non-compliance of any work with the “Approved Working Drawings,” as that term is defined in Section 3.4 below, or due to any substandard work, or for any other reason. Landlord’s payment of such amounts shall not be deemed Landlord’s approval or acceptance of the work furnished or materials supplied as set forth in Tenant’s payment request.

 

Landlord’s initials /s/ K.W.                

      Tenant’s initials /s/ B.R.                

 

      CHINA BASIN
   EXHIBIT B    Third Amendment
   4    Lyft, Inc.


2.2.2.2 Final Retention. Subject to the provisions of this Suite 400 Expansion Premises Work Letter, a check for the Final Retention payable to Tenant shall be delivered by Landlord to Tenant following the completion of construction of the Suite 400 Improvements, provided that (i) Tenant delivers to Landlord properly executed mechanic’s lien releases in compliance with both California Civil Code Section 8134 and Section 8138, (ii) Landlord has reasonably determined that no substandard work exists which adversely affects the mechanical, electrical, plumbing, heating, ventilating and air conditioning, life-safety or other systems of the Building, the curtain wall of the Building, the structure or exterior appearance of the Building, or any other tenant’s use of such other tenant’s leased premises in the Building, and (iii) Architect delivers to Landlord a certificate, in a form reasonably acceptable to Landlord, certifying that the construction of the Suite 400 Improvements has been substantially completed.

2.2.2.3 Other Terms. Landlord shall only be obligated to make disbursements from the Suite 400 Improvement Allowance to the extent costs are incurred by Tenant for Suite 400 Improvement Allowance Items.

2.3 Building Standards. Landlord has established or may establish specifications for certain Building standard components to be used in the construction of the Suite 400 Improvements in the Suite 400 Expansion Premises. The quality of Suite 400 Improvements shall be equal to or of greater quality than the quality of such Building standards, provided that Landlord may, at Landlord’s option, require the Suite 400 Improvements to comply with certain Building standards. Landlord may make changes to said specifications for Building standards from time to time upon no less than thirty (30) days prior written notice to Tenant; provided, however, such changes shall not apply to any elements of the Suite 400 Improvements that were previously approved by Landlord.

2.4 Removal Requirements. Tenant’s removal requirements with respect to the Suite 400 Improvements are set forth in Section 8.5 of the Original Lease, as amended by Section 10 of this Third Amendment, including Tenant’s right to request that Landlord waive certain removal requirements pursuant to the terms thereof.

SECTION 3

CONSTRUCTION DRAWINGS

3.1 Selection of Architect/Construction Drawings. Tenant shall retain the architect/space planner designated by Tenant and reasonably approved by Landlord (the “Architect”) to prepare the “Construction Drawings,” as that term is defined in this Section 3.1. Landlord hereby approves Studio as the Architect. Tenant shall retain the engineering consultants designated by Tenant and reasonably approved by Landlord (the “Engineers”) to prepare all plans and engineering working drawings relating to the structural, mechanical, electrical, plumbing, HVAC, lifesafety, and sprinkler work in the Suite 400 Expansion Premises, which work is not part of the Base Building. The plans and drawings to be prepared by Architect and the Engineers hereunder shall be known collectively as the “Construction Drawings.” Tenant acknowledges that a concrete masonry shear wall exists on the west demising wall of Suite 4000 in the Premises. Any penetrations of the shear wall will require structural engineering review, and the Construction Drawings shall include any shear replacement values. Any and all

 

Landlord’s initials /s/ K.W.                

      Tenant’s initials /s/ B.R.                

 

      CHINA BASIN
   EXHIBIT B    Third Amendment
   5    Lyft, Inc.


such costs shall be payable by Tenant subject to reimbursement from the Suite 400 Improvement Allowance. All Construction Drawings shall be subject to Landlord’s approval, such approval not to be unreasonably withheld, conditioned or delayed. Tenant and Architect shall verify, in the field, the dimensions and conditions as shown on the relevant portions of the Base Building plans, and Tenant and Architect shall be solely responsible for the same, and Landlord shall have no responsibility in connection therewith. Landlord’s review of the Construction Drawings as set forth in this Section 3, shall be for its sole purpose and shall not imply Landlord’s review of the same, or obligate Landlord to review the same, for quality, design, Code compliance or other like matters. Accordingly, notwithstanding that any Construction Drawings are reviewed by Landlord or its space planner, architect, engineers and consultants, and notwithstanding any advice or assistance which may be rendered to Tenant by Landlord or Landlord’s space planner, architect, engineers, and consultants, Landlord shall have no liability whatsoever in connection therewith and shall not be responsible for any omissions or errors contained in the Construction Drawings, and Tenant’s waiver and indemnity set forth in the Lease (as amended) shall specifically apply to the Construction Drawings.

3.2 Final Space Plan. Tenant shall supply Landlord with one PDF copy signed by Tenant of its final space plan for the Suite 400 Expansion Premises. The final space plan (the “Final Space Plan”) shall include a layout and designation of all offices, rooms and other partitioning, their intended use, and equipment to be contained therein. Such Final Space Plan shall be approved by Landlord, which approval shall not be unreasonably withheld, conditioned or delayed; provided, however, without limitation as to other reasonable grounds for withholding consent, it shall be deemed reasonable for Landlord to withhold its consent to any proposed Suite 400 Improvements or aspect of the Final Space Plan in the event the same (i) require, or might reasonably require, or give rise to governmentally required changes to the Base Building, (ii) have an adverse effect on the structural integrity of the Building; (iii) are not in compliance with Code; (iv) have an adverse effect on the systems and equipment of the Building; (v) have an effect on the exterior appearance of the Building; or (vi) cause unreasonable interference with the normal and customary office operations of any other tenant in the Building (individually or collectively, a “Design Problem”). Landlord may request clarification or more specific drawings for special use items not included in the Final Space Plan. Landlord shall advise Tenant within five (5) business days after Landlord’s receipt of the Final Space Plan for the Suite 400 Expansion Premises if the same is unsatisfactory or incomplete in any respect. If Tenant is so advised, Tenant shall promptly cause the Final Space Plan to be revised to correct any deficiencies or other matters Landlord may reasonably require. If Landlord fails to notify Tenant of Landlord’s approval or disapproval of any such Final Space Plan within such five (5) business day period, Tenant shall have the right to provide Landlord with a second written request for approval (a “Second Request”) that specifically identifies the Final Space Plan and contains the following statement in bold and capital letters: “THIS IS A SECOND REQUEST FOR APPROVAL PURSUANT TO THE PROVISIONS OF SECTION 3.2 OF THE WORK LETTER ATTACHED TO THE THIRD AMENDMENT TO LEASE. IF LANDLORD FAILS TO RESPOND WITHIN THREE (3) BUSINESS DAYS AFTER RECEIPT OF THIS NOTICE, THEN LANDLORD SHALL BE DEEMED TO HAVE APPROVED THE FINAL SPACE PLAN.” If Landlord fails to respond to such Second Request within three (3) business days after receipt by Landlord, the Final Space Plan in question shall be deemed approved by Landlord.

 

Landlord’s initials /s/ K.W.                

      Tenant’s initials /s/ B.R.                

 

      CHINA BASIN
   EXHIBIT B    Third Amendment
   6    Lyft, Inc.


3.3 Final Working Drawings. After the Final Space Plan has been approved (or deemed approved) by Landlord, Tenant shall supply the Engineers with a complete listing of standard and non-standard equipment and specifications, including, without limitation, fire-suppression system requirements, B.T.U. calculations, electrical requirements and special electrical receptacle requirements for the Suite 400 Expansion Premises, to enable the Engineers and the Architect to complete the “Final Working Drawings” (as that term is defined below) in the manner as set forth below. Upon the approval of the Final Space Plan by Landlord and Tenant, Tenant shall promptly cause the Architect and the Engineers to complete the architectural and engineering drawings for the Suite 400 Expansion Premises, and Architect shall compile a fully coordinated set of architectural, structural, mechanical, electrical and plumbing working drawings in a form which is complete to allow subcontractors to bid on the work and to obtain all applicable permits (collectively, the “Final Working Drawings”) and shall submit the same to Landlord for Landlord’s approval; however, Tenant shall have the ability to submit architectural and engineered drawings at separate times, all subject to the timelines outlined below. Tenant shall supply Landlord with one (1) copy signed by Tenant (and three (3) additional unsigned copies as necessary for review) of such Final Working Drawings. Such Final Working Drawings shall be approved by Landlord, which approval shall not be unreasonably withheld, conditioned or delayed; provided, however, without limitation as to other reasonable grounds for withholding consent, it shall be deemed reasonable for Landlord to withhold its consent to any proposed Suite 400 Improvements or aspect of the Final Working Drawings in the event the same causes a Design Problem. Landlord shall advise Tenant within ten (10) business days after Landlord’s receipt of the Final Working Drawings for the Suite 400 Expansion Premises if the same is unsatisfactory or incomplete in any respect. If Tenant is so advised, Tenant shall promptly cause the Final Working Drawings to be revised in accordance with such review and any disapproval of Landlord in connection therewith. If Landlord fails to notify Tenant of Landlord’s approval or disapproval of any such Final Working Drawings within such ten (10) business day period, Tenant shall have the right to provide Landlord with a second written request for approval (a “Working Drawing Second Request”) that specifically identifies the Final Working Drawings and contains the following statement in bold and capital letters: “THIS IS A SECOND REQUEST FOR APPROVAL PURSUANT TO THE PROVISIONS OF SECTION 3.3 OF THE WORK LETTER ATTACHED TO THE THIRD AMENDMENT TO LEASE. IF LANDLORD FAILS TO RESPOND WITHIN FIVE (5) BUSINESS DAYS AFTER RECEIPT OF THIS NOTICE, THEN LANDLORD SHALL BE DEEMED TO HAVE APPROVED THE FINAL WORKING DRAWINGS.” If Landlord fails to respond to such Working Drawing Second Request within five (5) business days after receipt by Landlord, the Final Working Drawings in question shall be deemed approved by Landlord. Subject to Landlord’s obligation to perform the Code Work, if the Final Working Drawings or any amendment thereof or supplement thereto shall require alterations in the Base Building (as contrasted with the Suite 400 Improvements), and if Landlord in its sole and exclusive discretion agrees to any such alterations, and notifies Tenant of the need and cost for such alterations, then Tenant may elect to either: (i) value engineer the Final Working

 

Landlord’s initials /s/ K.W.                

      Tenant’s initials /s/ B.R.                

 

      CHINA BASIN
   EXHIBIT B    Third Amendment
   7    Lyft, Inc.


Drawings so as to reduce or eliminate such cost, or (ii) pay the cost of such required changes in advance upon receipt of notice thereof, and if Tenant elects to pay such costs for the required change, then Tenant shall also pay all direct architectural and/or engineering fees in connection with such Base Building changes, plus one and one-half percent (112%) of such direct costs for Landlord’s servicing and overhead.

3.4 Approved Working Drawings. The Final Working Drawings shall be approved by Landlord (the “Approved Working Drawings”) prior to the commencement of construction of the Suite 400 Expansion Premises by Tenant. After approval (or deemed approval) by Landlord of the Final Working Drawings, Tenant may submit the same to the appropriate municipal authorities for all applicable building permits. Tenant hereby agrees that neither Landlord nor Landlord’s consultants shall be responsible for obtaining any building permit or certificate of occupancy for the Suite 400 Expansion Premises and that obtaining the same shall be Tenant’s responsibility; provided, however, that Landlord shall cooperate with Tenant in executing permit applications and performing other ministerial acts reasonably necessary to enable Tenant to obtain any such permit or certificate of occupancy. No changes, modifications or alterations in the Approved Working Drawings may be made without the prior written consent of Landlord, which consent may not be unreasonably withheld.

3.5 Tenant’s Plans. Landlord acknowledges and agrees that any architectural plans, layouts, and drawings (individually and collectively, “Lyft Drawings”) may be used by Landlord solely in connection with and for the build-out of the Suite 400 Expansion Premises and future reference or use as may be required in the normal course of owning and operating a commercial office building, and for no other purpose. Nothing in the Lease or this Third Amendment shall be construed as granting any rights under any copyright or other intellectual property right of any nature of Tenant in and to the Lyft Drawings, and Landlord acknowledges that Landlord has no ownership rights to the Lyft Drawings.

3.6 Change Orders. In the event Tenant desires to make any material changes to the Approved Working Drawings, Tenant shall deliver written notice (the “Drawing Change Notice”) of the same to Landlord (which Landlord may require to be on a standard AIA Change Order form), setting forth in detail the proposed changes (the “Tenant Change”) Tenant desires to make to the Approved Working Drawings. Within three (3) business days following receipt of a Drawing Change Notice, Landlord shall deliver written notice to Tenant of either (i) Landlord’s approval of the proposed Tenant Change, or (ii) its disapproval of the proposed Tenant Change (not to be unreasonably withheld, conditioned or delayed, in accordance with Landlord’s rights under Section 3.3 of this Suite 400 Expansion Premises Work Letter) specifying in reasonably sufficient detail the reasons for Landlord’s disapproval. If Landlord fails to notify Tenant of Landlord’s approval or disapproval of any such Tenant Change within such three (3) business day period, Tenant shall have the right to provide Landlord with a second written request for approval (a “Tenant Change Second Request”) that specifically identifies the Tenant Change and contains the following statement in bold and capital letters: “THIS IS A SECOND REQUEST FOR APPROVAL PURSUANT TO THE PROVISIONS OF SECTION 3.6 OF THE WORK LETTER ATTACHED TO THE THIRD AMENDMENT TO LEASE. IF

 

Landlord’s initials /s/ K.W.                

      Tenant’s initials /s/ B.R.                

 

      CHINA BASIN
   EXHIBIT B    Third Amendment
   8    Lyft, Inc.


LANDLORD FAILS TO RESPOND WITHIN FIVE (5) BUSINESS DAYS AFTER RECEIPT OF THIS NOTICE, THEN LANDLORD SHALL BE DEEMED TO HAVE APPROVED THE TENANT CHANGE.” If Landlord fails to respond to such Tenant Change Second Request within five (5) business days after receipt by Landlord, the Tenant change in question shall be deemed approved by Landlord. Tenant shall pay all additional costs and fees, if any, attributable to such Tenant Change, subject to application of the Suite 400 Improvement Allowance.

SECTION 4

CONSTRUCTION OF THE SUITE 400 IMPROVEMENTS

4.1 Tenant’s Selection of Contractors.

4.1.1 The Contractor. A general contractor shall be retained by Tenant to construct the Suite 400 Improvements. Such general contractor (“Contractor”) shall be selected by Tenant and reasonably approved by Landlord. Landlord hereby approves NOVO Construction as the Contractor.

4.1.2 Tenant’s Agents. All subcontractors, laborers, materialmen, and suppliers used by Tenant (such subcontractors, laborers, materialmen, and suppliers, and the Contractor to be known collectively as “Tenant’s Agents”) must be approved in writing by Landlord, which approval shall not be unreasonably withheld or delayed. If Landlord does not approve any of Tenant’s proposed subcontractors, laborers, materialmen or suppliers, Tenant shall submit other proposed subcontractors, laborers, materialmen or suppliers for Landlord’s written approval. All of Tenant’s Agents retained directly by Tenant shall all be union labor in compliance with the then existing master labor agreements.

4.2 Construction of Suite 400 Improvements by Tenant’s Agents.

4.2.1 Construction Contract; Cost Budget. Tenant shall engage the Contractor under a contract in a form reasonably approved by Landlord (collectively, the “

Contract”). Landlord’s failure to respond to Tenant’s request for approval of the Contract within five (5) business days shall constitute Landlord’s deemed approval of the Contract. Prior to the commencement of the construction of the Suite 400 Improvements, Tenant shall provide a copy of the Contract to Landlord for its records. In addition, prior to the commencement of the construction of the Suite 400 Improvements, and after Tenant has accepted all bids for the Suite 400 Improvements, Tenant shall provide Landlord with a detailed breakdown, by trade, of the final costs to be incurred or which have been incurred, as set forth more particularly in Sections 2.2.1.1 through 2.2.1.9, above, in connection with the design and construction of the Suite 400 Improvements to be performed by or at the direction of Tenant or the Contractor, which costs form a basis for the amount of the Contract (the “Final Costs”).

4.2.1.1 Intentionally Deleted.

 

Landlord’s initials /s/ K.W.                

      Tenant’s initials /s/ B.R.                

 

      CHINA BASIN
   EXHIBIT B    Third Amendment
   9    Lyft, Inc.


4.2.1.2 Lump Sum Disbursement Option. If Tenant elects to receive a lump sum disbursement of the Suite 400 Improvement Allowance pursuant to Section 2.2.2 above, then Tenant shall be solely responsible for the timely payment of all Final Costs (subject to reimbursement from the Suite 400 Improvement Allowance pursuant to Section 2.2.2 above), and in the event that, after the Final Costs have been delivered by Tenant to Landlord, the costs relating to the design and construction of the Suite 400 Improvements shall change, any additional costs necessary to such design and construction in excess of the Final Costs, shall be paid by out of its own funds.

4.2.2 Tenant’s Agents.

4.2.2.1 Landlord’s General Conditions for Tenant’s Agents and Improvement Work. Tenant’s and Tenant’s Agent’s construction of the Suite 400 Improvements shall comply with the following: (i) the Suite 400 Improvements shall be constructed in strict accordance with the Approved Working Drawings; (ii) Tenant’s Agents shall submit schedules of all work relating to the Suite 400 Improvements to Contractor and Contractor shall, within five (5) business days of receipt thereof, inform Tenant’s Agents of any changes which are necessary thereto, and Tenant’s Agents shall adhere to such corrected schedule; and (iii) Tenant shall abide by all rules made by Landlord’s Building manager with respect to the use of freight, loading dock and service elevators, storage of materials, coordination of work with the contractors of other tenants, and any other matter in connection with this Suite 400 Expansion Premises Work Letter, including, without limitation, the construction of the Suite 400 Improvements. Tenant shall pay a logistical coordination fee (the “Coordination Fee”) to Landlord in an amount equal to the product of (A) one and one-half percent (1.5%), and (B) the total amount of the hard costs of the Suite 400 Improvements, which Coordination Fee shall be for services relating to the coordination of the construction of the Suite 400 Improvements.

4.2.2.2 Indemnity. Tenant’s indemnity of Landlord as set forth in the Lease (as amended) shall also apply with respect to any and all costs, losses, damages, injuries and liabilities related in any way to any act or omission of Tenant or Tenant’s Agents, or anyone directly or indirectly employed by any of them, or in connection with Tenant’s non-payment of any amount arising out of the Suite 400 Improvements and/or Tenant’s disapproval of all or any portion of any request for payment. Such indemnity by Tenant, as set forth in the Lease (as amended), shall also apply with respect to any and all costs, losses, damages, injuries and liabilities related in any way to Landlord’s performance of any ministerial acts (including execution of any documents pursuant to the last two sentences of Section 4.3 below) reasonably necessary (i) to permit Tenant to complete the Suite 400 Improvements, and (ii) to enable Tenant to obtain any building permit or certificate of occupancy for the Suite 400 Expansion Premises. The foregoing indemnity shall not apply to claims to the extent caused by the willful misconduct of Landlord, its member partners, shareholders, officers, directors, or employees.

 

Landlord’s initials /s/ K.W.                

      Tenant’s initials /s/ B.R.                

 

      CHINA BASIN
   EXHIBIT B    Third Amendment
   10    Lyft, Inc.


4.2.2.3 Requirements of Tenant’s Agents. Each of Tenant’s Agents shall guarantee to Tenant and for the benefit of Landlord that the portion of the Suite 400 Improvements for which it is responsible shall be free from any defects in workmanship and materials for a period of not less than one (1) year from the date of completion thereof. Each of Tenant’s Agents shall be responsible for the replacement or repair, without additional charge, of all work done or furnished in accordance with its contract that shall become defective within one (1) year after the later to occur of (i) completion of the work performed by such contractor or subcontractors and (ii) the Suite 400 Commencement Date. The correction of such work shall include, without additional charge, all additional expenses and damages incurred in connection with such removal or replacement of all or any part of the Suite 400 Improvements, and/or the Building and/or common areas that may be damaged or disturbed thereby. All such warranties or guarantees as to materials or workmanship of or with respect to the Suite 400 Improvements shall be contained in the Contract or subcontract and shall be written such that such guarantees or warranties shall inure to the benefit of both Landlord and Tenant, as their respective interests may appear, and can be directly enforced by either. Tenant covenants to give to Landlord any assignment or other assurances which may be necessary to effect such right of direct enforcement.

4.2.2.4 Insurance Requirements.

4.2.2.4.1 General Coverages. All of Tenant’s Agents shall carry worker’s compensation insurance covering all of their respective employees, and shall also carry public liability insurance, including property damage, all with limits, in form and with companies as are required to be carried by Tenant as set forth in the Lease (as amended).

4.2.2.4.2 Special Coverages. Tenant shall cause its general contractor to carry “Builder’s All Risk” insurance in an amount approved by Landlord covering the construction of the Suite 400 Improvements, and such other insurance as Landlord may require, it being understood and agreed that the Suite 400 Improvements shall be insured by Tenant pursuant to the Lease (as amended) immediately upon completion thereof. Such insurance shall be in amounts and shall include such extended coverage endorsements as may be reasonably required by Landlord including, but not limited to, the requirement that all of Tenant’s Agents shall carry excess liability and Products and Completed Operation Coverage insurance, each in amounts not less than $5,000,000 per incident, $5,000,000 in aggregate, and in form and with companies as are required to be carried by Tenant as set forth in the Lease (as amended).

4.2.2.4.3 General Terms. Certificates for all insurance carried pursuant to this Section 4.2.2.4 shall be delivered to Landlord before the commencement of construction of the Suite 400 Improvements and before the Contractor’s equipment is moved onto the site. Tenant will give Landlord thirty (30) days prior written notice of any cancellation or lapse of the effective date or any reduction in the amounts of such insurance. In the event that the Suite 400 Improvements are damaged by any cause during the course of the construction thereof, Tenant shall immediately repair the same at Tenant’s sole cost and expense. Tenant’s Agents shall maintain all of the foregoing insurance coverage in force until the Suite 400 Improvements are fully completed and accepted by Landlord, except for any Products and

 

Landlord’s initials /s/ K.W.                

      Tenant’s initials /s/ B.R.                

 

      CHINA BASIN
   EXHIBIT B    Third Amendment
   11    Lyft, Inc.


Completed Operation Coverage insurance required by Landlord, which is to be maintained for ten (10) years following completion of the work and acceptance by Landlord and Tenant. All policies carried under this Section 4.2.2.4 shall insure Landlord and Tenant, as their interests may appear, as well as Contractor and Tenant’s Agents. All insurance, except Workers’ Compensation, maintained by Tenant’s Agents shall preclude subrogation claims by the insurer against anyone insured thereunder. Such insurance shall provide that it is primary insurance as respects the owner and that any other insurance maintained by owner is excess and noncontributing with the insurance required hereunder. The requirements for the foregoing insurance shall not derogate from the provisions for indemnification of Landlord by Tenant under Section 4.2.2.2 of this Suite 400 Expansion Premises Work Letter.

4.2.3 Governmental Compliance. The Suite 400 Improvements shall comply in all respects with the following: (i) the Code and other state, federal, city or quasi-governmental laws, codes, ordinances and regulations (specifically including, without limitation, any OSHA requirements) as each may apply according to the rulings of the controlling public official, agent or other person; (ii) applicable standards of the American Insurance Association (formerly, the National Board of Fire Underwriters) and the National Electrical Code; and (iii) building material manufacturer’s specifications. In the event any of the Suite 400 Improvements require or give rise to governmentally required changes to the Base Building (specifically including, without limitation, the installation of any venting or other air-removal/circulation system), then Landlord shall notify Tenant of the need and cost for such changes, and Tenant may elect to either: (A) value engineer the Final Working Drawings so as to reduce or eliminate such cost, (B) pay the cost of such required changes in advance upon receipt of notice thereof, and if Tenant elects to pay such costs for the required change, then Tenant shall also pay all direct architectural and/or engineering fees in connection with such Base Building changes, plus one and one-half percent (112%) of such direct costs for Landlord’s servicing and overhead.

4.2.4 Inspection by Landlord. Landlord shall have the right to inspect the Suite 400 Improvements at all times, provided however, that Landlord’s failure to inspect the Suite 400 Improvements shall in no event constitute a waiver of any of Landlord’s rights hereunder nor shall Landlord’s inspection of the Suite 400 Improvements constitute Landlord’s approval of the same. Should Landlord disapprove any portion of the Suite 400 Improvements, Landlord shall notify Tenant in writing of such disapproval and shall specify the items disapproved. Any defects or deviations in, and/or disapproval by Landlord of, the Suite 400 Improvements shall be rectified by Tenant at no expense to Landlord, provided however, that in the event Landlord determines that a defect or deviation exists or disapproves of any matter in connection with any portion of the Suite 400 Improvements and such defect, deviation or matter might adversely affect the mechanical, electrical, plumbing, heating, ventilating and air conditioning or life-safety systems of the Building, the structure or exterior appearance of the Building or any other tenant’s use of such other tenant’s leased premises, Landlord may, upon three (3) business days prior written notice to take such action as Landlord reasonably deems necessary, at Tenant’s expense and without incurring any liability on Landlord’s part, to correct any such defect, deviation and/or matter, including, without limitation, causing the cessation of performance of the construction of the Suite 400 Improvements until such time as the defect, deviation and/or matter is corrected to Landlord’s reasonable satisfaction.

 

Landlord’s initials /s/ K.W.                

      Tenant’s initials /s/ B.R.                

 

      CHINA BASIN
   EXHIBIT B    Third Amendment
   12    Lyft, Inc.


4.2.5 Meetings. Within ninety (90) days following the execution of this Third Amendment, or as soon as practical thereafter, Tenant shall hold weekly meetings at a reasonable time, with the Architect and the Contractor regarding the progress of the preparation of Construction Drawings and the construction of the Suite 400 Improvements, which meetings shall be held at a location reasonably acceptable to Landlord, and Landlord and/or its agents shall receive prior notice of, and shall have the right to attend, all such meetings, and, upon Landlord’s request, certain of Tenant’s Agents shall attend such meetings. In addition, minutes shall be taken at all such meetings, a copy of which minutes shall be promptly delivered to Landlord. Following commencement of construction of the Suite 400 Improvements, one such meeting each month shall include the review of Contractor’s current request for payment.

4.3 Notice of Completion; Copy of Record Set of Plans. Within ten (10) business days after completion of construction of the Suite 400 Improvements, Tenant shall cause a Notice of Completion to be recorded in the office of the Recorder of the county in which the Building is located in accordance with Section 8182 of the Civil Code of the State of California or any successor statute, and shall furnish a copy thereof to Landlord upon such recordation. If Tenant fails to do so, Landlord may execute and file the same as Tenant’s agent for such purpose, at Tenant’s sole cost and expense. At the conclusion of construction, (i) Tenant shall cause the Architect and Contractor (A) to update the Approved Working Drawings as necessary to reflect all changes made to the Approved Working Drawings during the course of construction, (B) to certify to the best of their knowledge that the “record-set” of as-built drawings are true and correct, which certification shall survive the expiration or termination of the Lease (as amended), and (C) to deliver to Landlord two (2) electronic CAD’s and two (2) full-size sets of copies of such record set of drawings within ninety (90) days following issuance of a certificate of occupancy for the Suite 400 Expansion Premises, and (ii) Tenant shall deliver to Landlord a copy of all warranties, guaranties, and operating manuals and information relating to the improvements, equipment, and systems in the Suite 400 Expansion Premises. Within fifteen (15) days after request by Tenant following the substantial completion of the Tenant Improvements, Landlord will acknowledge its approval of the Suite 400 Improvements (provided that such approval has been granted) by placing its signature on a Contractor’s Certificate of Substantial Completion fully executed by the Architect, Contractor and Tenant. Landlord’s approval shall not create any contingent liabilities or impose any responsibility for Landlord with respect to any latent quality, completeness, design sufficiency, means and methods of construction, Code compliance or other like matters that may arise subsequent to Landlord’s approval.

SECTION 5

MISCELLANEOUS

5.1 Tenant’s Representative. Tenant has designated Nancy Losey as its sole representative with respect to the matters set forth in this Suite 400 Expansion Premises Work Letter, who shall have full authority and responsibility to act on behalf of the Tenant as required in this Suite 400 Expansion Premises Work Letter.

 

Landlord’s initials /s/ K.W.                

      Tenant’s initials /s/ B.R.                

 

      CHINA BASIN
   EXHIBIT B    Third Amendment
   13    Lyft, Inc.


5.2 Landlord’s Representative. Landlord has designated Ms. Jane Echlin as its sole representative with respect to the matters set forth in this Suite 400 Expansion Premises Work Letter, who, until further notice to Tenant, shall have full authority and responsibility to act on behalf of the Landlord as required in this Suite 400 Expansion Premises Work Letter.

5.3 Time of the Essence in This Suite 400 Expansion Premises Work Letter. Unless otherwise indicated, all references herein to a “number of days” shall mean and refer to calendar days. If any item requiring approval is timely disapproved by Landlord, the procedure for preparation of the document and approval thereof shall be repeated until the document is approved by Landlord.

5.4 Tenant’s Lease Default. Notwithstanding any provision to the contrary contained in the Lease or this Suite 400 Expansion Premises Work Letter, if any monetary or material non-monetary Default by Tenant under the Lease or default under this Suite 400 Expansion Premises Work Letter occurs at any time on or before the substantial completion of the Suite 400 Improvements and such default remains uncured five (5) days following Landlord’s notice of such default to Tenant, then in addition to all other rights and remedies granted to Landlord pursuant to the Lease, Landlord shall have the right to withhold payment of all or any portion of the Suite 400 Improvement Allowance and/or Landlord may, without any liability whatsoever, cause the cessation of construction of the Suite 400 Improvements (in which case, Tenant shall be responsible for any delay in the substantial completion of the Suite 400 Improvements and any costs occasioned thereby).

 

LandLord’s initials /s/ K.W.

     

Tenant’s initials /s/ B.R.

 

      CHINA BASIN
   EXHIBIT B    Third Amendment
   14    Lyft, Inc.


FOURTH AMENDMENT TO OFFICE LEASE

This FOURTH AMENDMENT TO OFFICE LEASE (this “Fourth Amendment”) is made and entered into as of September 24, 2018 (“Effective Date”), by and between SPF CHINA BASIN HOLDINGS, LLC, a Delaware limited liability company (“Landlord”), and LYFT, INC., a Delaware corporation (“Tenant”).

R E C I T A L S :

A. Landlord and Tenant entered into that certain Office Lease dated April 8, 2016 (the “Original Lease”), whereby Landlord leases to Tenant and Tenant leases from Landlord those certain premises consisting of (i) approximately 25,783 rentable square feet of space (“RSF”) located in Suite 3000 on the third (3rd) floor of the “Wharfside Building,” located at 185 Berry Street, San Francisco, California (“Wharfside Building”), (ii) approximately 26,514 RSF located in Suite 500 on the fifth (5th) floor of the “Berry Street Building” located at 185 Berry Street, San Francisco, California (“Berry Street Building”), and (iii) approximately 41,430 RSF located in Suite 590 on the fifth (5th) floor of the Berry Street Building

B. Landlord and Tenant entered into that certain First Amendment to Office Lease dated September 27, 2017 (the “First Amendment”), pursuant to which Landlord leases to Tenant and Tenant leases from Landlord the “Expansion Premises” which includes certain space consisting of (i) approximately 57,692 rentable square feet of space, commonly known as Suite 4000, on the fourth (4th) floor of the Wharfside Building, and (ii) approximately 16,801 rentable square feet of space, commonly known as Suite 550, on the fifth (5th) floor of the Berry Street Building (the “Phase 2 Expansion Premises”).

C. Landlord and Tenant entered into that certain Second Amendment to Office Lease dated May 31, 2018 (the “Second Amendment”), pursuant to which Landlord leases to Tenant and Tenant leases from Landlord the “Additional Premises”, containing 23,878 RSF comprised of (i) Suite 3700, containing approximately 5,399 RSF on the 3rd floor of the Wharfside Building, (ii) Suite 6700, containing approximately 4,675 RSF on the 6th floor of the Wharfside Building, (iii) Suite 4700, containing approximately 7,625 RSF on the 4th floor of the Wharfside Building, and (iv) Suite 6600, containing approximately 6,179 RSF on the 6th floor of the Wharfside Building.

D. Landlord and Tenant entered into that certain Third Amendment to Office Lease dated June 11, 2018 (the “Third Amendment”), pursuant to which Tenant leases Suite 400 containing approximately 85,591 RSF on the 4th floor of the Berry Building (the “Suite 400 Expansion Premises”). The Original Lease, as amended by the First Amendment, the Second Amendment, and the Third Amendment is referred to herein collectively as the “Lease”. The Wharfside Building and Berry Street Building are each referred to herein as the “Building”, and collectively, as the “Buildings”.

E. Landlord and Tenant desire to provide for the accelerated delivery and commencement of Tenant’s lease of the Phase 2 Expansion Premises and of the Suite 400 Expansion Premises, and to make other modifications to the Lease, and in connection therewith, Landlord and Tenant desire to amend the Lease as hereinafter provided.


A G R E E M E N T :

NOW, THEREFORE, in consideration of the foregoing recitals and the mutual covenants contained herein, and for other good and valuable consideration, the receipt and sufficiency of which are hereby acknowledged, the parties hereto hereby agree as follows:

1. Capitalized Terms. All capitalized terms when used herein shall have the same meaning as is given such terms in the Lease unless expressly superseded by the terms of this Fourth Amendment.

2. Suite 400

2.1. Suite 400 Commencement Date and Term. The first and second sentences of Section 2.1 of the Third Amendment are hereby deleted and replaced with the following: “The “Suite 400 Commencement Date” is the date that is four (4) months following the Suite 400 Delivery Date. As used herein, the “Suite 400 Delivery Date” shall mean the date on which Landlord delivers the Suite 400 Expansion Premises to Tenant in the condition required hereunder, which Suite 400 Delivery Date shall not occur prior to September 15, 2018 (the “Anticipated Suite 400 Delivery Date”).” The “Suite 400 Expiration Date,” as defined in Section 3.1 of the Third Amendment, is hereby amended to be May 31, 2030, and the “Suite 400 Expansion Premises Term,” will be approximately eleven (11) years and four (4) months. If the Suite 400 Delivery Date does not occur on the Anticipated Suite 400 Delivery Date, then the Suite 400 Commencement Date shall be extended one day for each day of delay in delivery of the Suite 400 Expansion Premises.

2.2. Suite 400 Base Rent. Tenant shall pay Base Rent for Suite 400 as provided in Section 4 of the Third Amendment. The “Year of Suite 400 Expansion Premises Term” as used in the Base Rent chart in such Section 4 shall mean each twelve (12) month period commencing with the Suite 400 Commencement Date as amended by Section 2.1, above. The Base Rent payable for the Suite 400 Expansion Premises for the period between the end of the 11th Year of the Suite 400 Expansion Premises Term and the Suite 400 Expiration Date (as amended by Section 2.1 above) shall be equal to $124.5811 per RSF of Suite 400 Expansion Premises (i.e., $888,585.06 per month). For the sake of clarity, the parties hereby confirm that if the Suite 400 Delivery Date occurs on October 1, 2018, then Rent shall abate for the period commencing on the Suite 400 Commencement Date through and including August 7, 2019 (a period of 6 months and one week). Section 5 of the Third Amendment is hereby deleted in its entirety and the following language is hereby substituted therefor: “Provided that Tenant is not then in Default of the Lease, then Tenant shall have no obligation to pay the Base Rent and Tenant’s Share of Direct Expenses otherwise attributable to the Suite 400 Expansion Premises during the first 6 months and one week of the Suite 400 Expansion Premises Term (the “Suite 400 Abatement Period”). Landlord and Tenant acknowledge that the total amount of the Base Rent component of the abatement above equals $4,012,017.38 (i.e., $641,932.50 per month for 6 months and one week).”

 

2


2.3. Base Rent Schedule. Section 4 of the Third Amendment is hereby deleted and the following language is hereby substituted therefor: Commencing on the Suite 400 Commencement Date and continuing throughout the Suite 400 Expansion Premises Term, Tenant shall pay to Landlord monthly installments of Base Rent for the Suite 400 Expansion Premises as follows:

 

Year of Suite 400 Expansion Premises Term:

   Period      Monthly
Installment of
Base Rent
     Annual
Rental Rate
Per RSF
 

Year 1

      2/1/191 – 8/7/19       $ 0.00      $ 0.00  

Year 1 (cont.)

     8/8/19 – 1/31/20      $ 641,932.50      $ 90.00  

Year 2

     2/1/20 – 1/31/21      $ 661,190.48      $ 92.7000  

Year 3

     2/1/21 – 1/31/22      $ 681,026.19      $ 95.4810  

Year 4

     2/1/22 – 1/31/23      $ 701,456.76      $ 98.3454  

Year 5

     2/1/23 – 1/31/24      $ 722,500.74      $ 101.2958  

Year 6

     2/1/24 – 1/31/25      $ 744,175.94      $ 104.3347  

Year 7

     2/1/25 – 1/31/26      $ 766,500.93      $ 107.4647  

Year 8

     2/1/26 – 1/31/27      $ 789,495.66      $ 110.6886  

Year 9

     2/1/27 – 1/31/28      $ 813,180.83      $ 114.0093  

Year 10

     2/1/28 – 1/31/29      $ 837,576.41      $ 117.4296  

Year 11

     2/1/29 – 1/31/30      $ 862,703.79      $ 120.9525  

Year 12

     2/1/30 – 5/31/30      $ 888,585.06      $ 124.5811  

For the sake of clarity if the Suite 400 Delivery Date occurs on October 1, 2018, then the Suite 400 Expansion Commencement Date will occur 4 months thereafter, i.e., February 1, 2019 and thus the first Year of the Suite 400 Expansion Premises Term shall commence on February 1, 2019 and expire on January 31, 2020.

3. Phase 2 Expansion Premises (Suite 550 in Berry Building).

3.1. Phase 2 Expansion Premises Commencement. The second sentence of Section 2.2 of the First Amendment is hereby amended to change the “Anticipated Phase 2 Expansion Premises Delivery Date” (as defined therein) from October 1, 2019 to October 1, 2018. If the Phase 2 Expansion Premises Delivery Date does not occur on the Anticipated Phase 2 Expansion Premises Delivery Date, then the Phase 2 Expansion Commencement Date shall be extended one day for each day of delay in delivery of the Phase 2 Expansion Premises to Tenant. The reference to October 1, 2019 in Section 1.2 of the Expansion Premises Work Letter attached as Exhibit B to the First Amendment is hereby deleted and replaced with October 1, 2018.

 

1 

Subject to adjustment if the Suite 400 Delivery Date does not occur on October 1, 2018.

 

3


3.2. Phase 2 Expansion Premises Base Rent. Tenant shall pay Base Rent for the Phase 2 Expansion Premises as provided in Section 4.2 of the First Amendment. The “Phase 2 Expansion Year” as used in the Base Rent chart in such Section 4.2 shall mean each twelve (12) month period commencing with the Phase 2 Expansion Commencement Date as amended by Section 3.1, above. The Base Rent payable for the Phase 2 Expansion Premises for the period between the end of the 6th Year of the Phase 2 Expansion Premises Term and the end of the Expansion Term (i.e., August 31, 2025) shall be equal to $101.50 per RSF of the Phase 2 Expansion Premises (i.e., $142,100.69 per month). For the sake of clarity, the parties hereby confirm that if the Phase 2 Expansion Delivery Date occurs on October 1, 2018, then Rent shall abate for the period commencing on the Phase 2 Expansion Commencement Date through and including May 7, 2020 (a period of 15 months and one week). Section 5.2 of the First Amendment is hereby deleted in its entirety and the following language is hereby substituted therefor: “Provided that Tenant is not then in Default of the Lease, then Tenant shall have no obligation to pay the Base Rent and Tenant’s Share of Direct Expenses otherwise attributable to the Phase 2 Expansion Premises during the first 15 months and one week of the Phase 2 Expansion Term (the “Phase 2 Abatement Period”). Landlord and Tenant acknowledge that the total amount of the Base Rent component of the abatement above equals $1,826,461.19 (i.e., $119,007.08 [$85.00 per year per rsf] for the first 12 months and $122,577.30 [$87.55 per year per rsf] for the next 3 months and one week).”

3.3. Phase 2 Rent Schedule. Section 4.2 of the First Amendment is hereby deleted and the following language is hereby substituted therefor: Commencing on the Phase 2 Expansion Commencement Date and continuing throughout the Phase 2 Expansion Term, Tenant shall pay to Landlord monthly installments of Base Rent for the Phase 2 Expansion Premises as follows:

 

Phase 2 Expansion Year

   Period      Monthly
Installment of
Base Rent
     Annual
Rental
Rate per
Rentable
Square
Foot
 

Year 1

      2/1/192 – 1/31/20       $ 0.00      $ 0.00  

Year 2

     2/1/20 – 5/7/20      $ 0.00      $ 0.00  

Year 2 (cont.)

     5/8/20 – 1/31/21      $ 122,577.30      $ 87.55  

Year 3

     5/1/21 – 1/31/22      $ 126,254.62      $ 90.18  

Year 4

     2/1/22 – 1/31/23      $ 130,042.25      $ 92.88  

Year 5

     2/1/23 – 1/31/24      $ 133,943.52      $ 95.67  

Year 6

     2/1/24 – 1/31/25      $ 137,961.83      $ 98.54  

Year 7

     2/1/25 – 8/31/25      $ 142,100,69      $ 101.50  

 

2 

Subject to adjustment if the Phase 2 Expansion Premises Delivery Date does not occur on October 1, 2018.

 

4


For purposes of this Fourth Amendment, the term “Phase 2 Expansion Year” shall mean each consecutive twelve (12) month period during the Phase 2 Expansion Term; provided, however, that the first Phase 2 Expansion Year shall commence on the Phase 2 Expansion Commencement Date and end on the last day of the eleventh full calendar month thereafter and the second and each succeeding Phase 2 Expansion Year shall commence on the first day of the next calendar month; and further provided that the last Phase 2 Expansion Year shall end on August 31, 2025. For the sake of clarity if the Phase 2 Expansion Delivery Date occurs on October 1, 2018, then the Phase 2 Expansion Commencement Date will occur 4 months thereafter, i.e., February 1, 2019 and thus the first Phase 2 Expansion Year shall commence on February 1, 2019 and expire on January 31, 2020.

4. Third Party Approvals. Landlord shall be responsible, at Landlord’s sole cost and expense, for obtaining any third party approvals required for Landlord to enter into this Fourth Amendment, including, without limitation, the approval of HSBC Bank USA, National Association.

5. Brokers. Landlord and Tenant hereby warrant to each other that they have had no dealings with any real estate broker or agent in connection with the negotiation of this Fourth Amendment other than McCarthy Cook & Co. and Jones Lang LaSalle (the “Brokers”), and that they know of no other real estate broker or agent who is entitled to a commission in connection with this Fourth Amendment. Landlord shall pay the brokerage commissions owing to the Brokers (if any) in connection with the transaction contemplated by this Fourth Amendment pursuant to the terms of separate written agreements between Landlord and each of the Brokers. Each party agrees to indemnify and defend the other party against and hold the other party harmless from and against any and all claims, demands, losses, liabilities, lawsuits, judgments, and costs and expenses (including, without limitation, reasonable attorneys’ fees) with respect to any leasing commission or equivalent compensation alleged to be owing on account of the indemnifying party’s dealings with any real estate broker or agent, other than the Brokers. The terms of this Section 5 shall survive the expiration or earlier termination of the term of the Lease, as hereby amended.

6. No Further Modification. Except as set forth in this Fourth Amendment, all of the terms and provisions of the Lease shall apply with respect to the Suite 400 Expansion Premises and the Phase 2 Expansion Premises and shall remain unmodified and in full force and effect.

7. Counterparts and Electronic Signatures. This Fourth Amendment may be executed in one or more counterparts, each of which shall be an original, and all of which together shall constitute a single instrument. Further, the parties agree that this Fourth Amendment may be signed and/or transmitted by electronic mail of a .PDF document or electronic signature (e.g., DocuSign or similar electronic signature technology) and thereafter maintained in electronic form, and that such electronic record shall be valid and effective to bind the party so signing as a paper copy bearing such party’s hand-written signature. The parties further consent and agree that the electronic signatures appearing on this Fourth Amendment shall be treated, for purpose of validity, enforceability and admissibility, the same as hand-written signatures.

 

5


IN WITNESS WHEREOF, this Fourth Amendment has been executed as of the day and year first above written.

 

“Landlord”:

SPF CHINA BASIN HOLDINGS, LLC,

a Delaware limited liability company

By:

 

SPF China Basin Acquisition, LLC,

 

a Delaware limited liability company

 

Managing Member

 

By:

 

Commingled Pension Trust Fund (Strategic

Property) of JPMorgan Chase Bank, N.A.,

   

Sole Member

   

By:

 

JPMorgan Chase Bank, N.A.,

     

Trustee

   

    By:

 

/s/ [ILLEGIBLE]

     

Name: [ILLEGIBLE]

Title: [ILLEGIBLE]

     

Date:                                                                   

“Tenant”:

LYFT, INC.,

a Delaware corporation

By:

 

/s/ Brian Roberts

 

Name: Brian Roberts

 

Its: Chief Financial Officer

 

Date: Sep 24, 2018

 

6